| 1 | 06/02/2017 | SWD | Statutory Warranty Deed | THE TRUST FOR PUBLIC LAND | OLYMPIC LAND AND FARM LLC | | | $630,000.00 | 127936 | |
|   | |
| 2 | 06/02/2017 | CONS EASE | CONSERVATION EASEMENT | THE TRUST FOR PUBLIC LAND | UNITED STATES OF AMERICA | | | $420,000.00 | 127939 | |
|   | |
| 3 | 06/02/2017 | SWD | Statutory Warranty Deed | MERRILL & RING FOREST PRODUCTS | THE TRUST FOR PUBLIC LAND | | | $1,050,000.00 | 127938 | |
|   | |
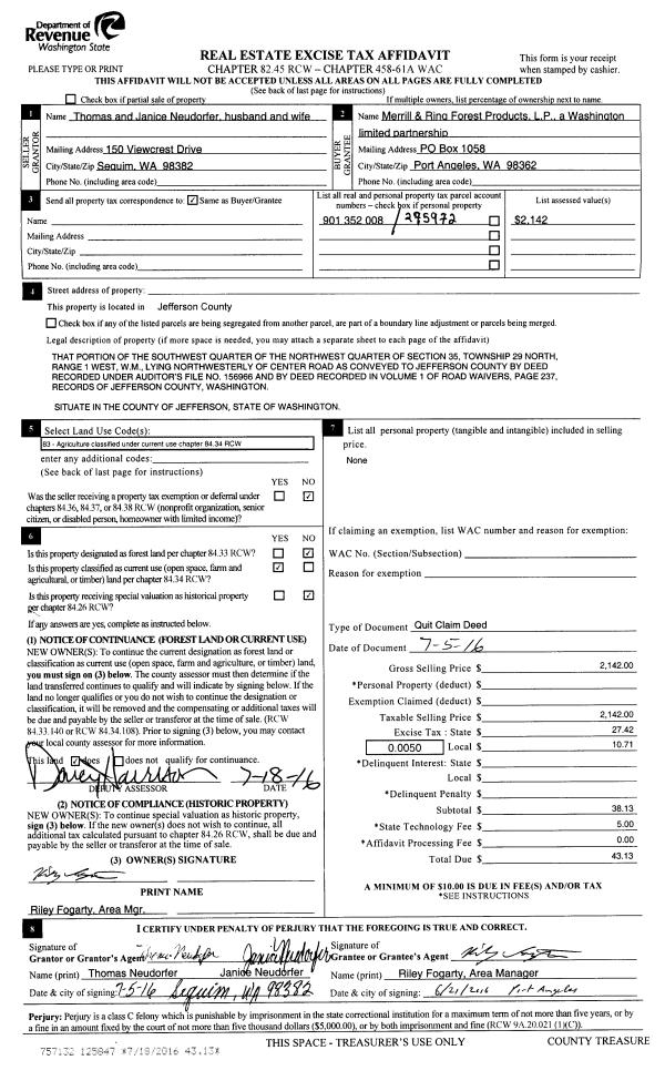
| 4 | 07/05/2016 | QCD | Quit Claim Deed | THOMAS J & JANICE L NEUDORFER | MERRILL & RING FOREST PRODUCTS | | | $2,142.00 | 125847 | |
| 5 | 06/20/2013 | QCD | Quit Claim Deed | THOMAS J & JANICE L NEUDORFER | | | | | 119468 | |