Property
Account |
| Property ID: | 275974 | Abbreviated Legal Description: | VILLAS BY THE SEA LOT 26-PLAT ALTERATION V8/P117-21 |
| Parcel # / Geo ID: | 997900026 | Agent Code: | |
| Type: | Real | | |
| Tax Area: | 0211 - 1-49F1E1H2L1 | Land Use Code | 11 |
| Open Space: | N | DFL | N |
| Historic Property: | N | Remodel Property: | N |
| Multi-Family Redevelopment: | N | | |
| Township: | 29N | Section: | 01 |
| Range: | 1W |
Location |
| Address: | 21 GRANDVIEW DR PORT HADLOCK, WA 98339 | Mapsco: | 144/026A |
| Neighborhood: | VILLAS BY THE SEA | Map ID: | |
| Neighborhood CD: | 4201 |
Owner |
| Name: | SUSAN VARNUM & DAVID LOWRY | Owner ID: | 112561 |
| Mailing Address: | 21 GRANDVIEW DR PORT HADLOCK, WA 98339 | % Ownership: | 100.0000000000% |
| | | Exemptions: | |
Pay Tax Due
Select the appropriate checkbox next to the year to be paid. Multiple years may be selected.
*Convenience Fee not included
Taxes and Assessment Details
Property Tax Information as of
03/12/2026
Click on "Statement Details" to expand or collapse a tax statement.
* Please enter a valid date ** Please enter a valid date *
Statement Details |
| 2026 | 33628 | STATE - STATE LEVY (SCHOOL) | $800.49 | $800.47 | $0.00 | $0.00 | $0.00 | $1600.96 |
| 2026 | 33628 | COUNTY - COUNTY LEVIES (CE, DD, VET, MH) | $320.04 | $320.02 | $0.00 | $0.00 | $0.00 | $640.06 |
| 2026 | 33628 | CONSERVE - CONSERVATION FUTURES | $9.60 | $9.59 | $0.00 | $0.00 | $0.00 | $19.19 |
| 2026 | 33628 | COROADS - COUNTY ROADS (ROADS, DIV TO CE) | $258.17 | $258.17 | $0.00 | $0.00 | $0.00 | $516.34 |
| 2026 | 33628 | PORTPT - PORT DISTRICT | $129.26 | $129.24 | $0.00 | $0.00 | $0.00 | $258.50 |
| 2026 | 33628 | PUD1 - PUD #1 | $20.82 | $20.81 | $0.00 | $0.00 | $0.00 | $41.63 |
| 2026 | 33628 | LIB1 - LIBRARY DIST #1 | $99.89 | $99.88 | $0.00 | $0.00 | $0.00 | $199.77 |
| 2026 | 33628 | HD2 - HOSP DIST #2 | $18.67 | $18.66 | $0.00 | $0.00 | $0.00 | $37.33 |
| 2026 | 33628 | SD49 - SCHOOL DIST #49 | $440.63 | $440.63 | $0.00 | $0.00 | $0.00 | $881.26 |
| 2026 | 33628 | FD1 - FIRE DISTRICT #1 | $423.80 | $423.79 | $0.00 | $0.00 | $0.00 | $847.59 |
| 2026 | 33628 | EMS1 - FIRE DIST #1 EMS | $162.95 | $162.94 | $0.00 | $0.00 | $0.00 | $325.89 |
| 2026 | 33628 | JCCD - JC Conservation District | $2.55 | $2.55 | $0.00 | $0.00 | $0.00 | $5.10 |
| 2026 | 33628 | NWA - Noxious Weed Assessment | $2.98 | $2.97 | $0.00 | $0.00 | $0.00 | $5.95 |
| 2026 | 33628 | OSS - On Site Septic | $23.10 | $23.10 | $0.00 | $0.00 | $0.00 | $46.20 |
| 2026 | 33628 | WAT - Clean Water District | $13.00 | $13.00 | $0.00 | $0.00 | $0.00 | $26.00 |
| 2026 | 33628 | TOTAL: | $2725.95 | $2725.82 | $0.00 | $0.00 | $0.00 | $5451.77 |
|
| 2026 | 33628 | $2725.95 | $2725.82 | $0.00 | $0.00 | $0.00 | $5451.77 |
Statement Details |
| 2025 | 33711 | STATE - STATE LEVY (SCHOOL) | $607.29 | $607.28 | $0.00 | $0.00 | $1214.57 | $0.00 |
| 2025 | 33711 | COUNTY - COUNTY LEVIES (CE, DD, VET, MH) | $238.81 | $238.81 | $0.00 | $0.00 | $477.62 | $0.00 |
| 2025 | 33711 | CONSERVE - CONSERVATION FUTURES | $7.16 | $7.16 | $0.00 | $0.00 | $14.32 | $0.00 |
| 2025 | 33711 | COROADS - COUNTY ROADS (ROADS, DIV TO CE) | $191.33 | $191.32 | $0.00 | $0.00 | $382.65 | $0.00 |
| 2025 | 33711 | PORTPT - PORT DISTRICT | $97.45 | $97.44 | $0.00 | $0.00 | $194.89 | $0.00 |
| 2025 | 33711 | PUD1 - PUD #1 | $15.63 | $15.62 | $0.00 | $0.00 | $31.25 | $0.00 |
| 2025 | 33711 | LIB1 - LIBRARY DIST #1 | $74.02 | $74.02 | $0.00 | $0.00 | $148.04 | $0.00 |
| 2025 | 33711 | HD2 - HOSP DIST #2 | $13.94 | $13.93 | $0.00 | $0.00 | $27.87 | $0.00 |
| 2025 | 33711 | SD49 - SCHOOL DIST #49 | $325.48 | $325.46 | $0.00 | $0.00 | $650.94 | $0.00 |
| 2025 | 33711 | FD1 - FIRE DISTRICT #1 | $315.14 | $315.13 | $0.00 | $0.00 | $630.27 | $0.00 |
| 2025 | 33711 | EMS1 - FIRE DIST #1 EMS | $121.21 | $121.21 | $0.00 | $0.00 | $242.42 | $0.00 |
| 2025 | 33711 | JCCD - JC Conservation District | $2.55 | $2.55 | $0.00 | $0.00 | $5.10 | $0.00 |
| 2025 | 33711 | NWA - Noxious Weed Assessment | $2.15 | $2.15 | $0.00 | $0.00 | $4.30 | $0.00 |
| 2025 | 33711 | WAT - Clean Water District | $13.00 | $13.00 | $0.00 | $0.00 | $26.00 | $0.00 |
| 2025 | 33711 | TOTAL: | $2025.16 | $2025.08 | $0.00 | $0.00 | $4050.24 | $0.00 |
|
| 2025 | 33711 | $2025.16 | $2025.08 | $0.00 | $0.00 | $4050.24 | $0.00 |
Statement Details |
| 2024 | 33779 | STATE - STATE LEVY (SCHOOL) | $552.22 | $552.21 | $0.00 | $0.00 | $1104.43 | $0.00 |
| 2024 | 33779 | COUNTY - COUNTY LEVIES (CE, DD, VET, MH) | $236.31 | $236.29 | $0.00 | $0.00 | $472.60 | $0.00 |
| 2024 | 33779 | CONSERVE - CONSERVATION FUTURES | $7.09 | $7.08 | $0.00 | $0.00 | $14.17 | $0.00 |
| 2024 | 33779 | COROADS - COUNTY ROADS (ROADS, DIV TO CE) | $190.15 | $190.13 | $0.00 | $0.00 | $380.28 | $0.00 |
| 2024 | 33779 | PORTPT - PORT DISTRICT | $97.61 | $97.59 | $0.00 | $0.00 | $195.20 | $0.00 |
| 2024 | 33779 | PUD1 - PUD #1 | $15.52 | $15.52 | $0.00 | $0.00 | $31.04 | $0.00 |
| 2024 | 33779 | LIB1 - LIBRARY DIST #1 | $73.57 | $73.56 | $0.00 | $0.00 | $147.13 | $0.00 |
| 2024 | 33779 | HD2 - HOSP DIST #2 | $13.79 | $13.79 | $0.00 | $0.00 | $27.58 | $0.00 |
| 2024 | 33779 | SD49 - SCHOOL DIST #49 | $246.60 | $246.59 | $0.00 | $0.00 | $493.19 | $0.00 |
| 2024 | 33779 | FD1 - FIRE DISTRICT #1 | $312.45 | $312.44 | $0.00 | $0.00 | $624.89 | $0.00 |
| 2024 | 33779 | EMS1 - FIRE DIST #1 EMS | $119.34 | $119.34 | $0.00 | $0.00 | $238.68 | $0.00 |
| 2024 | 33779 | JCCD - JC Conservation District | $2.55 | $2.55 | $0.00 | $0.00 | $5.10 | $0.00 |
| 2024 | 33779 | NWA - Noxious Weed Assessment | $2.15 | $2.15 | $0.00 | $0.00 | $4.30 | $0.00 |
| 2024 | 33779 | WAT - Clean Water District | $12.50 | $12.50 | $0.00 | $0.00 | $25.00 | $0.00 |
| 2024 | 33779 | TOTAL: | $1881.85 | $1881.74 | $0.00 | $0.00 | $3763.59 | $0.00 |
|
| 2024 | 33779 | $1881.85 | $1881.74 | $0.00 | $0.00 | $3763.59 | $0.00 |
Statement Details |
| 2023 | 33829 | STATE - STATE LEVY (SCHOOL) | $438.00 | $437.99 | $0.00 | $0.00 | $875.99 | $0.00 |
| 2023 | 33829 | COUNTY - COUNTY LEVIES (CE, DD, VET, MH) | $191.14 | $191.11 | $0.00 | $0.00 | $382.25 | $0.00 |
| 2023 | 33829 | CONSERVE - CONSERVATION FUTURES | $5.73 | $5.73 | $0.00 | $0.00 | $11.46 | $0.00 |
| 2023 | 33829 | COROADS - COUNTY ROADS (ROADS, DIV TO CE) | $154.64 | $154.63 | $0.00 | $0.00 | $309.27 | $0.00 |
| 2023 | 33829 | PORTPT - PORT DISTRICT | $80.52 | $80.51 | $0.00 | $0.00 | $161.03 | $0.00 |
| 2023 | 33829 | PUD1 - PUD #1 | $12.67 | $12.67 | $0.00 | $0.00 | $25.34 | $0.00 |
| 2023 | 33829 | LIB1 - LIBRARY DIST #1 | $59.83 | $59.82 | $0.00 | $0.00 | $119.65 | $0.00 |
| 2023 | 33829 | HD2 - HOSP DIST #2 | $11.16 | $11.15 | $0.00 | $0.00 | $22.31 | $0.00 |
| 2023 | 33829 | SD49 - SCHOOL DIST #49 | $204.74 | $204.73 | $0.00 | $0.00 | $409.47 | $0.00 |
| 2023 | 33829 | FD1 - FIRE DISTRICT #1 | $157.45 | $157.45 | $0.00 | $0.00 | $314.90 | $0.00 |
| 2023 | 33829 | EMS1 - FIRE DIST #1 EMS | $66.98 | $66.97 | $0.00 | $0.00 | $133.95 | $0.00 |
| 2023 | 33829 | JCCD - JC Conservation District | $2.55 | $2.55 | $0.00 | $0.00 | $5.10 | $0.00 |
| 2023 | 33829 | NWA - Noxious Weed Assessment | $2.15 | $2.15 | $0.00 | $0.00 | $4.30 | $0.00 |
| 2023 | 33829 | WAT - Clean Water District | $12.00 | $12.00 | $0.00 | $0.00 | $24.00 | $0.00 |
| 2023 | 33829 | TOTAL: | $1399.56 | $1399.46 | $0.00 | $0.00 | $2799.02 | $0.00 |
|
| 2023 | 33829 | $1399.56 | $1399.46 | $0.00 | $0.00 | $2799.02 | $0.00 |
Values
| (+) Improvement Homesite Value: | + | $0 | |
| (+) Improvement Non-Homesite Value: | + | $569,844 | |
| (+) Land Homesite Value: | + | $0 | |
| (+) Land Non-Homesite Value: | + | $126,500 | |
| (+) Curr Use (HS): | + | $0 | $0 |
| (+) Curr Use (NHS): | + | $0 | $0 |
| | | -------------------------- | |
| (=) Market Value: | = | $696,344 | |
| (–) Productivity Loss: | – | $0 | |
| | | -------------------------- | |
| (=) Subtotal: | = | $696,344 | |
| (+) Senior Appraised Value: | + | $0 | |
| (+) Non-Senior Appraised Value: | + | $696,344 | |
| | | -------------------------- | |
| (=) Total Appraised Value: | = | $696,344 | |
| (–) Senior Exemption Loss: | – | $0 | |
| (–) Exemption Loss: | – | $0 | |
| | | -------------------------- | |
| (=) Taxable Value: | = | $696,344 | |
Taxing Jurisdiction
| Owner: | SUSAN VARNUM & DAVID LOWRY | | |
| % Ownership: | 100.0000000000% | | |
| Total Value: | $696,344 | | |
| Tax Area: | 0211 - 1-49F1E1H2L1 |
| CE | COUNTY CURRENT EXPENSE | 0.9034619479 | $696,344 | $696,344 | $629.12 | | |
| CNTYDD | DEVELOPMENTAL DISABILITIES | 0.0052121823 | $696,344 | $696,344 | $3.63 | | |
| CNTYVET | VETERANS RELIEF | 0.0052777810 | $696,344 | $696,344 | $3.68 | | |
| MENTAL | MENTAL HEALTH | 0.0052121823 | $696,344 | $696,344 | $3.63 | | |
| ROADS | COUNTY ROADS | 0.7415066410 | $696,344 | $696,344 | $516.34 | | |
| ROADSCU | COUNTY ROADS TO CUR EXP | 0.0000000000 | $696,344 | $696,344 | $0.00 | | |
| HOSP2CASH | HOSP DIST #2 GENERAL | 0.0536075306 | $696,344 | $696,344 | $37.33 | | |
| SCH49CP | SCHOOL DIST #49 CAP PROJ | 0.6279093905 | $696,344 | $696,344 | $437.24 | | |
| SCH49MO | SCHOOL DIST #49 EP & O | 0.6376483602 | $696,344 | $696,344 | $444.02 | | |
| CONSERVE | CONSERVATION FUTURES | 0.0275621078 | $696,344 | $696,344 | $19.19 | | |
| EMS1 | FIRE DIST #1 EMS | 0.4679948282 | $696,344 | $696,344 | $325.89 | | |
| FD1 | FIRE DIST #1 GENERAL | 1.2171942929 | $696,344 | $696,344 | $847.59 | | |
| LIB1 | LIBRARY DIST #1 GENERAL | 0.2868827388 | $696,344 | $696,344 | $199.77 | | |
| PORTPT | PORT OF PT GENERAL | 0.1134941229 | $696,344 | $696,344 | $79.03 | | |
| PORTPTIDD | PORT OF PT IDD 2019 | 0.2577346692 | $696,344 | $696,344 | $179.47 | | |
| PUD1 | PUD #1 GENERAL | 0.0597888892 | $696,344 | $696,344 | $41.63 | | |
| STATE | STATE SCHOOL PART 1 | 1.4940692947 | $696,344 | $696,344 | $1,040.39 | | |
| STATE2 | STATE SCHOOL PART 2 | 0.8050170049 | $696,344 | $696,344 | $560.57 | | |
| | Total Tax Rate: | 7.7095739644 | | | | | |
| | | | | Taxes w/Current Exemptions: | $5,368.52 | | |
| | | | | Taxes w/o Exemptions: | $5,368.52 | | |
Improvement / Building
| Improvement #1: | Residential Bldg | State Code: | 11 | 1940.0 sqft | Value: | $569,844 |
| Bathrooms (#): | 2 (FULL) | Bedrooms (#): | 3 | | Exterior Wall: | SI/ST | Foundation: | CONPR | | Heating/Cooling: | HPUMP | Roof Cover: | COMP |
|
| | Type | Description | Class CD | Sub Class CD | Year Built | Area |
| | MA | Main Area | 4+ | 1S | 2015 | 1940.0 |
| | GATT | House Attached Garage | 4 | 1S | 2015 | 1012.0 |
| | HCPOR | House Concrete Porch | 4 | 1S | 2015 | 642.0 |
| | HDECK | House Deck | 4 | 1S | 2015 | 128.0 |
| | GDET | Detached Garage | 4 | * | 2015 | 374.0 |
Sketch
Property Image
Land
| 1 | 4201-1165L | | 0.0000 | 0.00 | 0.00 | 0.00 | 1.00 | $126,500 | $0 |
Roll Value History
| 2026 | N/A | N/A | N/A | N/A | N/A |
| 2025 | $569,844 | $126,500 | $0 | $696,344 | $696,344 |
| 2024 | $403,587 | $102,900 | $0 | $506,487 | $506,487 |
| 2023 | $384,369 | $93,000 | $0 | $477,369 | $477,369 |
| 2022 | $309,600 | $62,500 | $0 | $372,100 | $372,100 |
Deed and Sales History
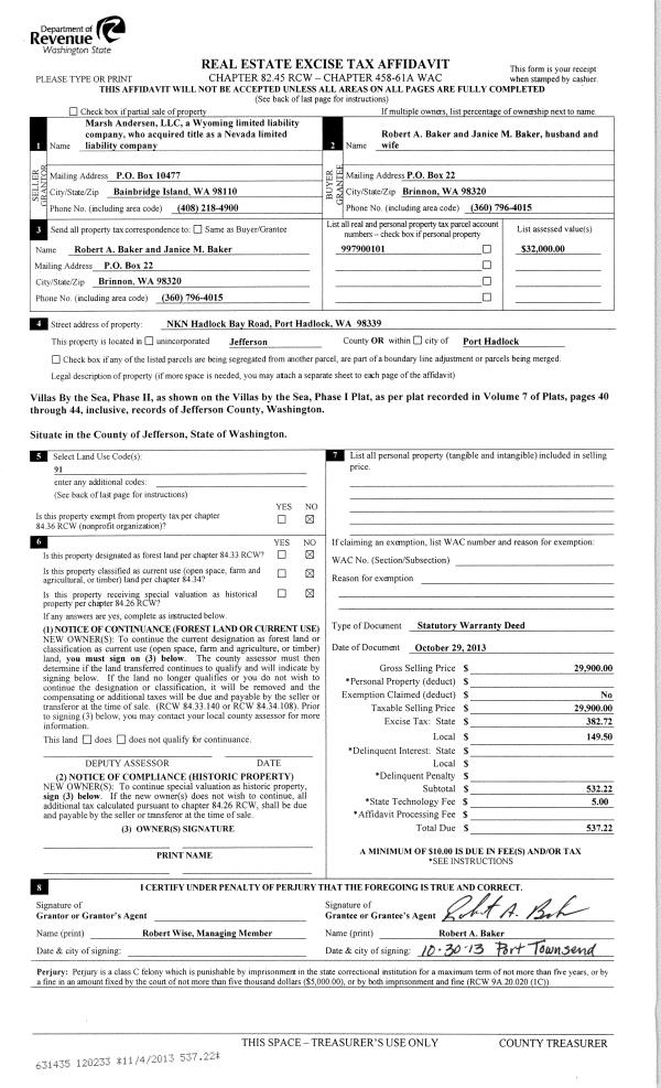
| 1 | 05/07/2025 | SWD | Statutory Warranty Deed | ROBERT A & JANICE M BAKER | SUSAN VARNUM & DAVID LOWRY | | | $769,999.00 | 144282 | |
| 2 | 10/29/2013 | SWD | Statutory Warranty Deed | ROBERT A & JANICE M BAKER | | | | $29,900.00 | 120233 | |
Payout Agreement
| No payout information available.. |