Property
Account |
| Property ID: | 276001 | Abbreviated Legal Description: | ROSECRANS TERRACE LOT 15 |
| Parcel # / Geo ID: | 994300015 | Agent Code: | |
| Type: | Real | | |
| Tax Area: | 0110 - C-50F1E1H2 | Land Use Code | 11 |
| Open Space: | N | DFL | N |
| Historic Property: | N | Remodel Property: | N |
| Multi-Family Redevelopment: | N | | |
| Township: | 30N | Section: | 3 |
| Range: | 1W |
Location |
| Address: | 2204 EAST ROSECRANS CT PORT TOWNSEND, WA 98368 | Mapsco: | 129/007H |
| Neighborhood: | LAUREL SHADE, HASTINGS HEIGHTS & ACREAGE PROXIMITY | Map ID: | |
| Neighborhood CD: | 6115 |
Owner |
| Name: | STEVEN A KIDD | Owner ID: | 100607 |
| Mailing Address: | 2204 E ROSECRANS CT PORT TOWNSEND, WA 98368-6866 | % Ownership: | 100.0000000000% |
| | | Exemptions: | |
Pay Tax Due
Select the appropriate checkbox next to the year to be paid. Multiple years may be selected.
*Convenience Fee not included
Taxes and Assessment Details
Property Tax Information as of
03/12/2026
Click on "Statement Details" to expand or collapse a tax statement.
* Please enter a valid date ** Please enter a valid date *
Statement Details |
| 2026 | 33649 | STATE - STATE LEVY (SCHOOL) | $506.33 | $506.31 | $0.00 | $0.00 | $0.00 | $1012.64 |
| 2026 | 33649 | COUNTY - COUNTY LEVIES (CE, DD, VET, MH) | $202.43 | $202.42 | $0.00 | $0.00 | $0.00 | $404.85 |
| 2026 | 33649 | CONSERVE - CONSERVATION FUTURES | $6.07 | $6.07 | $0.00 | $0.00 | $0.00 | $12.14 |
| 2026 | 33649 | CITYPT - CITY OF PT | $287.34 | $287.31 | $0.00 | $0.00 | $0.00 | $574.65 |
| 2026 | 33649 | PORTPT - PORT DISTRICT | $81.76 | $81.75 | $0.00 | $0.00 | $0.00 | $163.51 |
| 2026 | 33649 | PUD1 - PUD #1 | $13.17 | $13.16 | $0.00 | $0.00 | $0.00 | $26.33 |
| 2026 | 33649 | HD2 - HOSP DIST #2 | $11.81 | $11.80 | $0.00 | $0.00 | $0.00 | $23.61 |
| 2026 | 33649 | SD50 - SCHOOL DIST #50 | $401.12 | $401.11 | $0.00 | $0.00 | $0.00 | $802.23 |
| 2026 | 33649 | FD1 - FIRE DISTRICT #1 | $268.06 | $268.06 | $0.00 | $0.00 | $0.00 | $536.12 |
| 2026 | 33649 | EMS1 - FIRE DIST #1 EMS | $103.07 | $103.06 | $0.00 | $0.00 | $0.00 | $206.13 |
| 2026 | 33649 | JCCD - JC Conservation District | $2.55 | $2.55 | $0.00 | $0.00 | $0.00 | $5.10 |
| 2026 | 33649 | NWA - Noxious Weed Assessment | $2.98 | $2.97 | $0.00 | $0.00 | $0.00 | $5.95 |
| 2026 | 33649 | TOTAL: | $1886.69 | $1886.57 | $0.00 | $0.00 | $0.00 | $3773.26 |
|
| 2026 | 33649 | $1886.69 | $1886.57 | $0.00 | $0.00 | $0.00 | $3773.26 |
Statement Details |
| 2025 | 33733 | STATE - STATE LEVY (SCHOOL) | $519.77 | $519.76 | $0.00 | $0.00 | $1039.53 | $0.00 |
| 2025 | 33733 | COUNTY - COUNTY LEVIES (CE, DD, VET, MH) | $204.40 | $204.38 | $0.00 | $0.00 | $408.78 | $0.00 |
| 2025 | 33733 | CONSERVE - CONSERVATION FUTURES | $6.13 | $6.13 | $0.00 | $0.00 | $12.26 | $0.00 |
| 2025 | 33733 | CITYPT - CITY OF PT | $294.77 | $294.75 | $0.00 | $0.00 | $589.52 | $0.00 |
| 2025 | 33733 | PORTPT - PORT DISTRICT | $83.41 | $83.40 | $0.00 | $0.00 | $166.81 | $0.00 |
| 2025 | 33733 | PUD1 - PUD #1 | $13.38 | $13.37 | $0.00 | $0.00 | $26.75 | $0.00 |
| 2025 | 33733 | HD2 - HOSP DIST #2 | $11.93 | $11.92 | $0.00 | $0.00 | $23.85 | $0.00 |
| 2025 | 33733 | SD50 - SCHOOL DIST #50 | $379.86 | $379.86 | $0.00 | $0.00 | $759.72 | $0.00 |
| 2025 | 33733 | FD1 - FIRE DISTRICT #1 | $269.72 | $269.72 | $0.00 | $0.00 | $539.44 | $0.00 |
| 2025 | 33733 | EMS1 - FIRE DIST #1 EMS | $103.74 | $103.74 | $0.00 | $0.00 | $207.48 | $0.00 |
| 2025 | 33733 | JCCD - JC Conservation District | $2.55 | $2.55 | $0.00 | $0.00 | $5.10 | $0.00 |
| 2025 | 33733 | NWA - Noxious Weed Assessment | $2.15 | $2.15 | $0.00 | $0.00 | $4.30 | $0.00 |
| 2025 | 33733 | TOTAL: | $1891.81 | $1891.73 | $0.00 | $0.00 | $3783.54 | $0.00 |
|
| 2025 | 33733 | $1891.81 | $1891.73 | $0.00 | $0.00 | $3783.54 | $0.00 |
Statement Details |
| 2024 | 33801 | STATE - STATE LEVY (SCHOOL) | $500.26 | $500.25 | $0.00 | $0.00 | $1000.51 | $0.00 |
| 2024 | 33801 | COUNTY - COUNTY LEVIES (CE, DD, VET, MH) | $214.07 | $214.06 | $0.00 | $0.00 | $428.13 | $0.00 |
| 2024 | 33801 | CONSERVE - CONSERVATION FUTURES | $6.42 | $6.42 | $0.00 | $0.00 | $12.84 | $0.00 |
| 2024 | 33801 | CITYPT - CITY OF PT | $305.87 | $305.85 | $0.00 | $0.00 | $611.72 | $0.00 |
| 2024 | 33801 | PORTPT - PORT DISTRICT | $88.42 | $88.41 | $0.00 | $0.00 | $176.83 | $0.00 |
| 2024 | 33801 | PUD1 - PUD #1 | $14.06 | $14.06 | $0.00 | $0.00 | $28.12 | $0.00 |
| 2024 | 33801 | HD2 - HOSP DIST #2 | $12.49 | $12.49 | $0.00 | $0.00 | $24.98 | $0.00 |
| 2024 | 33801 | SD50 - SCHOOL DIST #50 | $404.73 | $404.72 | $0.00 | $0.00 | $809.45 | $0.00 |
| 2024 | 33801 | FD1 - FIRE DISTRICT #1 | $283.04 | $283.04 | $0.00 | $0.00 | $566.08 | $0.00 |
| 2024 | 33801 | EMS1 - FIRE DIST #1 EMS | $108.11 | $108.11 | $0.00 | $0.00 | $216.22 | $0.00 |
| 2024 | 33801 | JCCD - JC Conservation District | $2.55 | $2.55 | $0.00 | $0.00 | $5.10 | $0.00 |
| 2024 | 33801 | NWA - Noxious Weed Assessment | $2.15 | $2.15 | $0.00 | $0.00 | $4.30 | $0.00 |
| 2024 | 33801 | TOTAL: | $1942.17 | $1942.11 | $0.00 | $0.00 | $3884.28 | $0.00 |
|
| 2024 | 33801 | $1942.17 | $1942.11 | $0.00 | $0.00 | $3884.28 | $0.00 |
Statement Details |
| 2023 | 33851 | STATE - STATE LEVY (SCHOOL) | $454.47 | $454.46 | $0.00 | $0.00 | $908.93 | $0.00 |
| 2023 | 33851 | COUNTY - COUNTY LEVIES (CE, DD, VET, MH) | $198.32 | $198.30 | $0.00 | $0.00 | $396.62 | $0.00 |
| 2023 | 33851 | CONSERVE - CONSERVATION FUTURES | $5.95 | $5.94 | $0.00 | $0.00 | $11.89 | $0.00 |
| 2023 | 33851 | CITYPT - CITY OF PT | $280.30 | $280.27 | $0.00 | $0.00 | $560.57 | $0.00 |
| 2023 | 33851 | PORTPT - PORT DISTRICT | $83.55 | $83.53 | $0.00 | $0.00 | $167.08 | $0.00 |
| 2023 | 33851 | PUD1 - PUD #1 | $13.15 | $13.14 | $0.00 | $0.00 | $26.29 | $0.00 |
| 2023 | 33851 | HD2 - HOSP DIST #2 | $11.58 | $11.57 | $0.00 | $0.00 | $23.15 | $0.00 |
| 2023 | 33851 | SD50 - SCHOOL DIST #50 | $360.64 | $360.62 | $0.00 | $0.00 | $721.26 | $0.00 |
| 2023 | 33851 | FD1 - FIRE DISTRICT #1 | $163.37 | $163.37 | $0.00 | $0.00 | $326.74 | $0.00 |
| 2023 | 33851 | EMS1 - FIRE DIST #1 EMS | $69.50 | $69.49 | $0.00 | $0.00 | $138.99 | $0.00 |
| 2023 | 33851 | JCCD - JC Conservation District | $2.55 | $2.55 | $0.00 | $0.00 | $5.10 | $0.00 |
| 2023 | 33851 | NWA - Noxious Weed Assessment | $2.15 | $2.15 | $0.00 | $0.00 | $4.30 | $0.00 |
| 2023 | 33851 | TOTAL: | $1645.53 | $1645.39 | $0.00 | $0.00 | $3290.92 | $0.00 |
|
| 2023 | 33851 | $1645.53 | $1645.39 | $0.00 | $0.00 | $3290.92 | $0.00 |
Values
| (+) Improvement Homesite Value: | + | $0 | |
| (+) Improvement Non-Homesite Value: | + | $308,454 | |
| (+) Land Homesite Value: | + | $0 | |
| (+) Land Non-Homesite Value: | + | $132,000 | |
| (+) Curr Use (HS): | + | $0 | $0 |
| (+) Curr Use (NHS): | + | $0 | $0 |
| | | -------------------------- | |
| (=) Market Value: | = | $440,454 | |
| (–) Productivity Loss: | – | $0 | |
| | | -------------------------- | |
| (=) Subtotal: | = | $440,454 | |
| (+) Senior Appraised Value: | + | $0 | |
| (+) Non-Senior Appraised Value: | + | $440,454 | |
| | | -------------------------- | |
| (=) Total Appraised Value: | = | $440,454 | |
| (–) Senior Exemption Loss: | – | $0 | |
| (–) Exemption Loss: | – | $0 | |
| | | -------------------------- | |
| (=) Taxable Value: | = | $440,454 | |
Taxing Jurisdiction
| Owner: | STEVEN A KIDD | | |
| % Ownership: | 100.0000000000% | | |
| Total Value: | $440,454 | | |
| Tax Area: | 0110 - C-50F1E1H2 |
| CE | COUNTY CURRENT EXPENSE | 0.9034619479 | $440,454 | $440,454 | $397.93 | | |
| CNTYDD | DEVELOPMENTAL DISABILITIES | 0.0052121823 | $440,454 | $440,454 | $2.30 | | |
| CNTYVET | VETERANS RELIEF | 0.0052777810 | $440,454 | $440,454 | $2.32 | | |
| MENTAL | MENTAL HEALTH | 0.0052121823 | $440,454 | $440,454 | $2.30 | | |
| PTGEN | CITY OF PT GENERAL | 0.8551967795 | $440,454 | $440,454 | $376.67 | | |
| PTLLL | CITY OF PT - LIBRARY LID LIFT | 0.4010114288 | $440,454 | $440,454 | $176.63 | | |
| PTMVBOND | CITY OF PT MV BOND | 0.0484717981 | $440,454 | $440,454 | $21.35 | | |
| HOSP2CASH | HOSP DIST #2 GENERAL | 0.0536075306 | $440,454 | $440,454 | $23.61 | | |
| SCH50BOND | SCHOOL DIST #50 BOND 2016 | 0.5377451389 | $440,454 | $440,454 | $236.85 | | |
| SCH50CP | SCHOOL DIST #50 CAP PROJ | 0.4573475088 | $440,454 | $440,454 | $201.44 | | |
| SCH50MO | SCHOOL DIST #50 EP & O | 0.8262822886 | $440,454 | $440,454 | $363.94 | | |
| CONSERVE | CONSERVATION FUTURES | 0.0275621078 | $440,454 | $440,454 | $12.14 | | |
| EMS1 | FIRE DIST #1 EMS | 0.4679948282 | $440,454 | $440,454 | $206.13 | | |
| FD1 | FIRE DIST #1 GENERAL | 1.2171942929 | $440,454 | $440,454 | $536.12 | | |
| PORTPT | PORT OF PT GENERAL | 0.1134941229 | $440,454 | $440,454 | $49.99 | | |
| PORTPTIDD | PORT OF PT IDD 2019 | 0.2577346692 | $440,454 | $440,454 | $113.52 | | |
| PUD1 | PUD #1 GENERAL | 0.0597888892 | $440,454 | $440,454 | $26.33 | | |
| STATE | STATE SCHOOL PART 1 | 1.4940692947 | $440,454 | $440,454 | $658.07 | | |
| STATE2 | STATE SCHOOL PART 2 | 0.8050170049 | $440,454 | $440,454 | $354.57 | | |
| | Total Tax Rate: | 8.5416817766 | | | | | |
| | | | | Taxes w/Current Exemptions: | $3,762.21 | | |
| | | | | Taxes w/o Exemptions: | $3,762.21 | | |
Improvement / Building
| Improvement #1: | Residential Bldg | State Code: | 11 | 975.0 sqft | Value: | $308,454 |
| Bathrooms (#): | 2 (FULL) | Bedrooms (#): | 2 | | Exterior Wall: | SI/ST | Floor Construction: | FRAME | | Foundation: | CONPR | Heating/Cooling: | F/A | | Roof Cover: | COMP |   |   |
|
| | Type | Description | Class CD | Sub Class CD | Year Built | Area |
| | MA | Main Area | 4+ | 1S | 2016 | 975.0 |
| | GATT | House Attached Garage | 4 | 1S | 2016 | 299.0 |
| | HDECK | House Deck | 4 | * | 2016 | 120.0 |
| | HRPO | House Roof Patio | 4 | * | 2016 | 48.0 |
| | CONCD | Concrete Drive | 4 | * | 2016 | 300.0 |
Sketch
Property Image
Land
| 1 | 6115-1175L | | 0.0000 | 0.00 | 0.00 | 0.00 | 1.00 | $132,000 | $0 |
Roll Value History
| 2026 | N/A | N/A | N/A | N/A | N/A |
| 2025 | $308,454 | $132,000 | $0 | $440,454 | $440,454 |
| 2024 | $301,194 | $132,300 | $0 | $433,494 | $433,494 |
| 2023 | $301,194 | $131,250 | $0 | $432,444 | $432,444 |
| 2022 | $276,095 | $110,000 | $0 | $386,095 | $386,095 |
Deed and Sales History
| 1 | 02/20/2019 | SWD | Statutory Warranty Deed | REBECCA L STRONA | STEVEN A KIDD | | | $319,000.00 | 131871 | |
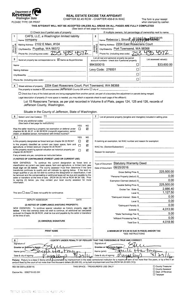
| 2 | 08/25/2016 | SWD | Statutory Warranty Deed | CAFS LLC | REBECCA L STRONA | | | $225,500.00 | 126170 | |
| 3 | 08/25/2014 | SWD | Statutory Warranty Deed | ST FRANCIS ESTATES LLC | CAFS LLC | | | $108,000.00 | 0 | |
| 4 | 10/30/2006 | QCD | Quit Claim Deed | PICK MINERALES, LLC, A WA | ST FRANCIS ESTATES, LLC | 0 | 0 | $0.00 | 0 | 0 |
| 5 | 10/30/2006 | QCD | Quit Claim Deed | PICK MINERALES LLC | ST FRANCIS ESTATES, LLC | 0 | 0 | $0.00 | 0 | 0 |
| 6 | 04/04/2006 | QCD | Quit Claim Deed | MCCLAIN, JAMES | PICK MINERALES, L.L.C. | | | $0.00 | 0 | 0 |
| 7 | 12/08/2005 | SWD | Statutory Warranty Deed | MASSEY, WILLIAM L & KATHL | MCCLAIN, JAMES | 0 | 0 | $0.00 | 0 | 0 |
| 8 | 03/17/1995 | SWD | Statutory Warranty Deed | BUCKINGHAM, JOHN W/SUSAN | MASSEY, WILLIAM L/KATHLEEN A | 0 | 0 | $112,000.00 | 0 | 0 |
Payout Agreement
| No payout information available.. |