| 1 | 12/03/2025 | QCD | Quit Claim Deed | BETH L JULEN | LEIF A JULEN | | | | 145338 | |
| 2 | 08/31/2023 | SWD | Statutory Warranty Deed | GARY JR & HOPE E ARNOLD | BETH & LEIF JULEN | | | $647,000.00 | 141504 | |
| 3 | 04/17/2020 | SWD | Statutory Warranty Deed | HEATHER E FLANAGAN | GARY JR & HOPE E ARNOLD | | | $465,000.00 | 134285 | |
| 4 | 04/20/2019 | DTH CERT | Death Certificate | JOHN C FLANAGAN | HEATHER E FLANAGAN | | | | 132277 | |
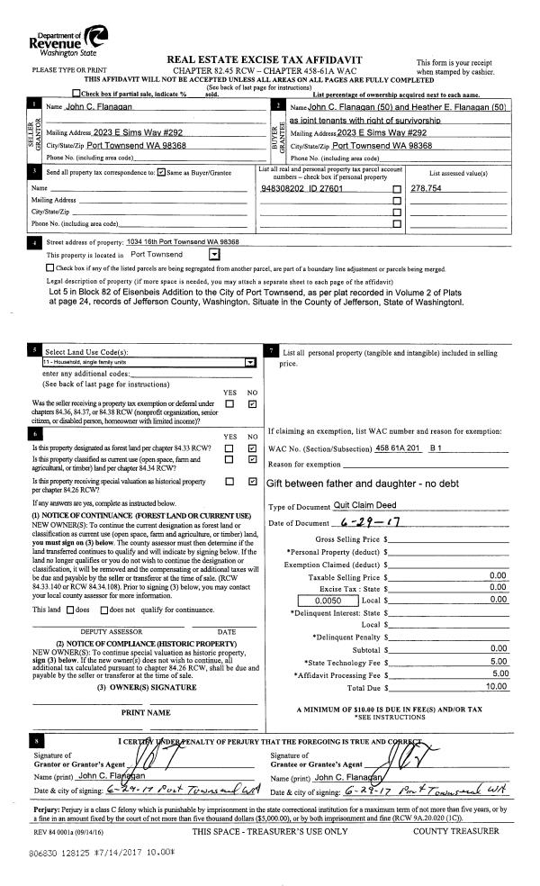
| 5 | 06/29/2017 | QCD | Quit Claim Deed | JOHN C FLANAGAN | JOHN C FLANAGAN | | | | 128125 | |
| 6 | 10/29/2014 | QCD | Quit Claim Deed | | | | | | 122149 | |
| 7 | 03/21/2008 | SWD | Statutory Warranty Deed | BRADY CONSTRUCTION INC, A | FLANAGAN, HEATHER/JOHN | 0 | 0 | $373,000.00 | 110996 | 0 |
| 8 | 04/04/2007 | SWD | Statutory Warranty Deed | MC NEALY, STEVEN D/GAIL M | BRADY CONSTRUCTION INC., A WAS | | | $95,000.00 | 108961 | 0 |
| 9 | 07/17/2006 | BLA | Boundary Line Adjustment | MC NEALY TRSTEE, STEVEN D | MC NEALY TRSTEE, STEVEN D/GAIL | | | $0.00 | 107199 | 0 |
| 10 | 03/27/2006 | SWD | Statutory Warranty Deed | HINTON, DEBRA S | MC NEALY, STEVEN & GAIL/TRSTEE | 0 | 0 | $143,000.00 | 106272 | 0 |
| 11 | 06/20/2001 | QCD | Quit Claim Deed | HINTON, ROBERT H | HINTON, DEBRA S | 0 | 0 | $0.00 | 92425 | 0 |
| 12 | 06/18/2001 | SWD | Statutory Warranty Deed | SAUERLAND, ERNEST | HINTON, DEBRA S | 0 | 0 | $61,800.00 | 92424 | 0 |
|   | |
| 13 | 04/24/2001 | MH | Mobile Home | MONJAR, ESTHER L | SAUERLAND, ERNEST W | 0 | 0 | $0.00 | 92016 | 0 |
| 14 | 10/30/1995 | QCD | Quit Claim Deed | MONJAR, ESTHER | MONJAR, ESTHER/SAUERLAN,D/E | 0 | 0 | $0.00 | 78124 | 0 |