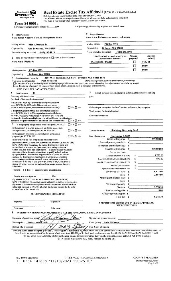
Property
Account |
| Property ID: | 276013 | Abbreviated Legal Description: | ROSECRANS TERRACE LOT 27 |
| Parcel # / Geo ID: | 994300027 | Agent Code: | |
| Type: | Real | | |
| Tax Area: | 0110 - C-50F1E1H2 | Land Use Code | 11 |
| Open Space: | N | DFL | N |
| Historic Property: | N | Remodel Property: | N |
| Multi-Family Redevelopment: | N | | |
| Township: | 30N | Section: | 3 |
| Range: | 1W |
Location |
| Address: | 2257 WEST ROSECRANS CT PORT TOWNSEND, WA 98368 | Mapsco: | 129/007T |
| Neighborhood: | LAUREL SHADE, HASTINGS HEIGHTS & ACREAGE PROXIMITY | Map ID: | |
| Neighborhood CD: | 6115 |
Owner |
| Name: | AMIE RICHARDS | Owner ID: | 109990 |
| Mailing Address: | PO BOX 6393 BELLEVUE, WA 98008-0393 | % Ownership: | 100.0000000000% |
| | | Exemptions: | |
Pay Tax Due
Select the appropriate checkbox next to the year to be paid. Multiple years may be selected.
*Convenience Fee not included
Taxes and Assessment Details
Property Tax Information as of
03/11/2026
Click on "Statement Details" to expand or collapse a tax statement.
* Please enter a valid date ** Please enter a valid date *
Statement Details |
| 2026 | 33661 | STATE - STATE LEVY (SCHOOL) | $634.85 | $634.83 | $0.00 | $0.00 | $0.00 | $1269.68 |
| 2026 | 33661 | COUNTY - COUNTY LEVIES (CE, DD, VET, MH) | $253.81 | $253.80 | $0.00 | $0.00 | $0.00 | $507.61 |
| 2026 | 33661 | CONSERVE - CONSERVATION FUTURES | $7.61 | $7.61 | $0.00 | $0.00 | $0.00 | $15.22 |
| 2026 | 33661 | CITYPT - CITY OF PT | $360.27 | $360.25 | $0.00 | $0.00 | $0.00 | $720.52 |
| 2026 | 33661 | PORTPT - PORT DISTRICT | $102.51 | $102.51 | $0.00 | $0.00 | $0.00 | $205.02 |
| 2026 | 33661 | PUD1 - PUD #1 | $16.51 | $16.51 | $0.00 | $0.00 | $0.00 | $33.02 |
| 2026 | 33661 | HD2 - HOSP DIST #2 | $14.80 | $14.80 | $0.00 | $0.00 | $0.00 | $29.60 |
| 2026 | 33661 | SD50 - SCHOOL DIST #50 | $502.94 | $502.92 | $0.00 | $0.00 | $0.00 | $1005.86 |
| 2026 | 33661 | FD1 - FIRE DISTRICT #1 | $336.10 | $336.10 | $0.00 | $0.00 | $0.00 | $672.20 |
| 2026 | 33661 | EMS1 - FIRE DIST #1 EMS | $129.23 | $129.22 | $0.00 | $0.00 | $0.00 | $258.45 |
| 2026 | 33661 | JCCD - JC Conservation District | $2.55 | $2.55 | $0.00 | $0.00 | $0.00 | $5.10 |
| 2026 | 33661 | NWA - Noxious Weed Assessment | $2.98 | $2.97 | $0.00 | $0.00 | $0.00 | $5.95 |
| 2026 | 33661 | TOTAL: | $2364.16 | $2364.07 | $0.00 | $0.00 | $0.00 | $4728.23 |
|
| 2026 | 33661 | $2364.16 | $2364.07 | $0.00 | $0.00 | $0.00 | $4728.23 |
Statement Details |
| 2025 | 33745 | STATE - STATE LEVY (SCHOOL) | $659.38 | $659.38 | $0.00 | $0.00 | $1318.76 | $0.00 |
| 2025 | 33745 | COUNTY - COUNTY LEVIES (CE, DD, VET, MH) | $259.31 | $259.28 | $0.00 | $0.00 | $518.59 | $0.00 |
| 2025 | 33745 | CONSERVE - CONSERVATION FUTURES | $7.78 | $7.77 | $0.00 | $0.00 | $15.55 | $0.00 |
| 2025 | 33745 | CITYPT - CITY OF PT | $373.94 | $373.94 | $0.00 | $0.00 | $747.88 | $0.00 |
| 2025 | 33745 | PORTPT - PORT DISTRICT | $105.81 | $105.80 | $0.00 | $0.00 | $211.61 | $0.00 |
| 2025 | 33745 | PUD1 - PUD #1 | $16.97 | $16.96 | $0.00 | $0.00 | $33.93 | $0.00 |
| 2025 | 33745 | HD2 - HOSP DIST #2 | $15.13 | $15.13 | $0.00 | $0.00 | $30.26 | $0.00 |
| 2025 | 33745 | SD50 - SCHOOL DIST #50 | $481.91 | $481.88 | $0.00 | $0.00 | $963.79 | $0.00 |
| 2025 | 33745 | FD1 - FIRE DISTRICT #1 | $342.17 | $342.17 | $0.00 | $0.00 | $684.34 | $0.00 |
| 2025 | 33745 | EMS1 - FIRE DIST #1 EMS | $131.61 | $131.61 | $0.00 | $0.00 | $263.22 | $0.00 |
| 2025 | 33745 | JCCD - JC Conservation District | $2.55 | $2.55 | $0.00 | $0.00 | $5.10 | $0.00 |
| 2025 | 33745 | NWA - Noxious Weed Assessment | $2.15 | $2.15 | $0.00 | $0.00 | $4.30 | $0.00 |
| 2025 | 33745 | TOTAL: | $2398.71 | $2398.62 | $0.00 | $0.00 | $4797.33 | $0.00 |
|
| 2025 | 33745 | $2398.71 | $2398.62 | $0.00 | $0.00 | $4797.33 | $0.00 |
Statement Details |
| 2024 | 33813 | STATE - STATE LEVY (SCHOOL) | $547.54 | $547.54 | $0.00 | $0.00 | $1095.08 | $0.00 |
| 2024 | 33813 | COUNTY - COUNTY LEVIES (CE, DD, VET, MH) | $234.31 | $234.29 | $0.00 | $0.00 | $468.60 | $0.00 |
| 2024 | 33813 | CONSERVE - CONSERVATION FUTURES | $7.03 | $7.02 | $0.00 | $0.00 | $14.05 | $0.00 |
| 2024 | 33813 | CITYPT - CITY OF PT | $334.79 | $334.77 | $0.00 | $0.00 | $669.56 | $0.00 |
| 2024 | 33813 | PORTPT - PORT DISTRICT | $96.78 | $96.77 | $0.00 | $0.00 | $193.55 | $0.00 |
| 2024 | 33813 | PUD1 - PUD #1 | $15.39 | $15.39 | $0.00 | $0.00 | $30.78 | $0.00 |
| 2024 | 33813 | HD2 - HOSP DIST #2 | $13.67 | $13.67 | $0.00 | $0.00 | $27.34 | $0.00 |
| 2024 | 33813 | SD50 - SCHOOL DIST #50 | $442.99 | $442.98 | $0.00 | $0.00 | $885.97 | $0.00 |
| 2024 | 33813 | FD1 - FIRE DISTRICT #1 | $309.80 | $309.79 | $0.00 | $0.00 | $619.59 | $0.00 |
| 2024 | 33813 | EMS1 - FIRE DIST #1 EMS | $118.33 | $118.33 | $0.00 | $0.00 | $236.66 | $0.00 |
| 2024 | 33813 | JCCD - JC Conservation District | $2.55 | $2.55 | $0.00 | $0.00 | $5.10 | $0.00 |
| 2024 | 33813 | NWA - Noxious Weed Assessment | $2.15 | $2.15 | $0.00 | $0.00 | $4.30 | $0.00 |
| 2024 | 33813 | TOTAL: | $2125.33 | $2125.25 | $0.00 | $0.00 | $4250.58 | $0.00 |
|
| 2024 | 33813 | $2125.33 | $2125.25 | $0.00 | $0.00 | $4250.58 | $0.00 |
Statement Details |
| 2023 | 33863 | STATE - STATE LEVY (SCHOOL) | $497.69 | $497.68 | $0.00 | $0.00 | $995.37 | $0.00 |
| 2023 | 33863 | COUNTY - COUNTY LEVIES (CE, DD, VET, MH) | $217.19 | $217.17 | $0.00 | $0.00 | $434.36 | $0.00 |
| 2023 | 33863 | CONSERVE - CONSERVATION FUTURES | $6.51 | $6.51 | $0.00 | $0.00 | $13.02 | $0.00 |
| 2023 | 33863 | CITYPT - CITY OF PT | $306.96 | $306.93 | $0.00 | $0.00 | $613.89 | $0.00 |
| 2023 | 33863 | PORTPT - PORT DISTRICT | $91.49 | $91.48 | $0.00 | $0.00 | $182.97 | $0.00 |
| 2023 | 33863 | PUD1 - PUD #1 | $14.40 | $14.39 | $0.00 | $0.00 | $28.79 | $0.00 |
| 2023 | 33863 | HD2 - HOSP DIST #2 | $12.68 | $12.67 | $0.00 | $0.00 | $25.35 | $0.00 |
| 2023 | 33863 | SD50 - SCHOOL DIST #50 | $394.93 | $394.92 | $0.00 | $0.00 | $789.85 | $0.00 |
| 2023 | 33863 | FD1 - FIRE DISTRICT #1 | $178.91 | $178.91 | $0.00 | $0.00 | $357.82 | $0.00 |
| 2023 | 33863 | EMS1 - FIRE DIST #1 EMS | $76.11 | $76.10 | $0.00 | $0.00 | $152.21 | $0.00 |
| 2023 | 33863 | JCCD - JC Conservation District | $2.55 | $2.55 | $0.00 | $0.00 | $5.10 | $0.00 |
| 2023 | 33863 | NWA - Noxious Weed Assessment | $2.15 | $2.15 | $0.00 | $0.00 | $4.30 | $0.00 |
| 2023 | 33863 | TOTAL: | $1801.57 | $1801.46 | $0.00 | $0.00 | $3603.03 | $0.00 |
|
| 2023 | 33863 | $1801.57 | $1801.46 | $0.00 | $0.00 | $3603.03 | $0.00 |
Values
| (+) Improvement Homesite Value: | + | $0 | |
| (+) Improvement Non-Homesite Value: | + | $437,254 | |
| (+) Land Homesite Value: | + | $0 | |
| (+) Land Non-Homesite Value: | + | $115,000 | |
| (+) Curr Use (HS): | + | $0 | $0 |
| (+) Curr Use (NHS): | + | $0 | $0 |
| | | -------------------------- | |
| (=) Market Value: | = | $552,254 | |
| (–) Productivity Loss: | – | $0 | |
| | | -------------------------- | |
| (=) Subtotal: | = | $552,254 | |
| (+) Senior Appraised Value: | + | $0 | |
| (+) Non-Senior Appraised Value: | + | $552,254 | |
| | | -------------------------- | |
| (=) Total Appraised Value: | = | $552,254 | |
| (–) Senior Exemption Loss: | – | $0 | |
| (–) Exemption Loss: | – | $0 | |
| | | -------------------------- | |
| (=) Taxable Value: | = | $552,254 | |
Taxing Jurisdiction
| Owner: | AMIE RICHARDS | | |
| % Ownership: | 100.0000000000% | | |
| Total Value: | $552,254 | | |
| Tax Area: | 0110 - C-50F1E1H2 |
| CE | COUNTY CURRENT EXPENSE | 0.9034619479 | $552,254 | $552,254 | $498.94 | | |
| CNTYDD | DEVELOPMENTAL DISABILITIES | 0.0052121823 | $552,254 | $552,254 | $2.88 | | |
| CNTYVET | VETERANS RELIEF | 0.0052777810 | $552,254 | $552,254 | $2.91 | | |
| MENTAL | MENTAL HEALTH | 0.0052121823 | $552,254 | $552,254 | $2.88 | | |
| PTGEN | CITY OF PT GENERAL | 0.8551967795 | $552,254 | $552,254 | $472.29 | | |
| PTLLL | CITY OF PT - LIBRARY LID LIFT | 0.4010114288 | $552,254 | $552,254 | $221.46 | | |
| PTMVBOND | CITY OF PT MV BOND | 0.0484717981 | $552,254 | $552,254 | $26.77 | | |
| HOSP2CASH | HOSP DIST #2 GENERAL | 0.0536075306 | $552,254 | $552,254 | $29.60 | | |
| SCH50BOND | SCHOOL DIST #50 BOND 2016 | 0.5377451389 | $552,254 | $552,254 | $296.97 | | |
| SCH50CP | SCHOOL DIST #50 CAP PROJ | 0.4573475088 | $552,254 | $552,254 | $252.57 | | |
| SCH50MO | SCHOOL DIST #50 EP & O | 0.8262822886 | $552,254 | $552,254 | $456.32 | | |
| CONSERVE | CONSERVATION FUTURES | 0.0275621078 | $552,254 | $552,254 | $15.22 | | |
| EMS1 | FIRE DIST #1 EMS | 0.4679948282 | $552,254 | $552,254 | $258.45 | | |
| FD1 | FIRE DIST #1 GENERAL | 1.2171942929 | $552,254 | $552,254 | $672.20 | | |
| PORTPT | PORT OF PT GENERAL | 0.1134941229 | $552,254 | $552,254 | $62.68 | | |
| PORTPTIDD | PORT OF PT IDD 2019 | 0.2577346692 | $552,254 | $552,254 | $142.34 | | |
| PUD1 | PUD #1 GENERAL | 0.0597888892 | $552,254 | $552,254 | $33.02 | | |
| STATE | STATE SCHOOL PART 1 | 1.4940692947 | $552,254 | $552,254 | $825.11 | | |
| STATE2 | STATE SCHOOL PART 2 | 0.8050170049 | $552,254 | $552,254 | $444.57 | | |
| | Total Tax Rate: | 8.5416817766 | | | | | |
| | | | | Taxes w/Current Exemptions: | $4,717.18 | | |
| | | | | Taxes w/o Exemptions: | $4,717.18 | | |
Improvement / Building
| Improvement #1: | Residential Bldg | State Code: | 11 | 1419.0 sqft | Value: | $437,254 |
| Bathrooms (#): | 2 (FULL) | Bedrooms (#): | 3 | | Exterior Wall: | SI/ST | Foundation: | 01BASE | | Heating/Cooling: | F/A | Roof Cover: | COMP |
|
| | Type | Description | Class CD | Sub Class CD | Year Built | Area |
| | MA | Main Area | 5- | 2S | 2017 | 657.0 |
| | MA2 | Second Floor Main Area | 5- | 2S | 2017 | 762.0 |
| | GATT | House Attached Garage | 5 | * | 2017 | 330.0 |
| | HCPOR | House Concrete Porch | 5 | * | 2017 | 80.0 |
| | CONCD | Concrete Drive | 4 | * | 2017 | 300.0 |
Sketch
Property Image
Land
| 1 | 6115-1175L | | 0.0000 | 0.00 | 0.00 | 0.00 | 1.00 | $115,000 | $0 |
Roll Value History
| 2026 | N/A | N/A | N/A | N/A | N/A |
| 2025 | $437,254 | $115,000 | $0 | $552,254 | $552,254 |
| 2024 | $434,436 | $115,500 | $0 | $549,936 | $549,936 |
| 2023 | $363,072 | $110,250 | $0 | $473,322 | $473,322 |
| 2022 | $332,816 | $90,000 | $0 | $422,816 | $422,816 |
Deed and Sales History
| 1 | 11/06/2023 | SWD | Statutory Warranty Deed | JAMES A HOLB | AMIE RICHARDS | | | $579,500.00 | 141858 | |
| 2 | 06/28/2017 | SWD | Statutory Warranty Deed | CAFS LLC | JAMES A HOLB | | | $268,500.00 | 128127 | |
| 3 | 08/25/2014 | SWD | Statutory Warranty Deed | ST FRANCIS ESTATES LLC | CAFS LLC | | | $108,000.00 | 0 | |
| 4 | 10/30/2006 | QCD | Quit Claim Deed | PICK MINERALES, LLC, A WA | ST FRANCIS ESTATES, LLC | 0 | 0 | $0.00 | 0 | 0 |
| 5 | 10/30/2006 | QCD | Quit Claim Deed | PICK MINERALES LLC | ST FRANCIS ESTATES, LLC | 0 | 0 | $0.00 | 0 | 0 |
| 6 | 04/04/2006 | QCD | Quit Claim Deed | MCCLAIN, JAMES | PICK MINERALES, L.L.C. | | | $0.00 | 0 | 0 |
| 7 | 12/08/2005 | SWD | Statutory Warranty Deed | MASSEY, WILLIAM L & KATHL | MCCLAIN, JAMES | 0 | 0 | $0.00 | 0 | 0 |
| 8 | 03/17/1995 | SWD | Statutory Warranty Deed | BUCKINGHAM, JOHN W/SUSAN | MASSEY, WILLIAM L/KATHLEEN A | 0 | 0 | $112,000.00 | 0 | 0 |
Payout Agreement
| No payout information available.. |