Property
Account |
| Property ID: | 276029 | Abbreviated Legal Description: | EISENBEIS ADDITION BLK 75 LOTS 7 AND 8(N1/2 OF EA) TR C LLA#138445 |
| Parcel # / Geo ID: | 948307507 | Agent Code: | |
| Type: | Real | | |
| Tax Area: | 0110 - C-50F1E1H2 | Land Use Code | 91 |
| Open Space: | N | DFL | N |
| Historic Property: | N | Remodel Property: | N |
| Multi-Family Redevelopment: | N | | |
| Township: | 30N | Section: | 10 |
| Range: | 1W |
Location |
| Address: | 1041 GISE ST PORT TOWNSEND, WA 98368 | Mapsco: | 027/013F |
| Neighborhood: | EISENBEIS, OC HASTINGS & SUPP, PINKS LESS VICTORIAN VILLAGE | Map ID: | |
| Neighborhood CD: | 6210 |
Owner |
| Name: | JAMES D & KELLEY L WILKENS | Owner ID: | 111485 |
| Mailing Address: | 1041 GISE ST PORT TOWNSEND, WA 98368 | % Ownership: | 100.0000000000% |
| | | Exemptions: | |
Pay Tax Due
Select the appropriate checkbox next to the year to be paid. Multiple years may be selected.
*Convenience Fee not included
Taxes and Assessment Details
Property Tax Information as of
03/10/2026
Click on "Statement Details" to expand or collapse a tax statement.
* Please enter a valid date ** Please enter a valid date *
Statement Details |
| 2026 | 33675 | STATE - STATE LEVY (SCHOOL) | $212.67 | $212.66 | $0.00 | $0.00 | $0.00 | $425.33 |
| 2026 | 33675 | COUNTY - COUNTY LEVIES (CE, DD, VET, MH) | $85.02 | $85.02 | $0.00 | $0.00 | $0.00 | $170.04 |
| 2026 | 33675 | CONSERVE - CONSERVATION FUTURES | $2.55 | $2.55 | $0.00 | $0.00 | $0.00 | $5.10 |
| 2026 | 33675 | CITYPT - CITY OF PT | $120.70 | $120.67 | $0.00 | $0.00 | $0.00 | $241.37 |
| 2026 | 33675 | PORTPT - PORT DISTRICT | $34.34 | $34.34 | $0.00 | $0.00 | $0.00 | $68.68 |
| 2026 | 33675 | PUD1 - PUD #1 | $5.53 | $5.53 | $0.00 | $0.00 | $0.00 | $11.06 |
| 2026 | 33675 | HD2 - HOSP DIST #2 | $4.96 | $4.96 | $0.00 | $0.00 | $0.00 | $9.92 |
| 2026 | 33675 | SD50 - SCHOOL DIST #50 | $168.48 | $168.47 | $0.00 | $0.00 | $0.00 | $336.95 |
| 2026 | 33675 | FD1 - FIRE DISTRICT #1 | $112.59 | $112.59 | $0.00 | $0.00 | $0.00 | $225.18 |
| 2026 | 33675 | EMS1 - FIRE DIST #1 EMS | $43.29 | $43.29 | $0.00 | $0.00 | $0.00 | $86.58 |
| 2026 | 33675 | JCCD - JC Conservation District | $2.53 | $2.53 | $0.00 | $0.00 | $0.00 | $5.06 |
| 2026 | 33675 | NWA - Noxious Weed Assessment | $2.98 | $2.97 | $0.00 | $0.00 | $0.00 | $5.95 |
| 2026 | 33675 | WAT - Clean Water District | $13.00 | $13.00 | $0.00 | $0.00 | $0.00 | $26.00 |
| 2026 | 33675 | TOTAL: | $808.64 | $808.58 | $0.00 | $0.00 | $0.00 | $1617.22 |
|
| 2026 | 33675 | $808.64 | $808.58 | $0.00 | $0.00 | $0.00 | $1617.22 |
Statement Details |
| 2025 | 33759 | STATE - STATE LEVY (SCHOOL) | $214.03 | $214.02 | $0.00 | $0.00 | $428.05 | $0.00 |
| 2025 | 33759 | COUNTY - COUNTY LEVIES (CE, DD, VET, MH) | $84.17 | $84.15 | $0.00 | $0.00 | $168.32 | $0.00 |
| 2025 | 33759 | CONSERVE - CONSERVATION FUTURES | $2.53 | $2.52 | $0.00 | $0.00 | $5.05 | $0.00 |
| 2025 | 33759 | CITYPT - CITY OF PT | $121.38 | $121.36 | $0.00 | $0.00 | $242.74 | $0.00 |
| 2025 | 33759 | PORTPT - PORT DISTRICT | $34.34 | $34.34 | $0.00 | $0.00 | $68.68 | $0.00 |
| 2025 | 33759 | PUD1 - PUD #1 | $5.51 | $5.50 | $0.00 | $0.00 | $11.01 | $0.00 |
| 2025 | 33759 | HD2 - HOSP DIST #2 | $4.91 | $4.91 | $0.00 | $0.00 | $9.82 | $0.00 |
| 2025 | 33759 | SD50 - SCHOOL DIST #50 | $156.42 | $156.41 | $0.00 | $0.00 | $312.83 | $0.00 |
| 2025 | 33759 | FD1 - FIRE DISTRICT #1 | $111.07 | $111.06 | $0.00 | $0.00 | $222.13 | $0.00 |
| 2025 | 33759 | EMS1 - FIRE DIST #1 EMS | $42.72 | $42.72 | $0.00 | $0.00 | $85.44 | $0.00 |
| 2025 | 33759 | JCCD - JC Conservation District | $2.53 | $2.53 | $0.00 | $0.00 | $5.06 | $0.00 |
| 2025 | 33759 | NWA - Noxious Weed Assessment | $2.15 | $2.15 | $0.00 | $0.00 | $4.30 | $0.00 |
| 2025 | 33759 | WAT - Clean Water District | $13.00 | $13.00 | $0.00 | $0.00 | $26.00 | $0.00 |
| 2025 | 33759 | TOTAL: | $794.76 | $794.67 | $0.00 | $0.00 | $1589.43 | $0.00 |
|
| 2025 | 33759 | $794.76 | $794.67 | $0.00 | $0.00 | $1589.43 | $0.00 |
Statement Details |
| 2024 | 33827 | STATE - STATE LEVY (SCHOOL) | $231.37 | $231.35 | $0.00 | $0.00 | $462.72 | $0.00 |
| 2024 | 33827 | COUNTY - COUNTY LEVIES (CE, DD, VET, MH) | $99.01 | $98.99 | $0.00 | $0.00 | $198.00 | $0.00 |
| 2024 | 33827 | CONSERVE - CONSERVATION FUTURES | $2.97 | $2.97 | $0.00 | $0.00 | $5.94 | $0.00 |
| 2024 | 33827 | CITYPT - CITY OF PT | $141.47 | $141.45 | $0.00 | $0.00 | $282.92 | $0.00 |
| 2024 | 33827 | PORTPT - PORT DISTRICT | $40.90 | $40.88 | $0.00 | $0.00 | $81.78 | $0.00 |
| 2024 | 33827 | PUD1 - PUD #1 | $6.51 | $6.50 | $0.00 | $0.00 | $13.01 | $0.00 |
| 2024 | 33827 | HD2 - HOSP DIST #2 | $5.78 | $5.77 | $0.00 | $0.00 | $11.55 | $0.00 |
| 2024 | 33827 | SD50 - SCHOOL DIST #50 | $187.19 | $187.16 | $0.00 | $0.00 | $374.35 | $0.00 |
| 2024 | 33827 | FD1 - FIRE DISTRICT #1 | $130.91 | $130.90 | $0.00 | $0.00 | $261.81 | $0.00 |
| 2024 | 33827 | EMS1 - FIRE DIST #1 EMS | $50.00 | $50.00 | $0.00 | $0.00 | $100.00 | $0.00 |
| 2024 | 33827 | JCCD - JC Conservation District | $2.53 | $2.53 | $0.00 | $0.00 | $5.06 | $0.00 |
| 2024 | 33827 | NWA - Noxious Weed Assessment | $2.15 | $2.15 | $0.00 | $0.00 | $4.30 | $0.00 |
| 2024 | 33827 | WAT - Clean Water District | $12.50 | $12.50 | $0.00 | $0.00 | $25.00 | $0.00 |
| 2024 | 33827 | TOTAL: | $913.29 | $913.15 | $0.00 | $0.00 | $1826.44 | $0.00 |
|
| 2024 | 33827 | $913.29 | $913.15 | $0.00 | $0.00 | $1826.44 | $0.00 |
Statement Details |
| 2023 | 33877 | STATE - STATE LEVY (SCHOOL) | $235.42 | $235.41 | $0.00 | $0.00 | $470.83 | $0.00 |
| 2023 | 33877 | COUNTY - COUNTY LEVIES (CE, DD, VET, MH) | $102.74 | $102.72 | $0.00 | $0.00 | $205.46 | $0.00 |
| 2023 | 33877 | CONSERVE - CONSERVATION FUTURES | $3.08 | $3.08 | $0.00 | $0.00 | $6.16 | $0.00 |
| 2023 | 33877 | CITYPT - CITY OF PT | $145.19 | $145.18 | $0.00 | $0.00 | $290.37 | $0.00 |
| 2023 | 33877 | PORTPT - PORT DISTRICT | $43.28 | $43.27 | $0.00 | $0.00 | $86.55 | $0.00 |
| 2023 | 33877 | PUD1 - PUD #1 | $6.81 | $6.81 | $0.00 | $0.00 | $13.62 | $0.00 |
| 2023 | 33877 | HD2 - HOSP DIST #2 | $6.00 | $5.99 | $0.00 | $0.00 | $11.99 | $0.00 |
| 2023 | 33877 | SD50 - SCHOOL DIST #50 | $186.81 | $186.80 | $0.00 | $0.00 | $373.61 | $0.00 |
| 2023 | 33877 | FD1 - FIRE DISTRICT #1 | $84.63 | $84.63 | $0.00 | $0.00 | $169.26 | $0.00 |
| 2023 | 33877 | EMS1 - FIRE DIST #1 EMS | $36.00 | $36.00 | $0.00 | $0.00 | $72.00 | $0.00 |
| 2023 | 33877 | JCCD - JC Conservation District | $2.53 | $2.53 | $0.00 | $0.00 | $5.06 | $0.00 |
| 2023 | 33877 | NWA - Noxious Weed Assessment | $2.15 | $2.15 | $0.00 | $0.00 | $4.30 | $0.00 |
| 2023 | 33877 | WAT - Clean Water District | $12.00 | $12.00 | $0.00 | $0.00 | $24.00 | $0.00 |
| 2023 | 33877 | TOTAL: | $866.64 | $866.57 | $0.00 | $0.00 | $1733.21 | $0.00 |
|
| 2023 | 33877 | $866.64 | $866.57 | $0.00 | $0.00 | $1733.21 | $0.00 |
Values
| (+) Improvement Homesite Value: | + | $0 | |
| (+) Improvement Non-Homesite Value: | + | $0 | |
| (+) Land Homesite Value: | + | $0 | |
| (+) Land Non-Homesite Value: | + | $185,000 | |
| (+) Curr Use (HS): | + | $0 | $0 |
| (+) Curr Use (NHS): | + | $0 | $0 |
| | | -------------------------- | |
| (=) Market Value: | = | $185,000 | |
| (–) Productivity Loss: | – | $0 | |
| | | -------------------------- | |
| (=) Subtotal: | = | $185,000 | |
| (+) Senior Appraised Value: | + | $0 | |
| (+) Non-Senior Appraised Value: | + | $185,000 | |
| | | -------------------------- | |
| (=) Total Appraised Value: | = | $185,000 | |
| (–) Senior Exemption Loss: | – | $0 | |
| (–) Exemption Loss: | – | $0 | |
| | | -------------------------- | |
| (=) Taxable Value: | = | $185,000 | |
Taxing Jurisdiction
| Owner: | JAMES D & KELLEY L WILKENS | | |
| % Ownership: | 100.0000000000% | | |
| Total Value: | $185,000 | | |
| Tax Area: | 0110 - C-50F1E1H2 |
| CE | COUNTY CURRENT EXPENSE | 0.9034619479 | $185,000 | $185,000 | $167.14 | | |
| CNTYDD | DEVELOPMENTAL DISABILITIES | 0.0052121823 | $185,000 | $185,000 | $0.96 | | |
| CNTYVET | VETERANS RELIEF | 0.0052777810 | $185,000 | $185,000 | $0.98 | | |
| MENTAL | MENTAL HEALTH | 0.0052121823 | $185,000 | $185,000 | $0.96 | | |
| PTGEN | CITY OF PT GENERAL | 0.8551967795 | $185,000 | $185,000 | $158.21 | | |
| PTLLL | CITY OF PT - LIBRARY LID LIFT | 0.4010114288 | $185,000 | $185,000 | $74.19 | | |
| PTMVBOND | CITY OF PT MV BOND | 0.0484717981 | $185,000 | $185,000 | $8.97 | | |
| HOSP2CASH | HOSP DIST #2 GENERAL | 0.0536075306 | $185,000 | $185,000 | $9.92 | | |
| SCH50BOND | SCHOOL DIST #50 BOND 2016 | 0.5377451389 | $185,000 | $185,000 | $99.48 | | |
| SCH50CP | SCHOOL DIST #50 CAP PROJ | 0.4573475088 | $185,000 | $185,000 | $84.61 | | |
| SCH50MO | SCHOOL DIST #50 EP & O | 0.8262822886 | $185,000 | $185,000 | $152.86 | | |
| CONSERVE | CONSERVATION FUTURES | 0.0275621078 | $185,000 | $185,000 | $5.10 | | |
| EMS1 | FIRE DIST #1 EMS | 0.4679948282 | $185,000 | $185,000 | $86.58 | | |
| FD1 | FIRE DIST #1 GENERAL | 1.2171942929 | $185,000 | $185,000 | $225.18 | | |
| PORTPT | PORT OF PT GENERAL | 0.1134941229 | $185,000 | $185,000 | $21.00 | | |
| PORTPTIDD | PORT OF PT IDD 2019 | 0.2577346692 | $185,000 | $185,000 | $47.68 | | |
| PUD1 | PUD #1 GENERAL | 0.0597888892 | $185,000 | $185,000 | $11.06 | | |
| STATE | STATE SCHOOL PART 1 | 1.4940692947 | $185,000 | $185,000 | $276.40 | | |
| STATE2 | STATE SCHOOL PART 2 | 0.8050170049 | $185,000 | $185,000 | $148.93 | | |
| | Total Tax Rate: | 8.5416817766 | | | | | |
| | | | | Taxes w/Current Exemptions: | $1,580.21 | | |
| | | | | Taxes w/o Exemptions: | $1,580.21 | | |
Improvement / Building
Sketch
| No sketches available for this property. |
Property Image
Land
| 1 | 6210-1165L | | 0.0000 | 0.00 | 0.00 | 0.00 | 1.00 | $185,000 | $0 |
Roll Value History
| 2026 | N/A | N/A | N/A | N/A | N/A |
| 2025 | $0 | $185,000 | $0 | $185,000 | $185,000 |
| 2024 | $0 | $178,500 | $0 | $178,500 | $178,500 |
| 2023 | $0 | $200,000 | $0 | $200,000 | $200,000 |
| 2022 | $0 | $200,000 | $0 | $200,000 | $200,000 |
Deed and Sales History
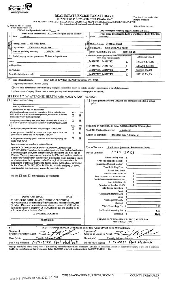
| 1 | 09/12/2024 | SWD | Statutory Warranty Deed | WADE HILDA INVESTMENTS LLC | JAMES D & KELLEY L WILKENS | | | $190,000.00 | 143241 | |
| 2 | 10/06/2021 | SWD | Statutory Warranty Deed | FROGGY TURF LLC | WADE HILDA INVESTMENTS LLC | | | $453,600.00 | 137810 | |
|   | |
| 3 | 01/15/2019 | SWD | Statutory Warranty Deed | LIDA K SANDQUIST | FROGGY TURF LLC | | | $226,800.00 | 131723 | |
|   | |
Payout Agreement
| No payout information available.. |