Property
Account |
| Property ID: | 276086 | Abbreviated Legal Description: | EISENBEIS ADDITION BLK 88 LOT 8 CITY DIV LETTER LUP16-057 |
| Parcel # / Geo ID: | 948308808 | Agent Code: | |
| Type: | Real | | |
| Tax Area: | 0110 - C-50F1E1H2 | Land Use Code | 11 |
| Open Space: | N | DFL | N |
| Historic Property: | N | Remodel Property: | N |
| Multi-Family Redevelopment: | N | | |
| Township: | 30N | Section: | 3 |
| Range: | 1W |
Location |
| Address: | 1108 21ST ST PORT TOWNSEND, WA 98368 | Mapsco: | 028/029A |
| Neighborhood: | EISENBEIS, OC HASTINGS & SUPP, PINKS LESS VICTORIAN VILLAGE | Map ID: | |
| Neighborhood CD: | 6210 |
Owner |
| Name: | JOEL H S & RACHEL A CARBEN | Owner ID: | 102289 |
| Mailing Address: | 1108 21ST ST PORT TOWNSEND, WA 98368-7517 | % Ownership: | 100.0000000000% |
| | | Exemptions: | |
Pay Tax Due
Select the appropriate checkbox next to the year to be paid. Multiple years may be selected.
*Convenience Fee not included
Taxes and Assessment Details
Property Tax Information as of
03/11/2026
Click on "Statement Details" to expand or collapse a tax statement.
* Please enter a valid date ** Please enter a valid date *
Statement Details |
| 2026 | 33710 | STATE - STATE LEVY (SCHOOL) | $630.85 | $630.85 | $0.00 | $0.00 | $0.00 | $1261.70 |
| 2026 | 33710 | COUNTY - COUNTY LEVIES (CE, DD, VET, MH) | $252.21 | $252.21 | $0.00 | $0.00 | $0.00 | $504.42 |
| 2026 | 33710 | CONSERVE - CONSERVATION FUTURES | $7.57 | $7.56 | $0.00 | $0.00 | $0.00 | $15.13 |
| 2026 | 33710 | CITYPT - CITY OF PT | $358.00 | $357.98 | $0.00 | $0.00 | $0.00 | $715.98 |
| 2026 | 33710 | PORTPT - PORT DISTRICT | $101.86 | $101.86 | $0.00 | $0.00 | $0.00 | $203.72 |
| 2026 | 33710 | PUD1 - PUD #1 | $16.41 | $16.40 | $0.00 | $0.00 | $0.00 | $32.81 |
| 2026 | 33710 | HD2 - HOSP DIST #2 | $14.71 | $14.71 | $0.00 | $0.00 | $0.00 | $29.42 |
| 2026 | 33710 | SD50 - SCHOOL DIST #50 | $499.77 | $499.76 | $0.00 | $0.00 | $0.00 | $999.53 |
| 2026 | 33710 | FD1 - FIRE DISTRICT #1 | $333.99 | $333.98 | $0.00 | $0.00 | $0.00 | $667.97 |
| 2026 | 33710 | EMS1 - FIRE DIST #1 EMS | $128.42 | $128.41 | $0.00 | $0.00 | $0.00 | $256.83 |
| 2026 | 33710 | JCCD - JC Conservation District | $2.55 | $2.55 | $0.00 | $0.00 | $0.00 | $5.10 |
| 2026 | 33710 | NWA - Noxious Weed Assessment | $2.98 | $2.97 | $0.00 | $0.00 | $0.00 | $5.95 |
| 2026 | 33710 | TOTAL: | $2349.32 | $2349.24 | $0.00 | $0.00 | $0.00 | $4698.56 |
|
| 2026 | 33710 | $2349.32 | $2349.24 | $0.00 | $0.00 | $0.00 | $4698.56 |
Statement Details |
| 2025 | 33798 | STATE - STATE LEVY (SCHOOL) | $586.22 | $586.21 | $0.00 | $0.00 | $1172.43 | $0.00 |
| 2025 | 33798 | COUNTY - COUNTY LEVIES (CE, DD, VET, MH) | $230.54 | $230.51 | $0.00 | $0.00 | $461.05 | $0.00 |
| 2025 | 33798 | CONSERVE - CONSERVATION FUTURES | $6.92 | $6.91 | $0.00 | $0.00 | $13.83 | $0.00 |
| 2025 | 33798 | CITYPT - CITY OF PT | $332.44 | $332.44 | $0.00 | $0.00 | $664.88 | $0.00 |
| 2025 | 33798 | PORTPT - PORT DISTRICT | $94.08 | $94.06 | $0.00 | $0.00 | $188.14 | $0.00 |
| 2025 | 33798 | PUD1 - PUD #1 | $15.09 | $15.08 | $0.00 | $0.00 | $30.17 | $0.00 |
| 2025 | 33798 | HD2 - HOSP DIST #2 | $13.45 | $13.45 | $0.00 | $0.00 | $26.90 | $0.00 |
| 2025 | 33798 | SD50 - SCHOOL DIST #50 | $428.43 | $428.41 | $0.00 | $0.00 | $856.84 | $0.00 |
| 2025 | 33798 | FD1 - FIRE DISTRICT #1 | $304.20 | $304.20 | $0.00 | $0.00 | $608.40 | $0.00 |
| 2025 | 33798 | EMS1 - FIRE DIST #1 EMS | $117.01 | $117.00 | $0.00 | $0.00 | $234.01 | $0.00 |
| 2025 | 33798 | JCCD - JC Conservation District | $2.55 | $2.55 | $0.00 | $0.00 | $5.10 | $0.00 |
| 2025 | 33798 | NWA - Noxious Weed Assessment | $2.15 | $2.15 | $0.00 | $0.00 | $4.30 | $0.00 |
| 2025 | 33798 | TOTAL: | $2133.08 | $2132.97 | $0.00 | $0.00 | $4266.05 | $0.00 |
|
| 2025 | 33798 | $2133.08 | $2132.97 | $0.00 | $0.00 | $4266.05 | $0.00 |
Statement Details |
| 2024 | 33864 | STATE - STATE LEVY (SCHOOL) | $534.50 | $534.49 | $0.00 | $0.00 | $1068.99 | $0.00 |
| 2024 | 33864 | COUNTY - COUNTY LEVIES (CE, DD, VET, MH) | $228.72 | $228.71 | $0.00 | $0.00 | $457.43 | $0.00 |
| 2024 | 33864 | CONSERVE - CONSERVATION FUTURES | $6.86 | $6.86 | $0.00 | $0.00 | $13.72 | $0.00 |
| 2024 | 33864 | CITYPT - CITY OF PT | $326.81 | $326.80 | $0.00 | $0.00 | $653.61 | $0.00 |
| 2024 | 33864 | PORTPT - PORT DISTRICT | $94.47 | $94.47 | $0.00 | $0.00 | $188.94 | $0.00 |
| 2024 | 33864 | PUD1 - PUD #1 | $15.03 | $15.02 | $0.00 | $0.00 | $30.05 | $0.00 |
| 2024 | 33864 | HD2 - HOSP DIST #2 | $13.35 | $13.34 | $0.00 | $0.00 | $26.69 | $0.00 |
| 2024 | 33864 | SD50 - SCHOOL DIST #50 | $432.44 | $432.43 | $0.00 | $0.00 | $864.87 | $0.00 |
| 2024 | 33864 | FD1 - FIRE DISTRICT #1 | $302.42 | $302.41 | $0.00 | $0.00 | $604.83 | $0.00 |
| 2024 | 33864 | EMS1 - FIRE DIST #1 EMS | $115.51 | $115.51 | $0.00 | $0.00 | $231.02 | $0.00 |
| 2024 | 33864 | JCCD - JC Conservation District | $2.55 | $2.55 | $0.00 | $0.00 | $5.10 | $0.00 |
| 2024 | 33864 | NWA - Noxious Weed Assessment | $2.15 | $2.15 | $0.00 | $0.00 | $4.30 | $0.00 |
| 2024 | 33864 | TOTAL: | $2074.81 | $2074.74 | $0.00 | $0.00 | $4149.55 | $0.00 |
|
| 2024 | 33864 | $2074.81 | $2074.74 | $0.00 | $0.00 | $4149.55 | $0.00 |
Statement Details |
| 2023 | 33916 | STATE - STATE LEVY (SCHOOL) | $537.99 | $537.98 | $0.00 | $0.00 | $1075.97 | $0.00 |
| 2023 | 33916 | COUNTY - COUNTY LEVIES (CE, DD, VET, MH) | $234.78 | $234.75 | $0.00 | $0.00 | $469.53 | $0.00 |
| 2023 | 33916 | CONSERVE - CONSERVATION FUTURES | $7.04 | $7.04 | $0.00 | $0.00 | $14.08 | $0.00 |
| 2023 | 33916 | CITYPT - CITY OF PT | $331.80 | $331.78 | $0.00 | $0.00 | $663.58 | $0.00 |
| 2023 | 33916 | PORTPT - PORT DISTRICT | $98.90 | $98.88 | $0.00 | $0.00 | $197.78 | $0.00 |
| 2023 | 33916 | PUD1 - PUD #1 | $15.56 | $15.56 | $0.00 | $0.00 | $31.12 | $0.00 |
| 2023 | 33916 | HD2 - HOSP DIST #2 | $13.70 | $13.70 | $0.00 | $0.00 | $27.40 | $0.00 |
| 2023 | 33916 | SD50 - SCHOOL DIST #50 | $426.90 | $426.90 | $0.00 | $0.00 | $853.80 | $0.00 |
| 2023 | 33916 | FD1 - FIRE DISTRICT #1 | $193.40 | $193.39 | $0.00 | $0.00 | $386.79 | $0.00 |
| 2023 | 33916 | EMS1 - FIRE DIST #1 EMS | $82.27 | $82.26 | $0.00 | $0.00 | $164.53 | $0.00 |
| 2023 | 33916 | JCCD - JC Conservation District | $2.55 | $2.55 | $0.00 | $0.00 | $5.10 | $0.00 |
| 2023 | 33916 | NWA - Noxious Weed Assessment | $2.15 | $2.15 | $0.00 | $0.00 | $4.30 | $0.00 |
| 2023 | 33916 | TOTAL: | $1947.04 | $1946.94 | $0.00 | $0.00 | $3893.98 | $0.00 |
|
| 2023 | 33916 | $1947.04 | $1946.94 | $0.00 | $0.00 | $3893.98 | $0.00 |
Values
| (+) Improvement Homesite Value: | + | $0 | |
| (+) Improvement Non-Homesite Value: | + | $413,780 | |
| (+) Land Homesite Value: | + | $0 | |
| (+) Land Non-Homesite Value: | + | $135,000 | |
| (+) Curr Use (HS): | + | $0 | $0 |
| (+) Curr Use (NHS): | + | $0 | $0 |
| | | -------------------------- | |
| (=) Market Value: | = | $548,780 | |
| (–) Productivity Loss: | – | $0 | |
| | | -------------------------- | |
| (=) Subtotal: | = | $548,780 | |
| (+) Senior Appraised Value: | + | $0 | |
| (+) Non-Senior Appraised Value: | + | $548,780 | |
| | | -------------------------- | |
| (=) Total Appraised Value: | = | $548,780 | |
| (–) Senior Exemption Loss: | – | $0 | |
| (–) Exemption Loss: | – | $0 | |
| | | -------------------------- | |
| (=) Taxable Value: | = | $548,780 | |
Taxing Jurisdiction
| Owner: | JOEL H S & RACHEL A CARBEN | | |
| % Ownership: | 100.0000000000% | | |
| Total Value: | $548,780 | | |
| Tax Area: | 0110 - C-50F1E1H2 |
| CE | COUNTY CURRENT EXPENSE | 0.9034619479 | $548,780 | $548,780 | $495.80 | | |
| CNTYDD | DEVELOPMENTAL DISABILITIES | 0.0052121823 | $548,780 | $548,780 | $2.86 | | |
| CNTYVET | VETERANS RELIEF | 0.0052777810 | $548,780 | $548,780 | $2.90 | | |
| MENTAL | MENTAL HEALTH | 0.0052121823 | $548,780 | $548,780 | $2.86 | | |
| PTGEN | CITY OF PT GENERAL | 0.8551967795 | $548,780 | $548,780 | $469.31 | | |
| PTLLL | CITY OF PT - LIBRARY LID LIFT | 0.4010114288 | $548,780 | $548,780 | $220.07 | | |
| PTMVBOND | CITY OF PT MV BOND | 0.0484717981 | $548,780 | $548,780 | $26.60 | | |
| HOSP2CASH | HOSP DIST #2 GENERAL | 0.0536075306 | $548,780 | $548,780 | $29.42 | | |
| SCH50BOND | SCHOOL DIST #50 BOND 2016 | 0.5377451389 | $548,780 | $548,780 | $295.10 | | |
| SCH50CP | SCHOOL DIST #50 CAP PROJ | 0.4573475088 | $548,780 | $548,780 | $250.98 | | |
| SCH50MO | SCHOOL DIST #50 EP & O | 0.8262822886 | $548,780 | $548,780 | $453.45 | | |
| CONSERVE | CONSERVATION FUTURES | 0.0275621078 | $548,780 | $548,780 | $15.13 | | |
| EMS1 | FIRE DIST #1 EMS | 0.4679948282 | $548,780 | $548,780 | $256.83 | | |
| FD1 | FIRE DIST #1 GENERAL | 1.2171942929 | $548,780 | $548,780 | $667.97 | | |
| PORTPT | PORT OF PT GENERAL | 0.1134941229 | $548,780 | $548,780 | $62.28 | | |
| PORTPTIDD | PORT OF PT IDD 2019 | 0.2577346692 | $548,780 | $548,780 | $141.44 | | |
| PUD1 | PUD #1 GENERAL | 0.0597888892 | $548,780 | $548,780 | $32.81 | | |
| STATE | STATE SCHOOL PART 1 | 1.4940692947 | $548,780 | $548,780 | $819.92 | | |
| STATE2 | STATE SCHOOL PART 2 | 0.8050170049 | $548,780 | $548,780 | $441.78 | | |
| | Total Tax Rate: | 8.5416817766 | | | | | |
| | | | | Taxes w/Current Exemptions: | $4,687.51 | | |
| | | | | Taxes w/o Exemptions: | $4,687.51 | | |
Improvement / Building
| Improvement #1: | Residential Bldg | State Code: | 11 | 768.0 sqft | Value: | $413,780 |
| Bathrooms (#): | 2 (FULL) | Bedrooms (#): | 3 | | Exterior Wall: | MASON | Floor Construction: | FRAME | | Foundation: | CONPR | Heating/Cooling: | ELBB | | Roof Cover: | COMP |   |   |
|
| | Type | Description | Class CD | Sub Class CD | Year Built | Area |
| | MA | Main Area | 5- | 1S | 1920 | 768.0 |
| | BSMTF | House basement finished | 5 | 1S | 2017 | 752.0 |
| | HWPOR | House Wood Porch | 5 | 1S | 2017 | 54.0 |
| | HDECK | House Deck | 5 | 1S | 2017 | 150.0 |
Sketch
Property Image
Land
| 1 | 6210-1185L | | 0.0000 | 0.00 | 0.00 | 0.00 | 1.00 | $135,000 | $0 |
Roll Value History
| 2026 | N/A | N/A | N/A | N/A | N/A |
| 2025 | $413,780 | $135,000 | $0 | $548,780 | $548,780 |
| 2024 | $341,913 | $147,000 | $0 | $488,913 | $488,913 |
| 2023 | $327,048 | $135,000 | $0 | $462,048 | $462,048 |
| 2022 | $327,048 | $130,000 | $0 | $457,048 | $457,048 |
Deed and Sales History
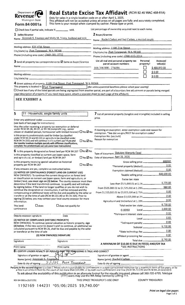
| 1 | 04/28/2025 | SWD | Statutory Warranty Deed | JEREMIAH FOUNTAIN & MOLLY VIEIRA | JOEL H S & RACHEL A CARBEN | | | $600,000.00 | 144231 | |
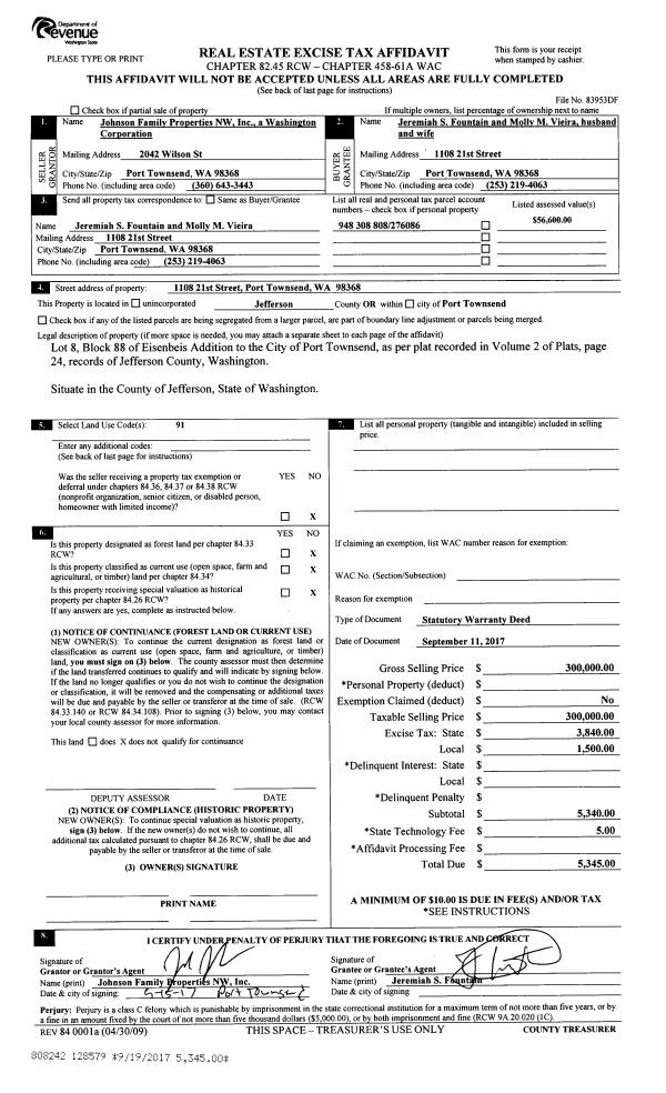
| 2 | 09/11/2017 | SWD | Statutory Warranty Deed | JOHNSON FAMILY PROPERTY NW INC | JEREMIAH FOUNTAIN & MOLLY VIEIRA | | | $300,000.00 | 128579 | |
| 3 | 05/25/2016 | TRTD | Trust Transfer Deed | | JOHNSON FAMILY PROPERTY NW INC | | | $98,000.00 | 125493 | |
|   | |
| 4 | 06/23/1993 | QCD | Quit Claim Deed | FINK, LYLE G/PEARL L | LYLE G/PEARL L FINK LIV TRUST | 0 | 0 | $0.00 | 71486 | 0 |
Payout Agreement
| No payout information available.. |