Property
Account |
| Property ID: | 276105 | Abbreviated Legal Description: | EISENBEIS ADDITION BLK 61 LOTS 5 & 6(W16.99' OF EA)TGTH W/ALL OF VAC GISES ST ADJ BND BY LLA#136386 |
| Parcel # / Geo ID: | 948306105 | Agent Code: | |
| Type: | Real | | |
| Tax Area: | 0110 - C-50F1E1H2 | Land Use Code | 11 |
| Open Space: | N | DFL | N |
| Historic Property: | N | Remodel Property: | N |
| Multi-Family Redevelopment: | N | | |
| Township: | 30N | Section: | 10 |
| Range: | 1W |
Location |
| Address: | 892 19TH ST PORT TOWNSEND, WA 98368 | Mapsco: | 026/0118 |
| Neighborhood: | EISENBEIS, OC HASTINGS & SUPP, PINKS LESS VICTORIAN VILLAGE | Map ID: | |
| Neighborhood CD: | 6210 |
Owner |
| Name: | MICHELLE SCHUMAN LIVING TRUST | Owner ID: | 107624 |
| Mailing Address: | MICHELLE SCHUMAN TRUSTEE 892 19TH ST PORT TOWNSEND, WA 98368 | % Ownership: | 100.0000000000% |
| | | Exemptions: | |
Pay Tax Due
Select the appropriate checkbox next to the year to be paid. Multiple years may be selected.
*Convenience Fee not included
Taxes and Assessment Details
Property Tax Information as of
03/10/2026
Click on "Statement Details" to expand or collapse a tax statement.
* Please enter a valid date ** Please enter a valid date *
Statement Details |
| 2026 | 33728 | STATE - STATE LEVY (SCHOOL) | $730.92 | $730.92 | $0.00 | $0.00 | $0.00 | $1461.84 |
| 2026 | 33728 | COUNTY - COUNTY LEVIES (CE, DD, VET, MH) | $292.23 | $292.20 | $0.00 | $0.00 | $0.00 | $584.43 |
| 2026 | 33728 | CONSERVE - CONSERVATION FUTURES | $8.76 | $8.76 | $0.00 | $0.00 | $0.00 | $17.52 |
| 2026 | 33728 | CITYPT - CITY OF PT | $414.78 | $414.78 | $0.00 | $0.00 | $0.00 | $829.56 |
| 2026 | 33728 | PORTPT - PORT DISTRICT | $118.02 | $118.02 | $0.00 | $0.00 | $0.00 | $236.04 |
| 2026 | 33728 | PUD1 - PUD #1 | $19.01 | $19.01 | $0.00 | $0.00 | $0.00 | $38.02 |
| 2026 | 33728 | HD2 - HOSP DIST #2 | $17.05 | $17.04 | $0.00 | $0.00 | $0.00 | $34.09 |
| 2026 | 33728 | SD50 - SCHOOL DIST #50 | $579.05 | $579.05 | $0.00 | $0.00 | $0.00 | $1158.10 |
| 2026 | 33728 | FD1 - FIRE DISTRICT #1 | $386.97 | $386.96 | $0.00 | $0.00 | $0.00 | $773.93 |
| 2026 | 33728 | EMS1 - FIRE DIST #1 EMS | $148.79 | $148.78 | $0.00 | $0.00 | $0.00 | $297.57 |
| 2026 | 33728 | JCCD - JC Conservation District | $2.55 | $2.55 | $0.00 | $0.00 | $0.00 | $5.10 |
| 2026 | 33728 | NWA - Noxious Weed Assessment | $2.98 | $2.97 | $0.00 | $0.00 | $0.00 | $5.95 |
| 2026 | 33728 | TOTAL: | $2721.11 | $2721.04 | $0.00 | $0.00 | $0.00 | $5442.15 |
|
| 2026 | 33728 | $2721.11 | $2721.04 | $0.00 | $0.00 | $0.00 | $5442.15 |
Statement Details |
| 2025 | 33816 | STATE - STATE LEVY (SCHOOL) | $764.69 | $764.68 | $0.00 | $0.00 | $1529.37 | $0.00 |
| 2025 | 33816 | COUNTY - COUNTY LEVIES (CE, DD, VET, MH) | $300.71 | $300.70 | $0.00 | $0.00 | $601.41 | $0.00 |
| 2025 | 33816 | CONSERVE - CONSERVATION FUTURES | $9.02 | $9.01 | $0.00 | $0.00 | $18.03 | $0.00 |
| 2025 | 33816 | CITYPT - CITY OF PT | $433.66 | $433.64 | $0.00 | $0.00 | $867.30 | $0.00 |
| 2025 | 33816 | PORTPT - PORT DISTRICT | $122.71 | $122.70 | $0.00 | $0.00 | $245.41 | $0.00 |
| 2025 | 33816 | PUD1 - PUD #1 | $19.68 | $19.67 | $0.00 | $0.00 | $39.35 | $0.00 |
| 2025 | 33816 | HD2 - HOSP DIST #2 | $17.55 | $17.54 | $0.00 | $0.00 | $35.09 | $0.00 |
| 2025 | 33816 | SD50 - SCHOOL DIST #50 | $558.86 | $558.85 | $0.00 | $0.00 | $1117.71 | $0.00 |
| 2025 | 33816 | FD1 - FIRE DISTRICT #1 | $396.82 | $396.81 | $0.00 | $0.00 | $793.63 | $0.00 |
| 2025 | 33816 | EMS1 - FIRE DIST #1 EMS | $152.63 | $152.62 | $0.00 | $0.00 | $305.25 | $0.00 |
| 2025 | 33816 | JCCD - JC Conservation District | $2.55 | $2.55 | $0.00 | $0.00 | $5.10 | $0.00 |
| 2025 | 33816 | NWA - Noxious Weed Assessment | $2.15 | $2.15 | $0.00 | $0.00 | $4.30 | $0.00 |
| 2025 | 33816 | TOTAL: | $2781.03 | $2780.92 | $0.00 | $0.00 | $5561.95 | $0.00 |
|
| 2025 | 33816 | $2781.03 | $2780.92 | $0.00 | $0.00 | $5561.95 | $0.00 |
Statement Details |
| 2024 | 33882 | STATE - STATE LEVY (SCHOOL) | $699.02 | $699.01 | $0.00 | $0.00 | $1398.03 | $0.00 |
| 2024 | 33882 | COUNTY - COUNTY LEVIES (CE, DD, VET, MH) | $299.12 | $299.11 | $0.00 | $0.00 | $598.23 | $0.00 |
| 2024 | 33882 | CONSERVE - CONSERVATION FUTURES | $8.97 | $8.97 | $0.00 | $0.00 | $17.94 | $0.00 |
| 2024 | 33882 | CITYPT - CITY OF PT | $427.40 | $427.39 | $0.00 | $0.00 | $854.79 | $0.00 |
| 2024 | 33882 | PORTPT - PORT DISTRICT | $123.56 | $123.54 | $0.00 | $0.00 | $247.10 | $0.00 |
| 2024 | 33882 | PUD1 - PUD #1 | $19.65 | $19.64 | $0.00 | $0.00 | $39.29 | $0.00 |
| 2024 | 33882 | HD2 - HOSP DIST #2 | $17.46 | $17.45 | $0.00 | $0.00 | $34.91 | $0.00 |
| 2024 | 33882 | SD50 - SCHOOL DIST #50 | $565.55 | $565.52 | $0.00 | $0.00 | $1131.07 | $0.00 |
| 2024 | 33882 | FD1 - FIRE DISTRICT #1 | $395.50 | $395.50 | $0.00 | $0.00 | $791.00 | $0.00 |
| 2024 | 33882 | EMS1 - FIRE DIST #1 EMS | $151.07 | $151.06 | $0.00 | $0.00 | $302.13 | $0.00 |
| 2024 | 33882 | JCCD - JC Conservation District | $2.55 | $2.55 | $0.00 | $0.00 | $5.10 | $0.00 |
| 2024 | 33882 | NWA - Noxious Weed Assessment | $2.15 | $2.15 | $0.00 | $0.00 | $4.30 | $0.00 |
| 2024 | 33882 | TOTAL: | $2712.00 | $2711.89 | $0.00 | $0.00 | $5423.89 | $0.00 |
|
| 2024 | 33882 | $2712.00 | $2711.89 | $0.00 | $0.00 | $5423.89 | $0.00 |
Statement Details |
| 2023 | 33934 | STATE - STATE LEVY (SCHOOL) | $705.39 | $705.38 | $0.00 | $0.00 | $1410.77 | $0.00 |
| 2023 | 33934 | COUNTY - COUNTY LEVIES (CE, DD, VET, MH) | $307.82 | $307.79 | $0.00 | $0.00 | $615.61 | $0.00 |
| 2023 | 33934 | CONSERVE - CONSERVATION FUTURES | $9.23 | $9.23 | $0.00 | $0.00 | $18.46 | $0.00 |
| 2023 | 33934 | CITYPT - CITY OF PT | $435.04 | $435.03 | $0.00 | $0.00 | $870.07 | $0.00 |
| 2023 | 33934 | PORTPT - PORT DISTRICT | $129.67 | $129.66 | $0.00 | $0.00 | $259.33 | $0.00 |
| 2023 | 33934 | PUD1 - PUD #1 | $20.41 | $20.40 | $0.00 | $0.00 | $40.81 | $0.00 |
| 2023 | 33934 | HD2 - HOSP DIST #2 | $17.96 | $17.96 | $0.00 | $0.00 | $35.92 | $0.00 |
| 2023 | 33934 | SD50 - SCHOOL DIST #50 | $559.74 | $559.73 | $0.00 | $0.00 | $1119.47 | $0.00 |
| 2023 | 33934 | FD1 - FIRE DISTRICT #1 | $253.57 | $253.57 | $0.00 | $0.00 | $507.14 | $0.00 |
| 2023 | 33934 | EMS1 - FIRE DIST #1 EMS | $107.87 | $107.86 | $0.00 | $0.00 | $215.73 | $0.00 |
| 2023 | 33934 | JCCD - JC Conservation District | $2.55 | $2.55 | $0.00 | $0.00 | $5.10 | $0.00 |
| 2023 | 33934 | NWA - Noxious Weed Assessment | $2.15 | $2.15 | $0.00 | $0.00 | $4.30 | $0.00 |
| 2023 | 33934 | TOTAL: | $2551.40 | $2551.31 | $0.00 | $0.00 | $5102.71 | $0.00 |
|
| 2023 | 33934 | $2551.40 | $2551.31 | $0.00 | $0.00 | $5102.71 | $0.00 |
Values
| (+) Improvement Homesite Value: | + | $0 | |
| (+) Improvement Non-Homesite Value: | + | $441,184 | |
| (+) Land Homesite Value: | + | $0 | |
| (+) Land Non-Homesite Value: | + | $194,650 | |
| (+) Curr Use (HS): | + | $0 | $0 |
| (+) Curr Use (NHS): | + | $0 | $0 |
| | | -------------------------- | |
| (=) Market Value: | = | $635,834 | |
| (–) Productivity Loss: | – | $0 | |
| | | -------------------------- | |
| (=) Subtotal: | = | $635,834 | |
| (+) Senior Appraised Value: | + | $0 | |
| (+) Non-Senior Appraised Value: | + | $635,834 | |
| | | -------------------------- | |
| (=) Total Appraised Value: | = | $635,834 | |
| (–) Senior Exemption Loss: | – | $0 | |
| (–) Exemption Loss: | – | $0 | |
| | | -------------------------- | |
| (=) Taxable Value: | = | $635,834 | |
Taxing Jurisdiction
| Owner: | MICHELLE SCHUMAN LIVING TRUST | | |
| % Ownership: | 100.0000000000% | | |
| Total Value: | $635,834 | | |
| Tax Area: | 0110 - C-50F1E1H2 |
| CE | COUNTY CURRENT EXPENSE | 0.9034619479 | $635,834 | $635,834 | $574.45 | | |
| CNTYDD | DEVELOPMENTAL DISABILITIES | 0.0052121823 | $635,834 | $635,834 | $3.31 | | |
| CNTYVET | VETERANS RELIEF | 0.0052777810 | $635,834 | $635,834 | $3.36 | | |
| MENTAL | MENTAL HEALTH | 0.0052121823 | $635,834 | $635,834 | $3.31 | | |
| PTGEN | CITY OF PT GENERAL | 0.8551967795 | $635,834 | $635,834 | $543.76 | | |
| PTLLL | CITY OF PT - LIBRARY LID LIFT | 0.4010114288 | $635,834 | $635,834 | $254.98 | | |
| PTMVBOND | CITY OF PT MV BOND | 0.0484717981 | $635,834 | $635,834 | $30.82 | | |
| HOSP2CASH | HOSP DIST #2 GENERAL | 0.0536075306 | $635,834 | $635,834 | $34.09 | | |
| SCH50BOND | SCHOOL DIST #50 BOND 2016 | 0.5377451389 | $635,834 | $635,834 | $341.92 | | |
| SCH50CP | SCHOOL DIST #50 CAP PROJ | 0.4573475088 | $635,834 | $635,834 | $290.80 | | |
| SCH50MO | SCHOOL DIST #50 EP & O | 0.8262822886 | $635,834 | $635,834 | $525.38 | | |
| CONSERVE | CONSERVATION FUTURES | 0.0275621078 | $635,834 | $635,834 | $17.52 | | |
| EMS1 | FIRE DIST #1 EMS | 0.4679948282 | $635,834 | $635,834 | $297.57 | | |
| FD1 | FIRE DIST #1 GENERAL | 1.2171942929 | $635,834 | $635,834 | $773.93 | | |
| PORTPT | PORT OF PT GENERAL | 0.1134941229 | $635,834 | $635,834 | $72.16 | | |
| PORTPTIDD | PORT OF PT IDD 2019 | 0.2577346692 | $635,834 | $635,834 | $163.88 | | |
| PUD1 | PUD #1 GENERAL | 0.0597888892 | $635,834 | $635,834 | $38.02 | | |
| STATE | STATE SCHOOL PART 1 | 1.4940692947 | $635,834 | $635,834 | $949.98 | | |
| STATE2 | STATE SCHOOL PART 2 | 0.8050170049 | $635,834 | $635,834 | $511.86 | | |
| | Total Tax Rate: | 8.5416817766 | | | | | |
| | | | | Taxes w/Current Exemptions: | $5,431.10 | | |
| | | | | Taxes w/o Exemptions: | $5,431.10 | | |
Improvement / Building
| Improvement #1: | Residential Bldg | State Code: | 11 | 1772.0 sqft | Value: | $441,184 |
| Bathrooms (#): | 2 (FULL) | Bathrooms (#): | 1 (HALF) | | Bedrooms (#): | 2 | Exterior Wall: | SI/ST | | Floor Construction: | FRAME | Foundation: | CONPR | | Heating/Cooling: | HPUMP | Roof Cover: | COMP |
|
| | Type | Description | Class CD | Sub Class CD | Year Built | Area |
| | MA | Main Area | 4- | 2S | 2022 | 920.0 |
| | MA2 | Second Floor Main Area | 4- | 2S | 2022 | 852.0 |
| | GATT | House Attached Garage | 4 | 2S | 2022 | 528.0 |
| | HDECK | House Deck | 4 | 2S | 2022 | 144.0 |
| | HWPOR | House Wood Porch | 4 | 2S | 2022 | 160.0 |
Sketch
Property Image
Land
| 1 | 6210-1175L | | 0.0000 | 0.00 | 0.00 | 0.00 | 1.00 | $160,000 | $0 |
| 2 | 6210-1185L | | 0.0000 | 0.00 | 0.00 | 0.00 | 1.00 | $34,650 | $0 |
Roll Value History
| 2026 | N/A | N/A | N/A | N/A | N/A |
| 2025 | $441,184 | $194,650 | $0 | $635,834 | $635,834 |
| 2024 | $452,646 | $185,115 | $0 | $637,761 | $637,761 |
| 2023 | $432,966 | $171,300 | $0 | $604,266 | $604,266 |
| 2022 | $432,966 | $166,300 | $0 | $599,266 | $599,266 |
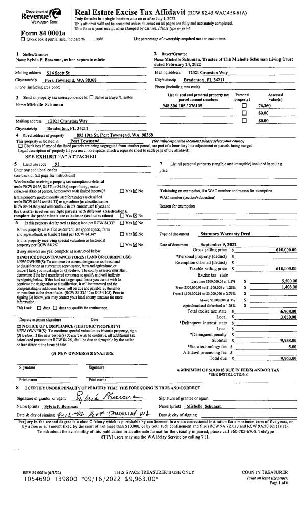
Deed and Sales History
| 1 | 09/09/2022 | SWD | Statutory Warranty Deed | SYLVIA P BOWMAN | MICHELLE SCHUMAN LIVING TRUST | | | $610,000.00 | 139800 | |
| 2 | 03/04/2022 | QCD | Quit Claim Deed | SYLVIA BOWMAN LLC | SYLVIA P BOWMAN | | | | 138658 | |
| 3 | 02/17/2021 | BLA | Boundary Line Adjustment | SYLVIA BOWMAN LLC | SYLVIA BOWMAN LLC | | | | 136386 | |
| 4 | 02/17/2021 | BLA | Boundary Line Adjustment | SYLVIA BOWMAN LLC | SYLVIA BOWMAN LLC | | | | 136386 | |
| 5 | 02/24/2020 | QCD | Quit Claim Deed | SYLVIA P BOWMAN | SYLVIA BOWMAN LLC | | | | 134016 | |
| 6 | 02/04/2020 | SWD | Statutory Warranty Deed | GARY L BUCHILLO | SYLVIA P BOWMAN | | | $175,000.00 | 133929 | |
| 7 | 03/28/2013 | PRD | Personal Representatives Deed | | GARY L BUCHILLO | | | | 118994 | |
Payout Agreement
| No payout information available.. |