Property
Account |
| Property ID: | 27624 | Abbreviated Legal Description: | EISENBEIS ADDITION BLK 86 LOTS 1 & 2 |
| Parcel # / Geo ID: | 948308604 | Agent Code: | |
| Type: | Real | | |
| Tax Area: | 0110 - C-50F1E1H2 | Land Use Code | 18 |
| Open Space: | N | DFL | N |
| Historic Property: | N | Remodel Property: | N |
| Multi-Family Redevelopment: | N | | |
| Township: | 30N | Section: | 3 |
| Range: | 1W |
Location |
| Address: | | Mapsco: | 028/015 |
| Neighborhood: | EISENBEIS, OC HASTINGS & SUPP, PINKS LESS VICTORIAN VILLAGE | Map ID: | |
| Neighborhood CD: | 6210 |
Owner |
| Name: | DEBORA DEARIE | Owner ID: | 105072 |
| Mailing Address: | 2036 CLEVELAND ST PORT TOWNSEND, WA 98368 | % Ownership: | 100.0000000000% |
| | | Exemptions: | |
Pay Tax Due
Select the appropriate checkbox next to the year to be paid. Multiple years may be selected.
*Convenience Fee not included
Taxes and Assessment Details
Property Tax Information as of
03/10/2026
Click on "Statement Details" to expand or collapse a tax statement.
* Please enter a valid date ** Please enter a valid date *
Statement Details |
| 2026 | 16980 | STATE - STATE LEVY (SCHOOL) | $181.06 | $181.05 | $0.00 | $0.00 | $0.00 | $362.11 |
| 2026 | 16980 | COUNTY - COUNTY LEVIES (CE, DD, VET, MH) | $72.39 | $72.38 | $0.00 | $0.00 | $0.00 | $144.77 |
| 2026 | 16980 | CONSERVE - CONSERVATION FUTURES | $2.17 | $2.17 | $0.00 | $0.00 | $0.00 | $4.34 |
| 2026 | 16980 | CITYPT - CITY OF PT | $102.75 | $102.73 | $0.00 | $0.00 | $0.00 | $205.48 |
| 2026 | 16980 | PORTPT - PORT DISTRICT | $29.24 | $29.23 | $0.00 | $0.00 | $0.00 | $58.47 |
| 2026 | 16980 | PUD1 - PUD #1 | $4.71 | $4.71 | $0.00 | $0.00 | $0.00 | $9.42 |
| 2026 | 16980 | HD2 - HOSP DIST #2 | $4.22 | $4.22 | $0.00 | $0.00 | $0.00 | $8.44 |
| 2026 | 16980 | SD50 - SCHOOL DIST #50 | $143.44 | $143.42 | $0.00 | $0.00 | $0.00 | $286.86 |
| 2026 | 16980 | FD1 - FIRE DISTRICT #1 | $95.86 | $95.85 | $0.00 | $0.00 | $0.00 | $191.71 |
| 2026 | 16980 | EMS1 - FIRE DIST #1 EMS | $36.86 | $36.85 | $0.00 | $0.00 | $0.00 | $73.71 |
| 2026 | 16980 | JCCD - JC Conservation District | $2.53 | $2.53 | $0.00 | $0.00 | $0.00 | $5.06 |
| 2026 | 16980 | NWA - Noxious Weed Assessment | $2.98 | $2.97 | $0.00 | $0.00 | $0.00 | $5.95 |
| 2026 | 16980 | WAT - Clean Water District | $13.00 | $13.00 | $0.00 | $0.00 | $0.00 | $26.00 |
| 2026 | 16980 | TOTAL: | $691.21 | $691.11 | $0.00 | $0.00 | $0.00 | $1382.32 |
|
| 2026 | 16980 | $691.21 | $691.11 | $0.00 | $0.00 | $0.00 | $1382.32 |
Statement Details |
| 2025 | 17035 | STATE - STATE LEVY (SCHOOL) | $207.74 | $207.72 | $0.00 | $7.79 | $207.74 | $215.51 |
| 2025 | 17035 | COUNTY - COUNTY LEVIES (CE, DD, VET, MH) | $81.69 | $81.68 | $0.00 | $3.07 | $81.69 | $84.75 |
| 2025 | 17035 | CONSERVE - CONSERVATION FUTURES | $2.45 | $2.45 | $0.00 | $0.09 | $2.45 | $2.54 |
| 2025 | 17035 | CITYPT - CITY OF PT | $117.81 | $117.79 | $0.00 | $4.42 | $117.81 | $122.21 |
| 2025 | 17035 | PORTPT - PORT DISTRICT | $33.34 | $33.32 | $0.00 | $1.25 | $33.34 | $34.57 |
| 2025 | 17035 | PUD1 - PUD #1 | $5.35 | $5.34 | $0.00 | $0.20 | $5.35 | $5.54 |
| 2025 | 17035 | HD2 - HOSP DIST #2 | $4.77 | $4.76 | $0.00 | $0.18 | $4.77 | $4.94 |
| 2025 | 17035 | SD50 - SCHOOL DIST #50 | $151.82 | $151.82 | $0.00 | $5.69 | $151.82 | $157.51 |
| 2025 | 17035 | FD1 - FIRE DISTRICT #1 | $107.80 | $107.79 | $0.00 | $4.04 | $107.80 | $111.83 |
| 2025 | 17035 | EMS1 - FIRE DIST #1 EMS | $41.46 | $41.46 | $0.00 | $1.55 | $41.46 | $43.01 |
| 2025 | 17035 | JCCD - JC Conservation District | $2.55 | $2.55 | $0.00 | $0.10 | $2.55 | $2.65 |
| 2025 | 17035 | NWA - Noxious Weed Assessment | $2.15 | $2.15 | $0.00 | $0.08 | $2.15 | $2.23 |
| 2025 | 17035 | WAT - Clean Water District | $13.00 | $13.00 | $0.00 | $0.49 | $13.00 | $13.49 |
| 2025 | 17035 | TOTAL: | $771.93 | $771.83 | $0.00 | $28.95 | $771.93 | $800.78 |
|
| 2025 | 17035 | $771.93 | $771.83 | $0.00 | $28.95 | $771.93 | $800.78 |
Statement Details |
| 2024 | 17069 | STATE - STATE LEVY (SCHOOL) | $190.87 | $190.87 | $0.00 | $0.00 | $381.74 | $0.00 |
| 2024 | 17069 | COUNTY - COUNTY LEVIES (CE, DD, VET, MH) | $81.68 | $81.66 | $0.00 | $0.00 | $163.34 | $0.00 |
| 2024 | 17069 | CONSERVE - CONSERVATION FUTURES | $2.45 | $2.45 | $0.00 | $0.00 | $4.90 | $0.00 |
| 2024 | 17069 | CITYPT - CITY OF PT | $116.71 | $116.69 | $0.00 | $0.00 | $233.40 | $0.00 |
| 2024 | 17069 | PORTPT - PORT DISTRICT | $33.74 | $33.73 | $0.00 | $0.00 | $67.47 | $0.00 |
| 2024 | 17069 | PUD1 - PUD #1 | $5.37 | $5.36 | $0.00 | $0.00 | $10.73 | $0.00 |
| 2024 | 17069 | HD2 - HOSP DIST #2 | $4.77 | $4.76 | $0.00 | $0.00 | $9.53 | $0.00 |
| 2024 | 17069 | SD50 - SCHOOL DIST #50 | $154.43 | $154.42 | $0.00 | $0.00 | $308.85 | $0.00 |
| 2024 | 17069 | FD1 - FIRE DISTRICT #1 | $108.00 | $107.99 | $0.00 | $0.00 | $215.99 | $0.00 |
| 2024 | 17069 | EMS1 - FIRE DIST #1 EMS | $41.25 | $41.25 | $0.00 | $0.00 | $82.50 | $0.00 |
| 2024 | 17069 | JCCD - JC Conservation District | $2.55 | $2.55 | $0.00 | $0.00 | $5.10 | $0.00 |
| 2024 | 17069 | NWA - Noxious Weed Assessment | $2.15 | $2.15 | $0.00 | $0.00 | $4.30 | $0.00 |
| 2024 | 17069 | WAT - Clean Water District | $12.50 | $12.50 | $0.00 | $0.00 | $25.00 | $0.00 |
| 2024 | 17069 | TOTAL: | $756.47 | $756.38 | $0.00 | $0.00 | $1512.85 | $0.00 |
|
| 2024 | 17069 | $756.47 | $756.38 | $0.00 | $0.00 | $1512.85 | $0.00 |
Statement Details |
| 2023 | 17093 | STATE - STATE LEVY (SCHOOL) | $194.22 | $194.21 | $0.00 | $0.00 | $388.43 | $0.00 |
| 2023 | 17093 | COUNTY - COUNTY LEVIES (CE, DD, VET, MH) | $84.75 | $84.74 | $0.00 | $0.00 | $169.49 | $0.00 |
| 2023 | 17093 | CONSERVE - CONSERVATION FUTURES | $2.54 | $2.54 | $0.00 | $0.00 | $5.08 | $0.00 |
| 2023 | 17093 | CITYPT - CITY OF PT | $119.79 | $119.78 | $0.00 | $0.00 | $239.57 | $0.00 |
| 2023 | 17093 | PORTPT - PORT DISTRICT | $35.71 | $35.69 | $0.00 | $0.00 | $71.40 | $0.00 |
| 2023 | 17093 | PUD1 - PUD #1 | $5.62 | $5.62 | $0.00 | $0.00 | $11.24 | $0.00 |
| 2023 | 17093 | HD2 - HOSP DIST #2 | $4.95 | $4.94 | $0.00 | $0.00 | $9.89 | $0.00 |
| 2023 | 17093 | SD50 - SCHOOL DIST #50 | $154.12 | $154.11 | $0.00 | $0.00 | $308.23 | $0.00 |
| 2023 | 17093 | FD1 - FIRE DISTRICT #1 | $69.82 | $69.82 | $0.00 | $0.00 | $139.64 | $0.00 |
| 2023 | 17093 | EMS1 - FIRE DIST #1 EMS | $29.70 | $29.70 | $0.00 | $0.00 | $59.40 | $0.00 |
| 2023 | 17093 | JCCD - JC Conservation District | $2.53 | $2.53 | $0.00 | $0.00 | $5.06 | $0.00 |
| 2023 | 17093 | NWA - Noxious Weed Assessment | $2.15 | $2.15 | $0.00 | $0.00 | $4.30 | $0.00 |
| 2023 | 17093 | WAT - Clean Water District | $12.00 | $12.00 | $0.00 | $0.00 | $24.00 | $0.00 |
| 2023 | 17093 | TOTAL: | $717.90 | $717.83 | $0.00 | $0.00 | $1435.73 | $0.00 |
|
| 2023 | 17093 | $717.90 | $717.83 | $0.00 | $0.00 | $1435.73 | $0.00 |
Values
| (+) Improvement Homesite Value: | + | $0 | |
| (+) Improvement Non-Homesite Value: | + | $0 | |
| (+) Land Homesite Value: | + | $0 | |
| (+) Land Non-Homesite Value: | + | $157,500 | |
| (+) Curr Use (HS): | + | $0 | $0 |
| (+) Curr Use (NHS): | + | $0 | $0 |
| | | -------------------------- | |
| (=) Market Value: | = | $157,500 | |
| (–) Productivity Loss: | – | $0 | |
| | | -------------------------- | |
| (=) Subtotal: | = | $157,500 | |
| (+) Senior Appraised Value: | + | $0 | |
| (+) Non-Senior Appraised Value: | + | $157,500 | |
| | | -------------------------- | |
| (=) Total Appraised Value: | = | $157,500 | |
| (–) Senior Exemption Loss: | – | $0 | |
| (–) Exemption Loss: | – | $0 | |
| | | -------------------------- | |
| (=) Taxable Value: | = | $157,500 | |
Taxing Jurisdiction
| Owner: | DEBORA DEARIE | | |
| % Ownership: | 100.0000000000% | | |
| Total Value: | N/A | | |
| Tax Area: | 0110 - C-50F1E1H2 |
| CE | COUNTY CURRENT EXPENSE | N/A | N/A | N/A | N/A | | |
| CNTYDD | DEVELOPMENTAL DISABILITIES | N/A | N/A | N/A | N/A | | |
| CNTYVET | VETERANS RELIEF | N/A | N/A | N/A | N/A | | |
| MENTAL | MENTAL HEALTH | N/A | N/A | N/A | N/A | | |
| PTGEN | CITY OF PT GENERAL | N/A | N/A | N/A | N/A | | |
| PTLLL | CITY OF PT - LIBRARY LID LIFT | N/A | N/A | N/A | N/A | | |
| PTMVBOND | CITY OF PT MV BOND | N/A | N/A | N/A | N/A | | |
| HOSP2CASH | HOSP DIST #2 GENERAL | N/A | N/A | N/A | N/A | | |
| SCH50BOND | SCHOOL DIST #50 BOND 2016 | N/A | N/A | N/A | N/A | | |
| SCH50CP | SCHOOL DIST #50 CAP PROJ | N/A | N/A | N/A | N/A | | |
| SCH50MO | SCHOOL DIST #50 EP & O | N/A | N/A | N/A | N/A | | |
| CONSERVE | CONSERVATION FUTURES | N/A | N/A | N/A | N/A | | |
| EMS1 | FIRE DIST #1 EMS | N/A | N/A | N/A | N/A | | |
| FD1 | FIRE DIST #1 GENERAL | N/A | N/A | N/A | N/A | | |
| PORTPT | PORT OF PT GENERAL | N/A | N/A | N/A | N/A | | |
| PORTPTIDD | PORT OF PT IDD 2019 | N/A | N/A | N/A | N/A | | |
| PUD1 | PUD #1 GENERAL | N/A | N/A | N/A | N/A | | |
| STATE | STATE SCHOOL PART 1 | N/A | N/A | N/A | N/A | | |
| STATE2 | STATE SCHOOL PART 2 | N/A | N/A | N/A | N/A | | |
| | Total Tax Rate: | N/A | | | | | |
| | | | | Taxes w/Current Exemptions: | N/A | | |
| | | | | Taxes w/o Exemptions: | N/A | | |
Improvement / Building
Sketch
| No sketches available for this property. |
Property Image
Land
| 1 | 6210-1185L | | 0.0000 | 0.00 | 0.00 | 0.00 | 1.00 | $52,500 | $0 |
| 2 | 6210-1185L | | 0.0000 | 0.00 | 0.00 | 0.00 | 1.00 | $105,000 | $0 |
Roll Value History
| 2026 | N/A | N/A | N/A | N/A | N/A |
| 2025 | $0 | $157,500 | $0 | $157,500 | $157,500 |
| 2024 | $0 | $173,250 | $0 | $173,250 | $173,250 |
| 2023 | $0 | $165,000 | $0 | $165,000 | $165,000 |
| 2022 | $0 | $165,000 | $0 | $165,000 | $165,000 |
Deed and Sales History
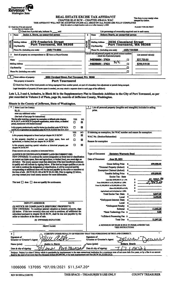
| 1 | 06/29/2021 | SWD | Statutory Warranty Deed | VAUGHN N STORM | DEBORA DEARIE | | | $699,000.00 | 137095 | |
|   | |
Payout Agreement
| No payout information available.. |