Property
Account |
| Property ID: | 27630 | Abbreviated Legal Description: | EISENBEIS ADDITION BLK 88 LOTS 3 & 4 |
| Parcel # / Geo ID: | 948308802 | Agent Code: | |
| Type: | Real | | |
| Tax Area: | 0110 - C-50F1E1H2 | Land Use Code | 11 |
| Open Space: | N | DFL | N |
| Historic Property: | N | Remodel Property: | N |
| Multi-Family Redevelopment: | N | | |
| Township: | 30N | Section: | 3 |
| Range: | 1W |
Location |
| Address: | 2132 SHERIDAN ST PORT TOWNSEND, WA 98368 | Mapsco: | 028/026 |
| Neighborhood: | EISENBEIS, OC HASTINGS & SUPP, PINKS LESS VICTORIAN VILLAGE | Map ID: | |
| Neighborhood CD: | 6210 |
Owner |
| Name: | ANNE M BAYLY | Owner ID: | 111483 |
| Mailing Address: | 717 FRANKLIN ST APT 3 PORT TOWNSEND, WA 98368-5838 | % Ownership: | 100.0000000000% |
| | | Exemptions: | |
Pay Tax Due
Select the appropriate checkbox next to the year to be paid. Multiple years may be selected.
*Convenience Fee not included
Taxes and Assessment Details
Property Tax Information as of
03/11/2026
Click on "Statement Details" to expand or collapse a tax statement.
* Please enter a valid date ** Please enter a valid date *
Statement Details |
| 2026 | 16986 | STATE - STATE LEVY (SCHOOL) | $551.77 | $551.76 | $0.00 | $0.00 | $0.00 | $1103.53 |
| 2026 | 16986 | COUNTY - COUNTY LEVIES (CE, DD, VET, MH) | $220.60 | $220.58 | $0.00 | $0.00 | $0.00 | $441.18 |
| 2026 | 16986 | CONSERVE - CONSERVATION FUTURES | $6.62 | $6.61 | $0.00 | $0.00 | $0.00 | $13.23 |
| 2026 | 16986 | CITYPT - CITY OF PT | $313.12 | $313.11 | $0.00 | $0.00 | $0.00 | $626.23 |
| 2026 | 16986 | PORTPT - PORT DISTRICT | $89.10 | $89.09 | $0.00 | $0.00 | $0.00 | $178.19 |
| 2026 | 16986 | PUD1 - PUD #1 | $14.35 | $14.35 | $0.00 | $0.00 | $0.00 | $28.70 |
| 2026 | 16986 | HD2 - HOSP DIST #2 | $12.87 | $12.86 | $0.00 | $0.00 | $0.00 | $25.73 |
| 2026 | 16986 | SD50 - SCHOOL DIST #50 | $437.12 | $437.11 | $0.00 | $0.00 | $0.00 | $874.23 |
| 2026 | 16986 | FD1 - FIRE DISTRICT #1 | $292.12 | $292.12 | $0.00 | $0.00 | $0.00 | $584.24 |
| 2026 | 16986 | EMS1 - FIRE DIST #1 EMS | $112.32 | $112.31 | $0.00 | $0.00 | $0.00 | $224.63 |
| 2026 | 16986 | JCCD - JC Conservation District | $2.55 | $2.55 | $0.00 | $0.00 | $0.00 | $5.10 |
| 2026 | 16986 | NWA - Noxious Weed Assessment | $2.98 | $2.97 | $0.00 | $0.00 | $0.00 | $5.95 |
| 2026 | 16986 | TOTAL: | $2055.52 | $2055.42 | $0.00 | $0.00 | $0.00 | $4110.94 |
|
| 2026 | 16986 | $2055.52 | $2055.42 | $0.00 | $0.00 | $0.00 | $4110.94 |
Statement Details |
| 2025 | 17041 | STATE - STATE LEVY (SCHOOL) | $527.47 | $527.46 | $0.00 | $0.00 | $1054.93 | $0.00 |
| 2025 | 17041 | COUNTY - COUNTY LEVIES (CE, DD, VET, MH) | $207.42 | $207.43 | $0.00 | $0.00 | $414.85 | $0.00 |
| 2025 | 17041 | CONSERVE - CONSERVATION FUTURES | $6.22 | $6.22 | $0.00 | $0.00 | $12.44 | $0.00 |
| 2025 | 17041 | CITYPT - CITY OF PT | $299.13 | $299.12 | $0.00 | $0.00 | $598.25 | $0.00 |
| 2025 | 17041 | PORTPT - PORT DISTRICT | $84.64 | $84.64 | $0.00 | $0.00 | $169.28 | $0.00 |
| 2025 | 17041 | PUD1 - PUD #1 | $13.57 | $13.57 | $0.00 | $0.00 | $27.14 | $0.00 |
| 2025 | 17041 | HD2 - HOSP DIST #2 | $12.10 | $12.10 | $0.00 | $0.00 | $24.20 | $0.00 |
| 2025 | 17041 | SD50 - SCHOOL DIST #50 | $385.49 | $385.49 | $0.00 | $0.00 | $770.98 | $0.00 |
| 2025 | 17041 | FD1 - FIRE DISTRICT #1 | $273.72 | $273.71 | $0.00 | $0.00 | $547.43 | $0.00 |
| 2025 | 17041 | EMS1 - FIRE DIST #1 EMS | $105.28 | $105.28 | $0.00 | $0.00 | $210.56 | $0.00 |
| 2025 | 17041 | JCCD - JC Conservation District | $2.55 | $2.55 | $0.00 | $0.00 | $5.10 | $0.00 |
| 2025 | 17041 | NWA - Noxious Weed Assessment | $2.15 | $2.15 | $0.00 | $0.00 | $4.30 | $0.00 |
| 2025 | 17041 | TOTAL: | $1919.74 | $1919.72 | $0.00 | $0.00 | $3839.46 | $0.00 |
|
| 2025 | 17041 | $1919.74 | $1919.72 | $0.00 | $0.00 | $3839.46 | $0.00 |
Statement Details |
| 2024 | 17075 | STATE - STATE LEVY (SCHOOL) | $431.03 | $431.03 | $0.00 | $0.00 | $862.06 | $0.00 |
| 2024 | 17075 | COUNTY - COUNTY LEVIES (CE, DD, VET, MH) | $187.03 | $187.00 | $0.00 | $0.00 | $374.03 | $0.00 |
| 2024 | 17075 | CONSERVE - CONSERVATION FUTURES | $5.61 | $5.61 | $0.00 | $0.00 | $11.22 | $0.00 |
| 2024 | 17075 | CITYPT - CITY OF PT | $266.82 | $266.82 | $0.00 | $0.00 | $533.64 | $0.00 |
| 2024 | 17075 | PORTPT - PORT DISTRICT | $77.25 | $77.24 | $0.00 | $0.00 | $154.49 | $0.00 |
| 2024 | 17075 | PUD1 - PUD #1 | $12.29 | $12.28 | $0.00 | $0.00 | $24.57 | $0.00 |
| 2024 | 17075 | HD2 - HOSP DIST #2 | $10.91 | $10.91 | $0.00 | $0.00 | $21.82 | $0.00 |
| 2024 | 17075 | SD50 - SCHOOL DIST #50 | $339.64 | $339.64 | $0.00 | $0.00 | $679.28 | $0.00 |
| 2024 | 17075 | FD1 - FIRE DISTRICT #1 | $247.28 | $247.28 | $0.00 | $0.00 | $494.56 | $0.00 |
| 2024 | 17075 | EMS1 - FIRE DIST #1 EMS | $94.46 | $94.45 | $0.00 | $0.00 | $188.91 | $0.00 |
| 2024 | 17075 | TOTAL: | $1672.32 | $1672.26 | $0.00 | $0.00 | $3344.58 | $0.00 |
|
| 2024 | 17075 | $1672.32 | $1672.26 | $0.00 | $0.00 | $3344.58 | $0.00 |
Statement Details |
| 2023 | 17099 | STATE - STATE LEVY (SCHOOL) | $139.95 | $139.95 | $0.00 | $0.00 | $279.90 | $0.00 |
| 2023 | 17099 | COUNTY - COUNTY LEVIES (CE, DD, VET, MH) | $93.73 | $93.73 | $0.00 | $0.00 | $187.46 | $0.00 |
| 2023 | 17099 | CONSERVE - CONSERVATION FUTURES | $2.81 | $2.81 | $0.00 | $0.00 | $5.62 | $0.00 |
| 2023 | 17099 | CITYPT - CITY OF PT | $127.25 | $127.24 | $0.00 | $0.00 | $254.49 | $0.00 |
| 2023 | 17099 | PORTPT - PORT DISTRICT | $39.49 | $39.48 | $0.00 | $0.00 | $78.97 | $0.00 |
| 2023 | 17099 | PUD1 - PUD #1 | $6.22 | $6.21 | $0.00 | $0.00 | $12.43 | $0.00 |
| 2023 | 17099 | HD2 - HOSP DIST #2 | $5.48 | $5.46 | $0.00 | $0.00 | $10.94 | $0.00 |
| 2023 | 17099 | SD50 - SCHOOL DIST #50 | $0.00 | $0.00 | $0.00 | $0.00 | $0.00 | $0.00 |
| 2023 | 17099 | FD1 - FIRE DISTRICT #1 | $77.22 | $77.22 | $0.00 | $0.00 | $154.44 | $0.00 |
| 2023 | 17099 | EMS1 - FIRE DIST #1 EMS | $32.85 | $32.84 | $0.00 | $0.00 | $65.69 | $0.00 |
| 2023 | 17099 | TOTAL: | $525.00 | $524.94 | $0.00 | $0.00 | $1049.94 | $0.00 |
|
| 2023 | 17099 | $525.00 | $524.94 | $0.00 | $0.00 | $1049.94 | $0.00 |
Values
| (+) Improvement Homesite Value: | + | $292,486 | |
| (+) Improvement Non-Homesite Value: | + | $0 | |
| (+) Land Homesite Value: | + | $187,500 | |
| (+) Land Non-Homesite Value: | + | $0 | |
| (+) Curr Use (HS): | + | $0 | $0 |
| (+) Curr Use (NHS): | + | $0 | $0 |
| | | -------------------------- | |
| (=) Market Value: | = | $479,986 | |
| (–) Productivity Loss: | – | $0 | |
| | | -------------------------- | |
| (=) Subtotal: | = | $479,986 | |
| (+) Senior Appraised Value: | + | $0 | |
| (+) Non-Senior Appraised Value: | + | $479,986 | |
| | | -------------------------- | |
| (=) Total Appraised Value: | = | $479,986 | |
| (–) Senior Exemption Loss: | – | $0 | |
| (–) Exemption Loss: | – | $0 | |
| | | -------------------------- | |
| (=) Taxable Value: | = | $479,986 | |
Taxing Jurisdiction
| Owner: | ANNE M BAYLY | | |
| % Ownership: | 100.0000000000% | | |
| Total Value: | $479,986 | | |
| Tax Area: | 0110 - C-50F1E1H2 |
| CE | COUNTY CURRENT EXPENSE | 0.9034619479 | $479,986 | $479,986 | $433.65 | | |
| CNTYDD | DEVELOPMENTAL DISABILITIES | 0.0052121823 | $479,986 | $479,986 | $2.50 | | |
| CNTYVET | VETERANS RELIEF | 0.0052777810 | $479,986 | $479,986 | $2.53 | | |
| MENTAL | MENTAL HEALTH | 0.0052121823 | $479,986 | $479,986 | $2.50 | | |
| PTGEN | CITY OF PT GENERAL | 0.8551967795 | $479,986 | $479,986 | $410.48 | | |
| PTLLL | CITY OF PT - LIBRARY LID LIFT | 0.4010114288 | $479,986 | $479,986 | $192.48 | | |
| PTMVBOND | CITY OF PT MV BOND | 0.0484717981 | $479,986 | $479,986 | $23.27 | | |
| HOSP2CASH | HOSP DIST #2 GENERAL | 0.0536075306 | $479,986 | $479,986 | $25.73 | | |
| SCH50BOND | SCHOOL DIST #50 BOND 2016 | 0.5377451389 | $479,986 | $479,986 | $258.11 | | |
| SCH50CP | SCHOOL DIST #50 CAP PROJ | 0.4573475088 | $479,986 | $479,986 | $219.52 | | |
| SCH50MO | SCHOOL DIST #50 EP & O | 0.8262822886 | $479,986 | $479,986 | $396.60 | | |
| CONSERVE | CONSERVATION FUTURES | 0.0275621078 | $479,986 | $479,986 | $13.23 | | |
| EMS1 | FIRE DIST #1 EMS | 0.4679948282 | $479,986 | $479,986 | $224.63 | | |
| FD1 | FIRE DIST #1 GENERAL | 1.2171942929 | $479,986 | $479,986 | $584.24 | | |
| PORTPT | PORT OF PT GENERAL | 0.1134941229 | $479,986 | $479,986 | $54.48 | | |
| PORTPTIDD | PORT OF PT IDD 2019 | 0.2577346692 | $479,986 | $479,986 | $123.71 | | |
| PUD1 | PUD #1 GENERAL | 0.0597888892 | $479,986 | $479,986 | $28.70 | | |
| STATE | STATE SCHOOL PART 1 | 1.4940692947 | $479,986 | $479,986 | $717.13 | | |
| STATE2 | STATE SCHOOL PART 2 | 0.8050170049 | $479,986 | $479,986 | $386.40 | | |
| | Total Tax Rate: | 8.5416817766 | | | | | |
| | | | | Taxes w/Current Exemptions: | $4,099.89 | | |
| | | | | Taxes w/o Exemptions: | $4,099.89 | | |
Improvement / Building
| Improvement #1: | Residential Bldg | State Code: | 11 | 1152.0 sqft | Value: | $292,486 |
| Exterior Wall: | SI/ST | Floor Construction: | FRAME | | Foundation: | CONPR | Heating/Cooling: | F/A | | Inside Verify: | YES-FIX | Roof Cover: | COMP |
|
| | Type | Description | Class CD | Sub Class CD | Year Built | Area |
| | MA | Main Area | 4- | 15SF | 1940 | 832.0 |
| | MA2 | Second Floor Main Area | 4- | 15SF | 1940 | 320.0 |
| | HWPOR | House Wood Porch | 3 | 15SF | 1940 | 24.0 |
| | HCPOR | House Concrete Porch | 3 | 15SF | 1940 | 28.0 |
| | HENCL | House Enclosure | 3 | 15SF | 1940 | 24.0 |
| | GDET | Detached Garage | 2 | 15SF | 1940 | 1008.0 |
| | BSMTU | House basement unfinished | 3 | 15SF | 1940 | 832.0 |
Sketch
Property Image
Land
| 1 | 6210-1185L | | 0.0000 | 0.00 | 0.00 | 0.00 | 1.00 | $135,000 | $0 |
| 2 | 6210-1185L | | 0.0000 | 0.00 | 0.00 | 0.00 | 1.00 | $52,500 | $0 |
Roll Value History
| 2026 | N/A | N/A | N/A | N/A | N/A |
| 2025 | $292,486 | $187,500 | $0 | $479,986 | $479,986 |
| 2024 | $266,663 | $173,250 | $0 | $439,913 | $439,913 |
| 2023 | $255,069 | $160,000 | $0 | $415,069 | $118,617 |
| 2022 | $255,069 | $140,000 | $0 | $395,069 | $182,488 |
Deed and Sales History
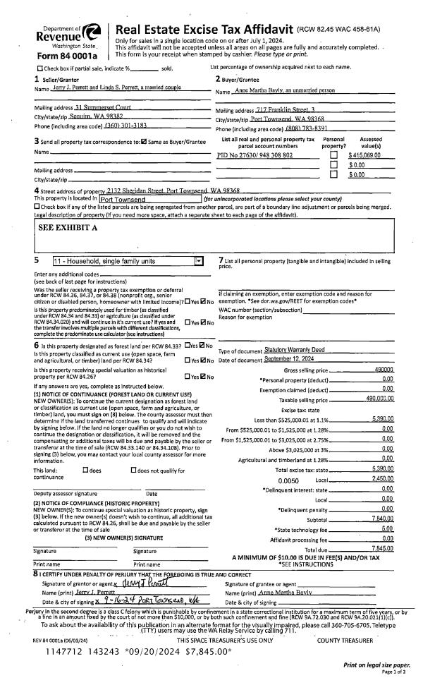
| 1 | 09/12/2024 | SWD | Statutory Warranty Deed | JERRY J PERRETT | ANNE M BAYLY | | | $490,000.00 | 143243 | |
| 2 | 03/21/2017 | CPA | Community Property Agreement | | | | | | 127892 | |
Payout Agreement
| No payout information available.. |