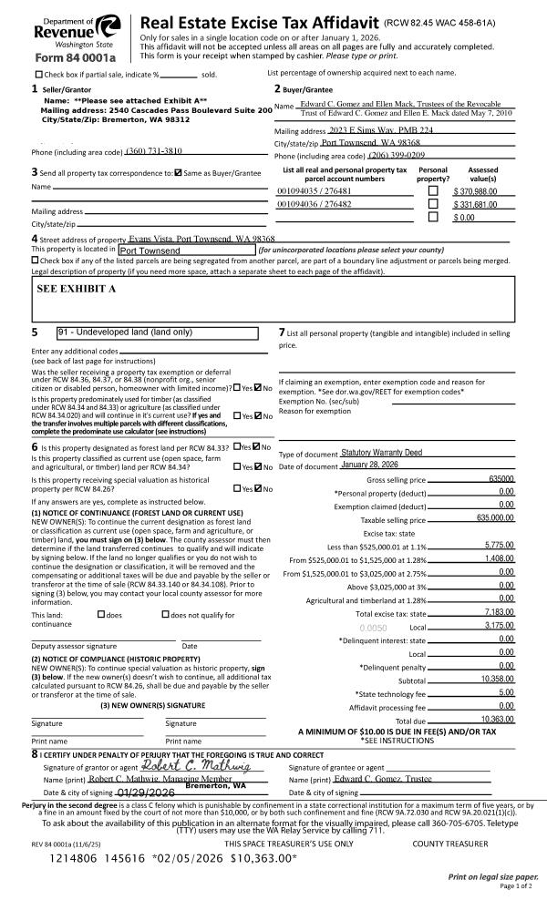
Property
Account |
| Property ID: | 276482 | Abbreviated Legal Description: | PT-20 SHORT PLAT LOT 3 SUBJ/EASE OF RECORD |
| Parcel # / Geo ID: | 001094036 | Agent Code: | |
| Type: | Real | | |
| Tax Area: | 0110 - C-50F1E1H2 | Land Use Code | 91 |
| Open Space: | N | DFL | N |
| Historic Property: | N | Remodel Property: | N |
| Multi-Family Redevelopment: | N | | |
| Township: | 30N | Section: | 9 |
| Range: | 1W |
Location |
| Address: | | Mapsco: | 164/088 |
| Neighborhood: | SIMS WAY COMMERCIAL AREA CITY LIMITS | Map ID: | |
| Neighborhood CD: | 6180C |
Owner |
| Name: | EDWARD C GOMEZ & ELLEN E MACK REVOCABLE TRUST | Owner ID: | 104416 |
| Mailing Address: | EDWARD C GOMEZ TRUSTEE ELLEN E MACK TRUSTEE 2023 E SIMS WAY PMB 224 PORT TOWNSEND, WA 98368-6905 | % Ownership: | 100.0000000000% |
| | | Exemptions: | |
Pay Tax Due
Select the appropriate checkbox next to the year to be paid. Multiple years may be selected.
*Convenience Fee not included
Taxes and Assessment Details
Property Tax Information as of
03/10/2026
Click on "Statement Details" to expand or collapse a tax statement.
* Please enter a valid date ** Please enter a valid date *
Statement Details |
| 2026 | 34048 | STATE - STATE LEVY (SCHOOL) | $381.29 | $381.27 | $0.00 | $0.00 | $0.00 | $762.56 |
| 2026 | 34048 | COUNTY - COUNTY LEVIES (CE, DD, VET, MH) | $152.45 | $152.42 | $0.00 | $0.00 | $0.00 | $304.87 |
| 2026 | 34048 | CONSERVE - CONSERVATION FUTURES | $4.57 | $4.57 | $0.00 | $0.00 | $0.00 | $9.14 |
| 2026 | 34048 | CITYPT - CITY OF PT | $216.38 | $216.36 | $0.00 | $0.00 | $0.00 | $432.74 |
| 2026 | 34048 | PORTPT - PORT DISTRICT | $61.57 | $61.56 | $0.00 | $0.00 | $0.00 | $123.13 |
| 2026 | 34048 | PUD1 - PUD #1 | $9.92 | $9.91 | $0.00 | $0.00 | $0.00 | $19.83 |
| 2026 | 34048 | HD2 - HOSP DIST #2 | $8.89 | $8.89 | $0.00 | $0.00 | $0.00 | $17.78 |
| 2026 | 34048 | SD50 - SCHOOL DIST #50 | $302.06 | $302.05 | $0.00 | $0.00 | $0.00 | $604.11 |
| 2026 | 34048 | FD1 - FIRE DISTRICT #1 | $201.86 | $201.86 | $0.00 | $0.00 | $0.00 | $403.72 |
| 2026 | 34048 | EMS1 - FIRE DIST #1 EMS | $77.61 | $77.61 | $0.00 | $0.00 | $0.00 | $155.22 |
| 2026 | 34048 | FPLCA - DNR Landowner Contingency Assmt | $3.00 | $3.00 | $0.00 | $0.00 | $0.00 | $6.00 |
| 2026 | 34048 | JCCD - JC Conservation District | $2.53 | $2.53 | $0.00 | $0.00 | $0.00 | $5.06 |
| 2026 | 34048 | NWA - Noxious Weed Assessment | $2.98 | $2.97 | $0.00 | $0.00 | $0.00 | $5.95 |
| 2026 | 34048 | TOTAL: | $1425.11 | $1425.00 | $0.00 | $0.00 | $0.00 | $2850.11 |
|
| 2026 | 34048 | $1425.11 | $1425.00 | $0.00 | $0.00 | $0.00 | $2850.11 |
Statement Details |
| 2025 | 34140 | STATE - STATE LEVY (SCHOOL) | $397.70 | $397.68 | $0.00 | $0.00 | $795.38 | $0.00 |
| 2025 | 34140 | COUNTY - COUNTY LEVIES (CE, DD, VET, MH) | $156.41 | $156.37 | $0.00 | $0.00 | $312.78 | $0.00 |
| 2025 | 34140 | CONSERVE - CONSERVATION FUTURES | $4.69 | $4.69 | $0.00 | $0.00 | $9.38 | $0.00 |
| 2025 | 34140 | CITYPT - CITY OF PT | $225.54 | $225.52 | $0.00 | $0.00 | $451.06 | $0.00 |
| 2025 | 34140 | PORTPT - PORT DISTRICT | $63.82 | $63.81 | $0.00 | $0.00 | $127.63 | $0.00 |
| 2025 | 34140 | PUD1 - PUD #1 | $10.24 | $10.23 | $0.00 | $0.00 | $20.47 | $0.00 |
| 2025 | 34140 | HD2 - HOSP DIST #2 | $9.13 | $9.12 | $0.00 | $0.00 | $18.25 | $0.00 |
| 2025 | 34140 | SD50 - SCHOOL DIST #50 | $290.65 | $290.64 | $0.00 | $0.00 | $581.29 | $0.00 |
| 2025 | 34140 | FD1 - FIRE DISTRICT #1 | $206.37 | $206.37 | $0.00 | $0.00 | $412.74 | $0.00 |
| 2025 | 34140 | EMS1 - FIRE DIST #1 EMS | $79.38 | $79.37 | $0.00 | $0.00 | $158.75 | $0.00 |
| 2025 | 34140 | FPLCA - DNR Landowner Contingency Assmt | $3.00 | $3.00 | $0.00 | $0.00 | $6.00 | $0.00 |
| 2025 | 34140 | JCCD - JC Conservation District | $2.53 | $2.53 | $0.00 | $0.00 | $5.06 | $0.00 |
| 2025 | 34140 | NWA - Noxious Weed Assessment | $2.15 | $2.15 | $0.00 | $0.00 | $4.30 | $0.00 |
| 2025 | 34140 | TOTAL: | $1451.61 | $1451.48 | $0.00 | $0.00 | $2903.09 | $0.00 |
|
| 2025 | 34140 | $1451.61 | $1451.48 | $0.00 | $0.00 | $2903.09 | $0.00 |
Statement Details |
| 2024 | 34207 | STATE - STATE LEVY (SCHOOL) | $383.69 | $383.68 | $0.00 | $0.00 | $767.37 | $0.00 |
| 2024 | 34207 | COUNTY - COUNTY LEVIES (CE, DD, VET, MH) | $164.19 | $164.17 | $0.00 | $0.00 | $328.36 | $0.00 |
| 2024 | 34207 | CONSERVE - CONSERVATION FUTURES | $4.93 | $4.92 | $0.00 | $0.00 | $9.85 | $0.00 |
| 2024 | 34207 | CITYPT - CITY OF PT | $234.60 | $234.59 | $0.00 | $0.00 | $469.19 | $0.00 |
| 2024 | 34207 | PORTPT - PORT DISTRICT | $67.82 | $67.81 | $0.00 | $0.00 | $135.63 | $0.00 |
| 2024 | 34207 | PUD1 - PUD #1 | $10.79 | $10.78 | $0.00 | $0.00 | $21.57 | $0.00 |
| 2024 | 34207 | HD2 - HOSP DIST #2 | $9.58 | $9.58 | $0.00 | $0.00 | $19.16 | $0.00 |
| 2024 | 34207 | SD50 - SCHOOL DIST #50 | $310.44 | $310.41 | $0.00 | $0.00 | $620.85 | $0.00 |
| 2024 | 34207 | FD1 - FIRE DISTRICT #1 | $217.09 | $217.09 | $0.00 | $0.00 | $434.18 | $0.00 |
| 2024 | 34207 | EMS1 - FIRE DIST #1 EMS | $82.92 | $82.92 | $0.00 | $0.00 | $165.84 | $0.00 |
| 2024 | 34207 | JCCD - JC Conservation District | $2.53 | $2.53 | $0.00 | $0.00 | $5.06 | $0.00 |
| 2024 | 34207 | NWA - Noxious Weed Assessment | $2.15 | $2.15 | $0.00 | $0.00 | $4.30 | $0.00 |
| 2024 | 34207 | TOTAL: | $1490.73 | $1490.63 | $0.00 | $0.00 | $2981.36 | $0.00 |
|
| 2024 | 34207 | $1490.73 | $1490.63 | $0.00 | $0.00 | $2981.36 | $0.00 |
Statement Details |
| 2023 | 34263 | STATE - STATE LEVY (SCHOOL) | $390.42 | $390.41 | $0.00 | $0.00 | $780.83 | $0.00 |
| 2023 | 34263 | COUNTY - COUNTY LEVIES (CE, DD, VET, MH) | $170.37 | $170.35 | $0.00 | $0.00 | $340.72 | $0.00 |
| 2023 | 34263 | CONSERVE - CONSERVATION FUTURES | $5.11 | $5.11 | $0.00 | $0.00 | $10.22 | $0.00 |
| 2023 | 34263 | CITYPT - CITY OF PT | $240.79 | $240.78 | $0.00 | $0.00 | $481.57 | $0.00 |
| 2023 | 34263 | PORTPT - PORT DISTRICT | $71.77 | $71.76 | $0.00 | $0.00 | $143.53 | $0.00 |
| 2023 | 34263 | PUD1 - PUD #1 | $11.30 | $11.29 | $0.00 | $0.00 | $22.59 | $0.00 |
| 2023 | 34263 | HD2 - HOSP DIST #2 | $9.95 | $9.93 | $0.00 | $0.00 | $19.88 | $0.00 |
| 2023 | 34263 | SD50 - SCHOOL DIST #50 | $309.81 | $309.79 | $0.00 | $0.00 | $619.60 | $0.00 |
| 2023 | 34263 | FD1 - FIRE DISTRICT #1 | $140.35 | $140.34 | $0.00 | $0.00 | $280.69 | $0.00 |
| 2023 | 34263 | EMS1 - FIRE DIST #1 EMS | $59.70 | $59.70 | $0.00 | $0.00 | $119.40 | $0.00 |
| 2023 | 34263 | JCCD - JC Conservation District | $2.53 | $2.53 | $0.00 | $0.00 | $5.06 | $0.00 |
| 2023 | 34263 | NWA - Noxious Weed Assessment | $2.15 | $2.15 | $0.00 | $0.00 | $4.30 | $0.00 |
| 2023 | 34263 | TOTAL: | $1414.25 | $1414.14 | $0.00 | $0.00 | $2828.39 | $0.00 |
|
| 2023 | 34263 | $1414.25 | $1414.14 | $0.00 | $0.00 | $2828.39 | $0.00 |
Values
| (+) Improvement Homesite Value: | + | $0 | |
| (+) Improvement Non-Homesite Value: | + | $0 | |
| (+) Land Homesite Value: | + | $0 | |
| (+) Land Non-Homesite Value: | + | $331,681 | |
| (+) Curr Use (HS): | + | $0 | $0 |
| (+) Curr Use (NHS): | + | $0 | $0 |
| | | -------------------------- | |
| (=) Market Value: | = | $331,681 | |
| (–) Productivity Loss: | – | $0 | |
| | | -------------------------- | |
| (=) Subtotal: | = | $331,681 | |
| (+) Senior Appraised Value: | + | $0 | |
| (+) Non-Senior Appraised Value: | + | $331,681 | |
| | | -------------------------- | |
| (=) Total Appraised Value: | = | $331,681 | |
| (–) Senior Exemption Loss: | – | $0 | |
| (–) Exemption Loss: | – | $0 | |
| | | -------------------------- | |
| (=) Taxable Value: | = | $331,681 | |
Taxing Jurisdiction
| Owner: | EDWARD C GOMEZ & ELLEN E MACK REVOCABLE TRUST | | |
| % Ownership: | 100.0000000000% | | |
| Total Value: | $331,681 | | |
| Tax Area: | 0110 - C-50F1E1H2 |
| CE | COUNTY CURRENT EXPENSE | 0.9034619479 | $331,681 | $331,681 | $299.66 | | |
| CNTYDD | DEVELOPMENTAL DISABILITIES | 0.0052121823 | $331,681 | $331,681 | $1.73 | | |
| CNTYVET | VETERANS RELIEF | 0.0052777810 | $331,681 | $331,681 | $1.75 | | |
| MENTAL | MENTAL HEALTH | 0.0052121823 | $331,681 | $331,681 | $1.73 | | |
| PTGEN | CITY OF PT GENERAL | 0.8551967795 | $331,681 | $331,681 | $283.65 | | |
| PTLLL | CITY OF PT - LIBRARY LID LIFT | 0.4010114288 | $331,681 | $331,681 | $133.01 | | |
| PTMVBOND | CITY OF PT MV BOND | 0.0484717981 | $331,681 | $331,681 | $16.08 | | |
| HOSP2CASH | HOSP DIST #2 GENERAL | 0.0536075306 | $331,681 | $331,681 | $17.78 | | |
| SCH50BOND | SCHOOL DIST #50 BOND 2016 | 0.5377451389 | $331,681 | $331,681 | $178.36 | | |
| SCH50CP | SCHOOL DIST #50 CAP PROJ | 0.4573475088 | $331,681 | $331,681 | $151.69 | | |
| SCH50MO | SCHOOL DIST #50 EP & O | 0.8262822886 | $331,681 | $331,681 | $274.06 | | |
| CONSERVE | CONSERVATION FUTURES | 0.0275621078 | $331,681 | $331,681 | $9.14 | | |
| EMS1 | FIRE DIST #1 EMS | 0.4679948282 | $331,681 | $331,681 | $155.22 | | |
| FD1 | FIRE DIST #1 GENERAL | 1.2171942929 | $331,681 | $331,681 | $403.72 | | |
| PORTPT | PORT OF PT GENERAL | 0.1134941229 | $331,681 | $331,681 | $37.64 | | |
| PORTPTIDD | PORT OF PT IDD 2019 | 0.2577346692 | $331,681 | $331,681 | $85.49 | | |
| PUD1 | PUD #1 GENERAL | 0.0597888892 | $331,681 | $331,681 | $19.83 | | |
| STATE | STATE SCHOOL PART 1 | 1.4940692947 | $331,681 | $331,681 | $495.55 | | |
| STATE2 | STATE SCHOOL PART 2 | 0.8050170049 | $331,681 | $331,681 | $267.01 | | |
| | Total Tax Rate: | 8.5416817766 | | | | | |
| | | | | Taxes w/Current Exemptions: | $2,833.10 | | |
| | | | | Taxes w/o Exemptions: | $2,833.10 | | |
Improvement / Building
Sketch
| No sketches available for this property. |
Property Image
Land
| 1 | 6180-6273Q | | 0.9953 | 43357.00 | 168.00 | 0.00 | 1.00 | $331,681 | $0 |
Roll Value History
| 2026 | N/A | N/A | N/A | N/A | N/A |
| 2025 | $0 | $331,681 | $0 | $331,681 | $331,681 |
| 2024 | $0 | $331,681 | $0 | $331,681 | $331,681 |
| 2023 | $0 | $331,681 | $0 | $331,681 | $331,681 |
| 2022 | $0 | $331,681 | $0 | $331,681 | $331,681 |
Deed and Sales History
| 1 | 01/28/2026 | SWD | Statutory Warranty Deed | GEORGE E BARBER TRUST 50% | EDWARD C GOMEZ & ELLEN E MACK REVOCABLE TRUST | | | $635,000.00 | 145616 | |
|   | |
| 2 | 03/11/2024 | SWD | Statutory Warranty Deed | | REBECCA PETRE & MARK ZENGER REV LIVING TRUST | | | | 142326 | |
| 3 | 02/26/2024 | BSD | Bargain and Sale Deed | | GEORGE E BARBER TRUST | | | | 142295 | |
| 4 | 05/18/2000 | BLA | Boundary Line Adjustment | EVANS, ROGER W/ET AL | EVANS, ROGER W/ET AL | 0 | 0 | | 0 | 0 |
| 5 | 03/02/1998 | SWD | Statutory Warranty Deed | EVANS, ROGER W/JON D/ERIC | PACIFIC FUNDING CORP | 0 | 0 | | 0 | 0 |
| 6 | 07/10/1996 | QCD | Quit Claim Deed | EVANS, ROGER W/JON D | EVANS, ROGER/JON/ERIC | 0 | 0 | | 0 | 0 |
| 7 | 02/28/1995 | SWD | Statutory Warranty Deed | CITY OF PORT TOWNSEND | EVANS, ROGER W/JON D | 0 | 0 | | 0 | 0 |
| 8 | 11/02/1992 | QCD | Quit Claim Deed | STATE OF WASHINGTON | CITY OF PORT TOWNSEND | 0 | 0 | | 0 | 0 |
Payout Agreement
| No payout information available.. |