Property
Account |
| Property ID: | 276488 | Abbreviated Legal Description: | MABEL ADDITION BLK 77 LOT 5 -- LOT CERTIFICATION LUP 20-018 |
| Parcel # / Geo ID: | 969907705 | Agent Code: | |
| Type: | Real | | |
| Tax Area: | 0110 - C-50F1E1H2 | Land Use Code | 91 |
| Open Space: | N | DFL | N |
| Historic Property: | N | Remodel Property: | N |
| Multi-Family Redevelopment: | N | | |
| Township: | 30N | Section: | 11 |
| Range: | 1W |
Location |
| Address: | | Mapsco: | 080/008B |
| Neighborhood: | MABEL | Map ID: | |
| Neighborhood CD: | 6270 |
Owner |
| Name: | ERIKA BLACKSHER & | Owner ID: | 112728 |
| Mailing Address: | THOMAS KNITTEL 7218 LA PRESA DR LOS ANGELES, CA 90068-2630 | % Ownership: | 100.0000000000% |
| | | Exemptions: | |
Pay Tax Due
Select the appropriate checkbox next to the year to be paid. Multiple years may be selected.
*Convenience Fee not included
Taxes and Assessment Details
Property Tax Information as of
03/12/2026
Click on "Statement Details" to expand or collapse a tax statement.
* Please enter a valid date ** Please enter a valid date *
Statement Details |
| 2026 | 34054 | STATE - STATE LEVY (SCHOOL) | $229.91 | $229.90 | $0.00 | $0.00 | $0.00 | $459.81 |
| 2026 | 34054 | COUNTY - COUNTY LEVIES (CE, DD, VET, MH) | $91.92 | $91.91 | $0.00 | $0.00 | $0.00 | $183.83 |
| 2026 | 34054 | CONSERVE - CONSERVATION FUTURES | $2.76 | $2.75 | $0.00 | $0.00 | $0.00 | $5.51 |
| 2026 | 34054 | CITYPT - CITY OF PT | $130.47 | $130.46 | $0.00 | $0.00 | $0.00 | $260.93 |
| 2026 | 34054 | PORTPT - PORT DISTRICT | $37.13 | $37.12 | $0.00 | $0.00 | $0.00 | $74.25 |
| 2026 | 34054 | PUD1 - PUD #1 | $5.98 | $5.98 | $0.00 | $0.00 | $0.00 | $11.96 |
| 2026 | 34054 | HD2 - HOSP DIST #2 | $5.36 | $5.36 | $0.00 | $0.00 | $0.00 | $10.72 |
| 2026 | 34054 | SD50 - SCHOOL DIST #50 | $182.15 | $182.13 | $0.00 | $0.00 | $0.00 | $364.28 |
| 2026 | 34054 | FD1 - FIRE DISTRICT #1 | $121.72 | $121.72 | $0.00 | $0.00 | $0.00 | $243.44 |
| 2026 | 34054 | EMS1 - FIRE DIST #1 EMS | $46.80 | $46.80 | $0.00 | $0.00 | $0.00 | $93.60 |
| 2026 | 34054 | JCCD - JC Conservation District | $2.53 | $2.53 | $0.00 | $0.00 | $0.00 | $5.06 |
| 2026 | 34054 | NWA - Noxious Weed Assessment | $2.98 | $2.97 | $0.00 | $0.00 | $0.00 | $5.95 |
| 2026 | 34054 | TOTAL: | $859.71 | $859.63 | $0.00 | $0.00 | $0.00 | $1719.34 |
|
| 2026 | 34054 | $859.71 | $859.63 | $0.00 | $0.00 | $0.00 | $1719.34 |
Statement Details |
| 2025 | 34146 | STATE - STATE LEVY (SCHOOL) | $239.21 | $239.20 | $0.00 | $0.00 | $478.41 | $0.00 |
| 2025 | 34146 | COUNTY - COUNTY LEVIES (CE, DD, VET, MH) | $94.06 | $94.06 | $0.00 | $0.00 | $188.12 | $0.00 |
| 2025 | 34146 | CONSERVE - CONSERVATION FUTURES | $2.82 | $2.82 | $0.00 | $0.00 | $5.64 | $0.00 |
| 2025 | 34146 | CITYPT - CITY OF PT | $135.66 | $135.64 | $0.00 | $0.00 | $271.30 | $0.00 |
| 2025 | 34146 | PORTPT - PORT DISTRICT | $38.39 | $38.38 | $0.00 | $0.00 | $76.77 | $0.00 |
| 2025 | 34146 | PUD1 - PUD #1 | $6.16 | $6.15 | $0.00 | $0.00 | $12.31 | $0.00 |
| 2025 | 34146 | HD2 - HOSP DIST #2 | $5.49 | $5.49 | $0.00 | $0.00 | $10.98 | $0.00 |
| 2025 | 34146 | SD50 - SCHOOL DIST #50 | $174.82 | $174.81 | $0.00 | $0.00 | $349.63 | $0.00 |
| 2025 | 34146 | FD1 - FIRE DISTRICT #1 | $124.13 | $124.13 | $0.00 | $0.00 | $248.26 | $0.00 |
| 2025 | 34146 | EMS1 - FIRE DIST #1 EMS | $47.75 | $47.74 | $0.00 | $0.00 | $95.49 | $0.00 |
| 2025 | 34146 | JCCD - JC Conservation District | $2.53 | $2.53 | $0.00 | $0.00 | $5.06 | $0.00 |
| 2025 | 34146 | NWA - Noxious Weed Assessment | $2.15 | $2.15 | $0.00 | $0.00 | $4.30 | $0.00 |
| 2025 | 34146 | TOTAL: | $873.17 | $873.10 | $0.00 | $0.00 | $1746.27 | $0.00 |
|
| 2025 | 34146 | $873.17 | $873.10 | $0.00 | $0.00 | $1746.27 | $0.00 |
Statement Details |
| 2024 | 34213 | STATE - STATE LEVY (SCHOOL) | $219.80 | $219.79 | $0.00 | $0.00 | $439.59 | $0.00 |
| 2024 | 34213 | COUNTY - COUNTY LEVIES (CE, DD, VET, MH) | $94.05 | $94.05 | $0.00 | $0.00 | $188.10 | $0.00 |
| 2024 | 34213 | CONSERVE - CONSERVATION FUTURES | $2.82 | $2.82 | $0.00 | $0.00 | $5.64 | $0.00 |
| 2024 | 34213 | CITYPT - CITY OF PT | $134.39 | $134.38 | $0.00 | $0.00 | $268.77 | $0.00 |
| 2024 | 34213 | PORTPT - PORT DISTRICT | $38.86 | $38.84 | $0.00 | $0.00 | $77.70 | $0.00 |
| 2024 | 34213 | PUD1 - PUD #1 | $6.18 | $6.18 | $0.00 | $0.00 | $12.36 | $0.00 |
| 2024 | 34213 | HD2 - HOSP DIST #2 | $5.49 | $5.49 | $0.00 | $0.00 | $10.98 | $0.00 |
| 2024 | 34213 | SD50 - SCHOOL DIST #50 | $177.83 | $177.81 | $0.00 | $0.00 | $355.64 | $0.00 |
| 2024 | 34213 | FD1 - FIRE DISTRICT #1 | $124.36 | $124.36 | $0.00 | $0.00 | $248.72 | $0.00 |
| 2024 | 34213 | EMS1 - FIRE DIST #1 EMS | $47.50 | $47.50 | $0.00 | $0.00 | $95.00 | $0.00 |
| 2024 | 34213 | JCCD - JC Conservation District | $2.53 | $2.53 | $0.00 | $0.00 | $5.06 | $0.00 |
| 2024 | 34213 | NWA - Noxious Weed Assessment | $2.15 | $2.15 | $0.00 | $0.00 | $4.30 | $0.00 |
| 2024 | 34213 | TOTAL: | $855.96 | $855.90 | $0.00 | $0.00 | $1711.86 | $0.00 |
|
| 2024 | 34213 | $855.96 | $855.90 | $0.00 | $0.00 | $1711.86 | $0.00 |
Statement Details |
| 2023 | 34269 | STATE - STATE LEVY (SCHOOL) | $223.65 | $223.64 | $0.00 | $0.00 | $447.29 | $0.00 |
| 2023 | 34269 | COUNTY - COUNTY LEVIES (CE, DD, VET, MH) | $97.61 | $97.58 | $0.00 | $0.00 | $195.19 | $0.00 |
| 2023 | 34269 | CONSERVE - CONSERVATION FUTURES | $2.93 | $2.92 | $0.00 | $0.00 | $5.85 | $0.00 |
| 2023 | 34269 | CITYPT - CITY OF PT | $137.94 | $137.92 | $0.00 | $0.00 | $275.86 | $0.00 |
| 2023 | 34269 | PORTPT - PORT DISTRICT | $41.11 | $41.11 | $0.00 | $0.00 | $82.22 | $0.00 |
| 2023 | 34269 | PUD1 - PUD #1 | $6.47 | $6.47 | $0.00 | $0.00 | $12.94 | $0.00 |
| 2023 | 34269 | HD2 - HOSP DIST #2 | $5.70 | $5.69 | $0.00 | $0.00 | $11.39 | $0.00 |
| 2023 | 34269 | SD50 - SCHOOL DIST #50 | $177.47 | $177.46 | $0.00 | $0.00 | $354.93 | $0.00 |
| 2023 | 34269 | FD1 - FIRE DISTRICT #1 | $80.40 | $80.39 | $0.00 | $0.00 | $160.79 | $0.00 |
| 2023 | 34269 | EMS1 - FIRE DIST #1 EMS | $34.20 | $34.20 | $0.00 | $0.00 | $68.40 | $0.00 |
| 2023 | 34269 | JCCD - JC Conservation District | $2.53 | $2.53 | $0.00 | $0.00 | $5.06 | $0.00 |
| 2023 | 34269 | NWA - Noxious Weed Assessment | $2.15 | $2.15 | $0.00 | $0.00 | $4.30 | $0.00 |
| 2023 | 34269 | TOTAL: | $812.16 | $812.06 | $0.00 | $0.00 | $1624.22 | $0.00 |
|
| 2023 | 34269 | $812.16 | $812.06 | $0.00 | $0.00 | $1624.22 | $0.00 |
Values
| (+) Improvement Homesite Value: | + | $0 | |
| (+) Improvement Non-Homesite Value: | + | $0 | |
| (+) Land Homesite Value: | + | $0 | |
| (+) Land Non-Homesite Value: | + | $200,000 | |
| (+) Curr Use (HS): | + | $0 | $0 |
| (+) Curr Use (NHS): | + | $0 | $0 |
| | | -------------------------- | |
| (=) Market Value: | = | $200,000 | |
| (–) Productivity Loss: | – | $0 | |
| | | -------------------------- | |
| (=) Subtotal: | = | $200,000 | |
| (+) Senior Appraised Value: | + | $0 | |
| (+) Non-Senior Appraised Value: | + | $200,000 | |
| | | -------------------------- | |
| (=) Total Appraised Value: | = | $200,000 | |
| (–) Senior Exemption Loss: | – | $0 | |
| (–) Exemption Loss: | – | $0 | |
| | | -------------------------- | |
| (=) Taxable Value: | = | $200,000 | |
Taxing Jurisdiction
| Owner: | ERIKA BLACKSHER & | | |
| % Ownership: | 100.0000000000% | | |
| Total Value: | $200,000 | | |
| Tax Area: | 0110 - C-50F1E1H2 |
| CE | COUNTY CURRENT EXPENSE | 0.9034619479 | $200,000 | $200,000 | $180.69 | | |
| CNTYDD | DEVELOPMENTAL DISABILITIES | 0.0052121823 | $200,000 | $200,000 | $1.04 | | |
| CNTYVET | VETERANS RELIEF | 0.0052777810 | $200,000 | $200,000 | $1.06 | | |
| MENTAL | MENTAL HEALTH | 0.0052121823 | $200,000 | $200,000 | $1.04 | | |
| PTGEN | CITY OF PT GENERAL | 0.8551967795 | $200,000 | $200,000 | $171.04 | | |
| PTLLL | CITY OF PT - LIBRARY LID LIFT | 0.4010114288 | $200,000 | $200,000 | $80.20 | | |
| PTMVBOND | CITY OF PT MV BOND | 0.0484717981 | $200,000 | $200,000 | $9.69 | | |
| HOSP2CASH | HOSP DIST #2 GENERAL | 0.0536075306 | $200,000 | $200,000 | $10.72 | | |
| SCH50BOND | SCHOOL DIST #50 BOND 2016 | 0.5377451389 | $200,000 | $200,000 | $107.55 | | |
| SCH50CP | SCHOOL DIST #50 CAP PROJ | 0.4573475088 | $200,000 | $200,000 | $91.47 | | |
| SCH50MO | SCHOOL DIST #50 EP & O | 0.8262822886 | $200,000 | $200,000 | $165.26 | | |
| CONSERVE | CONSERVATION FUTURES | 0.0275621078 | $200,000 | $200,000 | $5.51 | | |
| EMS1 | FIRE DIST #1 EMS | 0.4679948282 | $200,000 | $200,000 | $93.60 | | |
| FD1 | FIRE DIST #1 GENERAL | 1.2171942929 | $200,000 | $200,000 | $243.44 | | |
| PORTPT | PORT OF PT GENERAL | 0.1134941229 | $200,000 | $200,000 | $22.70 | | |
| PORTPTIDD | PORT OF PT IDD 2019 | 0.2577346692 | $200,000 | $200,000 | $51.55 | | |
| PUD1 | PUD #1 GENERAL | 0.0597888892 | $200,000 | $200,000 | $11.96 | | |
| STATE | STATE SCHOOL PART 1 | 1.4940692947 | $200,000 | $200,000 | $298.81 | | |
| STATE2 | STATE SCHOOL PART 2 | 0.8050170049 | $200,000 | $200,000 | $161.00 | | |
| | Total Tax Rate: | 8.5416817766 | | | | | |
| | | | | Taxes w/Current Exemptions: | $1,708.33 | | |
| | | | | Taxes w/o Exemptions: | $1,708.33 | | |
Improvement / Building
Sketch
| No sketches available for this property. |
Property Image
Land
| 1 | 6270-1165L | | 0.0000 | 0.00 | 0.00 | 0.00 | 1.00 | $200,000 | $0 |
Roll Value History
| 2026 | N/A | N/A | N/A | N/A | N/A |
| 2025 | $0 | $200,000 | $0 | $200,000 | $200,000 |
| 2024 | $0 | $199,500 | $0 | $199,500 | $199,500 |
| 2023 | $0 | $190,000 | $0 | $190,000 | $190,000 |
| 2022 | $0 | $190,000 | $0 | $190,000 | $190,000 |
Deed and Sales History
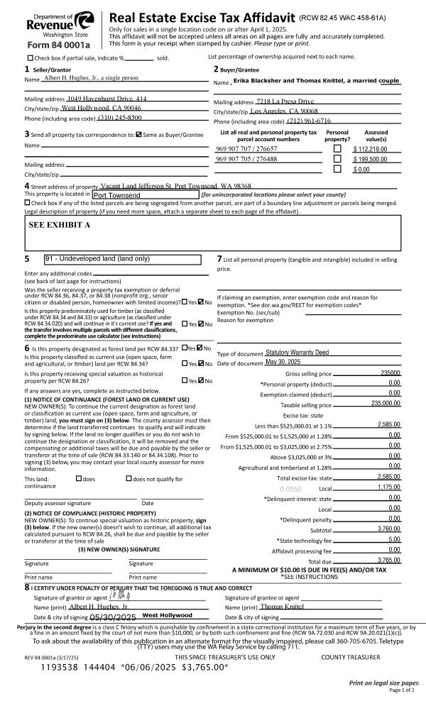
| 1 | 05/30/2025 | SWD | Statutory Warranty Deed | ALBERT HUGHES JR | ERIKA BLACKSHER & | | | $235,000.00 | 144404 | |
|   | |
| 2 | 04/09/2016 | QCD | Quit Claim Deed | | | | | | 0 | |
| 3 | 02/29/2008 | QCD | Quit Claim Deed | HUGHES JR, ALBERT H | HUGHES, JOHN | | | | 0 | 0 |
Payout Agreement
| No payout information available.. |