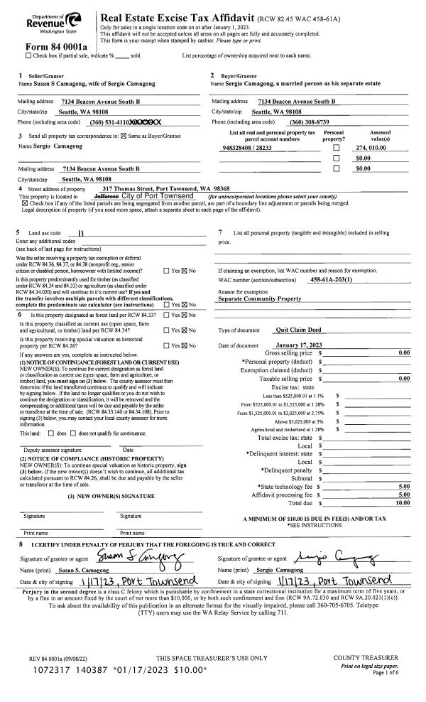
Property
Account |
| Property ID: | 276559 | Abbreviated Legal Description: | TRAIL CREST DIV 1 LOT 70 SUBJ/CCR OF RECORD AF#628834 |
| Parcel # / Geo ID: | 996300070 | Agent Code: | |
| Type: | Real | | |
| Tax Area: | 0110 - C-50F1E1H2 | Land Use Code | 91 |
| Open Space: | N | DFL | N |
| Historic Property: | N | Remodel Property: | N |
| Multi-Family Redevelopment: | N | | |
| Township: | 31N | Section: | 33 |
| Range: | 1W |
Location |
| Address: | 4654 TRAIL CREST DR PORT TOWNSEND, WA 98368 | Mapsco: | 142/070 |
| Neighborhood: | FOWLERS PARK, DAVID'S, WILDWOOD AND ACREAGE IN 33-31-1W | Map ID: | |
| Neighborhood CD: | 6010 |
Owner |
| Name: | JONATHAN & KALLADA VANCE | Owner ID: | 111325 |
| Mailing Address: | 2701 HENDRICKS ST PORT TOWNSEND, WA 98368-7007 | % Ownership: | 100.0000000000% |
| | | Exemptions: | |
Pay Tax Due
Select the appropriate checkbox next to the year to be paid. Multiple years may be selected.
*Convenience Fee not included
Taxes and Assessment Details
Property Tax Information as of
03/10/2026
Click on "Statement Details" to expand or collapse a tax statement.
* Please enter a valid date ** Please enter a valid date *
Statement Details |
| 2026 | 34095 | STATE - STATE LEVY (SCHOOL) | $137.95 | $137.94 | $0.00 | $0.00 | $0.00 | $275.89 |
| 2026 | 34095 | COUNTY - COUNTY LEVIES (CE, DD, VET, MH) | $55.17 | $55.14 | $0.00 | $0.00 | $0.00 | $110.31 |
| 2026 | 34095 | CONSERVE - CONSERVATION FUTURES | $1.66 | $1.65 | $0.00 | $0.00 | $0.00 | $3.31 |
| 2026 | 34095 | CITYPT - CITY OF PT | $78.28 | $78.28 | $0.00 | $0.00 | $0.00 | $156.56 |
| 2026 | 34095 | PORTPT - PORT DISTRICT | $22.28 | $22.27 | $0.00 | $0.00 | $0.00 | $44.55 |
| 2026 | 34095 | PUD1 - PUD #1 | $3.59 | $3.58 | $0.00 | $0.00 | $0.00 | $7.17 |
| 2026 | 34095 | HD2 - HOSP DIST #2 | $3.22 | $3.21 | $0.00 | $0.00 | $0.00 | $6.43 |
| 2026 | 34095 | SD50 - SCHOOL DIST #50 | $109.29 | $109.27 | $0.00 | $0.00 | $0.00 | $218.56 |
| 2026 | 34095 | FD1 - FIRE DISTRICT #1 | $73.03 | $73.03 | $0.00 | $0.00 | $0.00 | $146.06 |
| 2026 | 34095 | EMS1 - FIRE DIST #1 EMS | $28.08 | $28.08 | $0.00 | $0.00 | $0.00 | $56.16 |
| 2026 | 34095 | JCCD - JC Conservation District | $2.53 | $2.53 | $0.00 | $0.00 | $0.00 | $5.06 |
| 2026 | 34095 | NWA - Noxious Weed Assessment | $2.98 | $2.97 | $0.00 | $0.00 | $0.00 | $5.95 |
| 2026 | 34095 | TOTAL: | $518.06 | $517.95 | $0.00 | $0.00 | $0.00 | $1036.01 |
|
| 2026 | 34095 | $518.06 | $517.95 | $0.00 | $0.00 | $0.00 | $1036.01 |
Statement Details |
| 2025 | 34189 | STATE - STATE LEVY (SCHOOL) | $143.89 | $143.87 | $0.00 | $0.00 | $287.76 | $0.00 |
| 2025 | 34189 | COUNTY - COUNTY LEVIES (CE, DD, VET, MH) | $56.59 | $56.57 | $0.00 | $0.00 | $113.16 | $0.00 |
| 2025 | 34189 | CONSERVE - CONSERVATION FUTURES | $1.70 | $1.69 | $0.00 | $0.00 | $3.39 | $0.00 |
| 2025 | 34189 | CITYPT - CITY OF PT | $81.61 | $81.58 | $0.00 | $0.00 | $163.19 | $0.00 |
| 2025 | 34189 | PORTPT - PORT DISTRICT | $23.09 | $23.08 | $0.00 | $0.00 | $46.17 | $0.00 |
| 2025 | 34189 | PUD1 - PUD #1 | $3.70 | $3.70 | $0.00 | $0.00 | $7.40 | $0.00 |
| 2025 | 34189 | HD2 - HOSP DIST #2 | $3.30 | $3.30 | $0.00 | $0.00 | $6.60 | $0.00 |
| 2025 | 34189 | SD50 - SCHOOL DIST #50 | $105.16 | $105.14 | $0.00 | $0.00 | $210.30 | $0.00 |
| 2025 | 34189 | FD1 - FIRE DISTRICT #1 | $74.67 | $74.66 | $0.00 | $0.00 | $149.33 | $0.00 |
| 2025 | 34189 | EMS1 - FIRE DIST #1 EMS | $28.72 | $28.72 | $0.00 | $0.00 | $57.44 | $0.00 |
| 2025 | 34189 | JCCD - JC Conservation District | $2.53 | $2.53 | $0.00 | $0.00 | $5.06 | $0.00 |
| 2025 | 34189 | NWA - Noxious Weed Assessment | $2.15 | $2.15 | $0.00 | $0.00 | $4.30 | $0.00 |
| 2025 | 34189 | TOTAL: | $527.11 | $526.99 | $0.00 | $0.00 | $1054.10 | $0.00 |
|
| 2025 | 34189 | $527.11 | $526.99 | $0.00 | $0.00 | $1054.10 | $0.00 |
Statement Details |
| 2024 | 34256 | STATE - STATE LEVY (SCHOOL) | $133.04 | $133.02 | $0.00 | $0.00 | $266.06 | $0.00 |
| 2024 | 34256 | COUNTY - COUNTY LEVIES (CE, DD, VET, MH) | $56.93 | $56.91 | $0.00 | $0.00 | $113.84 | $0.00 |
| 2024 | 34256 | CONSERVE - CONSERVATION FUTURES | $1.71 | $1.70 | $0.00 | $0.00 | $3.41 | $0.00 |
| 2024 | 34256 | CITYPT - CITY OF PT | $81.35 | $81.33 | $0.00 | $0.00 | $162.68 | $0.00 |
| 2024 | 34256 | PORTPT - PORT DISTRICT | $23.52 | $23.51 | $0.00 | $0.00 | $47.03 | $0.00 |
| 2024 | 34256 | PUD1 - PUD #1 | $3.74 | $3.74 | $0.00 | $0.00 | $7.48 | $0.00 |
| 2024 | 34256 | HD2 - HOSP DIST #2 | $3.32 | $3.32 | $0.00 | $0.00 | $6.64 | $0.00 |
| 2024 | 34256 | SD50 - SCHOOL DIST #50 | $107.64 | $107.62 | $0.00 | $0.00 | $215.26 | $0.00 |
| 2024 | 34256 | FD1 - FIRE DISTRICT #1 | $75.27 | $75.27 | $0.00 | $0.00 | $150.54 | $0.00 |
| 2024 | 34256 | EMS1 - FIRE DIST #1 EMS | $28.75 | $28.75 | $0.00 | $0.00 | $57.50 | $0.00 |
| 2024 | 34256 | JCCD - JC Conservation District | $2.53 | $2.53 | $0.00 | $0.00 | $5.06 | $0.00 |
| 2024 | 34256 | NWA - Noxious Weed Assessment | $2.15 | $2.15 | $0.00 | $0.00 | $4.30 | $0.00 |
| 2024 | 34256 | TOTAL: | $519.95 | $519.85 | $0.00 | $0.00 | $1039.80 | $0.00 |
|
| 2024 | 34256 | $519.95 | $519.85 | $0.00 | $0.00 | $1039.80 | $0.00 |
Statement Details |
| 2023 | 34314 | STATE - STATE LEVY (SCHOOL) | $129.48 | $129.48 | $0.00 | $0.00 | $258.96 | $0.00 |
| 2023 | 34314 | COUNTY - COUNTY LEVIES (CE, DD, VET, MH) | $56.51 | $56.49 | $0.00 | $0.00 | $113.00 | $0.00 |
| 2023 | 34314 | CONSERVE - CONSERVATION FUTURES | $1.70 | $1.69 | $0.00 | $0.00 | $3.39 | $0.00 |
| 2023 | 34314 | CITYPT - CITY OF PT | $79.85 | $79.85 | $0.00 | $0.00 | $159.70 | $0.00 |
| 2023 | 34314 | PORTPT - PORT DISTRICT | $23.81 | $23.79 | $0.00 | $0.00 | $47.60 | $0.00 |
| 2023 | 34314 | PUD1 - PUD #1 | $3.75 | $3.74 | $0.00 | $0.00 | $7.49 | $0.00 |
| 2023 | 34314 | HD2 - HOSP DIST #2 | $3.31 | $3.29 | $0.00 | $0.00 | $6.60 | $0.00 |
| 2023 | 34314 | SD50 - SCHOOL DIST #50 | $102.75 | $102.74 | $0.00 | $0.00 | $205.49 | $0.00 |
| 2023 | 34314 | FD1 - FIRE DISTRICT #1 | $46.55 | $46.54 | $0.00 | $0.00 | $93.09 | $0.00 |
| 2023 | 34314 | EMS1 - FIRE DIST #1 EMS | $19.80 | $19.80 | $0.00 | $0.00 | $39.60 | $0.00 |
| 2023 | 34314 | JCCD - JC Conservation District | $2.53 | $2.53 | $0.00 | $0.00 | $5.06 | $0.00 |
| 2023 | 34314 | NWA - Noxious Weed Assessment | $2.15 | $2.15 | $0.00 | $0.00 | $4.30 | $0.00 |
| 2023 | 34314 | TOTAL: | $472.19 | $472.09 | $0.00 | $0.00 | $944.28 | $0.00 |
|
| 2023 | 34314 | $472.19 | $472.09 | $0.00 | $0.00 | $944.28 | $0.00 |
Values
| (+) Improvement Homesite Value: | + | $0 | |
| (+) Improvement Non-Homesite Value: | + | $0 | |
| (+) Land Homesite Value: | + | $0 | |
| (+) Land Non-Homesite Value: | + | $120,000 | |
| (+) Curr Use (HS): | + | $0 | $0 |
| (+) Curr Use (NHS): | + | $0 | $0 |
| | | -------------------------- | |
| (=) Market Value: | = | $120,000 | |
| (–) Productivity Loss: | – | $0 | |
| | | -------------------------- | |
| (=) Subtotal: | = | $120,000 | |
| (+) Senior Appraised Value: | + | $0 | |
| (+) Non-Senior Appraised Value: | + | $120,000 | |
| | | -------------------------- | |
| (=) Total Appraised Value: | = | $120,000 | |
| (–) Senior Exemption Loss: | – | $0 | |
| (–) Exemption Loss: | – | $0 | |
| | | -------------------------- | |
| (=) Taxable Value: | = | $120,000 | |
Taxing Jurisdiction
| Owner: | JONATHAN & KALLADA VANCE | | |
| % Ownership: | 100.0000000000% | | |
| Total Value: | $120,000 | | |
| Tax Area: | 0110 - C-50F1E1H2 |
| CE | COUNTY CURRENT EXPENSE | 0.9034619479 | $120,000 | $120,000 | $108.42 | | |
| CNTYDD | DEVELOPMENTAL DISABILITIES | 0.0052121823 | $120,000 | $120,000 | $0.63 | | |
| CNTYVET | VETERANS RELIEF | 0.0052777810 | $120,000 | $120,000 | $0.63 | | |
| MENTAL | MENTAL HEALTH | 0.0052121823 | $120,000 | $120,000 | $0.63 | | |
| PTGEN | CITY OF PT GENERAL | 0.8551967795 | $120,000 | $120,000 | $102.62 | | |
| PTLLL | CITY OF PT - LIBRARY LID LIFT | 0.4010114288 | $120,000 | $120,000 | $48.12 | | |
| PTMVBOND | CITY OF PT MV BOND | 0.0484717981 | $120,000 | $120,000 | $5.82 | | |
| HOSP2CASH | HOSP DIST #2 GENERAL | 0.0536075306 | $120,000 | $120,000 | $6.43 | | |
| SCH50BOND | SCHOOL DIST #50 BOND 2016 | 0.5377451389 | $120,000 | $120,000 | $64.53 | | |
| SCH50CP | SCHOOL DIST #50 CAP PROJ | 0.4573475088 | $120,000 | $120,000 | $54.88 | | |
| SCH50MO | SCHOOL DIST #50 EP & O | 0.8262822886 | $120,000 | $120,000 | $99.15 | | |
| CONSERVE | CONSERVATION FUTURES | 0.0275621078 | $120,000 | $120,000 | $3.31 | | |
| EMS1 | FIRE DIST #1 EMS | 0.4679948282 | $120,000 | $120,000 | $56.16 | | |
| FD1 | FIRE DIST #1 GENERAL | 1.2171942929 | $120,000 | $120,000 | $146.06 | | |
| PORTPT | PORT OF PT GENERAL | 0.1134941229 | $120,000 | $120,000 | $13.62 | | |
| PORTPTIDD | PORT OF PT IDD 2019 | 0.2577346692 | $120,000 | $120,000 | $30.93 | | |
| PUD1 | PUD #1 GENERAL | 0.0597888892 | $120,000 | $120,000 | $7.17 | | |
| STATE | STATE SCHOOL PART 1 | 1.4940692947 | $120,000 | $120,000 | $179.29 | | |
| STATE2 | STATE SCHOOL PART 2 | 0.8050170049 | $120,000 | $120,000 | $96.60 | | |
| | Total Tax Rate: | 8.5416817766 | | | | | |
| | | | | Taxes w/Current Exemptions: | $1,025.00 | | |
| | | | | Taxes w/o Exemptions: | $1,025.00 | | |
Improvement / Building
Sketch
| No sketches available for this property. |
Property Image
Land
| 1 | 6010-1165L | | 0.0000 | 0.00 | 0.00 | 0.00 | 1.00 | $120,000 | $0 |
Roll Value History
| 2026 | N/A | N/A | N/A | N/A | N/A |
| 2025 | $0 | $120,000 | $0 | $120,000 | $120,000 |
| 2024 | $0 | $120,000 | $0 | $120,000 | $120,000 |
| 2023 | $0 | $115,000 | $0 | $115,000 | $115,000 |
| 2022 | $0 | $110,000 | $0 | $110,000 | $110,000 |
Deed and Sales History
| 1 | 08/23/2024 | QCD | Quit Claim Deed | LOOPERS LLC | JONATHAN & KALLADA VANCE | | | | 143093 | |
| 2 | 06/19/2024 | SWD | Statutory Warranty Deed | ROBERTA J SOMMER | LOOPERS LLC | | | $260,000.00 | 142773 | |
|   | |
| 3 | 12/02/2022 | SWD | Statutory Warranty Deed | JOHN JACKSON | ROBERTA J SOMMER | | | $135,000.00 | 140326 | |
| 4 | 12/02/2022 | SWD | Statutory Warranty Deed | FABRICIA OLIVEIRA JACKSON | JOHN JACKSON | | | | 140325 | |
| 5 | 05/12/2021 | SWD | Statutory Warranty Deed | CANYON CREEK INVESTMENTS LLC | JOHN JACKSON | | | $120,000.00 | 136768 | |
| 6 | 11/22/2016 | SWD | Statutory Warranty Deed | | | | | | 0 | |
| 7 | 07/21/2016 | QCD | Quit Claim Deed | | | | | | 0 | |
| 8 | 01/16/1996 | SWD | Statutory Warranty Deed | DOLL, JOHN HENRY/EST | GLOBAL INVESTMENTS LIMITED | 0 | 0 | | 0 | 0 |
Payout Agreement
| No payout information available.. |