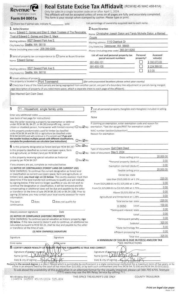
| 1 | 05/05/2024 | QCD | Quit Claim Deed | EDWARD GOMEZ & ELLEN MACK REVOCABLE TRUST | CHRISTOPHER J & TANDY M SLATON | | | $20,000.00 | 142593 | BLA PTN |
| 2 | 04/25/2024 | BLA | Boundary Line Adjustment | CHRISTOPHER J & TANDY M SLATON | CHRISTOPHER J & TANDY M SLATON | | | | 142515 | |
| 3 | 04/25/2024 | BLA | Boundary Line Adjustment | CHRISTOPHER J & TANDY M SLATON | EDWARD GOMEZ & ELLEN MACK REVOCABLE TRUST | | | | 142515 | |
| 4 | 06/02/2022 | SWD | Statutory Warranty Deed | EDWARD GOMEZ & ELLEN MACK REVOCABLE TRUST | CHRISTOPHER J & TANDY M SLATON | | | $275,000.00 | 139234 | |
| 5 | 08/28/2019 | BLA | Boundary Line Adjustment | EDWARD GOMEZ & ELLEN MACK REVOCABLE TRUST | EDWARD GOMEZ & ELLEN MACK REVOCABLE TRUST | | | | 134001 | |
| 6 | 01/08/2018 | SWD | Statutory Warranty Deed | CANDICE S COSLER | EDWARD GOMEZ & ELLEN MACK REVOCABLE TRUST | | | | 0 | |
| 7 | 09/20/2012 | QCD | Quit Claim Deed | VOHS, DAVID ALLAN | COSLER, CANDICE SUE | 0 | 0 | | 0 | 0 |
| 8 | 09/08/1997 | SWD | Statutory Warranty Deed | DELEO, JAMES A/DOROTHY L | VOHS, DAVID/COSLER, CANDICE | 0 | 0 | | 0 | 0 |