Property
Account |
| Property ID: | 27675 | Abbreviated Legal Description: | EISENBEIS ADDITION BLK 96 LOT 8 |
| Parcel # / Geo ID: | 948309608 | Agent Code: | |
| Type: | Real | | |
| Tax Area: | 0110 - C-50F1E1H2 | Land Use Code | 91 |
| Open Space: | N | DFL | N |
| Historic Property: | N | Remodel Property: | N |
| Multi-Family Redevelopment: | N | | |
| Township: | 30N | Section: | 10 |
| Range: | 1W |
Location |
| Address: | 0 PORT TOWNSEND, WA 98368 | Mapsco: | 029/006 |
| Neighborhood: | EISENBEIS, OC HASTINGS & SUPP, PINKS LESS VICTORIAN VILLAGE | Map ID: | |
| Neighborhood CD: | 6210 |
Owner |
| Name: | CYNTHIA L SIMMS | Owner ID: | 100156 |
| Mailing Address: | 1146 13TH ST PORT TOWNSEND, WA 98368-8605 | % Ownership: | 100.0000000000% |
| | | Exemptions: | |
Pay Tax Due
Select the appropriate checkbox next to the year to be paid. Multiple years may be selected.
*Convenience Fee not included
Taxes and Assessment Details
Property Tax Information as of
03/10/2026
Click on "Statement Details" to expand or collapse a tax statement.
* Please enter a valid date ** Please enter a valid date *
Statement Details |
| 2026 | 17031 | STATE - STATE LEVY (SCHOOL) | $60.35 | $60.35 | $0.00 | $0.00 | $0.00 | $120.70 |
| 2026 | 17031 | COUNTY - COUNTY LEVIES (CE, DD, VET, MH) | $24.14 | $24.11 | $0.00 | $0.00 | $0.00 | $48.25 |
| 2026 | 17031 | CONSERVE - CONSERVATION FUTURES | $0.73 | $0.72 | $0.00 | $0.00 | $0.00 | $1.45 |
| 2026 | 17031 | CITYPT - CITY OF PT | $34.25 | $34.24 | $0.00 | $0.00 | $0.00 | $68.49 |
| 2026 | 17031 | PORTPT - PORT DISTRICT | $9.75 | $9.74 | $0.00 | $0.00 | $0.00 | $19.49 |
| 2026 | 17031 | PUD1 - PUD #1 | $1.57 | $1.57 | $0.00 | $0.00 | $0.00 | $3.14 |
| 2026 | 17031 | HD2 - HOSP DIST #2 | $1.41 | $1.40 | $0.00 | $0.00 | $0.00 | $2.81 |
| 2026 | 17031 | SD50 - SCHOOL DIST #50 | $47.82 | $47.80 | $0.00 | $0.00 | $0.00 | $95.62 |
| 2026 | 17031 | FD1 - FIRE DISTRICT #1 | $31.95 | $31.95 | $0.00 | $0.00 | $0.00 | $63.90 |
| 2026 | 17031 | EMS1 - FIRE DIST #1 EMS | $12.29 | $12.28 | $0.00 | $0.00 | $0.00 | $24.57 |
| 2026 | 17031 | JCCD - JC Conservation District | $2.53 | $2.53 | $0.00 | $0.00 | $0.00 | $5.06 |
| 2026 | 17031 | NWA - Noxious Weed Assessment | $2.98 | $2.97 | $0.00 | $0.00 | $0.00 | $5.95 |
| 2026 | 17031 | WAT - Clean Water District | $13.00 | $13.00 | $0.00 | $0.00 | $0.00 | $26.00 |
| 2026 | 17031 | TOTAL: | $242.77 | $242.66 | $0.00 | $0.00 | $0.00 | $485.43 |
|
| 2026 | 17031 | $242.77 | $242.66 | $0.00 | $0.00 | $0.00 | $485.43 |
Statement Details |
| 2025 | 17086 | STATE - STATE LEVY (SCHOOL) | $113.31 | $113.30 | $0.00 | $0.00 | $226.61 | $0.00 |
| 2025 | 17086 | COUNTY - COUNTY LEVIES (CE, DD, VET, MH) | $44.56 | $44.55 | $0.00 | $0.00 | $89.11 | $0.00 |
| 2025 | 17086 | CONSERVE - CONSERVATION FUTURES | $1.34 | $1.33 | $0.00 | $0.00 | $2.67 | $0.00 |
| 2025 | 17086 | CITYPT - CITY OF PT | $64.26 | $64.25 | $0.00 | $0.00 | $128.51 | $0.00 |
| 2025 | 17086 | PORTPT - PORT DISTRICT | $18.18 | $18.18 | $0.00 | $0.00 | $36.36 | $0.00 |
| 2025 | 17086 | PUD1 - PUD #1 | $2.92 | $2.91 | $0.00 | $0.00 | $5.83 | $0.00 |
| 2025 | 17086 | HD2 - HOSP DIST #2 | $2.60 | $2.60 | $0.00 | $0.00 | $5.20 | $0.00 |
| 2025 | 17086 | SD50 - SCHOOL DIST #50 | $82.81 | $82.81 | $0.00 | $0.00 | $165.62 | $0.00 |
| 2025 | 17086 | FD1 - FIRE DISTRICT #1 | $58.80 | $58.80 | $0.00 | $0.00 | $117.60 | $0.00 |
| 2025 | 17086 | EMS1 - FIRE DIST #1 EMS | $22.62 | $22.61 | $0.00 | $0.00 | $45.23 | $0.00 |
| 2025 | 17086 | JCCD - JC Conservation District | $2.53 | $2.53 | $0.00 | $0.00 | $5.06 | $0.00 |
| 2025 | 17086 | NWA - Noxious Weed Assessment | $2.15 | $2.15 | $0.00 | $0.00 | $4.30 | $0.00 |
| 2025 | 17086 | WAT - Clean Water District | $13.00 | $13.00 | $0.00 | $0.00 | $26.00 | $0.00 |
| 2025 | 17086 | TOTAL: | $429.08 | $429.02 | $0.00 | $0.00 | $858.10 | $0.00 |
|
| 2025 | 17086 | $429.08 | $429.02 | $0.00 | $0.00 | $858.10 | $0.00 |
Statement Details |
| 2024 | 17120 | STATE - STATE LEVY (SCHOOL) | $104.11 | $104.11 | $0.00 | $0.00 | $208.22 | $0.00 |
| 2024 | 17120 | COUNTY - COUNTY LEVIES (CE, DD, VET, MH) | $44.56 | $44.54 | $0.00 | $0.00 | $89.10 | $0.00 |
| 2024 | 17120 | CONSERVE - CONSERVATION FUTURES | $1.34 | $1.33 | $0.00 | $0.00 | $2.67 | $0.00 |
| 2024 | 17120 | CITYPT - CITY OF PT | $63.66 | $63.65 | $0.00 | $0.00 | $127.31 | $0.00 |
| 2024 | 17120 | PORTPT - PORT DISTRICT | $18.40 | $18.40 | $0.00 | $0.00 | $36.80 | $0.00 |
| 2024 | 17120 | PUD1 - PUD #1 | $2.93 | $2.92 | $0.00 | $0.00 | $5.85 | $0.00 |
| 2024 | 17120 | HD2 - HOSP DIST #2 | $2.60 | $2.60 | $0.00 | $0.00 | $5.20 | $0.00 |
| 2024 | 17120 | SD50 - SCHOOL DIST #50 | $84.24 | $84.23 | $0.00 | $0.00 | $168.47 | $0.00 |
| 2024 | 17120 | FD1 - FIRE DISTRICT #1 | $58.91 | $58.90 | $0.00 | $0.00 | $117.81 | $0.00 |
| 2024 | 17120 | EMS1 - FIRE DIST #1 EMS | $22.50 | $22.50 | $0.00 | $0.00 | $45.00 | $0.00 |
| 2024 | 17120 | JCCD - JC Conservation District | $2.53 | $2.53 | $0.00 | $0.00 | $5.06 | $0.00 |
| 2024 | 17120 | NWA - Noxious Weed Assessment | $2.15 | $2.15 | $0.00 | $0.00 | $4.30 | $0.00 |
| 2024 | 17120 | WAT - Clean Water District | $12.50 | $12.50 | $0.00 | $0.00 | $25.00 | $0.00 |
| 2024 | 17120 | TOTAL: | $420.43 | $420.36 | $0.00 | $0.00 | $840.79 | $0.00 |
|
| 2024 | 17120 | $420.43 | $420.36 | $0.00 | $0.00 | $840.79 | $0.00 |
Statement Details |
| 2023 | 17144 | STATE - STATE LEVY (SCHOOL) | $94.17 | $94.16 | $0.00 | $0.00 | $188.33 | $0.00 |
| 2023 | 17144 | COUNTY - COUNTY LEVIES (CE, DD, VET, MH) | $41.11 | $41.08 | $0.00 | $0.00 | $82.19 | $0.00 |
| 2023 | 17144 | CONSERVE - CONSERVATION FUTURES | $1.23 | $1.23 | $0.00 | $0.00 | $2.46 | $0.00 |
| 2023 | 17144 | CITYPT - CITY OF PT | $58.08 | $58.07 | $0.00 | $0.00 | $116.15 | $0.00 |
| 2023 | 17144 | PORTPT - PORT DISTRICT | $17.32 | $17.30 | $0.00 | $0.00 | $34.62 | $0.00 |
| 2023 | 17144 | PUD1 - PUD #1 | $2.73 | $2.72 | $0.00 | $0.00 | $5.45 | $0.00 |
| 2023 | 17144 | HD2 - HOSP DIST #2 | $2.40 | $2.39 | $0.00 | $0.00 | $4.79 | $0.00 |
| 2023 | 17144 | SD50 - SCHOOL DIST #50 | $74.72 | $74.72 | $0.00 | $0.00 | $149.44 | $0.00 |
| 2023 | 17144 | FD1 - FIRE DISTRICT #1 | $33.85 | $33.85 | $0.00 | $0.00 | $67.70 | $0.00 |
| 2023 | 17144 | EMS1 - FIRE DIST #1 EMS | $14.40 | $14.40 | $0.00 | $0.00 | $28.80 | $0.00 |
| 2023 | 17144 | JCCD - JC Conservation District | $2.53 | $2.53 | $0.00 | $0.00 | $5.06 | $0.00 |
| 2023 | 17144 | NWA - Noxious Weed Assessment | $2.15 | $2.15 | $0.00 | $0.00 | $4.30 | $0.00 |
| 2023 | 17144 | WAT - Clean Water District | $12.00 | $12.00 | $0.00 | $0.00 | $24.00 | $0.00 |
| 2023 | 17144 | TOTAL: | $356.69 | $356.60 | $0.00 | $0.00 | $713.29 | $0.00 |
|
| 2023 | 17144 | $356.69 | $356.60 | $0.00 | $0.00 | $713.29 | $0.00 |
Values
| (+) Improvement Homesite Value: | + | $0 | |
| (+) Improvement Non-Homesite Value: | + | $0 | |
| (+) Land Homesite Value: | + | $0 | |
| (+) Land Non-Homesite Value: | + | $52,500 | |
| (+) Curr Use (HS): | + | $0 | $0 |
| (+) Curr Use (NHS): | + | $0 | $0 |
| | | -------------------------- | |
| (=) Market Value: | = | $52,500 | |
| (–) Productivity Loss: | – | $0 | |
| | | -------------------------- | |
| (=) Subtotal: | = | $52,500 | |
| (+) Senior Appraised Value: | + | $0 | |
| (+) Non-Senior Appraised Value: | + | $52,500 | |
| | | -------------------------- | |
| (=) Total Appraised Value: | = | $52,500 | |
| (–) Senior Exemption Loss: | – | $0 | |
| (–) Exemption Loss: | – | $0 | |
| | | -------------------------- | |
| (=) Taxable Value: | = | $52,500 | |
Taxing Jurisdiction
| Owner: | CYNTHIA L SIMMS | | |
| % Ownership: | 100.0000000000% | | |
| Total Value: | $52,500 | | |
| Tax Area: | 0110 - C-50F1E1H2 |
| CE | COUNTY CURRENT EXPENSE | 0.9034619479 | $52,500 | $52,500 | $47.43 | | |
| CNTYDD | DEVELOPMENTAL DISABILITIES | 0.0052121823 | $52,500 | $52,500 | $0.27 | | |
| CNTYVET | VETERANS RELIEF | 0.0052777810 | $52,500 | $52,500 | $0.28 | | |
| MENTAL | MENTAL HEALTH | 0.0052121823 | $52,500 | $52,500 | $0.27 | | |
| PTGEN | CITY OF PT GENERAL | 0.8551967795 | $52,500 | $52,500 | $44.90 | | |
| PTLLL | CITY OF PT - LIBRARY LID LIFT | 0.4010114288 | $52,500 | $52,500 | $21.05 | | |
| PTMVBOND | CITY OF PT MV BOND | 0.0484717981 | $52,500 | $52,500 | $2.54 | | |
| HOSP2CASH | HOSP DIST #2 GENERAL | 0.0536075306 | $52,500 | $52,500 | $2.81 | | |
| SCH50BOND | SCHOOL DIST #50 BOND 2016 | 0.5377451389 | $52,500 | $52,500 | $28.23 | | |
| SCH50CP | SCHOOL DIST #50 CAP PROJ | 0.4573475088 | $52,500 | $52,500 | $24.01 | | |
| SCH50MO | SCHOOL DIST #50 EP & O | 0.8262822886 | $52,500 | $52,500 | $43.38 | | |
| CONSERVE | CONSERVATION FUTURES | 0.0275621078 | $52,500 | $52,500 | $1.45 | | |
| EMS1 | FIRE DIST #1 EMS | 0.4679948282 | $52,500 | $52,500 | $24.57 | | |
| FD1 | FIRE DIST #1 GENERAL | 1.2171942929 | $52,500 | $52,500 | $63.90 | | |
| PORTPT | PORT OF PT GENERAL | 0.1134941229 | $52,500 | $52,500 | $5.96 | | |
| PORTPTIDD | PORT OF PT IDD 2019 | 0.2577346692 | $52,500 | $52,500 | $13.53 | | |
| PUD1 | PUD #1 GENERAL | 0.0597888892 | $52,500 | $52,500 | $3.14 | | |
| STATE | STATE SCHOOL PART 1 | 1.4940692947 | $52,500 | $52,500 | $78.44 | | |
| STATE2 | STATE SCHOOL PART 2 | 0.8050170049 | $52,500 | $52,500 | $42.26 | | |
| | Total Tax Rate: | 8.5416817766 | | | | | |
| | | | | Taxes w/Current Exemptions: | $448.42 | | |
| | | | | Taxes w/o Exemptions: | $448.42 | | |
Improvement / Building
Sketch
| No sketches available for this property. |
Property Image
Land
| 1 | 6210-1185L | | 0.0000 | 0.00 | 0.00 | 0.00 | 1.00 | $52,500 | $0 |
Roll Value History
| 2026 | N/A | N/A | N/A | N/A | N/A |
| 2025 | $0 | $52,500 | $0 | $52,500 | $52,500 |
| 2024 | $0 | $94,500 | $0 | $94,500 | $94,500 |
| 2023 | $0 | $90,000 | $0 | $90,000 | $90,000 |
| 2022 | $0 | $80,000 | $0 | $80,000 | $80,000 |
Deed and Sales History
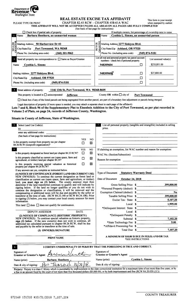
| 1 | 10/24/2018 | SWD | Statutory Warranty Deed | BARBARA HENTHORN | CYNTHIA L SIMMS | | | $399,000.00 | 131310 | |
|   | |
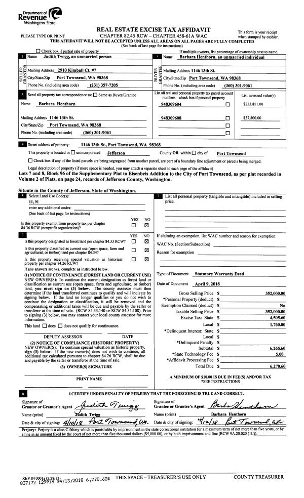
| 2 | 04/09/2018 | SWD | Statutory Warranty Deed | JUDITH TWIGG | BARBARA HENTHORN | | | $352,000.00 | 129918 | |
|   | |
| 3 | 04/21/2017 | SWD | Statutory Warranty Deed | CYNTHIA JARRETT | JUDITH TWIGG | | | $295,000.00 | 127577 | |
|   | |
| 4 | 02/17/2011 | QCD | Quit Claim Deed | JARRETT, CYNTHIA | JARRETT, GARY & CYNTHIA A | 0 | 0 | $0.00 | 115616 | 0 |
Payout Agreement
| No payout information available.. |