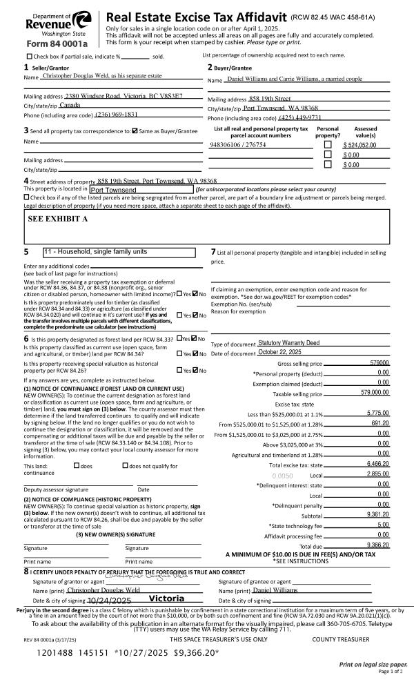
Property
Account |
| Property ID: | 276754 | Abbreviated Legal Description: | EISENBEIS ADDITION BLK 61 LOTS 5 & 6(LESS W16.99 OF EA) BND BY LLA#136386 |
| Parcel # / Geo ID: | 948306106 | Agent Code: | |
| Type: | Real | | |
| Tax Area: | 0110 - C-50F1E1H2 | Land Use Code | 11 |
| Open Space: | N | DFL | N |
| Historic Property: | N | Remodel Property: | N |
| Multi-Family Redevelopment: | N | | |
| Township: | 30N | Section: | 10 |
| Range: | 1W |
Location |
| Address: | 858 19TH ST PORT TOWNSEND, WA 98368 | Mapsco: | 026/0118A |
| Neighborhood: | EISENBEIS, OC HASTINGS & SUPP, PINKS LESS VICTORIAN VILLAGE | Map ID: | |
| Neighborhood CD: | 6210 |
Owner |
| Name: | DANIEL & CARRIE WILLIAMS | Owner ID: | 113564 |
| Mailing Address: | 858 19TH ST PORT TOWNSEND, WA 98368-6035 | % Ownership: | 100.0000000000% |
| | | Exemptions: | |
Pay Tax Due
Select the appropriate checkbox next to the year to be paid. Multiple years may be selected.
*Convenience Fee not included
Taxes and Assessment Details
Property Tax Information as of
03/10/2026
Click on "Statement Details" to expand or collapse a tax statement.
* Please enter a valid date ** Please enter a valid date *
Statement Details |
| 2026 | 34259 | STATE - STATE LEVY (SCHOOL) | $646.19 | $646.18 | $0.00 | $0.00 | $0.00 | $1292.37 |
| 2026 | 34259 | COUNTY - COUNTY LEVIES (CE, DD, VET, MH) | $258.36 | $258.33 | $0.00 | $0.00 | $0.00 | $516.69 |
| 2026 | 34259 | CONSERVE - CONSERVATION FUTURES | $7.75 | $7.74 | $0.00 | $0.00 | $0.00 | $15.49 |
| 2026 | 34259 | CITYPT - CITY OF PT | $366.71 | $366.69 | $0.00 | $0.00 | $0.00 | $733.40 |
| 2026 | 34259 | PORTPT - PORT DISTRICT | $104.34 | $104.34 | $0.00 | $0.00 | $0.00 | $208.68 |
| 2026 | 34259 | PUD1 - PUD #1 | $16.81 | $16.80 | $0.00 | $0.00 | $0.00 | $33.61 |
| 2026 | 34259 | HD2 - HOSP DIST #2 | $15.07 | $15.06 | $0.00 | $0.00 | $0.00 | $30.13 |
| 2026 | 34259 | SD50 - SCHOOL DIST #50 | $511.93 | $511.91 | $0.00 | $0.00 | $0.00 | $1023.84 |
| 2026 | 34259 | FD1 - FIRE DISTRICT #1 | $342.11 | $342.10 | $0.00 | $0.00 | $0.00 | $684.21 |
| 2026 | 34259 | EMS1 - FIRE DIST #1 EMS | $131.54 | $131.53 | $0.00 | $0.00 | $0.00 | $263.07 |
| 2026 | 34259 | JCCD - JC Conservation District | $2.55 | $2.55 | $0.00 | $0.00 | $0.00 | $5.10 |
| 2026 | 34259 | NWA - Noxious Weed Assessment | $2.98 | $2.97 | $0.00 | $0.00 | $0.00 | $5.95 |
| 2026 | 34259 | TOTAL: | $2406.34 | $2406.20 | $0.00 | $0.00 | $0.00 | $4812.54 |
|
| 2026 | 34259 | $2406.34 | $2406.20 | $0.00 | $0.00 | $0.00 | $4812.54 |
Statement Details |
| 2025 | 34353 | STATE - STATE LEVY (SCHOOL) | $628.36 | $628.34 | $0.00 | $0.00 | $1256.70 | $0.00 |
| 2025 | 34353 | COUNTY - COUNTY LEVIES (CE, DD, VET, MH) | $247.10 | $247.09 | $0.00 | $0.00 | $494.19 | $0.00 |
| 2025 | 34353 | CONSERVE - CONSERVATION FUTURES | $7.41 | $7.41 | $0.00 | $0.00 | $14.82 | $0.00 |
| 2025 | 34353 | CITYPT - CITY OF PT | $356.34 | $356.32 | $0.00 | $0.00 | $712.66 | $0.00 |
| 2025 | 34353 | PORTPT - PORT DISTRICT | $100.83 | $100.83 | $0.00 | $0.00 | $201.66 | $0.00 |
| 2025 | 34353 | PUD1 - PUD #1 | $16.17 | $16.17 | $0.00 | $0.00 | $32.34 | $0.00 |
| 2025 | 34353 | HD2 - HOSP DIST #2 | $14.42 | $14.41 | $0.00 | $0.00 | $28.83 | $0.00 |
| 2025 | 34353 | SD50 - SCHOOL DIST #50 | $459.22 | $459.22 | $0.00 | $0.00 | $918.44 | $0.00 |
| 2025 | 34353 | FD1 - FIRE DISTRICT #1 | $326.07 | $326.06 | $0.00 | $0.00 | $652.13 | $0.00 |
| 2025 | 34353 | EMS1 - FIRE DIST #1 EMS | $125.42 | $125.41 | $0.00 | $0.00 | $250.83 | $0.00 |
| 2025 | 34353 | JCCD - JC Conservation District | $2.55 | $2.55 | $0.00 | $0.00 | $5.10 | $0.00 |
| 2025 | 34353 | NWA - Noxious Weed Assessment | $2.15 | $2.15 | $0.00 | $0.00 | $4.30 | $0.00 |
| 2025 | 34353 | TOTAL: | $2286.04 | $2285.96 | $0.00 | $0.00 | $4572.00 | $0.00 |
|
| 2025 | 34353 | $2286.04 | $2285.96 | $0.00 | $0.00 | $4572.00 | $0.00 |
Statement Details |
| 2024 | 34422 | STATE - STATE LEVY (SCHOOL) | $573.33 | $573.32 | $0.00 | $0.00 | $1146.65 | $0.00 |
| 2024 | 34422 | COUNTY - COUNTY LEVIES (CE, DD, VET, MH) | $245.35 | $245.32 | $0.00 | $0.00 | $490.67 | $0.00 |
| 2024 | 34422 | CONSERVE - CONSERVATION FUTURES | $7.36 | $7.35 | $0.00 | $0.00 | $14.71 | $0.00 |
| 2024 | 34422 | CITYPT - CITY OF PT | $350.55 | $350.54 | $0.00 | $0.00 | $701.09 | $0.00 |
| 2024 | 34422 | PORTPT - PORT DISTRICT | $101.34 | $101.33 | $0.00 | $0.00 | $202.67 | $0.00 |
| 2024 | 34422 | PUD1 - PUD #1 | $16.12 | $16.11 | $0.00 | $0.00 | $32.23 | $0.00 |
| 2024 | 34422 | HD2 - HOSP DIST #2 | $14.32 | $14.31 | $0.00 | $0.00 | $28.63 | $0.00 |
| 2024 | 34422 | SD50 - SCHOOL DIST #50 | $463.85 | $463.85 | $0.00 | $0.00 | $927.70 | $0.00 |
| 2024 | 34422 | FD1 - FIRE DISTRICT #1 | $324.39 | $324.39 | $0.00 | $0.00 | $648.78 | $0.00 |
| 2024 | 34422 | EMS1 - FIRE DIST #1 EMS | $123.91 | $123.90 | $0.00 | $0.00 | $247.81 | $0.00 |
| 2024 | 34422 | JCCD - JC Conservation District | $2.55 | $2.55 | $0.00 | $0.00 | $5.10 | $0.00 |
| 2024 | 34422 | NWA - Noxious Weed Assessment | $2.15 | $2.15 | $0.00 | $0.00 | $4.30 | $0.00 |
| 2024 | 34422 | TOTAL: | $2225.22 | $2225.12 | $0.00 | $0.00 | $4450.34 | $0.00 |
|
| 2024 | 34422 | $2225.22 | $2225.12 | $0.00 | $0.00 | $4450.34 | $0.00 |
Statement Details |
| 2023 | 34483 | STATE - STATE LEVY (SCHOOL) | $292.92 | $292.90 | $0.00 | $0.00 | $585.82 | $0.00 |
| 2023 | 34483 | COUNTY - COUNTY LEVIES (CE, DD, VET, MH) | $127.83 | $127.80 | $0.00 | $0.00 | $255.63 | $0.00 |
| 2023 | 34483 | CONSERVE - CONSERVATION FUTURES | $3.84 | $3.83 | $0.00 | $0.00 | $7.67 | $0.00 |
| 2023 | 34483 | CITYPT - CITY OF PT | $180.65 | $180.64 | $0.00 | $0.00 | $361.29 | $0.00 |
| 2023 | 34483 | PORTPT - PORT DISTRICT | $53.84 | $53.84 | $0.00 | $0.00 | $107.68 | $0.00 |
| 2023 | 34483 | PUD1 - PUD #1 | $8.48 | $8.47 | $0.00 | $0.00 | $16.95 | $0.00 |
| 2023 | 34483 | HD2 - HOSP DIST #2 | $7.47 | $7.45 | $0.00 | $0.00 | $14.92 | $0.00 |
| 2023 | 34483 | SD50 - SCHOOL DIST #50 | $232.44 | $232.43 | $0.00 | $0.00 | $464.87 | $0.00 |
| 2023 | 34483 | FD1 - FIRE DISTRICT #1 | $105.30 | $105.29 | $0.00 | $0.00 | $210.59 | $0.00 |
| 2023 | 34483 | EMS1 - FIRE DIST #1 EMS | $44.79 | $44.79 | $0.00 | $0.00 | $89.58 | $0.00 |
| 2023 | 34483 | JCCD - JC Conservation District | $2.55 | $2.55 | $0.00 | $0.00 | $5.10 | $0.00 |
| 2023 | 34483 | NWA - Noxious Weed Assessment | $2.15 | $2.15 | $0.00 | $0.00 | $4.30 | $0.00 |
| 2023 | 34483 | TOTAL: | $1062.26 | $1062.14 | $0.00 | $0.00 | $2124.40 | $0.00 |
|
| 2023 | 34483 | $1062.26 | $1062.14 | $0.00 | $0.00 | $2124.40 | $0.00 |
Values
| (+) Improvement Homesite Value: | + | $0 | |
| (+) Improvement Non-Homesite Value: | + | $367,474 | |
| (+) Land Homesite Value: | + | $0 | |
| (+) Land Non-Homesite Value: | + | $194,650 | |
| (+) Curr Use (HS): | + | $0 | $0 |
| (+) Curr Use (NHS): | + | $0 | $0 |
| | | -------------------------- | |
| (=) Market Value: | = | $562,124 | |
| (–) Productivity Loss: | – | $0 | |
| | | -------------------------- | |
| (=) Subtotal: | = | $562,124 | |
| (+) Senior Appraised Value: | + | $0 | |
| (+) Non-Senior Appraised Value: | + | $562,124 | |
| | | -------------------------- | |
| (=) Total Appraised Value: | = | $562,124 | |
| (–) Senior Exemption Loss: | – | $0 | |
| (–) Exemption Loss: | – | $0 | |
| | | -------------------------- | |
| (=) Taxable Value: | = | $562,124 | |
Taxing Jurisdiction
| Owner: | DANIEL & CARRIE WILLIAMS | | |
| % Ownership: | 100.0000000000% | | |
| Total Value: | $562,124 | | |
| Tax Area: | 0110 - C-50F1E1H2 |
| CE | COUNTY CURRENT EXPENSE | 0.9034619479 | $562,124 | $562,124 | $507.86 | | |
| CNTYDD | DEVELOPMENTAL DISABILITIES | 0.0052121823 | $562,124 | $562,124 | $2.93 | | |
| CNTYVET | VETERANS RELIEF | 0.0052777810 | $562,124 | $562,124 | $2.97 | | |
| MENTAL | MENTAL HEALTH | 0.0052121823 | $562,124 | $562,124 | $2.93 | | |
| PTGEN | CITY OF PT GENERAL | 0.8551967795 | $562,124 | $562,124 | $480.73 | | |
| PTLLL | CITY OF PT - LIBRARY LID LIFT | 0.4010114288 | $562,124 | $562,124 | $225.42 | | |
| PTMVBOND | CITY OF PT MV BOND | 0.0484717981 | $562,124 | $562,124 | $27.25 | | |
| HOSP2CASH | HOSP DIST #2 GENERAL | 0.0536075306 | $562,124 | $562,124 | $30.13 | | |
| SCH50BOND | SCHOOL DIST #50 BOND 2016 | 0.5377451389 | $562,124 | $562,124 | $302.28 | | |
| SCH50CP | SCHOOL DIST #50 CAP PROJ | 0.4573475088 | $562,124 | $562,124 | $257.09 | | |
| SCH50MO | SCHOOL DIST #50 EP & O | 0.8262822886 | $562,124 | $562,124 | $464.47 | | |
| CONSERVE | CONSERVATION FUTURES | 0.0275621078 | $562,124 | $562,124 | $15.49 | | |
| EMS1 | FIRE DIST #1 EMS | 0.4679948282 | $562,124 | $562,124 | $263.07 | | |
| FD1 | FIRE DIST #1 GENERAL | 1.2171942929 | $562,124 | $562,124 | $684.21 | | |
| PORTPT | PORT OF PT GENERAL | 0.1134941229 | $562,124 | $562,124 | $63.80 | | |
| PORTPTIDD | PORT OF PT IDD 2019 | 0.2577346692 | $562,124 | $562,124 | $144.88 | | |
| PUD1 | PUD #1 GENERAL | 0.0597888892 | $562,124 | $562,124 | $33.61 | | |
| STATE | STATE SCHOOL PART 1 | 1.4940692947 | $562,124 | $562,124 | $839.85 | | |
| STATE2 | STATE SCHOOL PART 2 | 0.8050170049 | $562,124 | $562,124 | $452.52 | | |
| | Total Tax Rate: | 8.5416817766 | | | | | |
| | | | | Taxes w/Current Exemptions: | $4,801.49 | | |
| | | | | Taxes w/o Exemptions: | $4,801.49 | | |
Improvement / Building
| Improvement #1: | Residential Bldg | State Code: | 11 | 1562.0 sqft | Value: | $367,474 |
| Bathrooms (#): | 2 (FULL) | Bedrooms (#): | 2 | | Exterior Wall: | SI/ST | Floor Construction: | FRAME | | Foundation: | CONPR | Heating/Cooling: | HPUMP | | Roof Cover: | COMP |   |   |
|
| | Type | Description | Class CD | Sub Class CD | Year Built | Area |
| | MA | Main Area | 4- | 2S | 2022 | 781.0 |
| | MA2 | Second Floor Main Area | 4- | 2S | 2022 | 781.0 |
| | HDECK | House Deck | 3 | 2S | 2022 | 100.0 |
| | HWPOR | House Wood Porch | 3 | 2S | 2022 | 104.0 |
| | GATT | House Attached Garage | 3 | 2S | 2022 | 348.0 |
Sketch
Property Image
Land
| 1 | 6210-1185L | | 0.0000 | 0.00 | 0.00 | 0.00 | 1.00 | $34,650 | $0 |
| 2 | 6210-1175L | | 0.0000 | 0.00 | 0.00 | 0.00 | 1.00 | $160,000 | $0 |
Roll Value History
| 2026 | N/A | N/A | N/A | N/A | N/A |
| 2025 | $367,474 | $194,650 | $0 | $562,124 | $562,124 |
| 2024 | $366,867 | $157,185 | $0 | $524,052 | $524,052 |
| 2023 | $350,917 | $144,700 | $0 | $495,617 | $495,617 |
| 2022 | $122,446 | $126,400 | $0 | $248,846 | $248,846 |
Deed and Sales History
| 1 | 10/22/2025 | SWD | Statutory Warranty Deed | CHRISTOPHER D WELD | DANIEL & CARRIE WILLIAMS | | | $579,000.00 | 145151 | |
| 2 | 06/08/2023 | QCD | Quit Claim Deed | SARAH WELD | CHRISTOPHER D WELD | | | | 141068 | |
| 3 | 06/08/2023 | SWD | Statutory Warranty Deed | SYLVIA P BOWMAN | CHRISTOPHER D WELD | | | $565,000.00 | 141067 | |
| 4 | 03/04/2022 | QCD | Quit Claim Deed | SYLVIA BOWMAN LLC | SYLVIA P BOWMAN | | | | 138658 | |
| 5 | 02/17/2021 | BLA | Boundary Line Adjustment | SYLVIA BOWMAN LLC | SYLVIA BOWMAN LLC | | | | 136386 | |
| 6 | 02/17/2021 | BLA | Boundary Line Adjustment | | SYLVIA BOWMAN LLC | | | | 136386 | |
| 7 | 02/24/2020 | QCD | Quit Claim Deed | SYLVIA P BOWMAN | SYLVIA BOWMAN LLC | | | | 0 | |
| 8 | 02/04/2020 | SWD | Statutory Warranty Deed | GARY L BUCHILLO | SYLVIA P BOWMAN | | | | 0 | |
| 9 | 03/28/2013 | PRD | Personal Representatives Deed | | GARY L BUCHILLO | | | | 0 | |
Payout Agreement
| No payout information available.. |