Property
Account |
| Property ID: | 276778 | Abbreviated Legal Description: | PORT TOWNSEND O.T. BLK 45 LOTS 5 & 7(NW'LY 62' OF EACH) |
| Parcel # / Geo ID: | 989704505 | Agent Code: | |
| Type: | Real | | |
| Tax Area: | 0110 - C-50F1E1H2 | Land Use Code | 16 |
| Open Space: | N | DFL | N |
| Historic Property: | N | Remodel Property: | N |
| Multi-Family Redevelopment: | N | | |
| Township: | 30N | Section: | 1 |
| Range: | 1W |
Location |
| Address: | | Mapsco: | |
| Neighborhood: | PORT TOWNSEND DOWNTOWN COMMERCIAL DISTRICT | Map ID: | |
| Neighborhood CD: | 6290C |
Owner |
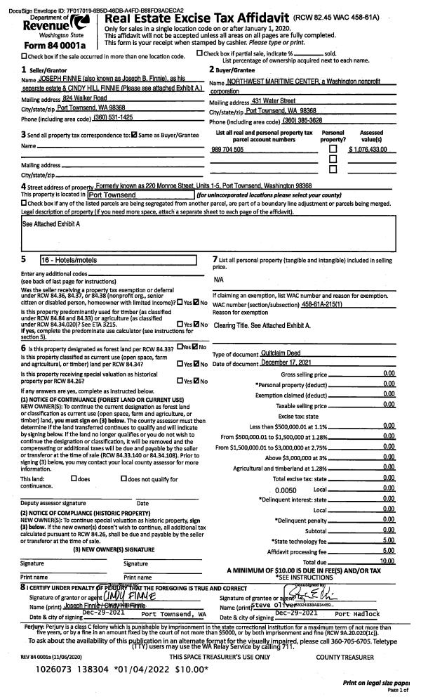
| Name: | NORTHWEST MARITIME CENTER | Owner ID: | 23690 |
| Mailing Address: | 431 WATER ST PORT TOWNSEND, WA 98368-5723 | % Ownership: | 100.0000000000% |
| | | Exemptions: | |
Pay Tax Due
There is currently No Amount Due on this property.
Taxes and Assessment Details
Property Tax Information as of
03/13/2026
Click on "Statement Details" to expand or collapse a tax statement.
* Please enter a valid date ** Please enter a valid date *
Statement Details |
| | TOTAL: | $0.00 | $0.00 | $0.00 | $0.00 | $0.00 | $0.00 |
|
| | $0.00 | $0.00 | $0.00 | $0.00 | $0.00 | $0.00 |
Values
| (+) Improvement Homesite Value: | + | $0 | |
| (+) Improvement Non-Homesite Value: | + | $558,489 | |
| (+) Land Homesite Value: | + | $0 | |
| (+) Land Non-Homesite Value: | + | $410,100 | |
| (+) Curr Use (HS): | + | $0 | $0 |
| (+) Curr Use (NHS): | + | $0 | $0 |
| | | -------------------------- | |
| (=) Market Value: | = | $968,589 | |
| (–) Productivity Loss: | – | $0 | |
| | | -------------------------- | |
| (=) Subtotal: | = | $968,589 | |
| (+) Senior Appraised Value: | + | $0 | |
| (+) Non-Senior Appraised Value: | + | $968,589 | |
| | | -------------------------- | |
| (=) Total Appraised Value: | = | $968,589 | |
| (–) Senior Exemption Loss: | – | $0 | |
| (–) Exemption Loss: | – | $0 | |
| | | -------------------------- | |
| (=) Taxable Value: | = | $968,589 | |
Taxing Jurisdiction
| Owner: | NORTHWEST MARITIME CENTER | | |
| % Ownership: | 100.0000000000% | | |
| Total Value: | $968,589 | | |
| Tax Area: | 0110 - C-50F1E1H2 |
| CE | COUNTY CURRENT EXPENSE | 0.9034619479 | $968,589 | $968,589 | $875.08 | | |
| CNTYDD | DEVELOPMENTAL DISABILITIES | 0.0052121823 | $968,589 | $968,589 | $5.05 | | |
| CNTYVET | VETERANS RELIEF | 0.0052777810 | $968,589 | $968,589 | $5.11 | | |
| MENTAL | MENTAL HEALTH | 0.0052121823 | $968,589 | $968,589 | $5.05 | | |
| PTGEN | CITY OF PT GENERAL | 0.8551967795 | $968,589 | $968,589 | $828.33 | | |
| PTLLL | CITY OF PT - LIBRARY LID LIFT | 0.4010114288 | $968,589 | $968,589 | $388.42 | | |
| PTMVBOND | CITY OF PT MV BOND | 0.0484717981 | $968,589 | $968,589 | $46.95 | | |
| HOSP2CASH | HOSP DIST #2 GENERAL | 0.0536075306 | $968,589 | $968,589 | $51.92 | | |
| SCH50BOND | SCHOOL DIST #50 BOND 2016 | 0.5377451389 | $968,589 | $968,589 | $520.85 | | |
| SCH50CP | SCHOOL DIST #50 CAP PROJ | 0.4573475088 | $968,589 | $968,589 | $442.98 | | |
| SCH50MO | SCHOOL DIST #50 EP & O | 0.8262822886 | $968,589 | $968,589 | $800.33 | | |
| CONSERVE | CONSERVATION FUTURES | 0.0275621078 | $968,589 | $968,589 | $26.70 | | |
| EMS1 | FIRE DIST #1 EMS | 0.4679948282 | $968,589 | $968,589 | $453.29 | | |
| FD1 | FIRE DIST #1 GENERAL | 1.2171942929 | $968,589 | $968,589 | $1,178.96 | | |
| PORTPT | PORT OF PT GENERAL | 0.1134941229 | $968,589 | $968,589 | $109.93 | | |
| PORTPTIDD | PORT OF PT IDD 2019 | 0.2577346692 | $968,589 | $968,589 | $249.64 | | |
| PUD1 | PUD #1 GENERAL | 0.0597888892 | $968,589 | $968,589 | $57.91 | | |
| STATE | STATE SCHOOL PART 1 | 1.4940692947 | $968,589 | $968,589 | $1,447.14 | | |
| STATE2 | STATE SCHOOL PART 2 | 0.8050170049 | $968,589 | $968,589 | $779.73 | | |
| | Total Tax Rate: | 8.5416817766 | | | | | |
| | | | | Taxes w/Current Exemptions: | $8,273.37 | | |
| | | | | Taxes w/o Exemptions: | $8,273.37 | | |
Improvement / Building
| Improvement #1: | Commercial/Industrial/Government Bldg | State Code: | 60 | 512.0 sqft | Value: | $30,373 |
| Exterior Wall: | SI/ST | Floor Construction: | FRAME | | Foundation: | CONPR | Interior Finish: | FIN | | Roof Cover: | BLTUP |   |   |
|
| Improvement #2: | Commercial/Industrial/Government Bldg | State Code: | 16 | 3192.0 sqft | Value: | $528,116 |
| Exterior Wall: | SI/ST | Foundation: | CONPR | | Roof Cover: | SHNGL |   |   |
|
Sketch
Property Image
Land
| 1 | 6290-6265Q | Comm/Apts Downtown on Side Streets | 0.1566 | 6820.00 | 0.00 | 0.00 | 1.00 | $410,100 | $0 |
Roll Value History
| 2026 | N/A | N/A | N/A | N/A | N/A |
| 2025 | $558,489 | $410,100 | $0 | $968,589 | $968,589 |
| 2024 | $549,949 | $410,100 | $0 | $960,049 | $960,049 |
| 2023 | $549,949 | $410,100 | $0 | $960,049 | $960,049 |
| 2022 | $523,761 | $410,100 | $0 | $933,861 | $933,861 |
Deed and Sales History
| 1 | 12/17/2021 | SWD | Statutory Warranty Deed | JOSEPH B FINNIE | NORTHWEST MARITIME CENTER | | | $936,962.00 | 138305 | |
| 2 | 12/17/2021 | QCD | Quit Claim Deed | JOSEPH B FINNIE | NORTHWEST MARITIME CENTER | | | | 138304 | |
Payout Agreement
| No payout information available.. |