Property
Account |
| Property ID: | 276794 | Abbreviated Legal Description: | TRAIL CREST DIVISION 2 LOT 7 SUBJ/CCR OF RECORD AF#652973 |
| Parcel # / Geo ID: | 996300007 | Agent Code: | |
| Type: | Real | | |
| Tax Area: | 0110 - C-50F1E1H2 | Land Use Code | 11 |
| Open Space: | N | DFL | N |
| Historic Property: | N | Remodel Property: | N |
| Multi-Family Redevelopment: | N | | |
| Township: | 31N | Section: | 33 |
| Range: | 1W |
Location |
| Address: | 4405 ALBATROSS ST PORT TOWNSEND, WA 98368 | Mapsco: | 142/007 |
| Neighborhood: | FOWLERS PARK, DAVID'S, WILDWOOD AND ACREAGE IN 33-31-1W | Map ID: | |
| Neighborhood CD: | 6010 |
Owner |
| Name: | DENNIS L & CHRISTINE G TURNER | Owner ID: | 111679 |
| Mailing Address: | 4405 ALBATROSS ST PORT TOWNSEND, WA 98368-0542 | % Ownership: | 100.0000000000% |
| | | Exemptions: | |
Pay Tax Due
Select the appropriate checkbox next to the year to be paid. Multiple years may be selected.
*Convenience Fee not included
Taxes and Assessment Details
Property Tax Information as of
03/11/2026
Click on "Statement Details" to expand or collapse a tax statement.
* Please enter a valid date ** Please enter a valid date *
Statement Details |
| 2026 | 34295 | STATE - STATE LEVY (SCHOOL) | $784.13 | $784.12 | $0.00 | $0.00 | $0.00 | $1568.25 |
| 2026 | 34295 | COUNTY - COUNTY LEVIES (CE, DD, VET, MH) | $313.50 | $313.49 | $0.00 | $0.00 | $0.00 | $626.99 |
| 2026 | 34295 | CONSERVE - CONSERVATION FUTURES | $9.40 | $9.40 | $0.00 | $0.00 | $0.00 | $18.80 |
| 2026 | 34295 | CITYPT - CITY OF PT | $444.98 | $444.97 | $0.00 | $0.00 | $0.00 | $889.95 |
| 2026 | 34295 | PORTPT - PORT DISTRICT | $126.62 | $126.61 | $0.00 | $0.00 | $0.00 | $253.23 |
| 2026 | 34295 | PUD1 - PUD #1 | $20.39 | $20.39 | $0.00 | $0.00 | $0.00 | $40.78 |
| 2026 | 34295 | HD2 - HOSP DIST #2 | $18.29 | $18.28 | $0.00 | $0.00 | $0.00 | $36.57 |
| 2026 | 34295 | SD50 - SCHOOL DIST #50 | $621.21 | $621.19 | $0.00 | $0.00 | $0.00 | $1242.40 |
| 2026 | 34295 | FD1 - FIRE DISTRICT #1 | $415.14 | $415.13 | $0.00 | $0.00 | $0.00 | $830.27 |
| 2026 | 34295 | EMS1 - FIRE DIST #1 EMS | $159.62 | $159.61 | $0.00 | $0.00 | $0.00 | $319.23 |
| 2026 | 34295 | JCCD - JC Conservation District | $2.55 | $2.55 | $0.00 | $0.00 | $0.00 | $5.10 |
| 2026 | 34295 | NWA - Noxious Weed Assessment | $2.98 | $2.97 | $0.00 | $0.00 | $0.00 | $5.95 |
| 2026 | 34295 | TOTAL: | $2918.81 | $2918.71 | $0.00 | $0.00 | $0.00 | $5837.52 |
|
| 2026 | 34295 | $2918.81 | $2918.71 | $0.00 | $0.00 | $0.00 | $5837.52 |
Statement Details |
| 2025 | 34389 | STATE - STATE LEVY (SCHOOL) | $775.06 | $775.06 | $0.00 | $0.00 | $1550.12 | $0.00 |
| 2025 | 34389 | COUNTY - COUNTY LEVIES (CE, DD, VET, MH) | $304.80 | $304.77 | $0.00 | $0.00 | $609.57 | $0.00 |
| 2025 | 34389 | CONSERVE - CONSERVATION FUTURES | $9.14 | $9.14 | $0.00 | $0.00 | $18.28 | $0.00 |
| 2025 | 34389 | CITYPT - CITY OF PT | $439.54 | $439.53 | $0.00 | $0.00 | $879.07 | $0.00 |
| 2025 | 34389 | PORTPT - PORT DISTRICT | $124.38 | $124.36 | $0.00 | $0.00 | $248.74 | $0.00 |
| 2025 | 34389 | PUD1 - PUD #1 | $19.95 | $19.94 | $0.00 | $0.00 | $39.89 | $0.00 |
| 2025 | 34389 | HD2 - HOSP DIST #2 | $17.78 | $17.78 | $0.00 | $0.00 | $35.56 | $0.00 |
| 2025 | 34389 | SD50 - SCHOOL DIST #50 | $566.45 | $566.43 | $0.00 | $0.00 | $1132.88 | $0.00 |
| 2025 | 34389 | FD1 - FIRE DISTRICT #1 | $402.20 | $402.20 | $0.00 | $0.00 | $804.40 | $0.00 |
| 2025 | 34389 | EMS1 - FIRE DIST #1 EMS | $154.70 | $154.69 | $0.00 | $0.00 | $309.39 | $0.00 |
| 2025 | 34389 | JCCD - JC Conservation District | $2.55 | $2.55 | $0.00 | $0.00 | $5.10 | $0.00 |
| 2025 | 34389 | NWA - Noxious Weed Assessment | $2.15 | $2.15 | $0.00 | $0.00 | $4.30 | $0.00 |
| 2025 | 34389 | TOTAL: | $2818.70 | $2818.60 | $0.00 | $0.00 | $5637.30 | $0.00 |
|
| 2025 | 34389 | $2818.70 | $2818.60 | $0.00 | $0.00 | $5637.30 | $0.00 |
Statement Details |
| 2024 | 34458 | STATE - STATE LEVY (SCHOOL) | $104.11 | $104.11 | $0.00 | $0.00 | $208.22 | $0.00 |
| 2024 | 34458 | COUNTY - COUNTY LEVIES (CE, DD, VET, MH) | $44.56 | $44.54 | $0.00 | $0.00 | $89.10 | $0.00 |
| 2024 | 34458 | CONSERVE - CONSERVATION FUTURES | $1.34 | $1.33 | $0.00 | $0.00 | $2.67 | $0.00 |
| 2024 | 34458 | CITYPT - CITY OF PT | $63.66 | $63.65 | $0.00 | $0.00 | $127.31 | $0.00 |
| 2024 | 34458 | PORTPT - PORT DISTRICT | $18.40 | $18.40 | $0.00 | $0.00 | $36.80 | $0.00 |
| 2024 | 34458 | PUD1 - PUD #1 | $2.93 | $2.92 | $0.00 | $0.00 | $5.85 | $0.00 |
| 2024 | 34458 | HD2 - HOSP DIST #2 | $2.60 | $2.60 | $0.00 | $0.00 | $5.20 | $0.00 |
| 2024 | 34458 | SD50 - SCHOOL DIST #50 | $84.24 | $84.23 | $0.00 | $0.00 | $168.47 | $0.00 |
| 2024 | 34458 | FD1 - FIRE DISTRICT #1 | $58.91 | $58.90 | $0.00 | $0.00 | $117.81 | $0.00 |
| 2024 | 34458 | EMS1 - FIRE DIST #1 EMS | $22.50 | $22.50 | $0.00 | $0.00 | $45.00 | $0.00 |
| 2024 | 34458 | JCCD - JC Conservation District | $2.53 | $2.53 | $0.00 | $0.00 | $5.06 | $0.00 |
| 2024 | 34458 | NWA - Noxious Weed Assessment | $2.15 | $2.15 | $0.00 | $0.00 | $4.30 | $0.00 |
| 2024 | 34458 | TOTAL: | $407.93 | $407.86 | $0.00 | $0.00 | $815.79 | $0.00 |
|
| 2024 | 34458 | $407.93 | $407.86 | $0.00 | $0.00 | $815.79 | $0.00 |
Statement Details |
| 2023 | 34519 | STATE - STATE LEVY (SCHOOL) | $105.94 | $105.93 | $0.00 | $0.00 | $211.87 | $0.00 |
| 2023 | 34519 | COUNTY - COUNTY LEVIES (CE, DD, VET, MH) | $46.23 | $46.21 | $0.00 | $0.00 | $92.44 | $0.00 |
| 2023 | 34519 | CONSERVE - CONSERVATION FUTURES | $1.39 | $1.38 | $0.00 | $0.00 | $2.77 | $0.00 |
| 2023 | 34519 | CITYPT - CITY OF PT | $65.34 | $65.33 | $0.00 | $0.00 | $130.67 | $0.00 |
| 2023 | 34519 | PORTPT - PORT DISTRICT | $19.48 | $19.47 | $0.00 | $0.00 | $38.95 | $0.00 |
| 2023 | 34519 | PUD1 - PUD #1 | $3.07 | $3.06 | $0.00 | $0.00 | $6.13 | $0.00 |
| 2023 | 34519 | HD2 - HOSP DIST #2 | $2.70 | $2.69 | $0.00 | $0.00 | $5.39 | $0.00 |
| 2023 | 34519 | SD50 - SCHOOL DIST #50 | $84.07 | $84.06 | $0.00 | $0.00 | $168.13 | $0.00 |
| 2023 | 34519 | FD1 - FIRE DISTRICT #1 | $38.08 | $38.08 | $0.00 | $0.00 | $76.16 | $0.00 |
| 2023 | 34519 | EMS1 - FIRE DIST #1 EMS | $16.20 | $16.20 | $0.00 | $0.00 | $32.40 | $0.00 |
| 2023 | 34519 | JCCD - JC Conservation District | $2.53 | $2.53 | $0.00 | $0.00 | $5.06 | $0.00 |
| 2023 | 34519 | NWA - Noxious Weed Assessment | $2.15 | $2.15 | $0.00 | $0.00 | $4.30 | $0.00 |
| 2023 | 34519 | TOTAL: | $387.18 | $387.09 | $0.00 | $0.00 | $774.27 | $0.00 |
|
| 2023 | 34519 | $387.18 | $387.09 | $0.00 | $0.00 | $774.27 | $0.00 |
Values
| (+) Improvement Homesite Value: | + | $0 | |
| (+) Improvement Non-Homesite Value: | + | $562,120 | |
| (+) Land Homesite Value: | + | $0 | |
| (+) Land Non-Homesite Value: | + | $120,000 | |
| (+) Curr Use (HS): | + | $0 | $0 |
| (+) Curr Use (NHS): | + | $0 | $0 |
| | | -------------------------- | |
| (=) Market Value: | = | $682,120 | |
| (–) Productivity Loss: | – | $0 | |
| | | -------------------------- | |
| (=) Subtotal: | = | $682,120 | |
| (+) Senior Appraised Value: | + | $0 | |
| (+) Non-Senior Appraised Value: | + | $682,120 | |
| | | -------------------------- | |
| (=) Total Appraised Value: | = | $682,120 | |
| (–) Senior Exemption Loss: | – | $0 | |
| (–) Exemption Loss: | – | $0 | |
| | | -------------------------- | |
| (=) Taxable Value: | = | $682,120 | |
Taxing Jurisdiction
| Owner: | DENNIS L & CHRISTINE G TURNER | | |
| % Ownership: | 100.0000000000% | | |
| Total Value: | $682,120 | | |
| Tax Area: | 0110 - C-50F1E1H2 |
| CE | COUNTY CURRENT EXPENSE | 0.9034619479 | $682,120 | $682,120 | $616.27 | | |
| CNTYDD | DEVELOPMENTAL DISABILITIES | 0.0052121823 | $682,120 | $682,120 | $3.56 | | |
| CNTYVET | VETERANS RELIEF | 0.0052777810 | $682,120 | $682,120 | $3.60 | | |
| MENTAL | MENTAL HEALTH | 0.0052121823 | $682,120 | $682,120 | $3.56 | | |
| PTGEN | CITY OF PT GENERAL | 0.8551967795 | $682,120 | $682,120 | $583.35 | | |
| PTLLL | CITY OF PT - LIBRARY LID LIFT | 0.4010114288 | $682,120 | $682,120 | $273.54 | | |
| PTMVBOND | CITY OF PT MV BOND | 0.0484717981 | $682,120 | $682,120 | $33.06 | | |
| HOSP2CASH | HOSP DIST #2 GENERAL | 0.0536075306 | $682,120 | $682,120 | $36.57 | | |
| SCH50BOND | SCHOOL DIST #50 BOND 2016 | 0.5377451389 | $682,120 | $682,120 | $366.81 | | |
| SCH50CP | SCHOOL DIST #50 CAP PROJ | 0.4573475088 | $682,120 | $682,120 | $311.97 | | |
| SCH50MO | SCHOOL DIST #50 EP & O | 0.8262822886 | $682,120 | $682,120 | $563.62 | | |
| CONSERVE | CONSERVATION FUTURES | 0.0275621078 | $682,120 | $682,120 | $18.80 | | |
| EMS1 | FIRE DIST #1 EMS | 0.4679948282 | $682,120 | $682,120 | $319.23 | | |
| FD1 | FIRE DIST #1 GENERAL | 1.2171942929 | $682,120 | $682,120 | $830.27 | | |
| PORTPT | PORT OF PT GENERAL | 0.1134941229 | $682,120 | $682,120 | $77.42 | | |
| PORTPTIDD | PORT OF PT IDD 2019 | 0.2577346692 | $682,120 | $682,120 | $175.81 | | |
| PUD1 | PUD #1 GENERAL | 0.0597888892 | $682,120 | $682,120 | $40.78 | | |
| STATE | STATE SCHOOL PART 1 | 1.4940692947 | $682,120 | $682,120 | $1,019.13 | | |
| STATE2 | STATE SCHOOL PART 2 | 0.8050170049 | $682,120 | $682,120 | $549.12 | | |
| | Total Tax Rate: | 8.5416817766 | | | | | |
| | | | | Taxes w/Current Exemptions: | $5,826.47 | | |
| | | | | Taxes w/o Exemptions: | $5,826.47 | | |
Improvement / Building
| Improvement #1: | Residential Bldg | State Code: | 11 | 2218.6 sqft | Value: | $562,120 |
| Bathrooms (#): | 2 (FULL) | Bedrooms (#): | 3 | | Exterior Wall: | SI/ST | Fireplace: | DBL 1-GOOD | | Floor Construction: | FRAME | Foundation: | CONPR | | Heating/Cooling: | HPUMP | Interior Finish: | FIN | | Roof Cover: | COMP |   |   |
|
| | Type | Description | Class CD | Sub Class CD | Year Built | Area |
| | MA | Main Area | 4 | 1S | 2023 | 2218.6 |
| | GATT | House Attached Garage | 5 | 1S | 2023 | 462.0 |
| | HCPOR | House Concrete Porch | 4 | 1S | 2023 | 266.8 |
Sketch
Property Image
Land
| 1 | 6010-1165L | | 0.0000 | 0.00 | 0.00 | 0.00 | 1.00 | $120,000 | $0 |
Roll Value History
| 2026 | N/A | N/A | N/A | N/A | N/A |
| 2025 | $562,120 | $120,000 | $0 | $682,120 | $682,120 |
| 2024 | $526,412 | $120,000 | $0 | $646,412 | $646,412 |
| 2023 | $0 | $90,000 | $0 | $90,000 | $90,000 |
| 2022 | $0 | $90,000 | $0 | $90,000 | $90,000 |
Deed and Sales History
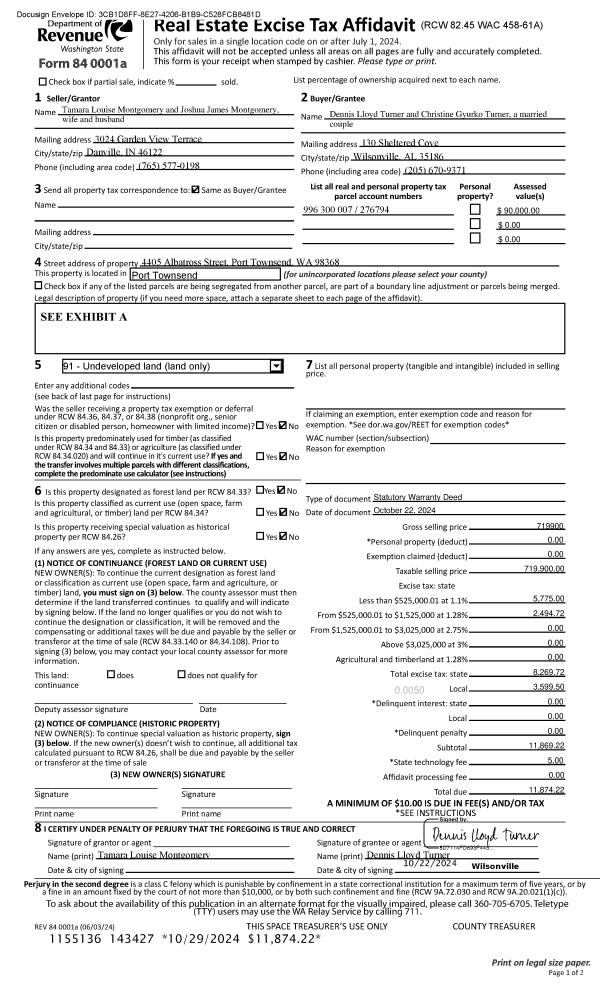
| 1 | 10/22/2024 | SWD | Statutory Warranty Deed | TAMARA L & JOSHUA J MONTGOMERY | DENNIS L & CHRISTINE G TURNER | | | $719,900.00 | 143427 | |
| 2 | 04/11/2024 | SWD | Statutory Warranty Deed | RICHMOND AMERICAN HOMES OF WA INC | TAMARA L & JOSHUA J MONTGOMERY | | | $659,990.00 | 142454 | |
| 3 | 09/22/2021 | BSD | Bargain and Sale Deed | CANYON CREEK INVESTMENTS LLC | RICHMOND AMERICAN HOMES OF WA INC | | | | 0 | |
| 4 | 11/22/2016 | SWD | Statutory Warranty Deed | KITSAP CREDIT UNION | CANYON CREEK INVESTMENTS LLC | | | | 0 | |
| 5 | 07/21/2016 | QCD | Quit Claim Deed | BAPCO LLC | KITSAP CREDIT UNION | | | | 0 | |
| 6 | 01/03/2008 | QCD | Quit Claim Deed | O'NEILL, BRIAN A | BAPCO, LLC | 0 | 0 | | 0 | 0 |
| 7 | 01/25/1999 | SWD | Statutory Warranty Deed | ARVEY, DIANE G/TRUSTEE | O'NEILL, BRIAN A/NOMINEE | 0 | 0 | | 0 | 0 |
Payout Agreement
| No payout information available.. |