Property
Account |
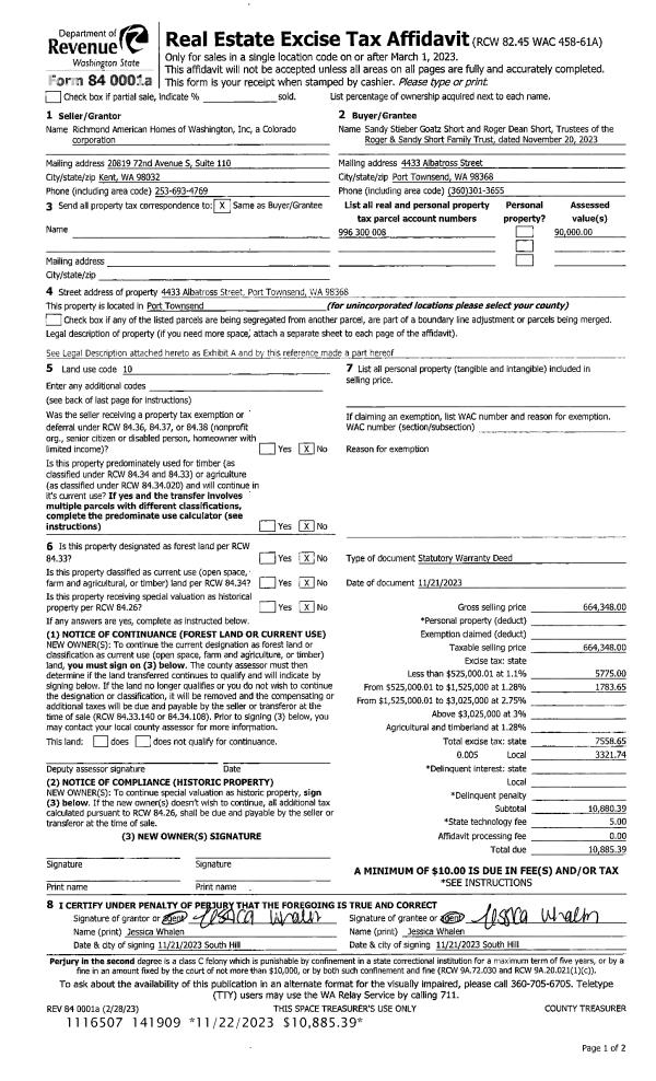
| Property ID: | 276795 | Abbreviated Legal Description: | TRAIL CREST DIVISION 2 LOT 8 SUBJ/CCR OF RECORD AF#652973 |
| Parcel # / Geo ID: | 996300008 | Agent Code: | |
| Type: | Real | | |
| Tax Area: | 0110 - C-50F1E1H2 | Land Use Code | 11 |
| Open Space: | N | DFL | N |
| Historic Property: | N | Remodel Property: | N |
| Multi-Family Redevelopment: | N | | |
| Township: | 31N | Section: | 33 |
| Range: | 1W |
Location |
| Address: | 4433 ALBATROSS ST PORT TOWNSEND, WA 98368 | Mapsco: | 142/008 |
| Neighborhood: | FOWLERS PARK, DAVID'S, WILDWOOD AND ACREAGE IN 33-31-1W | Map ID: | |
| Neighborhood CD: | 6010 |
Owner |
| Name: | ROGER & SANDY SHORT FAMILY TRUST | Owner ID: | 110022 |
| Mailing Address: | SANDY S G SHORT TRUSTEE ROGER D SHORT TRUSTEE 4433 ALBATROSS ST PORT TOWNSEND, WA 98368 | % Ownership: | 100.0000000000% |
| | | Exemptions: | |
Pay Tax Due
Select the appropriate checkbox next to the year to be paid. Multiple years may be selected.
*Convenience Fee not included
Taxes and Assessment Details
Property Tax Information as of
03/11/2026
Click on "Statement Details" to expand or collapse a tax statement.
* Please enter a valid date ** Please enter a valid date *
Statement Details |
| 2026 | 34296 | STATE - STATE LEVY (SCHOOL) | $757.33 | $757.32 | $0.00 | $0.00 | $0.00 | $1514.65 |
| 2026 | 34296 | COUNTY - COUNTY LEVIES (CE, DD, VET, MH) | $302.79 | $302.76 | $0.00 | $0.00 | $0.00 | $605.55 |
| 2026 | 34296 | CONSERVE - CONSERVATION FUTURES | $9.08 | $9.08 | $0.00 | $0.00 | $0.00 | $18.16 |
| 2026 | 34296 | CITYPT - CITY OF PT | $429.78 | $429.75 | $0.00 | $0.00 | $0.00 | $859.53 |
| 2026 | 34296 | PORTPT - PORT DISTRICT | $122.29 | $122.28 | $0.00 | $0.00 | $0.00 | $244.57 |
| 2026 | 34296 | PUD1 - PUD #1 | $19.70 | $19.69 | $0.00 | $0.00 | $0.00 | $39.39 |
| 2026 | 34296 | HD2 - HOSP DIST #2 | $17.66 | $17.66 | $0.00 | $0.00 | $0.00 | $35.32 |
| 2026 | 34296 | SD50 - SCHOOL DIST #50 | $599.97 | $599.96 | $0.00 | $0.00 | $0.00 | $1199.93 |
| 2026 | 34296 | FD1 - FIRE DISTRICT #1 | $400.95 | $400.95 | $0.00 | $0.00 | $0.00 | $801.90 |
| 2026 | 34296 | EMS1 - FIRE DIST #1 EMS | $154.16 | $154.16 | $0.00 | $0.00 | $0.00 | $308.32 |
| 2026 | 34296 | JCCD - JC Conservation District | $2.55 | $2.55 | $0.00 | $0.00 | $0.00 | $5.10 |
| 2026 | 34296 | NWA - Noxious Weed Assessment | $2.98 | $2.97 | $0.00 | $0.00 | $0.00 | $5.95 |
| 2026 | 34296 | TOTAL: | $2819.24 | $2819.13 | $0.00 | $0.00 | $0.00 | $5638.37 |
|
| 2026 | 34296 | $2819.24 | $2819.13 | $0.00 | $0.00 | $0.00 | $5638.37 |
Statement Details |
| 2025 | 34390 | STATE - STATE LEVY (SCHOOL) | $777.70 | $777.69 | $0.00 | $0.00 | $1555.39 | $0.00 |
| 2025 | 34390 | COUNTY - COUNTY LEVIES (CE, DD, VET, MH) | $305.82 | $305.82 | $0.00 | $0.00 | $611.64 | $0.00 |
| 2025 | 34390 | CONSERVE - CONSERVATION FUTURES | $9.17 | $9.17 | $0.00 | $0.00 | $18.34 | $0.00 |
| 2025 | 34390 | CITYPT - CITY OF PT | $441.03 | $441.03 | $0.00 | $0.00 | $882.06 | $0.00 |
| 2025 | 34390 | PORTPT - PORT DISTRICT | $124.79 | $124.79 | $0.00 | $0.00 | $249.58 | $0.00 |
| 2025 | 34390 | PUD1 - PUD #1 | $20.01 | $20.01 | $0.00 | $0.00 | $40.02 | $0.00 |
| 2025 | 34390 | HD2 - HOSP DIST #2 | $17.84 | $17.84 | $0.00 | $0.00 | $35.68 | $0.00 |
| 2025 | 34390 | SD50 - SCHOOL DIST #50 | $568.37 | $568.36 | $0.00 | $0.00 | $1136.73 | $0.00 |
| 2025 | 34390 | FD1 - FIRE DISTRICT #1 | $403.57 | $403.56 | $0.00 | $0.00 | $807.13 | $0.00 |
| 2025 | 34390 | EMS1 - FIRE DIST #1 EMS | $155.23 | $155.22 | $0.00 | $0.00 | $310.45 | $0.00 |
| 2025 | 34390 | JCCD - JC Conservation District | $2.55 | $2.55 | $0.00 | $0.00 | $5.10 | $0.00 |
| 2025 | 34390 | NWA - Noxious Weed Assessment | $2.15 | $2.15 | $0.00 | $0.00 | $4.30 | $0.00 |
| 2025 | 34390 | TOTAL: | $2828.23 | $2828.19 | $0.00 | $0.00 | $5656.42 | $0.00 |
|
| 2025 | 34390 | $2828.23 | $2828.19 | $0.00 | $0.00 | $5656.42 | $0.00 |
Statement Details |
| 2024 | 34459 | STATE - STATE LEVY (SCHOOL) | $339.46 | $339.44 | $0.00 | $0.00 | $678.90 | $0.00 |
| 2024 | 34459 | COUNTY - COUNTY LEVIES (CE, DD, VET, MH) | $145.26 | $145.25 | $0.00 | $0.00 | $290.51 | $0.00 |
| 2024 | 34459 | CONSERVE - CONSERVATION FUTURES | $4.36 | $4.35 | $0.00 | $0.00 | $8.71 | $0.00 |
| 2024 | 34459 | CITYPT - CITY OF PT | $207.56 | $207.54 | $0.00 | $0.00 | $415.10 | $0.00 |
| 2024 | 34459 | PORTPT - PORT DISTRICT | $60.00 | $59.99 | $0.00 | $0.00 | $119.99 | $0.00 |
| 2024 | 34459 | PUD1 - PUD #1 | $9.54 | $9.54 | $0.00 | $0.00 | $19.08 | $0.00 |
| 2024 | 34459 | HD2 - HOSP DIST #2 | $8.48 | $8.47 | $0.00 | $0.00 | $16.95 | $0.00 |
| 2024 | 34459 | SD50 - SCHOOL DIST #50 | $274.64 | $274.62 | $0.00 | $0.00 | $549.26 | $0.00 |
| 2024 | 34459 | FD1 - FIRE DISTRICT #1 | $192.06 | $192.06 | $0.00 | $0.00 | $384.12 | $0.00 |
| 2024 | 34459 | EMS1 - FIRE DIST #1 EMS | $73.36 | $73.36 | $0.00 | $0.00 | $146.72 | $0.00 |
| 2024 | 34459 | JCCD - JC Conservation District | $2.55 | $2.55 | $0.00 | $0.00 | $5.10 | $0.00 |
| 2024 | 34459 | NWA - Noxious Weed Assessment | $2.15 | $2.15 | $0.00 | $0.00 | $4.30 | $0.00 |
| 2024 | 34459 | TOTAL: | $1319.42 | $1319.32 | $0.00 | $0.00 | $2638.74 | $0.00 |
|
| 2024 | 34459 | $1319.42 | $1319.32 | $0.00 | $0.00 | $2638.74 | $0.00 |
Statement Details |
| 2023 | 34520 | STATE - STATE LEVY (SCHOOL) | $105.94 | $105.93 | $0.00 | $0.00 | $211.87 | $0.00 |
| 2023 | 34520 | COUNTY - COUNTY LEVIES (CE, DD, VET, MH) | $46.23 | $46.21 | $0.00 | $0.00 | $92.44 | $0.00 |
| 2023 | 34520 | CONSERVE - CONSERVATION FUTURES | $1.39 | $1.38 | $0.00 | $0.00 | $2.77 | $0.00 |
| 2023 | 34520 | CITYPT - CITY OF PT | $65.34 | $65.33 | $0.00 | $0.00 | $130.67 | $0.00 |
| 2023 | 34520 | PORTPT - PORT DISTRICT | $19.48 | $19.47 | $0.00 | $0.00 | $38.95 | $0.00 |
| 2023 | 34520 | PUD1 - PUD #1 | $3.07 | $3.06 | $0.00 | $0.00 | $6.13 | $0.00 |
| 2023 | 34520 | HD2 - HOSP DIST #2 | $2.70 | $2.69 | $0.00 | $0.00 | $5.39 | $0.00 |
| 2023 | 34520 | SD50 - SCHOOL DIST #50 | $84.07 | $84.06 | $0.00 | $0.00 | $168.13 | $0.00 |
| 2023 | 34520 | FD1 - FIRE DISTRICT #1 | $38.08 | $38.08 | $0.00 | $0.00 | $76.16 | $0.00 |
| 2023 | 34520 | EMS1 - FIRE DIST #1 EMS | $16.20 | $16.20 | $0.00 | $0.00 | $32.40 | $0.00 |
| 2023 | 34520 | JCCD - JC Conservation District | $2.53 | $2.53 | $0.00 | $0.00 | $5.06 | $0.00 |
| 2023 | 34520 | NWA - Noxious Weed Assessment | $2.15 | $2.15 | $0.00 | $0.00 | $4.30 | $0.00 |
| 2023 | 34520 | TOTAL: | $387.18 | $387.09 | $0.00 | $0.00 | $774.27 | $0.00 |
|
| 2023 | 34520 | $387.18 | $387.09 | $0.00 | $0.00 | $774.27 | $0.00 |
Values
| (+) Improvement Homesite Value: | + | $0 | |
| (+) Improvement Non-Homesite Value: | + | $538,808 | |
| (+) Land Homesite Value: | + | $0 | |
| (+) Land Non-Homesite Value: | + | $120,000 | |
| (+) Curr Use (HS): | + | $0 | $0 |
| (+) Curr Use (NHS): | + | $0 | $0 |
| | | -------------------------- | |
| (=) Market Value: | = | $658,808 | |
| (–) Productivity Loss: | – | $0 | |
| | | -------------------------- | |
| (=) Subtotal: | = | $658,808 | |
| (+) Senior Appraised Value: | + | $0 | |
| (+) Non-Senior Appraised Value: | + | $658,808 | |
| | | -------------------------- | |
| (=) Total Appraised Value: | = | $658,808 | |
| (–) Senior Exemption Loss: | – | $0 | |
| (–) Exemption Loss: | – | $0 | |
| | | -------------------------- | |
| (=) Taxable Value: | = | $658,808 | |
Taxing Jurisdiction
| Owner: | ROGER & SANDY SHORT FAMILY TRUST | | |
| % Ownership: | 100.0000000000% | | |
| Total Value: | $658,808 | | |
| Tax Area: | 0110 - C-50F1E1H2 |
| CE | COUNTY CURRENT EXPENSE | 0.9034619479 | $658,808 | $658,808 | $595.21 | | |
| CNTYDD | DEVELOPMENTAL DISABILITIES | 0.0052121823 | $658,808 | $658,808 | $3.43 | | |
| CNTYVET | VETERANS RELIEF | 0.0052777810 | $658,808 | $658,808 | $3.48 | | |
| MENTAL | MENTAL HEALTH | 0.0052121823 | $658,808 | $658,808 | $3.43 | | |
| PTGEN | CITY OF PT GENERAL | 0.8551967795 | $658,808 | $658,808 | $563.41 | | |
| PTLLL | CITY OF PT - LIBRARY LID LIFT | 0.4010114288 | $658,808 | $658,808 | $264.19 | | |
| PTMVBOND | CITY OF PT MV BOND | 0.0484717981 | $658,808 | $658,808 | $31.93 | | |
| HOSP2CASH | HOSP DIST #2 GENERAL | 0.0536075306 | $658,808 | $658,808 | $35.32 | | |
| SCH50BOND | SCHOOL DIST #50 BOND 2016 | 0.5377451389 | $658,808 | $658,808 | $354.27 | | |
| SCH50CP | SCHOOL DIST #50 CAP PROJ | 0.4573475088 | $658,808 | $658,808 | $301.30 | | |
| SCH50MO | SCHOOL DIST #50 EP & O | 0.8262822886 | $658,808 | $658,808 | $544.36 | | |
| CONSERVE | CONSERVATION FUTURES | 0.0275621078 | $658,808 | $658,808 | $18.16 | | |
| EMS1 | FIRE DIST #1 EMS | 0.4679948282 | $658,808 | $658,808 | $308.32 | | |
| FD1 | FIRE DIST #1 GENERAL | 1.2171942929 | $658,808 | $658,808 | $801.90 | | |
| PORTPT | PORT OF PT GENERAL | 0.1134941229 | $658,808 | $658,808 | $74.77 | | |
| PORTPTIDD | PORT OF PT IDD 2019 | 0.2577346692 | $658,808 | $658,808 | $169.80 | | |
| PUD1 | PUD #1 GENERAL | 0.0597888892 | $658,808 | $658,808 | $39.39 | | |
| STATE | STATE SCHOOL PART 1 | 1.4940692947 | $658,808 | $658,808 | $984.30 | | |
| STATE2 | STATE SCHOOL PART 2 | 0.8050170049 | $658,808 | $658,808 | $530.35 | | |
| | Total Tax Rate: | 8.5416817766 | | | | | |
| | | | | Taxes w/Current Exemptions: | $5,627.32 | | |
| | | | | Taxes w/o Exemptions: | $5,627.32 | | |
Improvement / Building
| Improvement #1: | Residential Bldg | State Code: | 11 | 1719.0 sqft | Value: | $538,808 |
| Bathrooms (#): | 2 (FULL) | Bedrooms (#): | 3 | | Exterior Wall: | SI/ST | Fireplace: | DBL 1-GOOD | | Floor Construction: | FRAME | Foundation: | CONPR | | Heating/Cooling: | HPUMP | Interior Finish: | FIN | | Roof Cover: | COMP |   |   |
|
| | Type | Description | Class CD | Sub Class CD | Year Built | Area |
| | MA | Main Area | 5 | 1S | 2023 | 1719.0 |
| | GATT | House Attached Garage | 5 | 1S | 2023 | 650.0 |
| | HCPOR | House Concrete Porch | 5 | 1S | 2023 | 298.0 |
Sketch
Property Image
Land
| 1 | 6010-1165L | | 0.0000 | 0.00 | 0.00 | 0.00 | 1.00 | $120,000 | $0 |
Roll Value History
| 2026 | N/A | N/A | N/A | N/A | N/A |
| 2025 | $538,808 | $120,000 | $0 | $658,808 | $658,808 |
| 2024 | $528,611 | $120,000 | $0 | $648,611 | $648,611 |
| 2023 | $178,438 | $115,000 | $0 | $293,438 | $293,438 |
| 2022 | $0 | $90,000 | $0 | $90,000 | $90,000 |
Deed and Sales History
| 1 | 11/21/2023 | SWD | Statutory Warranty Deed | RICHMOND AMERICAN HOMES OF WA INC | ROGER & SANDY SHORT FAMILY TRUST | | | $664,348.00 | 141909 | |
| 2 | 09/22/2021 | BSD | Bargain and Sale Deed | CANYON CREEK INVESTMENTS LLC | RICHMOND AMERICAN HOMES OF WA INC | | | | 0 | |
| 3 | 11/22/2016 | SWD | Statutory Warranty Deed | KITSAP CREDIT UNION | CANYON CREEK INVESTMENTS LLC | | | | 0 | |
| 4 | 07/21/2016 | QCD | Quit Claim Deed | BAPCO LLC | KITSAP CREDIT UNION | | | | 0 | |
| 5 | 01/03/2008 | QCD | Quit Claim Deed | O'NEILL, BRIAN A | BAPCO, LLC | 0 | 0 | | 0 | 0 |
| 6 | 01/25/1999 | SWD | Statutory Warranty Deed | ARVEY, DIANE G/TRUSTEE | O'NEILL, BRIAN A/NOMINEE | 0 | 0 | | 0 | 0 |
Payout Agreement
| No payout information available.. |