Property
Account |
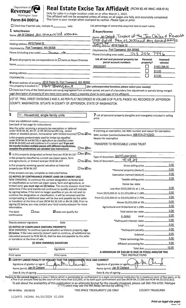
| Property ID: | 276845 | Abbreviated Legal Description: | TRAIL CREST DIVISION 3 LOT 57 SUBJ/CCR OF RECORD |
| Parcel # / Geo ID: | 996300057 | Agent Code: | |
| Type: | Real | | |
| Tax Area: | 0110 - C-50F1E1H2 | Land Use Code | 11 |
| Open Space: | N | DFL | N |
| Historic Property: | N | Remodel Property: | N |
| Multi-Family Redevelopment: | N | | |
| Township: | 31N | Section: | 33 |
| Range: | 1W |
Location |
| Address: | 4618 PETREL ST PORT TOWNSEND, WA 98368 | Mapsco: | 142/057 |
| Neighborhood: | FOWLERS PARK, DAVID'S, WILDWOOD AND ACREAGE IN 33-31-1W | Map ID: | |
| Neighborhood CD: | 6010 |
Owner |
| Name: | JAN CLEILAND REVOCABLE TRUST | Owner ID: | 110636 |
| Mailing Address: | JAN CLEILAND TRUSTEE 4618 PETREL ST PORT TOWNSEND, WA 98368-8541 | % Ownership: | 100.0000000000% |
| | | Exemptions: | |
Pay Tax Due
There is currently No Amount Due on this property.
Taxes and Assessment Details
Property Tax Information as of
03/11/2026
Click on "Statement Details" to expand or collapse a tax statement.
* Please enter a valid date ** Please enter a valid date *
Statement Details |
| | TOTAL: | $0.00 | $0.00 | $0.00 | $0.00 | $0.00 | $0.00 |
|
| | $0.00 | $0.00 | $0.00 | $0.00 | $0.00 | $0.00 |
Values
| (+) Improvement Homesite Value: | + | $0 | |
| (+) Improvement Non-Homesite Value: | + | $778,907 | |
| (+) Land Homesite Value: | + | $0 | |
| (+) Land Non-Homesite Value: | + | $178,500 | |
| (+) Curr Use (HS): | + | $0 | $0 |
| (+) Curr Use (NHS): | + | $0 | $0 |
| | | -------------------------- | |
| (=) Market Value: | = | $957,407 | |
| (–) Productivity Loss: | – | $0 | |
| | | -------------------------- | |
| (=) Subtotal: | = | $957,407 | |
| (+) Senior Appraised Value: | + | $0 | |
| (+) Non-Senior Appraised Value: | + | $957,407 | |
| | | -------------------------- | |
| (=) Total Appraised Value: | = | $957,407 | |
| (–) Senior Exemption Loss: | – | $0 | |
| (–) Exemption Loss: | – | $0 | |
| | | -------------------------- | |
| (=) Taxable Value: | = | $957,407 | |
Taxing Jurisdiction
| Owner: | JAN CLEILAND REVOCABLE TRUST | | |
| % Ownership: | 100.0000000000% | | |
| Total Value: | $957,407 | | |
| Tax Area: | 0110 - C-50F1E1H2 |
| CE | COUNTY CURRENT EXPENSE | 0.9034619479 | $957,407 | $957,407 | $864.98 | | |
| CNTYDD | DEVELOPMENTAL DISABILITIES | 0.0052121823 | $957,407 | $957,407 | $4.99 | | |
| CNTYVET | VETERANS RELIEF | 0.0052777810 | $957,407 | $957,407 | $5.05 | | |
| MENTAL | MENTAL HEALTH | 0.0052121823 | $957,407 | $957,407 | $4.99 | | |
| PTGEN | CITY OF PT GENERAL | 0.8551967795 | $957,407 | $957,407 | $818.77 | | |
| PTLLL | CITY OF PT - LIBRARY LID LIFT | 0.4010114288 | $957,407 | $957,407 | $383.93 | | |
| PTMVBOND | CITY OF PT MV BOND | 0.0484717981 | $957,407 | $957,407 | $46.41 | | |
| HOSP2CASH | HOSP DIST #2 GENERAL | 0.0536075306 | $957,407 | $957,407 | $51.32 | | |
| SCH50BOND | SCHOOL DIST #50 BOND 2016 | 0.5377451389 | $957,407 | $957,407 | $514.84 | | |
| SCH50CP | SCHOOL DIST #50 CAP PROJ | 0.4573475088 | $957,407 | $957,407 | $437.87 | | |
| SCH50MO | SCHOOL DIST #50 EP & O | 0.8262822886 | $957,407 | $957,407 | $791.09 | | |
| CONSERVE | CONSERVATION FUTURES | 0.0275621078 | $957,407 | $957,407 | $26.39 | | |
| EMS1 | FIRE DIST #1 EMS | 0.4679948282 | $957,407 | $957,407 | $448.06 | | |
| FD1 | FIRE DIST #1 GENERAL | 1.2171942929 | $957,407 | $957,407 | $1,165.35 | | |
| PORTPT | PORT OF PT GENERAL | 0.1134941229 | $957,407 | $957,407 | $108.66 | | |
| PORTPTIDD | PORT OF PT IDD 2019 | 0.2577346692 | $957,407 | $957,407 | $246.76 | | |
| PUD1 | PUD #1 GENERAL | 0.0597888892 | $957,407 | $957,407 | $57.24 | | |
| STATE | STATE SCHOOL PART 1 | 1.4940692947 | $957,407 | $957,407 | $1,430.43 | | |
| STATE2 | STATE SCHOOL PART 2 | 0.8050170049 | $957,407 | $957,407 | $770.73 | | |
| | Total Tax Rate: | 8.5416817766 | | | | | |
| | | | | Taxes w/Current Exemptions: | $8,177.86 | | |
| | | | | Taxes w/o Exemptions: | $8,177.86 | | |
Improvement / Building
| Improvement #1: | Residential Bldg | State Code: | 11 | 2620.0 sqft | Value: | $778,907 |
| Bathrooms (#): | 2 (FULL) | Bedrooms (#): | 3 | | Exterior Wall: | SI/ST | Fireplace: | DBL 1-GOOD | | Floor Construction: | FRAME | Foundation: | CONPR | | Heating/Cooling: | HPUMP | Interior Finish: | FIN | | Roof Cover: | COMP |   |   |
|
| | Type | Description | Class CD | Sub Class CD | Year Built | Area |
| | MA | Main Area | 5 | 1S | 2023 | 2620.0 |
| | GATT | House Attached Garage | 5 | 1S | 2023 | 680.0 |
| | HCPOR | House Concrete Porch | 5 | 1S | 2023 | 419.0 |
Sketch
Property Image
Land
| 1 | 6010-1165L | Terr View Trail Crest Lots w/utilities in | 0.0000 | 0.00 | 0.00 | 0.00 | 1.00 | $178,500 | $0 |
Roll Value History
| 2026 | N/A | N/A | N/A | N/A | N/A |
| 2025 | $778,907 | $178,500 | $0 | $957,407 | $957,407 |
| 2024 | $764,930 | $178,500 | $0 | $943,430 | $943,430 |
| 2023 | $519,396 | $133,900 | $0 | $653,296 | $653,296 |
| 2022 | $0 | $99,000 | $0 | $99,000 | $99,000 |
Deed and Sales History
| 1 | 04/10/2024 | QCD | Quit Claim Deed | JAN M CLEILAND | JAN CLEILAND REVOCABLE TRUST | | | | 142446 | |
| 2 | 09/11/2023 | SWD | Statutory Warranty Deed | RICHMOND AMERICAN HOMES OF WA INC | JAN M CLEILAND | | | $1,137,164.00 | 141543 | |
| 3 | 09/22/2021 | BSD | Bargain and Sale Deed | CANYON CREEK INVESTMENTS LLC | RICHMOND AMERICAN HOMES OF WA INC | | | | 0 | |
| 4 | 11/22/2016 | SWD | Statutory Warranty Deed | KITSAP CREDIT UNION | CANYON CREEK INVESTMENTS LLC | | | | 0 | |
| 5 | 07/21/2016 | QCD | Quit Claim Deed | BAPCO LLC | KITSAP CREDIT UNION | | | | 0 | |
| 6 | 01/03/2008 | QCD | Quit Claim Deed | O'NEILL, BRIAN A | BAPCO, LLC | 0 | 0 | | 0 | 0 |
| 7 | 01/25/1999 | SWD | Statutory Warranty Deed | ARVEY, DIANE G/TRUSTEE | O'NEILL, BRIAN A/NOMINEE | 0 | 0 | | 0 | 0 |
Payout Agreement
| No payout information available.. |