Property
Account |
| Property ID: | 276874 | Abbreviated Legal Description: | EISENBEIS ADDITION BLK 28 LOTS 6(S5') & 7(ALL) BND THRU LLA#139495 LAND COMPONENT PARCEL /IMPS#948302818 |
| Parcel # / Geo ID: | 948302816 | Agent Code: | |
| Type: | Real | | |
| Tax Area: | 0110 - C-50F1E1H2 | Land Use Code | 11 |
| Open Space: | N | DFL | N |
| Historic Property: | N | Remodel Property: | N |
| Multi-Family Redevelopment: | N | | |
| Township: | 30N | Section: | 10 |
| Range: | 1W |
Location |
| Address: | 1705 LANDES ST PORT TOWNSEND, WA 98368 | Mapsco: | 022/034 |
| Neighborhood: | EISENBEIS - LANDES/19TH/LAGOON AREA NON-COM | Map ID: | |
| Neighborhood CD: | 6215 |
Owner |
| Name: | SALISH COAST HOUSING, LLC | Owner ID: | 109402 |
| Mailing Address: | PO BOX 658 PORT TOWNSEND, WA 98368 | % Ownership: | 100.0000000000% |
| | | Exemptions: | |
Pay Tax Due
Select the appropriate checkbox next to the year to be paid. Multiple years may be selected.
*Convenience Fee not included
Taxes and Assessment Details
Property Tax Information as of
03/10/2026
Click on "Statement Details" to expand or collapse a tax statement.
* Please enter a valid date ** Please enter a valid date *
Statement Details |
| 2026 | 34367 | STATE - STATE LEVY (SCHOOL) | $22.99 | $22.99 | $0.00 | $0.00 | $0.00 | $45.98 |
| 2026 | 34367 | COUNTY - COUNTY LEVIES (CE, DD, VET, MH) | $9.20 | $9.18 | $0.00 | $0.00 | $0.00 | $18.38 |
| 2026 | 34367 | CONSERVE - CONSERVATION FUTURES | $0.28 | $0.27 | $0.00 | $0.00 | $0.00 | $0.55 |
| 2026 | 34367 | CITYPT - CITY OF PT | $13.05 | $13.04 | $0.00 | $0.00 | $0.00 | $26.09 |
| 2026 | 34367 | PORTPT - PORT DISTRICT | $3.72 | $3.70 | $0.00 | $0.00 | $0.00 | $7.42 |
| 2026 | 34367 | PUD1 - PUD #1 | $0.60 | $0.60 | $0.00 | $0.00 | $0.00 | $1.20 |
| 2026 | 34367 | HD2 - HOSP DIST #2 | $0.54 | $0.53 | $0.00 | $0.00 | $0.00 | $1.07 |
| 2026 | 34367 | SD50 - SCHOOL DIST #50 | $18.23 | $18.20 | $0.00 | $0.00 | $0.00 | $36.43 |
| 2026 | 34367 | FD1 - FIRE DISTRICT #1 | $12.17 | $12.17 | $0.00 | $0.00 | $0.00 | $24.34 |
| 2026 | 34367 | EMS1 - FIRE DIST #1 EMS | $4.68 | $4.68 | $0.00 | $0.00 | $0.00 | $9.36 |
| 2026 | 34367 | JCCD - JC Conservation District | $2.55 | $2.55 | $0.00 | $0.00 | $0.00 | $5.10 |
| 2026 | 34367 | NWA - Noxious Weed Assessment | $2.98 | $2.97 | $0.00 | $0.00 | $0.00 | $5.95 |
| 2026 | 34367 | TOTAL: | $90.99 | $90.88 | $0.00 | $0.00 | $0.00 | $181.87 |
|
| 2026 | 34367 | $90.99 | $90.88 | $0.00 | $0.00 | $0.00 | $181.87 |
Statement Details |
| 2025 | 34465 | STATE - STATE LEVY (SCHOOL) | $23.98 | $23.98 | $0.00 | $0.00 | $47.96 | $0.00 |
| 2025 | 34465 | COUNTY - COUNTY LEVIES (CE, DD, VET, MH) | $9.45 | $9.42 | $0.00 | $0.00 | $18.87 | $0.00 |
| 2025 | 34465 | CONSERVE - CONSERVATION FUTURES | $0.29 | $0.28 | $0.00 | $0.00 | $0.57 | $0.00 |
| 2025 | 34465 | CITYPT - CITY OF PT | $13.60 | $13.60 | $0.00 | $0.00 | $27.20 | $0.00 |
| 2025 | 34465 | PORTPT - PORT DISTRICT | $3.86 | $3.84 | $0.00 | $0.00 | $7.70 | $0.00 |
| 2025 | 34465 | PUD1 - PUD #1 | $0.62 | $0.61 | $0.00 | $0.00 | $1.23 | $0.00 |
| 2025 | 34465 | HD2 - HOSP DIST #2 | $0.55 | $0.55 | $0.00 | $0.00 | $1.10 | $0.00 |
| 2025 | 34465 | SD50 - SCHOOL DIST #50 | $17.54 | $17.52 | $0.00 | $0.00 | $35.06 | $0.00 |
| 2025 | 34465 | FD1 - FIRE DISTRICT #1 | $12.45 | $12.44 | $0.00 | $0.00 | $24.89 | $0.00 |
| 2025 | 34465 | EMS1 - FIRE DIST #1 EMS | $4.79 | $4.78 | $0.00 | $0.00 | $9.57 | $0.00 |
| 2025 | 34465 | JCCD - JC Conservation District | $2.55 | $2.55 | $0.00 | $0.00 | $5.10 | $0.00 |
| 2025 | 34465 | NWA - Noxious Weed Assessment | $2.15 | $2.15 | $0.00 | $0.00 | $4.30 | $0.00 |
| 2025 | 34465 | TOTAL: | $91.83 | $91.72 | $0.00 | $0.00 | $183.55 | $0.00 |
|
| 2025 | 34465 | $91.83 | $91.72 | $0.00 | $0.00 | $183.55 | $0.00 |
Statement Details |
| 2024 | 34535 | STATE - STATE LEVY (SCHOOL) | $23.14 | $23.14 | $0.00 | $0.00 | $46.28 | $0.00 |
| 2024 | 34535 | COUNTY - COUNTY LEVIES (CE, DD, VET, MH) | $9.91 | $9.88 | $0.00 | $0.00 | $19.79 | $0.00 |
| 2024 | 34535 | CONSERVE - CONSERVATION FUTURES | $0.30 | $0.29 | $0.00 | $0.00 | $0.59 | $0.00 |
| 2024 | 34535 | CITYPT - CITY OF PT | $14.16 | $14.14 | $0.00 | $0.00 | $28.30 | $0.00 |
| 2024 | 34535 | PORTPT - PORT DISTRICT | $4.09 | $4.08 | $0.00 | $0.00 | $8.17 | $0.00 |
| 2024 | 34535 | PUD1 - PUD #1 | $0.65 | $0.65 | $0.00 | $0.00 | $1.30 | $0.00 |
| 2024 | 34535 | HD2 - HOSP DIST #2 | $0.58 | $0.58 | $0.00 | $0.00 | $1.16 | $0.00 |
| 2024 | 34535 | SD50 - SCHOOL DIST #50 | $18.72 | $18.71 | $0.00 | $0.00 | $37.43 | $0.00 |
| 2024 | 34535 | FD1 - FIRE DISTRICT #1 | $13.09 | $13.09 | $0.00 | $0.00 | $26.18 | $0.00 |
| 2024 | 34535 | EMS1 - FIRE DIST #1 EMS | $5.00 | $5.00 | $0.00 | $0.00 | $10.00 | $0.00 |
| 2024 | 34535 | JCCD - JC Conservation District | $2.55 | $2.55 | $0.00 | $0.00 | $5.10 | $0.00 |
| 2024 | 34535 | NWA - Noxious Weed Assessment | $2.15 | $2.15 | $0.00 | $0.00 | $4.30 | $0.00 |
| 2024 | 34535 | TOTAL: | $94.34 | $94.26 | $0.00 | $0.00 | $188.60 | $0.00 |
|
| 2024 | 34535 | $94.34 | $94.26 | $0.00 | $0.00 | $188.60 | $0.00 |
Statement Details |
| 2023 | 34598 | STATE - STATE LEVY (SCHOOL) | $0.00 | $0.00 | $0.00 | $0.00 | $0.00 | $0.00 |
| 2023 | 34598 | COUNTY - COUNTY LEVIES (CE, DD, VET, MH) | $0.00 | $0.00 | $0.00 | $0.00 | $0.00 | $0.00 |
| 2023 | 34598 | CONSERVE - CONSERVATION FUTURES | $0.00 | $0.00 | $0.00 | $0.00 | $0.00 | $0.00 |
| 2023 | 34598 | CITYPT - CITY OF PT | $0.00 | $0.00 | $0.00 | $0.00 | $0.00 | $0.00 |
| 2023 | 34598 | PORTPT - PORT DISTRICT | $0.00 | $0.00 | $0.00 | $0.00 | $0.00 | $0.00 |
| 2023 | 34598 | PUD1 - PUD #1 | $0.00 | $0.00 | $0.00 | $0.00 | $0.00 | $0.00 |
| 2023 | 34598 | HD2 - HOSP DIST #2 | $0.00 | $0.00 | $0.00 | $0.00 | $0.00 | $0.00 |
| 2023 | 34598 | SD50 - SCHOOL DIST #50 | $0.00 | $0.00 | $0.00 | $0.00 | $0.00 | $0.00 |
| 2023 | 34598 | FD1 - FIRE DISTRICT #1 | $0.00 | $0.00 | $0.00 | $0.00 | $0.00 | $0.00 |
| 2023 | 34598 | EMS1 - FIRE DIST #1 EMS | $0.00 | $0.00 | $0.00 | $0.00 | $0.00 | $0.00 |
| 2023 | 34598 | JCCD - JC Conservation District | $5.06 | $0.00 | $0.00 | $0.00 | $5.06 | $0.00 |
| 2023 | 34598 | NWA - Noxious Weed Assessment | $4.30 | $0.00 | $0.00 | $0.00 | $4.30 | $0.00 |
| 2023 | 34598 | TOTAL: | $9.36 | $0.00 | $0.00 | $0.00 | $9.36 | $0.00 |
|
| 2023 | 34598 | $9.36 | $0.00 | $0.00 | $0.00 | $9.36 | $0.00 |
Values
| (+) Improvement Homesite Value: | + | $0 | |
| (+) Improvement Non-Homesite Value: | + | $0 | |
| (+) Land Homesite Value: | + | $0 | |
| (+) Land Non-Homesite Value: | + | $20,000 | |
| (+) Curr Use (HS): | + | $0 | $0 |
| (+) Curr Use (NHS): | + | $0 | $0 |
| | | -------------------------- | |
| (=) Market Value: | = | $20,000 | |
| (–) Productivity Loss: | – | $0 | |
| | | -------------------------- | |
| (=) Subtotal: | = | $20,000 | |
| (+) Senior Appraised Value: | + | $0 | |
| (+) Non-Senior Appraised Value: | + | $20,000 | |
| | | -------------------------- | |
| (=) Total Appraised Value: | = | $20,000 | |
| (–) Senior Exemption Loss: | – | $0 | |
| (–) Exemption Loss: | – | $0 | |
| | | -------------------------- | |
| (=) Taxable Value: | = | $20,000 | |
Taxing Jurisdiction
| Owner: | SALISH COAST HOUSING, LLC | | |
| % Ownership: | 100.0000000000% | | |
| Total Value: | $20,000 | | |
| Tax Area: | 0110 - C-50F1E1H2 |
| CE | COUNTY CURRENT EXPENSE | 0.9034619479 | $20,000 | $20,000 | $18.07 | | |
| CNTYDD | DEVELOPMENTAL DISABILITIES | 0.0052121823 | $20,000 | $20,000 | $0.10 | | |
| CNTYVET | VETERANS RELIEF | 0.0052777810 | $20,000 | $20,000 | $0.11 | | |
| MENTAL | MENTAL HEALTH | 0.0052121823 | $20,000 | $20,000 | $0.10 | | |
| PTGEN | CITY OF PT GENERAL | 0.8551967795 | $20,000 | $20,000 | $17.10 | | |
| PTLLL | CITY OF PT - LIBRARY LID LIFT | 0.4010114288 | $20,000 | $20,000 | $8.02 | | |
| PTMVBOND | CITY OF PT MV BOND | 0.0484717981 | $20,000 | $20,000 | $0.97 | | |
| HOSP2CASH | HOSP DIST #2 GENERAL | 0.0536075306 | $20,000 | $20,000 | $1.07 | | |
| SCH50BOND | SCHOOL DIST #50 BOND 2016 | 0.5377451389 | $20,000 | $20,000 | $10.75 | | |
| SCH50CP | SCHOOL DIST #50 CAP PROJ | 0.4573475088 | $20,000 | $20,000 | $9.15 | | |
| SCH50MO | SCHOOL DIST #50 EP & O | 0.8262822886 | $20,000 | $20,000 | $16.53 | | |
| CONSERVE | CONSERVATION FUTURES | 0.0275621078 | $20,000 | $20,000 | $0.55 | | |
| EMS1 | FIRE DIST #1 EMS | 0.4679948282 | $20,000 | $20,000 | $9.36 | | |
| FD1 | FIRE DIST #1 GENERAL | 1.2171942929 | $20,000 | $20,000 | $24.34 | | |
| PORTPT | PORT OF PT GENERAL | 0.1134941229 | $20,000 | $20,000 | $2.27 | | |
| PORTPTIDD | PORT OF PT IDD 2019 | 0.2577346692 | $20,000 | $20,000 | $5.15 | | |
| PUD1 | PUD #1 GENERAL | 0.0597888892 | $20,000 | $20,000 | $1.20 | | |
| STATE | STATE SCHOOL PART 1 | 1.4940692947 | $20,000 | $20,000 | $29.88 | | |
| STATE2 | STATE SCHOOL PART 2 | 0.8050170049 | $20,000 | $20,000 | $16.10 | | |
| | Total Tax Rate: | 8.5416817766 | | | | | |
| | | | | Taxes w/Current Exemptions: | $170.82 | | |
| | | | | Taxes w/o Exemptions: | $170.82 | | |
Improvement / Building
Sketch
| No sketches available for this property. |
Property Image
Land
| 1 | 6215-1185L | | 0.0000 | 0.00 | 0.00 | 0.00 | 1.00 | $95,000 | $0 |
Roll Value History
| 2026 | N/A | N/A | N/A | N/A | N/A |
| 2025 | $0 | $20,000 | $0 | $20,000 | $20,000 |
| 2024 | $0 | $20,000 | $0 | $20,000 | $20,000 |
| 2023 | $0 | $20,000 | $0 | $20,000 | $20,000 |
| 2022 | $0 | $30,000 | $0 | $30,000 | $0 |
Deed and Sales History
| 1 | 08/22/2023 | QCD | Quit Claim Deed | | SALISH COAST HOUSING, LLC | | | | 141753 | sidewalk/stair imp only |
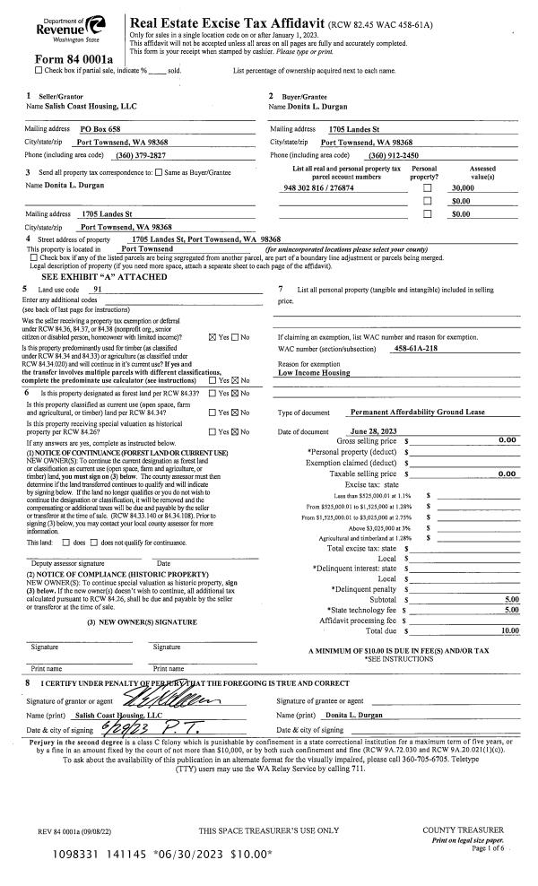
| 2 | 06/28/2023 | LEASE | Lease or Assignment of Lease | SALISH COAST HOUSING, LLC | DONNA L DURGAN | | AF#661104 | | 141145 | LND LEASE |
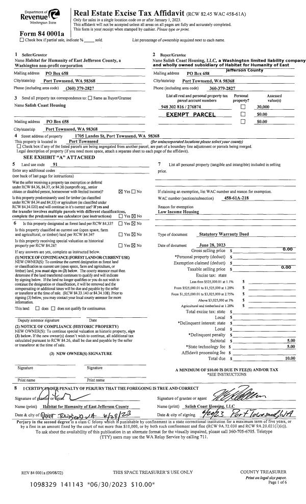
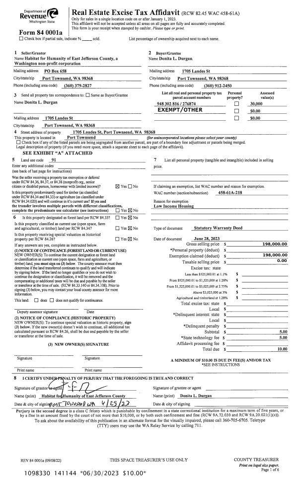
| 3 | 06/28/2023 | SWD | Statutory Warranty Deed | HABITAT FOR HUMANITY OF EAST | SALISH COAST HOUSING, LLC | | | | 141143 | LAND ONLY |
| 4 | 12/07/2020 | SWD | Statutory Warranty Deed | CASCADIA MERCANTILE LLC | HABITAT FOR HUMANITY OF EAST | | | | 0 | |
| 5 | 05/20/1999 | QCD | Quit Claim Deed | SMALL, LILLIAN M | CASCADIA MERCANTILE | 0 | 0 | | 0 | 0 |
Payout Agreement
| No payout information available.. |