Property
Account |
| Property ID: | 276893 | Abbreviated Legal Description: | HAZELWOOD SHORT PLAT PARCEL B |
| Parcel # / Geo ID: | 001033011 | Agent Code: | |
| Type: | Real | | |
| Tax Area: | 0110 - C-50F1E1H2 | Land Use Code | 11 |
| Open Space: | N | DFL | N |
| Historic Property: | N | Remodel Property: | N |
| Multi-Family Redevelopment: | N | | |
| Township: | 30N | Section: | 3 |
| Range: | 1W |
Location |
| Address: | 1486 HASTINGS AVE PORT TOWNSEND, WA 98368 | Mapsco: | 161/108 |
| Neighborhood: | HASTINGS 3RD | Map ID: | |
| Neighborhood CD: | 6110 |
Owner |
| Name: | ERIC & GINA VICKREY | Owner ID: | 109887 |
| Mailing Address: | 1486 HASTINGS AVE PORT TOWNSEND, WA 98368-5901 | % Ownership: | 100.0000000000% |
| | | Exemptions: | |
Pay Tax Due
Select the appropriate checkbox next to the year to be paid. Multiple years may be selected.
*Convenience Fee not included
Taxes and Assessment Details
Property Tax Information as of
03/12/2026
Click on "Statement Details" to expand or collapse a tax statement.
* Please enter a valid date ** Please enter a valid date *
Statement Details |
| 2026 | 34382 | STATE - STATE LEVY (SCHOOL) | $405.00 | $404.98 | $0.00 | $0.00 | $0.00 | $809.98 |
| 2026 | 34382 | COUNTY - COUNTY LEVIES (CE, DD, VET, MH) | $161.92 | $161.92 | $0.00 | $0.00 | $0.00 | $323.84 |
| 2026 | 34382 | CONSERVE - CONSERVATION FUTURES | $4.86 | $4.85 | $0.00 | $0.00 | $0.00 | $9.71 |
| 2026 | 34382 | CITYPT - CITY OF PT | $229.83 | $229.82 | $0.00 | $0.00 | $0.00 | $459.65 |
| 2026 | 34382 | PORTPT - PORT DISTRICT | $65.39 | $65.39 | $0.00 | $0.00 | $0.00 | $130.78 |
| 2026 | 34382 | PUD1 - PUD #1 | $10.53 | $10.53 | $0.00 | $0.00 | $0.00 | $21.06 |
| 2026 | 34382 | HD2 - HOSP DIST #2 | $9.45 | $9.44 | $0.00 | $0.00 | $0.00 | $18.89 |
| 2026 | 34382 | SD50 - SCHOOL DIST #50 | $320.85 | $320.83 | $0.00 | $0.00 | $0.00 | $641.68 |
| 2026 | 34382 | FD1 - FIRE DISTRICT #1 | $214.41 | $214.41 | $0.00 | $0.00 | $0.00 | $428.82 |
| 2026 | 34382 | EMS1 - FIRE DIST #1 EMS | $82.44 | $82.44 | $0.00 | $0.00 | $0.00 | $164.88 |
| 2026 | 34382 | JCCD - JC Conservation District | $2.55 | $2.55 | $0.00 | $0.00 | $0.00 | $5.10 |
| 2026 | 34382 | NWA - Noxious Weed Assessment | $2.98 | $2.97 | $0.00 | $0.00 | $0.00 | $5.95 |
| 2026 | 34382 | TOTAL: | $1510.21 | $1510.13 | $0.00 | $0.00 | $0.00 | $3020.34 |
|
| 2026 | 34382 | $1510.21 | $1510.13 | $0.00 | $0.00 | $0.00 | $3020.34 |
Statement Details |
| 2025 | 34480 | STATE - STATE LEVY (SCHOOL) | $420.85 | $420.83 | $0.00 | $0.00 | $841.68 | $0.00 |
| 2025 | 34480 | COUNTY - COUNTY LEVIES (CE, DD, VET, MH) | $165.50 | $165.48 | $0.00 | $0.00 | $330.98 | $0.00 |
| 2025 | 34480 | CONSERVE - CONSERVATION FUTURES | $4.96 | $4.96 | $0.00 | $0.00 | $9.92 | $0.00 |
| 2025 | 34480 | CITYPT - CITY OF PT | $238.67 | $238.65 | $0.00 | $0.00 | $477.32 | $0.00 |
| 2025 | 34480 | PORTPT - PORT DISTRICT | $67.54 | $67.52 | $0.00 | $0.00 | $135.06 | $0.00 |
| 2025 | 34480 | PUD1 - PUD #1 | $10.83 | $10.83 | $0.00 | $0.00 | $21.66 | $0.00 |
| 2025 | 34480 | HD2 - HOSP DIST #2 | $9.66 | $9.65 | $0.00 | $0.00 | $19.31 | $0.00 |
| 2025 | 34480 | SD50 - SCHOOL DIST #50 | $307.57 | $307.56 | $0.00 | $0.00 | $615.13 | $0.00 |
| 2025 | 34480 | FD1 - FIRE DISTRICT #1 | $218.39 | $218.38 | $0.00 | $0.00 | $436.77 | $0.00 |
| 2025 | 34480 | EMS1 - FIRE DIST #1 EMS | $84.00 | $83.99 | $0.00 | $0.00 | $167.99 | $0.00 |
| 2025 | 34480 | JCCD - JC Conservation District | $2.55 | $2.55 | $0.00 | $0.00 | $5.10 | $0.00 |
| 2025 | 34480 | NWA - Noxious Weed Assessment | $2.15 | $2.15 | $0.00 | $0.00 | $4.30 | $0.00 |
| 2025 | 34480 | TOTAL: | $1532.67 | $1532.55 | $0.00 | $0.00 | $3065.22 | $0.00 |
|
| 2025 | 34480 | $1532.67 | $1532.55 | $0.00 | $0.00 | $3065.22 | $0.00 |
Statement Details |
| 2024 | 34550 | STATE - STATE LEVY (SCHOOL) | $365.04 | $365.02 | $0.00 | $0.00 | $730.06 | $0.00 |
| 2024 | 34550 | COUNTY - COUNTY LEVIES (CE, DD, VET, MH) | $156.21 | $156.19 | $0.00 | $0.00 | $312.40 | $0.00 |
| 2024 | 34550 | CONSERVE - CONSERVATION FUTURES | $4.69 | $4.68 | $0.00 | $0.00 | $9.37 | $0.00 |
| 2024 | 34550 | CITYPT - CITY OF PT | $223.20 | $223.17 | $0.00 | $0.00 | $446.37 | $0.00 |
| 2024 | 34550 | PORTPT - PORT DISTRICT | $64.52 | $64.51 | $0.00 | $0.00 | $129.03 | $0.00 |
| 2024 | 34550 | PUD1 - PUD #1 | $10.26 | $10.26 | $0.00 | $0.00 | $20.52 | $0.00 |
| 2024 | 34550 | HD2 - HOSP DIST #2 | $9.12 | $9.11 | $0.00 | $0.00 | $18.23 | $0.00 |
| 2024 | 34550 | SD50 - SCHOOL DIST #50 | $295.34 | $295.31 | $0.00 | $0.00 | $590.65 | $0.00 |
| 2024 | 34550 | FD1 - FIRE DISTRICT #1 | $206.54 | $206.53 | $0.00 | $0.00 | $413.07 | $0.00 |
| 2024 | 34550 | EMS1 - FIRE DIST #1 EMS | $78.89 | $78.89 | $0.00 | $0.00 | $157.78 | $0.00 |
| 2024 | 34550 | JCCD - JC Conservation District | $2.55 | $2.55 | $0.00 | $0.00 | $5.10 | $0.00 |
| 2024 | 34550 | NWA - Noxious Weed Assessment | $2.15 | $2.15 | $0.00 | $0.00 | $4.30 | $0.00 |
| 2024 | 34550 | TOTAL: | $1418.51 | $1418.37 | $0.00 | $0.00 | $2836.88 | $0.00 |
|
| 2024 | 34550 | $1418.51 | $1418.37 | $0.00 | $0.00 | $2836.88 | $0.00 |
Statement Details |
| 2023 | 34613 | STATE - STATE LEVY (SCHOOL) | $61.21 | $61.21 | $0.00 | $0.00 | $122.42 | $0.00 |
| 2023 | 34613 | COUNTY - COUNTY LEVIES (CE, DD, VET, MH) | $26.72 | $26.70 | $0.00 | $0.00 | $53.42 | $0.00 |
| 2023 | 34613 | CONSERVE - CONSERVATION FUTURES | $0.80 | $0.80 | $0.00 | $0.00 | $1.60 | $0.00 |
| 2023 | 34613 | CITYPT - CITY OF PT | $37.75 | $37.75 | $0.00 | $0.00 | $75.50 | $0.00 |
| 2023 | 34613 | PORTPT - PORT DISTRICT | $11.26 | $11.25 | $0.00 | $0.00 | $22.51 | $0.00 |
| 2023 | 34613 | PUD1 - PUD #1 | $1.77 | $1.77 | $0.00 | $0.00 | $3.54 | $0.00 |
| 2023 | 34613 | HD2 - HOSP DIST #2 | $1.57 | $1.55 | $0.00 | $0.00 | $3.12 | $0.00 |
| 2023 | 34613 | SD50 - SCHOOL DIST #50 | $48.58 | $48.56 | $0.00 | $0.00 | $97.14 | $0.00 |
| 2023 | 34613 | FD1 - FIRE DISTRICT #1 | $22.01 | $22.00 | $0.00 | $0.00 | $44.01 | $0.00 |
| 2023 | 34613 | EMS1 - FIRE DIST #1 EMS | $9.36 | $9.36 | $0.00 | $0.00 | $18.72 | $0.00 |
| 2023 | 34613 | JCCD - JC Conservation District | $2.53 | $2.53 | $0.00 | $0.00 | $5.06 | $0.00 |
| 2023 | 34613 | NWA - Noxious Weed Assessment | $2.15 | $2.15 | $0.00 | $0.00 | $4.30 | $0.00 |
| 2023 | 34613 | TOTAL: | $225.71 | $225.63 | $0.00 | $0.00 | $451.34 | $0.00 |
|
| 2023 | 34613 | $225.71 | $225.63 | $0.00 | $0.00 | $451.34 | $0.00 |
Values
| (+) Improvement Homesite Value: | + | $0 | |
| (+) Improvement Non-Homesite Value: | + | $266,306 | |
| (+) Land Homesite Value: | + | $0 | |
| (+) Land Non-Homesite Value: | + | $86,000 | |
| (+) Curr Use (HS): | + | $0 | $0 |
| (+) Curr Use (NHS): | + | $0 | $0 |
| | | -------------------------- | |
| (=) Market Value: | = | $352,306 | |
| (–) Productivity Loss: | – | $0 | |
| | | -------------------------- | |
| (=) Subtotal: | = | $352,306 | |
| (+) Senior Appraised Value: | + | $0 | |
| (+) Non-Senior Appraised Value: | + | $352,306 | |
| | | -------------------------- | |
| (=) Total Appraised Value: | = | $352,306 | |
| (–) Senior Exemption Loss: | – | $0 | |
| (–) Exemption Loss: | – | $0 | |
| | | -------------------------- | |
| (=) Taxable Value: | = | $352,306 | |
Taxing Jurisdiction
| Owner: | ERIC & GINA VICKREY | | |
| % Ownership: | 100.0000000000% | | |
| Total Value: | $352,306 | | |
| Tax Area: | 0110 - C-50F1E1H2 |
| CE | COUNTY CURRENT EXPENSE | 0.9034619479 | $352,306 | $352,306 | $318.30 | | |
| CNTYDD | DEVELOPMENTAL DISABILITIES | 0.0052121823 | $352,306 | $352,306 | $1.84 | | |
| CNTYVET | VETERANS RELIEF | 0.0052777810 | $352,306 | $352,306 | $1.86 | | |
| MENTAL | MENTAL HEALTH | 0.0052121823 | $352,306 | $352,306 | $1.84 | | |
| PTGEN | CITY OF PT GENERAL | 0.8551967795 | $352,306 | $352,306 | $301.29 | | |
| PTLLL | CITY OF PT - LIBRARY LID LIFT | 0.4010114288 | $352,306 | $352,306 | $141.28 | | |
| PTMVBOND | CITY OF PT MV BOND | 0.0484717981 | $352,306 | $352,306 | $17.08 | | |
| HOSP2CASH | HOSP DIST #2 GENERAL | 0.0536075306 | $352,306 | $352,306 | $18.89 | | |
| SCH50BOND | SCHOOL DIST #50 BOND 2016 | 0.5377451389 | $352,306 | $352,306 | $189.45 | | |
| SCH50CP | SCHOOL DIST #50 CAP PROJ | 0.4573475088 | $352,306 | $352,306 | $161.13 | | |
| SCH50MO | SCHOOL DIST #50 EP & O | 0.8262822886 | $352,306 | $352,306 | $291.10 | | |
| CONSERVE | CONSERVATION FUTURES | 0.0275621078 | $352,306 | $352,306 | $9.71 | | |
| EMS1 | FIRE DIST #1 EMS | 0.4679948282 | $352,306 | $352,306 | $164.88 | | |
| FD1 | FIRE DIST #1 GENERAL | 1.2171942929 | $352,306 | $352,306 | $428.82 | | |
| PORTPT | PORT OF PT GENERAL | 0.1134941229 | $352,306 | $352,306 | $39.98 | | |
| PORTPTIDD | PORT OF PT IDD 2019 | 0.2577346692 | $352,306 | $352,306 | $90.80 | | |
| PUD1 | PUD #1 GENERAL | 0.0597888892 | $352,306 | $352,306 | $21.06 | | |
| STATE | STATE SCHOOL PART 1 | 1.4940692947 | $352,306 | $352,306 | $526.37 | | |
| STATE2 | STATE SCHOOL PART 2 | 0.8050170049 | $352,306 | $352,306 | $283.61 | | |
| | Total Tax Rate: | 8.5416817766 | | | | | |
| | | | | Taxes w/Current Exemptions: | $3,009.29 | | |
| | | | | Taxes w/o Exemptions: | $3,009.29 | | |
Improvement / Building
| Improvement #1: | Residential Bldg | State Code: | 11 | 882.9 sqft | Value: | $266,306 |
| Bathrooms (#): | 1 (FULL) | Bedrooms (#): | 3 | | Exterior Wall: | SI/ST | Floor Construction: | FRAME | | Foundation: | CONPR | Heating/Cooling: | HPUMP | | Interior Finish: | FIN | Roof Cover: | COMP |
|
| | Type | Description | Class CD | Sub Class CD | Year Built | Area |
| | MA | Main Area | 4+ | 1S | 2023 | 882.9 |
| | SHED | Shed (Table Not Dep) | 4 | 1S | 2023 | 120.0 |
Sketch
Property Image
Land
| 1 | 6110-1177L | | 0.0000 | 0.00 | 0.00 | 0.00 | 1.00 | $86,000 | $0 |
Roll Value History
| 2026 | N/A | N/A | N/A | N/A | N/A |
| 2025 | $266,306 | $86,000 | $0 | $352,306 | $352,306 |
| 2024 | $264,889 | $86,100 | $0 | $350,989 | $350,989 |
| 2023 | $234,701 | $80,850 | $0 | $315,551 | $315,551 |
| 2022 | $0 | $52,000 | $0 | $52,000 | $52,000 |
Deed and Sales History
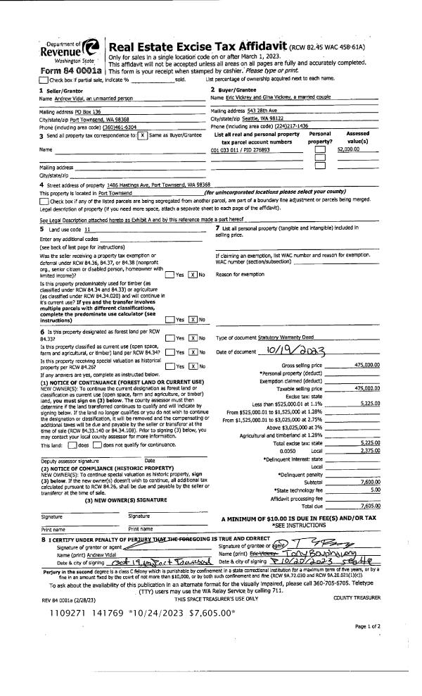
| 1 | 10/19/2023 | SWD | Statutory Warranty Deed | ANDREW VIDAL | ERIC & GINA VICKREY | | | $475,000.00 | 141769 | |
| 2 | 11/01/2022 | QCD | Quit Claim Deed | CELIA LEVITES | ANDREW VIDAL | | | | 140081 | |
| 3 | 03/09/2020 | SWD | Statutory Warranty Deed | RICHARD A & DEBORAH JAHNKE | CELIA LEVITES | | | | 0 | |
| 4 | 08/06/2018 | SWD | Statutory Warranty Deed | MICHAEL L BECKER | RICHARD A & DEBORAH JAHNKE | | | | 0 | |
| 5 | 10/02/2002 | WD | Warranty Deed | SERWE ESTATE, MICHAEL A | SERWE TEST TRST, MICHAEL A | 0 | 0 | | 0 | 0 |
| 6 | 10/02/2002 | WD | Warranty Deed | SERWE ESTATE, MICHAEL A | SERWE, MICHAEL/TRUST | 0 | 0 | | 0 | 0 |
Payout Agreement
| No payout information available.. |