Property
Account |
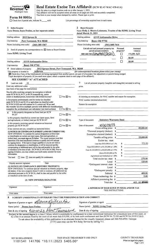
| Property ID: | 276988 | Abbreviated Legal Description: | PETTYGROVE'S 2ND ADDITION BLK 9 LOTS 1 & 2 -LOT CERT LUP23-043 |
| Parcel # / Geo ID: | 985200901 | Agent Code: | |
| Type: | Real | | |
| Tax Area: | 0110 - C-50F1E1H2 | Land Use Code | 91 |
| Open Space: | N | DFL | N |
| Historic Property: | N | Remodel Property: | N |
| Multi-Family Redevelopment: | N | | |
| Township: | 31N | Section: | 35 |
| Range: | 1W |
Location |
| Address: | | Mapsco: | 097/015 |
| Neighborhood: | PORTION PETTYGROVES 2ND LYING W OF CHERRY,QED SP | Map ID: | |
| Neighborhood CD: | 6410 |
Owner |
| Name: | HJML LIVING TRUST | Owner ID: | 109829 |
| Mailing Address: | HOLLY J MOORE-LOHMANN TRUSTEE 61119 AMBASSADOR DR BEND, OR 97702-0102 | % Ownership: | 100.0000000000% |
| | | Exemptions: | |
Pay Tax Due
Select the appropriate checkbox next to the year to be paid. Multiple years may be selected.
*Convenience Fee not included
Taxes and Assessment Details
Property Tax Information as of
03/10/2026
Click on "Statement Details" to expand or collapse a tax statement.
* Please enter a valid date ** Please enter a valid date *
Statement Details |
| 2026 | 34468 | STATE - STATE LEVY (SCHOOL) | $215.54 | $215.54 | $0.00 | $0.00 | $0.00 | $431.08 |
| 2026 | 34468 | COUNTY - COUNTY LEVIES (CE, DD, VET, MH) | $86.18 | $86.17 | $0.00 | $0.00 | $0.00 | $172.35 |
| 2026 | 34468 | CONSERVE - CONSERVATION FUTURES | $2.59 | $2.58 | $0.00 | $0.00 | $0.00 | $5.17 |
| 2026 | 34468 | CITYPT - CITY OF PT | $122.33 | $122.30 | $0.00 | $0.00 | $0.00 | $244.63 |
| 2026 | 34468 | PORTPT - PORT DISTRICT | $34.81 | $34.80 | $0.00 | $0.00 | $0.00 | $69.61 |
| 2026 | 34468 | PUD1 - PUD #1 | $5.61 | $5.60 | $0.00 | $0.00 | $0.00 | $11.21 |
| 2026 | 34468 | HD2 - HOSP DIST #2 | $5.03 | $5.02 | $0.00 | $0.00 | $0.00 | $10.05 |
| 2026 | 34468 | SD50 - SCHOOL DIST #50 | $170.77 | $170.74 | $0.00 | $0.00 | $0.00 | $341.51 |
| 2026 | 34468 | FD1 - FIRE DISTRICT #1 | $114.11 | $114.11 | $0.00 | $0.00 | $0.00 | $228.22 |
| 2026 | 34468 | EMS1 - FIRE DIST #1 EMS | $43.88 | $43.87 | $0.00 | $0.00 | $0.00 | $87.75 |
| 2026 | 34468 | JCCD - JC Conservation District | $2.53 | $2.53 | $0.00 | $0.00 | $0.00 | $5.06 |
| 2026 | 34468 | NWA - Noxious Weed Assessment | $2.98 | $2.97 | $0.00 | $0.00 | $0.00 | $5.95 |
| 2026 | 34468 | TOTAL: | $806.36 | $806.23 | $0.00 | $0.00 | $0.00 | $1612.59 |
|
| 2026 | 34468 | $806.36 | $806.23 | $0.00 | $0.00 | $0.00 | $1612.59 |
Statement Details |
| 2025 | 34569 | STATE - STATE LEVY (SCHOOL) | $217.63 | $217.61 | $0.00 | $0.00 | $435.24 | $0.00 |
| 2025 | 34569 | COUNTY - COUNTY LEVIES (CE, DD, VET, MH) | $85.59 | $85.57 | $0.00 | $0.00 | $171.16 | $0.00 |
| 2025 | 34569 | CONSERVE - CONSERVATION FUTURES | $2.57 | $2.56 | $0.00 | $0.00 | $5.13 | $0.00 |
| 2025 | 34569 | CITYPT - CITY OF PT | $123.42 | $123.40 | $0.00 | $0.00 | $246.82 | $0.00 |
| 2025 | 34569 | PORTPT - PORT DISTRICT | $34.93 | $34.91 | $0.00 | $0.00 | $69.84 | $0.00 |
| 2025 | 34569 | PUD1 - PUD #1 | $5.60 | $5.60 | $0.00 | $0.00 | $11.20 | $0.00 |
| 2025 | 34569 | HD2 - HOSP DIST #2 | $5.00 | $4.99 | $0.00 | $0.00 | $9.99 | $0.00 |
| 2025 | 34569 | SD50 - SCHOOL DIST #50 | $159.06 | $159.03 | $0.00 | $0.00 | $318.09 | $0.00 |
| 2025 | 34569 | FD1 - FIRE DISTRICT #1 | $112.93 | $112.93 | $0.00 | $0.00 | $225.86 | $0.00 |
| 2025 | 34569 | EMS1 - FIRE DIST #1 EMS | $43.44 | $43.43 | $0.00 | $0.00 | $86.87 | $0.00 |
| 2025 | 34569 | JCCD - JC Conservation District | $2.53 | $2.53 | $0.00 | $0.00 | $5.06 | $0.00 |
| 2025 | 34569 | NWA - Noxious Weed Assessment | $2.15 | $2.15 | $0.00 | $0.00 | $4.30 | $0.00 |
| 2025 | 34569 | TOTAL: | $794.85 | $794.71 | $0.00 | $0.00 | $1589.56 | $0.00 |
|
| 2025 | 34569 | $794.85 | $794.71 | $0.00 | $0.00 | $1589.56 | $0.00 |
Statement Details |
| 2024 | 34643 | STATE - STATE LEVY (SCHOOL) | $200.42 | $200.41 | $0.00 | $0.00 | $400.83 | $0.00 |
| 2024 | 34643 | COUNTY - COUNTY LEVIES (CE, DD, VET, MH) | $85.77 | $85.75 | $0.00 | $0.00 | $171.52 | $0.00 |
| 2024 | 34643 | CONSERVE - CONSERVATION FUTURES | $2.57 | $2.57 | $0.00 | $0.00 | $5.14 | $0.00 |
| 2024 | 34643 | CITYPT - CITY OF PT | $122.55 | $122.53 | $0.00 | $0.00 | $245.08 | $0.00 |
| 2024 | 34643 | PORTPT - PORT DISTRICT | $35.43 | $35.42 | $0.00 | $0.00 | $70.85 | $0.00 |
| 2024 | 34643 | PUD1 - PUD #1 | $5.64 | $5.63 | $0.00 | $0.00 | $11.27 | $0.00 |
| 2024 | 34643 | HD2 - HOSP DIST #2 | $5.01 | $5.00 | $0.00 | $0.00 | $10.01 | $0.00 |
| 2024 | 34643 | SD50 - SCHOOL DIST #50 | $162.15 | $162.14 | $0.00 | $0.00 | $324.29 | $0.00 |
| 2024 | 34643 | FD1 - FIRE DISTRICT #1 | $113.40 | $113.39 | $0.00 | $0.00 | $226.79 | $0.00 |
| 2024 | 34643 | EMS1 - FIRE DIST #1 EMS | $43.32 | $43.31 | $0.00 | $0.00 | $86.63 | $0.00 |
| 2024 | 34643 | JCCD - JC Conservation District | $2.53 | $2.53 | $0.00 | $0.00 | $5.06 | $0.00 |
| 2024 | 34643 | NWA - Noxious Weed Assessment | $2.15 | $2.15 | $0.00 | $0.00 | $4.30 | $0.00 |
| 2024 | 34643 | TOTAL: | $780.94 | $780.83 | $0.00 | $0.00 | $1561.77 | $0.00 |
|
| 2024 | 34643 | $780.94 | $780.83 | $0.00 | $0.00 | $1561.77 | $0.00 |
Values
| (+) Improvement Homesite Value: | + | $0 | |
| (+) Improvement Non-Homesite Value: | + | $0 | |
| (+) Land Homesite Value: | + | $0 | |
| (+) Land Non-Homesite Value: | + | $187,500 | |
| (+) Curr Use (HS): | + | $0 | $0 |
| (+) Curr Use (NHS): | + | $0 | $0 |
| | | -------------------------- | |
| (=) Market Value: | = | $187,500 | |
| (–) Productivity Loss: | – | $0 | |
| | | -------------------------- | |
| (=) Subtotal: | = | $187,500 | |
| (+) Senior Appraised Value: | + | $0 | |
| (+) Non-Senior Appraised Value: | + | $187,500 | |
| | | -------------------------- | |
| (=) Total Appraised Value: | = | $187,500 | |
| (–) Senior Exemption Loss: | – | $0 | |
| (–) Exemption Loss: | – | $0 | |
| | | -------------------------- | |
| (=) Taxable Value: | = | $187,500 | |
Taxing Jurisdiction
| Owner: | HJML LIVING TRUST | | |
| % Ownership: | 100.0000000000% | | |
| Total Value: | $187,500 | | |
| Tax Area: | 0110 - C-50F1E1H2 |
| CE | COUNTY CURRENT EXPENSE | 0.9034619479 | $187,500 | $187,500 | $169.40 | | |
| CNTYDD | DEVELOPMENTAL DISABILITIES | 0.0052121823 | $187,500 | $187,500 | $0.98 | | |
| CNTYVET | VETERANS RELIEF | 0.0052777810 | $187,500 | $187,500 | $0.99 | | |
| MENTAL | MENTAL HEALTH | 0.0052121823 | $187,500 | $187,500 | $0.98 | | |
| PTGEN | CITY OF PT GENERAL | 0.8551967795 | $187,500 | $187,500 | $160.35 | | |
| PTLLL | CITY OF PT - LIBRARY LID LIFT | 0.4010114288 | $187,500 | $187,500 | $75.19 | | |
| PTMVBOND | CITY OF PT MV BOND | 0.0484717981 | $187,500 | $187,500 | $9.09 | | |
| HOSP2CASH | HOSP DIST #2 GENERAL | 0.0536075306 | $187,500 | $187,500 | $10.05 | | |
| SCH50BOND | SCHOOL DIST #50 BOND 2016 | 0.5377451389 | $187,500 | $187,500 | $100.83 | | |
| SCH50CP | SCHOOL DIST #50 CAP PROJ | 0.4573475088 | $187,500 | $187,500 | $85.75 | | |
| SCH50MO | SCHOOL DIST #50 EP & O | 0.8262822886 | $187,500 | $187,500 | $154.93 | | |
| CONSERVE | CONSERVATION FUTURES | 0.0275621078 | $187,500 | $187,500 | $5.17 | | |
| EMS1 | FIRE DIST #1 EMS | 0.4679948282 | $187,500 | $187,500 | $87.75 | | |
| FD1 | FIRE DIST #1 GENERAL | 1.2171942929 | $187,500 | $187,500 | $228.22 | | |
| PORTPT | PORT OF PT GENERAL | 0.1134941229 | $187,500 | $187,500 | $21.28 | | |
| PORTPTIDD | PORT OF PT IDD 2019 | 0.2577346692 | $187,500 | $187,500 | $48.33 | | |
| PUD1 | PUD #1 GENERAL | 0.0597888892 | $187,500 | $187,500 | $11.21 | | |
| STATE | STATE SCHOOL PART 1 | 1.4940692947 | $187,500 | $187,500 | $280.14 | | |
| STATE2 | STATE SCHOOL PART 2 | 0.8050170049 | $187,500 | $187,500 | $150.94 | | |
| | Total Tax Rate: | 8.5416817766 | | | | | |
| | | | | Taxes w/Current Exemptions: | $1,601.58 | | |
| | | | | Taxes w/o Exemptions: | $1,601.58 | | |
Improvement / Building
Sketch
| No sketches available for this property. |
Property Image
Land
| 1 | 6410-1177L | | 0.0000 | 0.00 | 0.00 | 0.00 | 1.00 | $125,000 | $0 |
| 2 | 6410-1177L | | 0.0000 | 0.00 | 0.00 | 0.00 | 1.00 | $62,500 | $0 |
Roll Value History
| 2026 | N/A | N/A | N/A | N/A | N/A |
| 2025 | $0 | $187,500 | $0 | $187,500 | $187,500 |
| 2024 | $0 | $181,500 | $0 | $181,500 | $181,500 |
| 2023 | $0 | $173,250 | $0 | $173,250 | $173,250 |
Deed and Sales History
| 1 | 10/10/2023 | SWD | Statutory Warranty Deed | DONNA FREITAS | HJML LIVING TRUST | | | $25,000.00 | 141706 | |
Payout Agreement
| No payout information available.. |