Property
Account |
| Property ID: | 276991 | Abbreviated Legal Description: | S25 T27N R1W GOV LOTS 1(N900'),2(ALL),3(N1056')AND W1/4 OF SEC(E150' OF N3717.77' W/RD) -PARCEL B LOT CERT MLA22-00061/AF#658106 |
| Parcel # / Geo ID: | 701252001 | Agent Code: | |
| Type: | Real | | |
| Tax Area: | 0323 - 1-48F2E2P1H2C2L1 | Land Use Code | 88 |
| Open Space: | N | DFL | Y |
| Historic Property: | N | Remodel Property: | N |
| Multi-Family Redevelopment: | N | | |
| Township: | 27N | Section: | 25 |
| Range: | 1W |
Location |
| Address: | 5861 THORNDYKE RD QUILCENE, WA 98376 | Mapsco: | 145/010 |
| Neighborhood: | S24 & S25 T27N R1W | Map ID: | |
| Neighborhood CD: | 2375 |
Owner |
| Name: | THORNDYKE LLC | Owner ID: | 28942 |
| Mailing Address: | 101 SW MADISON ST UNIT 8758 PORTLAND, OR 97207 | % Ownership: | 100.0000000000% |
| | | Exemptions: | |
Pay Tax Due
Select the appropriate checkbox next to the year to be paid. Multiple years may be selected.
*Convenience Fee not included
Taxes and Assessment Details
Property Tax Information as of
03/13/2026
Click on "Statement Details" to expand or collapse a tax statement.
* Please enter a valid date ** Please enter a valid date *
Statement Details |
| 2026 | 34471 | STATE - STATE LEVY (SCHOOL) | $2404.88 | $2404.87 | $0.00 | $0.00 | $0.00 | $4809.75 |
| 2026 | 34471 | COUNTY - COUNTY LEVIES (CE, DD, VET, MH) | $961.45 | $961.45 | $0.00 | $0.00 | $0.00 | $1922.90 |
| 2026 | 34471 | CONSERVE - CONSERVATION FUTURES | $28.83 | $28.83 | $0.00 | $0.00 | $0.00 | $57.66 |
| 2026 | 34471 | COROADS - COUNTY ROADS (ROADS, DIV TO CE) | $775.63 | $775.62 | $0.00 | $0.00 | $0.00 | $1551.25 |
| 2026 | 34471 | PORTPT - PORT DISTRICT | $388.32 | $388.30 | $0.00 | $0.00 | $0.00 | $776.62 |
| 2026 | 34471 | PUD1 - PUD #1 | $62.54 | $62.54 | $0.00 | $0.00 | $0.00 | $125.08 |
| 2026 | 34471 | LIB1 - LIBRARY DIST #1 | $300.09 | $300.08 | $0.00 | $0.00 | $0.00 | $600.17 |
| 2026 | 34471 | HD2 - HOSP DIST #2 | $56.08 | $56.07 | $0.00 | $0.00 | $0.00 | $112.15 |
| 2026 | 34471 | SD48 - SCHOOL DIST #48 | $1477.02 | $1477.02 | $0.00 | $0.00 | $0.00 | $2954.04 |
| 2026 | 34471 | FD2 - FIRE DISTRICT #2 | $789.74 | $789.73 | $0.00 | $0.00 | $0.00 | $1579.47 |
| 2026 | 34471 | EMS2 - FIRE DIST #2 EMS | $444.74 | $444.73 | $0.00 | $0.00 | $0.00 | $889.47 |
| 2026 | 34471 | CEM2 - CEMETERY DIST #2 | $25.24 | $25.23 | $0.00 | $0.00 | $0.00 | $50.47 |
| 2026 | 34471 | PARK1 - PARK & REC DIST #1 | $154.23 | $154.23 | $0.00 | $0.00 | $0.00 | $308.46 |
| 2026 | 34471 | NWA - Noxious Weed Assessment | $2.64 | $2.64 | $0.00 | $0.00 | $0.00 | $5.28 |
| 2026 | 34471 | OSS - On Site Septic | $69.30 | $69.30 | $0.00 | $0.00 | $0.00 | $138.60 |
| 2026 | 34471 | WAT - Clean Water District | $13.00 | $13.00 | $0.00 | $0.00 | $0.00 | $26.00 |
| 2026 | 34471 | TOTAL: | $7953.73 | $7953.64 | $0.00 | $0.00 | $0.00 | $15907.37 |
|
| 2026 | 34471 | $7953.73 | $7953.64 | $0.00 | $0.00 | $0.00 | $15907.37 |
Statement Details |
| 2025 | 34572 | STATE - STATE LEVY (SCHOOL) | $2400.57 | $2400.56 | $0.00 | $0.00 | $4801.13 | $0.00 |
| 2025 | 34572 | COUNTY - COUNTY LEVIES (CE, DD, VET, MH) | $944.01 | $944.00 | $0.00 | $0.00 | $1888.01 | $0.00 |
| 2025 | 34572 | CONSERVE - CONSERVATION FUTURES | $28.31 | $28.30 | $0.00 | $0.00 | $56.61 | $0.00 |
| 2025 | 34572 | COROADS - COUNTY ROADS (ROADS, DIV TO CE) | $756.30 | $756.29 | $0.00 | $0.00 | $1512.59 | $0.00 |
| 2025 | 34572 | PORTPT - PORT DISTRICT | $385.21 | $385.21 | $0.00 | $0.00 | $770.42 | $0.00 |
| 2025 | 34572 | PUD1 - PUD #1 | $61.77 | $61.77 | $0.00 | $0.00 | $123.54 | $0.00 |
| 2025 | 34572 | LIB1 - LIBRARY DIST #1 | $292.61 | $292.60 | $0.00 | $0.00 | $585.21 | $0.00 |
| 2025 | 34572 | HD2 - HOSP DIST #2 | $55.08 | $55.07 | $0.00 | $0.00 | $110.15 | $0.00 |
| 2025 | 34572 | SD48 - SCHOOL DIST #48 | $1413.62 | $1413.62 | $0.00 | $0.00 | $2827.24 | $0.00 |
| 2025 | 34572 | FD2 - FIRE DISTRICT #2 | $780.50 | $780.50 | $0.00 | $0.00 | $1561.00 | $0.00 |
| 2025 | 34572 | EMS2 - FIRE DIST #2 EMS | $439.48 | $439.47 | $0.00 | $0.00 | $878.95 | $0.00 |
| 2025 | 34572 | CEM2 - CEMETERY DIST #2 | $24.90 | $24.90 | $0.00 | $0.00 | $49.80 | $0.00 |
| 2025 | 34572 | PARK1 - PARK & REC DIST #1 | $114.03 | $114.03 | $0.00 | $0.00 | $228.06 | $0.00 |
| 2025 | 34572 | NWA - Noxious Weed Assessment | $1.78 | $1.77 | $0.00 | $0.00 | $3.55 | $0.00 |
| 2025 | 34572 | WAT - Clean Water District | $13.00 | $13.00 | $0.00 | $0.00 | $26.00 | $0.00 |
| 2025 | 34572 | TOTAL: | $7711.17 | $7711.09 | $0.00 | $0.00 | $15422.26 | $0.00 |
|
| 2025 | 34572 | $7711.17 | $7711.09 | $0.00 | $0.00 | $15422.26 | $0.00 |
Statement Details |
| 2024 | 34646 | STATE - STATE LEVY (SCHOOL) | $2199.59 | $2199.58 | $0.00 | $0.00 | $4399.17 | $0.00 |
| 2024 | 34646 | COUNTY - COUNTY LEVIES (CE, DD, VET, MH) | $941.24 | $941.21 | $0.00 | $0.00 | $1882.45 | $0.00 |
| 2024 | 34646 | CONSERVE - CONSERVATION FUTURES | $28.23 | $28.22 | $0.00 | $0.00 | $56.45 | $0.00 |
| 2024 | 34646 | COROADS - COUNTY ROADS (ROADS, DIV TO CE) | $757.38 | $757.36 | $0.00 | $0.00 | $1514.74 | $0.00 |
| 2024 | 34646 | PORTPT - PORT DISTRICT | $388.77 | $388.76 | $0.00 | $0.00 | $777.53 | $0.00 |
| 2024 | 34646 | PUD1 - PUD #1 | $61.83 | $61.82 | $0.00 | $0.00 | $123.65 | $0.00 |
| 2024 | 34646 | LIB1 - LIBRARY DIST #1 | $293.02 | $293.02 | $0.00 | $0.00 | $586.04 | $0.00 |
| 2024 | 34646 | HD2 - HOSP DIST #2 | $54.92 | $54.92 | $0.00 | $0.00 | $109.84 | $0.00 |
| 2024 | 34646 | SD48 - SCHOOL DIST #48 | $985.16 | $985.15 | $0.00 | $0.00 | $1970.31 | $0.00 |
| 2024 | 34646 | FD2 - FIRE DISTRICT #2 | $782.49 | $782.48 | $0.00 | $0.00 | $1564.97 | $0.00 |
| 2024 | 34646 | EMS2 - FIRE DIST #2 EMS | $440.49 | $440.49 | $0.00 | $0.00 | $880.98 | $0.00 |
| 2024 | 34646 | CEM2 - CEMETERY DIST #2 | $25.05 | $25.04 | $0.00 | $0.00 | $50.09 | $0.00 |
| 2024 | 34646 | PARK1 - PARK & REC DIST #1 | $109.93 | $109.93 | $0.00 | $0.00 | $219.86 | $0.00 |
| 2024 | 34646 | NWA - Noxious Weed Assessment | $1.78 | $1.77 | $0.00 | $0.00 | $3.55 | $0.00 |
| 2024 | 34646 | WAT - Clean Water District | $12.50 | $12.50 | $0.00 | $0.00 | $25.00 | $0.00 |
| 2024 | 34646 | TOTAL: | $7082.38 | $7082.25 | $0.00 | $0.00 | $14164.63 | $0.00 |
|
| 2024 | 34646 | $7082.38 | $7082.25 | $0.00 | $0.00 | $14164.63 | $0.00 |
Statement Details |
| 2023 | 34622 | STATE - STATE LEVY (SCHOOL) | $2243.82 | $2243.81 | $0.00 | $0.00 | $4487.63 | $0.00 |
| 2023 | 34622 | COUNTY - COUNTY LEVIES (CE, DD, VET, MH) | $979.14 | $979.13 | $0.00 | $0.00 | $1958.27 | $0.00 |
| 2023 | 34622 | CONSERVE - CONSERVATION FUTURES | $29.36 | $29.36 | $0.00 | $0.00 | $58.72 | $0.00 |
| 2023 | 34622 | COROADS - COUNTY ROADS (ROADS, DIV TO CE) | $792.20 | $792.18 | $0.00 | $0.00 | $1584.38 | $0.00 |
| 2023 | 34622 | PORTPT - PORT DISTRICT | $412.47 | $412.46 | $0.00 | $0.00 | $824.93 | $0.00 |
| 2023 | 34622 | PUD1 - PUD #1 | $64.91 | $64.90 | $0.00 | $0.00 | $129.81 | $0.00 |
| 2023 | 34622 | LIB1 - LIBRARY DIST #1 | $306.49 | $306.49 | $0.00 | $0.00 | $612.98 | $0.00 |
| 2023 | 34622 | HD2 - HOSP DIST #2 | $57.14 | $57.13 | $0.00 | $0.00 | $114.27 | $0.00 |
| 2023 | 34622 | SD48 - SCHOOL DIST #48 | $1083.56 | $1083.56 | $0.00 | $0.00 | $2167.12 | $0.00 |
| 2023 | 34622 | FD2 - FIRE DISTRICT #2 | $849.91 | $849.91 | $0.00 | $0.00 | $1699.82 | $0.00 |
| 2023 | 34622 | EMS2 - FIRE DIST #2 EMS | $476.57 | $476.56 | $0.00 | $0.00 | $953.13 | $0.00 |
| 2023 | 34622 | CEM2 - CEMETERY DIST #2 | $27.06 | $27.05 | $0.00 | $0.00 | $54.11 | $0.00 |
| 2023 | 34622 | PARK1 - PARK & REC DIST #1 | $106.45 | $106.44 | $0.00 | $0.00 | $212.89 | $0.00 |
| 2023 | 34622 | FP - DNR Forest Fire Protection Assmt | $32.50 | $32.50 | $0.00 | $0.00 | $65.00 | $0.00 |
| 2023 | 34622 | NWA - Noxious Weed Assessment | $3.64 | $3.63 | $0.00 | $0.00 | $7.27 | $0.00 |
| 2023 | 34622 | FP ADMIN - FP ADMIN | $0.50 | $0.00 | $0.00 | $0.00 | $0.50 | $0.00 |
| 2023 | 34622 | TOTAL: | $7465.72 | $7465.11 | $0.00 | $0.00 | $14930.83 | $0.00 |
|
| 2023 | 34622 | $7465.72 | $7465.11 | $0.00 | $0.00 | $14930.83 | $0.00 |
Values
| (+) Improvement Homesite Value: | + | $0 | |
| (+) Improvement Non-Homesite Value: | + | $215,736 | |
| (+) Land Homesite Value: | + | $0 | |
| (+) Land Non-Homesite Value: | + | $1,863,198 | |
| (+) Curr Use (HS): | + | $0 | $0 |
| (+) Curr Use (NHS): | + | $542,109 | $13,271 |
| | | -------------------------- | |
| (=) Market Value: | = | $2,621,043 | |
| (–) Productivity Loss: | – | $528,838 | |
| | | -------------------------- | |
| (=) Subtotal: | = | $2,092,205 | |
| (+) Senior Appraised Value: | + | $0 | |
| (+) Non-Senior Appraised Value: | + | $2,092,205 | |
| | | -------------------------- | |
| (=) Total Appraised Value: | = | $2,092,205 | |
| (–) Senior Exemption Loss: | – | $0 | |
| (–) Exemption Loss: | – | $0 | |
| | | -------------------------- | |
| (=) Taxable Value: | = | $2,092,205 | |
Taxing Jurisdiction
| Owner: | THORNDYKE LLC | | |
| % Ownership: | 100.0000000000% | | |
| Total Value: | N/A | | |
| Tax Area: | 0323 - 1-48F2E2P1H2C2L1 |
| CE | COUNTY CURRENT EXPENSE | N/A | N/A | N/A | N/A | | |
| CNTYDD | DEVELOPMENTAL DISABILITIES | N/A | N/A | N/A | N/A | | |
| CNTYVET | VETERANS RELIEF | N/A | N/A | N/A | N/A | | |
| MENTAL | MENTAL HEALTH | N/A | N/A | N/A | N/A | | |
| ROADS | COUNTY ROADS | N/A | N/A | N/A | N/A | | |
| HOSP2CASH | HOSP DIST #2 GENERAL | N/A | N/A | N/A | N/A | | |
| SCH48MO | SCHOOL DIST #48 EP & O | N/A | N/A | N/A | N/A | | |
| CEM2 | CEMETERY DIST #2 GENERAL | N/A | N/A | N/A | N/A | | |
| CONSERVE | CONSERVATION FUTURES | N/A | N/A | N/A | N/A | | |
| FD2 | FIRE DIST #2 GENERAL | N/A | N/A | N/A | N/A | | |
| LIB1 | LIBRARY DIST #1 GENERAL | N/A | N/A | N/A | N/A | | |
| PARK1 | PARK & REC DIST #1 GENERAL | N/A | N/A | N/A | N/A | | |
| PORTPT | PORT OF PT GENERAL | N/A | N/A | N/A | N/A | | |
| PORTPTIDD | PORT OF PT IDD 2019 | N/A | N/A | N/A | N/A | | |
| PUD1 | PUD #1 GENERAL | N/A | N/A | N/A | N/A | | |
| STATE | STATE SCHOOL PART 1 | N/A | N/A | N/A | N/A | | |
| STATE2 | STATE SCHOOL PART 2 | N/A | N/A | N/A | N/A | | |
| EMS2 | FIRE DIST #2 EMS | N/A | N/A | N/A | N/A | | |
| | Total Tax Rate: | N/A | | | | | |
| | | | | Taxes w/Current Exemptions: | N/A | | |
| | | | | Taxes w/o Exemptions: | N/A | | |
Improvement / Building
| Improvement #1: | Manufactured Home | State Code: | 88 | 1568.0 sqft | Value: | $15,751 |
| Bathrooms (#): | 2 (FULL) | Bedrooms (#): | 3 | | Exterior Wall: | PL/T1 | Fireplace: | WD ST-AVG | | Foundation: | PO&BL | Heating/Cooling: | F/A | | Roof Cover: | COMP |   |   |
|
| | Type | Description | Class CD | Sub Class CD | Year Built | Area |
| | MA | Main Area | 3- | MDBL | 1983 | 1568.0 |
| | MWPOR | MH Wood Porch | 3 | * | 1983 | 36.0 |
| | SHED | Shed (Table Not Dep) | 1 | MDBL | 1983 | 768.0 |
| | MSKIRT_MTL | MH Skirting - Metal/Vinyl | 3 | * | 1983 | 168.0 |
| Improvement #2: | Manufactured Home | State Code: | 88 | 1782.0 sqft | Value: | $199,985 |
| Bathrooms (#): | 2 (FULL) | Bedrooms (#): | 3 | | Exterior Wall: | SI/ST | Fireplace: | SIN 1-GOOD | | Floor Construction: | FRAME | Foundation: | CONBL | | Heating/Cooling: | F/A | Roof Cover: | METAL |
|
| | Type | Description | Class CD | Sub Class CD | Year Built | Area |
| | MA | Main Area | 4+ | MDBL | 2001 | 1782.0 |
| | MWPOR | MH Wood Porch | 4 | * | 2001 | 121.0 |
| | MDECK | MH Deck | 4 | * | 2001 | 924.0 |
Sketch
Property Image
Land
| 1 | 1973A | | 24.8400 | 1082030.40 | 0.00 | 0.00 | 0.00 | $149,972 | $3,751 |
| 2 | 2375-1515F | | 2.3000 | 100188.00 | 250.00 | 0.00 | 0.00 | $322,897 | $0 |
| 3 | 2375-1525F | | 1.3700 | 59677.20 | 150.00 | 0.00 | 0.00 | $71,141 | $0 |
| 4 | 2375-1525F | | 1.0000 | 43560.00 | 50.00 | 0.00 | 0.00 | $195,500 | $0 |
| 5 | 2375-1525F | | 9.3800 | 408592.80 | 1139.50 | 0.00 | 0.00 | $970,060 | $0 |
| 6 | 1973A | | 51.2300 | 2231578.80 | 0.00 | 0.00 | 0.00 | $309,302 | $7,531 |
| 7 | 1973A | | 13.7200 | 597643.20 | 0.00 | 0.00 | 0.00 | $82,835 | $1,989 |
| 8 | 2375-1515F | | 1.0000 | 43560.00 | 1.00 | 0.00 | 0.00 | $303,600 | $0 |
Roll Value History
| 2026 | N/A | N/A | N/A | N/A | N/A |
| 2025 | $215,736 | $2,405,307 | $13,091 | $2,092,025 | $2,092,025 |
| 2024 | $206,747 | $2,300,727 | $13,182 | $2,002,118 | $2,002,118 |
| 2023 | $197,758 | $2,162,079 | $13,001 | $1,901,440 | $1,901,440 |
| 2022 | $184,583 | $2,113,085 | $12,642 | $1,906,255 | $1,906,255 |
Deed and Sales History
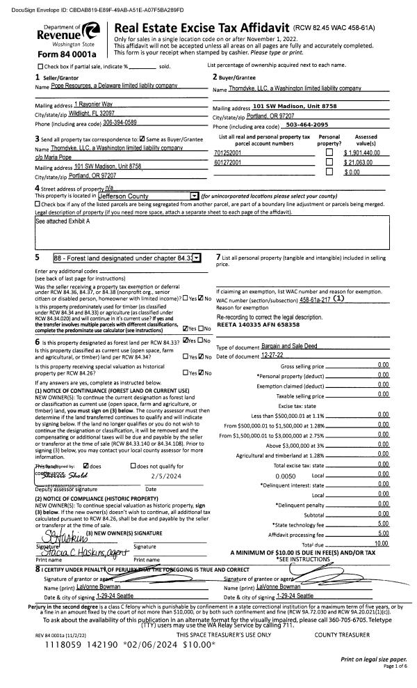
| 1 | 12/27/2022 | BSD | Bargain and Sale Deed | POPE RESOURCES | THORNDYKE LLC | | | | 142190 | re-record to corr legal |
| 2 | 02/09/2023 | MH | Mobile Home | POPE RESOURCES | THORNDYKE LLC | | | | 140479 | clear title of '85 MH |
| 3 | 12/27/2022 | QCD | Quit Claim Deed | POPE RESOURCES | THORNDYKE LLC | | | | 140336 | clear title |
| 4 | 12/27/2022 | BSD | Bargain and Sale Deed | POPE RESOURCES | THORNDYKE LLC | | | | 140335 | re-record |
| 5 | 12/27/2022 | BSD | Bargain and Sale Deed | POPE RESOURCES | THORNDYKE LLC | | | $3,536,088.00 | 140318 | |
|   | |
Payout Agreement
| No payout information available.. |