Property
Account |
| Property ID: | 277023 | Abbreviated Legal Description: | COLUMBIA ADDITION BLK 4 LOTS 8(LS E3') AND 9(E6') BND THRU LLA#142148 |
| Parcel # / Geo ID: | 944400408 | Agent Code: | |
| Type: | Real | | |
| Tax Area: | 0110 - C-50F1E1H2 | Land Use Code | 91 |
| Open Space: | N | DFL | N |
| Historic Property: | N | Remodel Property: | N |
| Multi-Family Redevelopment: | N | | |
| Township: | 30N | Section: | 3 |
| Range: | 1W |
Location |
| Address: | | Mapsco: | 015/030 |
| Neighborhood: | COLUMBIA//HUSSEY/WEYMOUNT-DYER/WOODLAND LP-ACREAGE; CEMETERY | Map ID: | |
| Neighborhood CD: | 6120 |
Owner |
| Name: | SCOTT C COOK | Owner ID: | 110886 |
| Mailing Address: | PRISCILLA E LIGHTSEY 2907 CHERRY LN AUSTIN, TX 78703 | % Ownership: | 100.0000000000% |
| | | Exemptions: | |
Pay Tax Due
Select the appropriate checkbox next to the year to be paid. Multiple years may be selected.
*Convenience Fee not included
Taxes and Assessment Details
Property Tax Information as of
03/12/2026
Click on "Statement Details" to expand or collapse a tax statement.
* Please enter a valid date ** Please enter a valid date *
Statement Details |
| 2026 | 34493 | STATE - STATE LEVY (SCHOOL) | $160.94 | $160.93 | $0.00 | $0.00 | $0.00 | $321.87 |
| 2026 | 34493 | COUNTY - COUNTY LEVIES (CE, DD, VET, MH) | $64.35 | $64.33 | $0.00 | $0.00 | $0.00 | $128.68 |
| 2026 | 34493 | CONSERVE - CONSERVATION FUTURES | $1.93 | $1.93 | $0.00 | $0.00 | $0.00 | $3.86 |
| 2026 | 34493 | CITYPT - CITY OF PT | $91.34 | $91.32 | $0.00 | $0.00 | $0.00 | $182.66 |
| 2026 | 34493 | PORTPT - PORT DISTRICT | $25.99 | $25.98 | $0.00 | $0.00 | $0.00 | $51.97 |
| 2026 | 34493 | PUD1 - PUD #1 | $4.19 | $4.18 | $0.00 | $0.00 | $0.00 | $8.37 |
| 2026 | 34493 | HD2 - HOSP DIST #2 | $3.76 | $3.75 | $0.00 | $0.00 | $0.00 | $7.51 |
| 2026 | 34493 | SD50 - SCHOOL DIST #50 | $127.50 | $127.49 | $0.00 | $0.00 | $0.00 | $254.99 |
| 2026 | 34493 | FD1 - FIRE DISTRICT #1 | $85.21 | $85.20 | $0.00 | $0.00 | $0.00 | $170.41 |
| 2026 | 34493 | EMS1 - FIRE DIST #1 EMS | $32.76 | $32.76 | $0.00 | $0.00 | $0.00 | $65.52 |
| 2026 | 34493 | JCCD - JC Conservation District | $2.53 | $2.53 | $0.00 | $0.00 | $0.00 | $5.06 |
| 2026 | 34493 | NWA - Noxious Weed Assessment | $2.98 | $2.97 | $0.00 | $0.00 | $0.00 | $5.95 |
| 2026 | 34493 | TOTAL: | $603.48 | $603.37 | $0.00 | $0.00 | $0.00 | $1206.85 |
|
| 2026 | 34493 | $603.48 | $603.37 | $0.00 | $0.00 | $0.00 | $1206.85 |
Statement Details |
| 2025 | 34594 | STATE - STATE LEVY (SCHOOL) | $163.67 | $163.67 | $0.00 | $0.00 | $327.34 | $0.00 |
| 2025 | 34594 | COUNTY - COUNTY LEVIES (CE, DD, VET, MH) | $64.38 | $64.35 | $0.00 | $0.00 | $128.73 | $0.00 |
| 2025 | 34594 | CONSERVE - CONSERVATION FUTURES | $1.93 | $1.93 | $0.00 | $0.00 | $3.86 | $0.00 |
| 2025 | 34594 | CITYPT - CITY OF PT | $92.83 | $92.80 | $0.00 | $0.00 | $185.63 | $0.00 |
| 2025 | 34594 | PORTPT - PORT DISTRICT | $26.27 | $26.25 | $0.00 | $0.00 | $52.52 | $0.00 |
| 2025 | 34594 | PUD1 - PUD #1 | $4.21 | $4.21 | $0.00 | $0.00 | $8.42 | $0.00 |
| 2025 | 34594 | HD2 - HOSP DIST #2 | $3.76 | $3.75 | $0.00 | $0.00 | $7.51 | $0.00 |
| 2025 | 34594 | SD50 - SCHOOL DIST #50 | $119.62 | $119.61 | $0.00 | $0.00 | $239.23 | $0.00 |
| 2025 | 34594 | FD1 - FIRE DISTRICT #1 | $84.93 | $84.93 | $0.00 | $0.00 | $169.86 | $0.00 |
| 2025 | 34594 | EMS1 - FIRE DIST #1 EMS | $32.67 | $32.66 | $0.00 | $0.00 | $65.33 | $0.00 |
| 2025 | 34594 | JCCD - JC Conservation District | $2.53 | $2.53 | $0.00 | $0.00 | $5.06 | $0.00 |
| 2025 | 34594 | NWA - Noxious Weed Assessment | $2.15 | $2.15 | $0.00 | $0.00 | $4.30 | $0.00 |
| 2025 | 34594 | TOTAL: | $598.95 | $598.84 | $0.00 | $0.00 | $1197.79 | $0.00 |
|
| 2025 | 34594 | $598.95 | $598.84 | $0.00 | $0.00 | $1197.79 | $0.00 |
Values
| (+) Improvement Homesite Value: | + | $0 | |
| (+) Improvement Non-Homesite Value: | + | $0 | |
| (+) Land Homesite Value: | + | $0 | |
| (+) Land Non-Homesite Value: | + | $140,000 | |
| (+) Curr Use (HS): | + | $0 | $0 |
| (+) Curr Use (NHS): | + | $0 | $0 |
| | | -------------------------- | |
| (=) Market Value: | = | $140,000 | |
| (–) Productivity Loss: | – | $0 | |
| | | -------------------------- | |
| (=) Subtotal: | = | $140,000 | |
| (+) Senior Appraised Value: | + | $0 | |
| (+) Non-Senior Appraised Value: | + | $140,000 | |
| | | -------------------------- | |
| (=) Total Appraised Value: | = | $140,000 | |
| (–) Senior Exemption Loss: | – | $0 | |
| (–) Exemption Loss: | – | $0 | |
| | | -------------------------- | |
| (=) Taxable Value: | = | $140,000 | |
Taxing Jurisdiction
| Owner: | SCOTT C COOK | | |
| % Ownership: | 100.0000000000% | | |
| Total Value: | N/A | | |
| Tax Area: | 0110 - C-50F1E1H2 |
| CE | COUNTY CURRENT EXPENSE | N/A | N/A | N/A | N/A | | |
| CNTYDD | DEVELOPMENTAL DISABILITIES | N/A | N/A | N/A | N/A | | |
| CNTYVET | VETERANS RELIEF | N/A | N/A | N/A | N/A | | |
| MENTAL | MENTAL HEALTH | N/A | N/A | N/A | N/A | | |
| PTGEN | CITY OF PT GENERAL | N/A | N/A | N/A | N/A | | |
| PTLLL | CITY OF PT - LIBRARY LID LIFT | N/A | N/A | N/A | N/A | | |
| PTMVBOND | CITY OF PT MV BOND | N/A | N/A | N/A | N/A | | |
| HOSP2CASH | HOSP DIST #2 GENERAL | N/A | N/A | N/A | N/A | | |
| SCH50BOND | SCHOOL DIST #50 BOND 2016 | N/A | N/A | N/A | N/A | | |
| SCH50CP | SCHOOL DIST #50 CAP PROJ | N/A | N/A | N/A | N/A | | |
| SCH50MO | SCHOOL DIST #50 EP & O | N/A | N/A | N/A | N/A | | |
| CONSERVE | CONSERVATION FUTURES | N/A | N/A | N/A | N/A | | |
| EMS1 | FIRE DIST #1 EMS | N/A | N/A | N/A | N/A | | |
| FD1 | FIRE DIST #1 GENERAL | N/A | N/A | N/A | N/A | | |
| PORTPT | PORT OF PT GENERAL | N/A | N/A | N/A | N/A | | |
| PORTPTIDD | PORT OF PT IDD 2019 | N/A | N/A | N/A | N/A | | |
| PUD1 | PUD #1 GENERAL | N/A | N/A | N/A | N/A | | |
| STATE | STATE SCHOOL PART 1 | N/A | N/A | N/A | N/A | | |
| STATE2 | STATE SCHOOL PART 2 | N/A | N/A | N/A | N/A | | |
| | Total Tax Rate: | N/A | | | | | |
| | | | | Taxes w/Current Exemptions: | N/A | | |
| | | | | Taxes w/o Exemptions: | N/A | | |
Improvement / Building
Sketch
| No sketches available for this property. |
Property Image
Land
| 1 | 6120-1173L | | 0.0000 | 0.00 | 0.00 | 0.00 | 1.00 | $140,000 | $0 |
Roll Value History
| 2026 | N/A | N/A | N/A | N/A | N/A |
| 2025 | $0 | $140,000 | $0 | $140,000 | $140,000 |
| 2024 | $0 | $136,500 | $0 | $136,500 | $136,500 |
Deed and Sales History
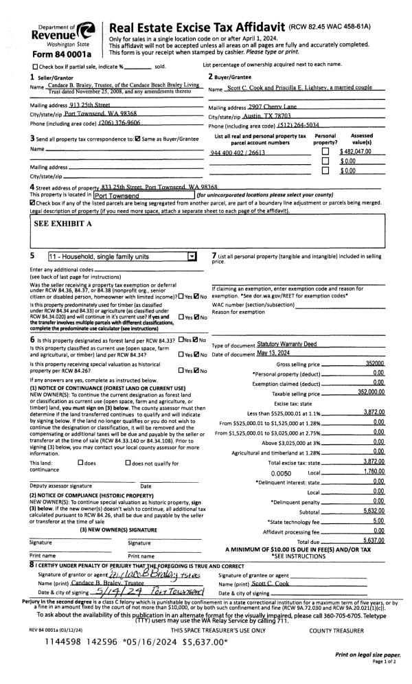
| 1 | 05/13/2024 | SWD | Statutory Warranty Deed | CANDACE B BRALEY TRSTEE | SCOTT C COOK | | | $352,000.00 | 142596 | |
|   | |
| 2 | 06/12/2009 | MISC | MISC | BRALEY, CANDACE B | BRALEY, CANDACE B LIVING TRUST | | | | 0 | 0 |
| 3 | 04/30/2009 | PRD | Personal Representatives Deed | BEACH, MARY C ESTATE OF | BRALEY, CANDACE B | | | | 0 | 0 |
| 4 | 04/14/2009 | PRD | Personal Representatives Deed | BEACH, ALLEN E ESTATE OF | BEACH, MARY C ESTATE OF, BRALE | | | | 0 | 0 |
Payout Agreement
| No payout information available.. |