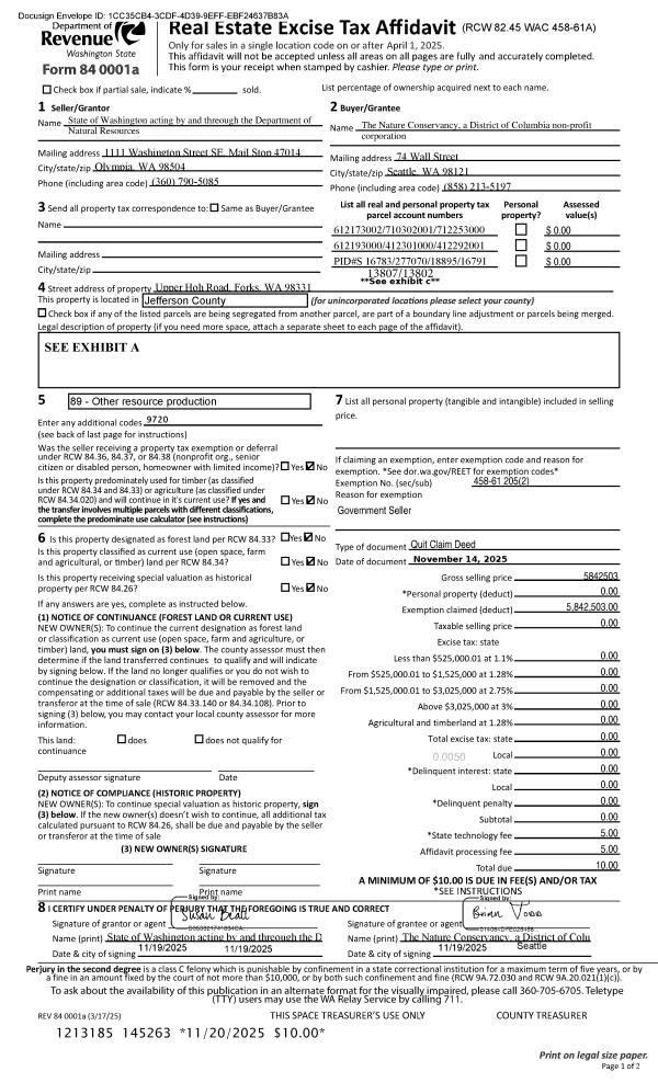
Property
Account |
| Property ID: | 277070 | Abbreviated Legal Description: | S30 T27N R10W GOV LOTS 4,5,8, 9(LYING S'LY OF UPPER HOH RD) & 10(ALL) , SENW(LYING S'LY OF UPPER HOH RD) BND THRU LOT CERT AF#666719 |
| Parcel # / Geo ID: | 710302001 | Agent Code: | |
| Type: | Real | | |
| Tax Area: | 0601 - 1-402H1L1 | Land Use Code | 91 |
| Open Space: | N | DFL | N |
| Historic Property: | N | Remodel Property: | N |
| Multi-Family Redevelopment: | N | | |
| Township: | 27N | Section: | 30 |
| Range: | 10W |
Location |
| Address: | | Mapsco: | |
| Neighborhood: | ALL SECTIONS T27N R10W (UPPER HOH,BRANDEBERRY EST, RAIN FOR) | Map ID: | |
| Neighborhood CD: | 1730 |
Owner |
| Name: | THE NATURE CONSERVANCY | Owner ID: | 23298 |
| Mailing Address: | 74 WALL ST SEATTLE, WA 98121 | % Ownership: | 100.0000000000% |
| | | Exemptions: | |
Pay Tax Due
Select the appropriate checkbox next to the year to be paid. Multiple years may be selected.
*Convenience Fee not included
Taxes and Assessment Details
Property Tax Information as of
03/12/2026
Click on "Statement Details" to expand or collapse a tax statement.
* Please enter a valid date ** Please enter a valid date *
Statement Details |
| 2026 | 34530 | STATE - STATE LEVY (SCHOOL) | $90.47 | $90.46 | $0.00 | $0.00 | $0.00 | $180.93 |
| 2026 | 34530 | COUNTY - COUNTY LEVIES (CE, DD, VET, MH) | $36.18 | $36.16 | $0.00 | $0.00 | $0.00 | $72.34 |
| 2026 | 34530 | CONSERVE - CONSERVATION FUTURES | $1.09 | $1.08 | $0.00 | $0.00 | $0.00 | $2.17 |
| 2026 | 34530 | COROADS - COUNTY ROADS (ROADS, DIV TO CE) | $29.18 | $29.17 | $0.00 | $0.00 | $0.00 | $58.35 |
| 2026 | 34530 | PORTPT - PORT DISTRICT | $14.61 | $14.60 | $0.00 | $0.00 | $0.00 | $29.21 |
| 2026 | 34530 | PUD1 - PUD #1 | $2.36 | $2.35 | $0.00 | $0.00 | $0.00 | $4.71 |
| 2026 | 34530 | LIB1 - LIBRARY DIST #1 | $11.29 | $11.29 | $0.00 | $0.00 | $0.00 | $22.58 |
| 2026 | 34530 | HD1 - HOSP DIST #1 | $21.66 | $21.65 | $0.00 | $0.00 | $0.00 | $43.31 |
| 2026 | 34530 | SD402 - SCHOOL DIST #402 | $112.37 | $112.35 | $0.00 | $0.00 | $0.00 | $224.72 |
| 2026 | 34530 | FP - DNR Forest Fire Protection Assmt | $13.56 | $13.55 | $0.00 | $0.00 | $0.00 | $27.11 |
| 2026 | 34530 | FPLCA - DNR Landowner Contingency Assmt | $5.81 | $5.81 | $0.00 | $0.00 | $0.00 | $11.62 |
| 2026 | 34530 | FP ADMIN - FP ADMIN | $0.50 | $0.00 | $0.00 | $0.00 | $0.00 | $0.50 |
| 2026 | 34530 | TOTAL: | $339.08 | $338.47 | $0.00 | $0.00 | $0.00 | $677.55 |
|
| 2026 | 34530 | $339.08 | $338.47 | $0.00 | $0.00 | $0.00 | $677.55 |
Statement Details |
| 2025 | 34634 | STATE - STATE LEVY (SCHOOL) | $0.00 | $0.00 | $0.00 | $0.00 | $0.00 | $0.00 |
| 2025 | 34634 | COUNTY - COUNTY LEVIES (CE, DD, VET, MH) | $0.00 | $0.00 | $0.00 | $0.00 | $0.00 | $0.00 |
| 2025 | 34634 | CONSERVE - CONSERVATION FUTURES | $0.00 | $0.00 | $0.00 | $0.00 | $0.00 | $0.00 |
| 2025 | 34634 | COROADS - COUNTY ROADS (ROADS, DIV TO CE) | $0.00 | $0.00 | $0.00 | $0.00 | $0.00 | $0.00 |
| 2025 | 34634 | PORTPT - PORT DISTRICT | $0.00 | $0.00 | $0.00 | $0.00 | $0.00 | $0.00 |
| 2025 | 34634 | PUD1 - PUD #1 | $0.00 | $0.00 | $0.00 | $0.00 | $0.00 | $0.00 |
| 2025 | 34634 | LIB1 - LIBRARY DIST #1 | $0.00 | $0.00 | $0.00 | $0.00 | $0.00 | $0.00 |
| 2025 | 34634 | HD1 - HOSP DIST #1 | $0.00 | $0.00 | $0.00 | $0.00 | $0.00 | $0.00 |
| 2025 | 34634 | SD402 - SCHOOL DIST #402 | $0.00 | $0.00 | $0.00 | $0.00 | $0.00 | $0.00 |
| 2025 | 34634 | TOTAL: | $0.00 | $0.00 | $0.00 | $0.00 | $0.00 | $0.00 |
|
| 2025 | 34634 | $0.00 | $0.00 | $0.00 | $0.00 | $0.00 | $0.00 |
Values
| (+) Improvement Homesite Value: | + | $0 | |
| (+) Improvement Non-Homesite Value: | + | $0 | |
| (+) Land Homesite Value: | + | $0 | |
| (+) Land Non-Homesite Value: | + | $104,928 | |
| (+) Curr Use (HS): | + | $0 | $0 |
| (+) Curr Use (NHS): | + | $0 | $0 |
| | | -------------------------- | |
| (=) Market Value: | = | $104,928 | |
| (–) Productivity Loss: | – | $0 | |
| | | -------------------------- | |
| (=) Subtotal: | = | $104,928 | |
| (+) Senior Appraised Value: | + | $0 | |
| (+) Non-Senior Appraised Value: | + | $104,928 | |
| | | -------------------------- | |
| (=) Total Appraised Value: | = | $104,928 | |
| (–) Senior Exemption Loss: | – | $0 | |
| (–) Exemption Loss: | – | $0 | |
| | | -------------------------- | |
| (=) Taxable Value: | = | $104,928 | |
Taxing Jurisdiction
| Owner: | THE NATURE CONSERVANCY | | |
| % Ownership: | 100.0000000000% | | |
| Total Value: | N/A | | |
| Tax Area: | 0601 - 1-402H1L1 |
| CE | COUNTY CURRENT EXPENSE | N/A | N/A | N/A | N/A | | |
| CNTYDD | DEVELOPMENTAL DISABILITIES | N/A | N/A | N/A | N/A | | |
| CNTYVET | VETERANS RELIEF | N/A | N/A | N/A | N/A | | |
| MENTAL | MENTAL HEALTH | N/A | N/A | N/A | N/A | | |
| ROADS | COUNTY ROADS | N/A | N/A | N/A | N/A | | |
| HOS1GEN | HOSP DIST #1 GENERAL | N/A | N/A | N/A | N/A | | |
| SCH402BOND | SCHOOL DIST #402 BOND | N/A | N/A | N/A | N/A | | |
| SCH402MO | SCHOOL DIST #402 EP & O | N/A | N/A | N/A | N/A | | |
| CONSERVE | CONSERVATION FUTURES | N/A | N/A | N/A | N/A | | |
| LIB1 | LIBRARY DIST #1 GENERAL | N/A | N/A | N/A | N/A | | |
| PORTPT | PORT OF PT GENERAL | N/A | N/A | N/A | N/A | | |
| PORTPTIDD | PORT OF PT IDD 2019 | N/A | N/A | N/A | N/A | | |
| PUD1 | PUD #1 GENERAL | N/A | N/A | N/A | N/A | | |
| STATE | STATE SCHOOL PART 1 | N/A | N/A | N/A | N/A | | |
| STATE2 | STATE SCHOOL PART 2 | N/A | N/A | N/A | N/A | | |
| | Total Tax Rate: | N/A | | | | | |
| | | | | Taxes w/Current Exemptions: | N/A | | |
| | | | | Taxes w/o Exemptions: | N/A | | |
Improvement / Building
Sketch
| No sketches available for this property. |
Property Image
Land
| 1 | WEST-1985A | | 87.4400 | 3808886.40 | 0.00 | 0.00 | 0.00 | $104,928 | $0 |
Roll Value History
| 2026 | N/A | N/A | N/A | N/A | N/A |
| 2025 | $0 | $78,696 | $0 | $78,696 | $78,696 |
| 2024 | $0 | $0 | $0 | $0 | $0 |
Deed and Sales History
| 1 | 11/14/2025 | QCD | Quit Claim Deed | STATE OF WASHINGTON-DNR | THE NATURE CONSERVANCY | | | $5,842,503.00 | 145263 | |
|   | |
Payout Agreement
| No payout information available.. |