Property
Account |
| Property ID: | 27746 | Abbreviated Legal Description: | EISENBEIS ADDITION BLK 111 LOTS 1 & 2 BND BY RESTRICTIVE COVENANT AF#856291 |
| Parcel # / Geo ID: | 948311101 | Agent Code: | |
| Type: | Real | | |
| Tax Area: | 0110 - C-50F1E1H2 | Land Use Code | 11 |
| Open Space: | N | DFL | N |
| Historic Property: | N | Remodel Property: | N |
| Multi-Family Redevelopment: | N | | |
| Township: | 30N | Section: | 3 |
| Range: | 1W |
Location |
| Address: | | Mapsco: | 030/035 |
| Neighborhood: | EISENBEIS, OC HASTINGS & SUPP, PINKS LESS VICTORIAN VILLAGE | Map ID: | |
| Neighborhood CD: | 6210 |
Owner |
| Name: | JOHN F & MARGARET M QUEEN | Owner ID: | 90731 |
| Mailing Address: | 1267 22ND ST PORT TOWNSEND, WA 98368 | % Ownership: | 100.0000000000% |
| | | Exemptions: | |
Pay Tax Due
Select the appropriate checkbox next to the year to be paid. Multiple years may be selected.
*Convenience Fee not included
Taxes and Assessment Details
Property Tax Information as of
03/10/2026
Click on "Statement Details" to expand or collapse a tax statement.
* Please enter a valid date ** Please enter a valid date *
Statement Details |
| 2026 | 17101 | STATE - STATE LEVY (SCHOOL) | $761.20 | $761.20 | $0.00 | $0.00 | $0.00 | $1522.40 |
| 2026 | 17101 | COUNTY - COUNTY LEVIES (CE, DD, VET, MH) | $304.34 | $304.30 | $0.00 | $0.00 | $0.00 | $608.64 |
| 2026 | 17101 | CONSERVE - CONSERVATION FUTURES | $9.13 | $9.12 | $0.00 | $0.00 | $0.00 | $18.25 |
| 2026 | 17101 | CITYPT - CITY OF PT | $431.97 | $431.96 | $0.00 | $0.00 | $0.00 | $863.93 |
| 2026 | 17101 | PORTPT - PORT DISTRICT | $122.92 | $122.90 | $0.00 | $0.00 | $0.00 | $245.82 |
| 2026 | 17101 | PUD1 - PUD #1 | $19.80 | $19.79 | $0.00 | $0.00 | $0.00 | $39.59 |
| 2026 | 17101 | HD2 - HOSP DIST #2 | $17.75 | $17.75 | $0.00 | $0.00 | $0.00 | $35.50 |
| 2026 | 17101 | SD50 - SCHOOL DIST #50 | $603.03 | $603.03 | $0.00 | $0.00 | $0.00 | $1206.06 |
| 2026 | 17101 | FD1 - FIRE DISTRICT #1 | $403.00 | $403.00 | $0.00 | $0.00 | $0.00 | $806.00 |
| 2026 | 17101 | EMS1 - FIRE DIST #1 EMS | $154.95 | $154.94 | $0.00 | $0.00 | $0.00 | $309.89 |
| 2026 | 17101 | JCCD - JC Conservation District | $2.55 | $2.55 | $0.00 | $0.00 | $0.00 | $5.10 |
| 2026 | 17101 | NWA - Noxious Weed Assessment | $2.98 | $2.97 | $0.00 | $0.00 | $0.00 | $5.95 |
| 2026 | 17101 | TOTAL: | $2833.62 | $2833.51 | $0.00 | $0.00 | $0.00 | $5667.13 |
|
| 2026 | 17101 | $2833.62 | $2833.51 | $0.00 | $0.00 | $0.00 | $5667.13 |
Statement Details |
| 2025 | 17156 | STATE - STATE LEVY (SCHOOL) | $749.71 | $749.71 | $0.00 | $0.00 | $1499.42 | $0.00 |
| 2025 | 17156 | COUNTY - COUNTY LEVIES (CE, DD, VET, MH) | $294.82 | $294.82 | $0.00 | $0.00 | $589.64 | $0.00 |
| 2025 | 17156 | CONSERVE - CONSERVATION FUTURES | $8.84 | $8.84 | $0.00 | $0.00 | $17.68 | $0.00 |
| 2025 | 17156 | CITYPT - CITY OF PT | $425.17 | $425.15 | $0.00 | $0.00 | $850.32 | $0.00 |
| 2025 | 17156 | PORTPT - PORT DISTRICT | $120.31 | $120.30 | $0.00 | $0.00 | $240.61 | $0.00 |
| 2025 | 17156 | PUD1 - PUD #1 | $19.29 | $19.29 | $0.00 | $0.00 | $38.58 | $0.00 |
| 2025 | 17156 | HD2 - HOSP DIST #2 | $17.20 | $17.20 | $0.00 | $0.00 | $34.40 | $0.00 |
| 2025 | 17156 | SD50 - SCHOOL DIST #50 | $547.92 | $547.90 | $0.00 | $0.00 | $1095.82 | $0.00 |
| 2025 | 17156 | FD1 - FIRE DISTRICT #1 | $389.05 | $389.04 | $0.00 | $0.00 | $778.09 | $0.00 |
| 2025 | 17156 | EMS1 - FIRE DIST #1 EMS | $149.64 | $149.63 | $0.00 | $0.00 | $299.27 | $0.00 |
| 2025 | 17156 | JCCD - JC Conservation District | $2.55 | $2.55 | $0.00 | $0.00 | $5.10 | $0.00 |
| 2025 | 17156 | NWA - Noxious Weed Assessment | $2.15 | $2.15 | $0.00 | $0.00 | $4.30 | $0.00 |
| 2025 | 17156 | TOTAL: | $2726.65 | $2726.58 | $0.00 | $0.00 | $5453.23 | $0.00 |
|
| 2025 | 17156 | $2726.65 | $2726.58 | $0.00 | $0.00 | $5453.23 | $0.00 |
Statement Details |
| 2024 | 17190 | STATE - STATE LEVY (SCHOOL) | $685.25 | $685.25 | $0.00 | $0.00 | $1370.50 | $0.00 |
| 2024 | 17190 | COUNTY - COUNTY LEVIES (CE, DD, VET, MH) | $293.24 | $293.20 | $0.00 | $0.00 | $586.44 | $0.00 |
| 2024 | 17190 | CONSERVE - CONSERVATION FUTURES | $8.80 | $8.79 | $0.00 | $0.00 | $17.59 | $0.00 |
| 2024 | 17190 | CITYPT - CITY OF PT | $418.98 | $418.97 | $0.00 | $0.00 | $837.95 | $0.00 |
| 2024 | 17190 | PORTPT - PORT DISTRICT | $121.12 | $121.11 | $0.00 | $0.00 | $242.23 | $0.00 |
| 2024 | 17190 | PUD1 - PUD #1 | $19.26 | $19.26 | $0.00 | $0.00 | $38.52 | $0.00 |
| 2024 | 17190 | HD2 - HOSP DIST #2 | $17.11 | $17.11 | $0.00 | $0.00 | $34.22 | $0.00 |
| 2024 | 17190 | SD50 - SCHOOL DIST #50 | $554.40 | $554.39 | $0.00 | $0.00 | $1108.79 | $0.00 |
| 2024 | 17190 | FD1 - FIRE DISTRICT #1 | $387.72 | $387.71 | $0.00 | $0.00 | $775.43 | $0.00 |
| 2024 | 17190 | EMS1 - FIRE DIST #1 EMS | $148.09 | $148.09 | $0.00 | $0.00 | $296.18 | $0.00 |
| 2024 | 17190 | JCCD - JC Conservation District | $2.55 | $2.55 | $0.00 | $0.00 | $5.10 | $0.00 |
| 2024 | 17190 | NWA - Noxious Weed Assessment | $2.15 | $2.15 | $0.00 | $0.00 | $4.30 | $0.00 |
| 2024 | 17190 | TOTAL: | $2658.67 | $2658.58 | $0.00 | $0.00 | $5317.25 | $0.00 |
|
| 2024 | 17190 | $2658.67 | $2658.58 | $0.00 | $0.00 | $5317.25 | $0.00 |
Statement Details |
| 2023 | 17214 | STATE - STATE LEVY (SCHOOL) | $673.72 | $673.72 | $0.00 | $0.00 | $1347.44 | $0.00 |
| 2023 | 17214 | COUNTY - COUNTY LEVIES (CE, DD, VET, MH) | $294.00 | $293.99 | $0.00 | $0.00 | $587.99 | $0.00 |
| 2023 | 17214 | CONSERVE - CONSERVATION FUTURES | $8.82 | $8.81 | $0.00 | $0.00 | $17.63 | $0.00 |
| 2023 | 17214 | CITYPT - CITY OF PT | $415.51 | $415.50 | $0.00 | $0.00 | $831.01 | $0.00 |
| 2023 | 17214 | PORTPT - PORT DISTRICT | $123.85 | $123.84 | $0.00 | $0.00 | $247.69 | $0.00 |
| 2023 | 17214 | PUD1 - PUD #1 | $19.49 | $19.49 | $0.00 | $0.00 | $38.98 | $0.00 |
| 2023 | 17214 | HD2 - HOSP DIST #2 | $17.16 | $17.15 | $0.00 | $0.00 | $34.31 | $0.00 |
| 2023 | 17214 | SD50 - SCHOOL DIST #50 | $534.62 | $534.60 | $0.00 | $0.00 | $1069.22 | $0.00 |
| 2023 | 17214 | FD1 - FIRE DISTRICT #1 | $242.19 | $242.19 | $0.00 | $0.00 | $484.38 | $0.00 |
| 2023 | 17214 | EMS1 - FIRE DIST #1 EMS | $103.03 | $103.02 | $0.00 | $0.00 | $206.05 | $0.00 |
| 2023 | 17214 | JCCD - JC Conservation District | $2.55 | $2.55 | $0.00 | $0.00 | $5.10 | $0.00 |
| 2023 | 17214 | NWA - Noxious Weed Assessment | $2.15 | $2.15 | $0.00 | $0.00 | $4.30 | $0.00 |
| 2023 | 17214 | TOTAL: | $2437.09 | $2437.01 | $0.00 | $0.00 | $4874.10 | $0.00 |
|
| 2023 | 17214 | $2437.09 | $2437.01 | $0.00 | $0.00 | $4874.10 | $0.00 |
Values
| (+) Improvement Homesite Value: | + | $0 | |
| (+) Improvement Non-Homesite Value: | + | $474,675 | |
| (+) Land Homesite Value: | + | $0 | |
| (+) Land Non-Homesite Value: | + | $187,500 | |
| (+) Curr Use (HS): | + | $0 | $0 |
| (+) Curr Use (NHS): | + | $0 | $0 |
| | | -------------------------- | |
| (=) Market Value: | = | $662,175 | |
| (–) Productivity Loss: | – | $0 | |
| | | -------------------------- | |
| (=) Subtotal: | = | $662,175 | |
| (+) Senior Appraised Value: | + | $0 | |
| (+) Non-Senior Appraised Value: | + | $662,175 | |
| | | -------------------------- | |
| (=) Total Appraised Value: | = | $662,175 | |
| (–) Senior Exemption Loss: | – | $0 | |
| (–) Exemption Loss: | – | $0 | |
| | | -------------------------- | |
| (=) Taxable Value: | = | $662,175 | |
Taxing Jurisdiction
| Owner: | JOHN F & MARGARET M QUEEN | | |
| % Ownership: | 100.0000000000% | | |
| Total Value: | $662,175 | | |
| Tax Area: | 0110 - C-50F1E1H2 |
| CE | COUNTY CURRENT EXPENSE | 0.9034619479 | $662,175 | $662,175 | $598.25 | | |
| CNTYDD | DEVELOPMENTAL DISABILITIES | 0.0052121823 | $662,175 | $662,175 | $3.45 | | |
| CNTYVET | VETERANS RELIEF | 0.0052777810 | $662,175 | $662,175 | $3.49 | | |
| MENTAL | MENTAL HEALTH | 0.0052121823 | $662,175 | $662,175 | $3.45 | | |
| PTGEN | CITY OF PT GENERAL | 0.8551967795 | $662,175 | $662,175 | $566.29 | | |
| PTLLL | CITY OF PT - LIBRARY LID LIFT | 0.4010114288 | $662,175 | $662,175 | $265.54 | | |
| PTMVBOND | CITY OF PT MV BOND | 0.0484717981 | $662,175 | $662,175 | $32.10 | | |
| HOSP2CASH | HOSP DIST #2 GENERAL | 0.0536075306 | $662,175 | $662,175 | $35.50 | | |
| SCH50BOND | SCHOOL DIST #50 BOND 2016 | 0.5377451389 | $662,175 | $662,175 | $356.08 | | |
| SCH50CP | SCHOOL DIST #50 CAP PROJ | 0.4573475088 | $662,175 | $662,175 | $302.84 | | |
| SCH50MO | SCHOOL DIST #50 EP & O | 0.8262822886 | $662,175 | $662,175 | $547.14 | | |
| CONSERVE | CONSERVATION FUTURES | 0.0275621078 | $662,175 | $662,175 | $18.25 | | |
| EMS1 | FIRE DIST #1 EMS | 0.4679948282 | $662,175 | $662,175 | $309.89 | | |
| FD1 | FIRE DIST #1 GENERAL | 1.2171942929 | $662,175 | $662,175 | $806.00 | | |
| PORTPT | PORT OF PT GENERAL | 0.1134941229 | $662,175 | $662,175 | $75.15 | | |
| PORTPTIDD | PORT OF PT IDD 2019 | 0.2577346692 | $662,175 | $662,175 | $170.67 | | |
| PUD1 | PUD #1 GENERAL | 0.0597888892 | $662,175 | $662,175 | $39.59 | | |
| STATE | STATE SCHOOL PART 1 | 1.4940692947 | $662,175 | $662,175 | $989.34 | | |
| STATE2 | STATE SCHOOL PART 2 | 0.8050170049 | $662,175 | $662,175 | $533.06 | | |
| | Total Tax Rate: | 8.5416817766 | | | | | |
| | | | | Taxes w/Current Exemptions: | $5,656.08 | | |
| | | | | Taxes w/o Exemptions: | $5,656.08 | | |
Improvement / Building
| Improvement #1: | Residential Bldg | State Code: | 11 | 1752.0 sqft | Value: | $474,675 |
| Bathrooms (#): | 2 (FULL) | Bedrooms (#): | 3 | | Exterior Wall: | SI/ST | Foundation: | CONPR | | Heating/Cooling: | HPUMP | Roof Cover: | METAL |
|
| | Type | Description | Class CD | Sub Class CD | Year Built | Area |
| | MA | Main Area | 4+ | 1S | 2014 | 1752.0 |
| | HDECK | House Deck | 4 | 1S | 2014 | 288.0 |
| | HWPOR | House Wood Porch | 4 | 1S | 2014 | 88.0 |
| | GATT | House Attached Garage | 4 | 1S | 2014 | 576.0 |
| | SHED | Shed (Table Not Dep) | 4 | 1S | 2014 | 216.0 |
Sketch
Property Image
Land
| 1 | 6210-1185L | | 0.0000 | 0.00 | 0.00 | 0.00 | 1.00 | $135,000 | $0 |
| 2 | 6210-1185L | | 0.0000 | 0.00 | 0.00 | 0.00 | 1.00 | $52,500 | $0 |
Roll Value History
| 2026 | N/A | N/A | N/A | N/A | N/A |
| 2025 | $474,675 | $187,500 | $0 | $662,175 | $662,175 |
| 2024 | $452,020 | $173,250 | $0 | $625,270 | $625,270 |
| 2023 | $432,367 | $160,000 | $0 | $592,367 | $592,367 |
| 2022 | $432,367 | $140,000 | $0 | $572,367 | $572,367 |
Deed and Sales History
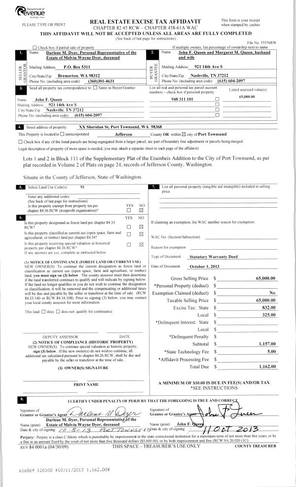
| 1 | 10/01/2013 | SWD | Statutory Warranty Deed | MELVIN DYER | JOHN F & MARGARET M QUEEN | | | $65,000.00 | 120100 | |
| 2 | 09/07/1995 | QCD | Quit Claim Deed | DYER, CARROLL | DYER, MELVIN | 0 | 0 | $0.00 | 78168 | 0 |
Payout Agreement
| No payout information available.. |