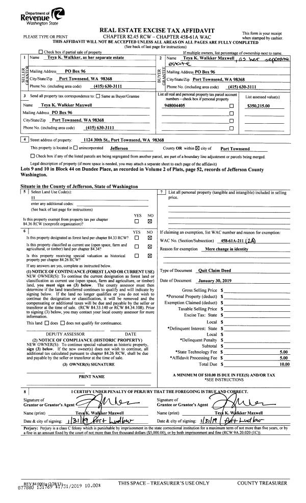
Property
Account |
| Property ID: | 27823 | Abbreviated Legal Description: | EISENBEIS ADDITION BLK 128 LOT 5 |
| Parcel # / Geo ID: | 948312805 | Agent Code: | |
| Type: | Real | | |
| Tax Area: | 0110 - C-50F1E1H2 | Land Use Code | 11 |
| Open Space: | N | DFL | N |
| Historic Property: | N | Remodel Property: | N |
| Multi-Family Redevelopment: | N | | |
| Township: | 30N | Section: | 10 |
| Range: | 1W |
Location |
| Address: | 1478 12TH ST PORT TOWNSEND, WA 98368 | Mapsco: | 031/052 |
| Neighborhood: | EISENBEIS, OC HASTINGS & SUPP, PINKS LESS VICTORIAN VILLAGE | Map ID: | |
| Neighborhood CD: | 6210 |
Owner |
| Name: | JOYCE E EVALT | Owner ID: | 15360 |
| Mailing Address: | 1478 12TH ST PORT TOWNSEND, WA 98368 | % Ownership: | 100.0000000000% |
| | | Exemptions: | |
Pay Tax Due
Select the appropriate checkbox next to the year to be paid. Multiple years may be selected.
*Convenience Fee not included
Taxes and Assessment Details
Property Tax Information as of
03/12/2026
Click on "Statement Details" to expand or collapse a tax statement.
* Please enter a valid date ** Please enter a valid date *
Statement Details |
| 2026 | 17176 | STATE - STATE LEVY (SCHOOL) | $394.14 | $394.13 | $0.00 | $0.00 | $0.00 | $788.27 |
| 2026 | 17176 | COUNTY - COUNTY LEVIES (CE, DD, VET, MH) | $157.60 | $157.56 | $0.00 | $0.00 | $0.00 | $315.16 |
| 2026 | 17176 | CONSERVE - CONSERVATION FUTURES | $4.73 | $4.72 | $0.00 | $0.00 | $0.00 | $9.45 |
| 2026 | 17176 | CITYPT - CITY OF PT | $223.67 | $223.66 | $0.00 | $0.00 | $0.00 | $447.33 |
| 2026 | 17176 | PORTPT - PORT DISTRICT | $63.65 | $63.63 | $0.00 | $0.00 | $0.00 | $127.28 |
| 2026 | 17176 | PUD1 - PUD #1 | $10.25 | $10.25 | $0.00 | $0.00 | $0.00 | $20.50 |
| 2026 | 17176 | HD2 - HOSP DIST #2 | $9.19 | $9.19 | $0.00 | $0.00 | $0.00 | $18.38 |
| 2026 | 17176 | SD50 - SCHOOL DIST #50 | $312.25 | $312.23 | $0.00 | $0.00 | $0.00 | $624.48 |
| 2026 | 17176 | FD1 - FIRE DISTRICT #1 | $208.67 | $208.66 | $0.00 | $0.00 | $0.00 | $417.33 |
| 2026 | 17176 | EMS1 - FIRE DIST #1 EMS | $80.23 | $80.23 | $0.00 | $0.00 | $0.00 | $160.46 |
| 2026 | 17176 | JCCD - JC Conservation District | $2.55 | $2.55 | $0.00 | $0.00 | $0.00 | $5.10 |
| 2026 | 17176 | NWA - Noxious Weed Assessment | $2.98 | $2.97 | $0.00 | $0.00 | $0.00 | $5.95 |
| 2026 | 17176 | TOTAL: | $1469.91 | $1469.78 | $0.00 | $0.00 | $0.00 | $2939.69 |
|
| 2026 | 17176 | $1469.91 | $1469.78 | $0.00 | $0.00 | $0.00 | $2939.69 |
Statement Details |
| 2025 | 17231 | STATE - STATE LEVY (SCHOOL) | $376.00 | $375.99 | $0.00 | $0.00 | $751.99 | $0.00 |
| 2025 | 17231 | COUNTY - COUNTY LEVIES (CE, DD, VET, MH) | $147.87 | $147.83 | $0.00 | $0.00 | $295.70 | $0.00 |
| 2025 | 17231 | CONSERVE - CONSERVATION FUTURES | $4.44 | $4.43 | $0.00 | $0.00 | $8.87 | $0.00 |
| 2025 | 17231 | CITYPT - CITY OF PT | $213.23 | $213.22 | $0.00 | $0.00 | $426.45 | $0.00 |
| 2025 | 17231 | PORTPT - PORT DISTRICT | $60.34 | $60.33 | $0.00 | $0.00 | $120.67 | $0.00 |
| 2025 | 17231 | PUD1 - PUD #1 | $9.68 | $9.67 | $0.00 | $0.00 | $19.35 | $0.00 |
| 2025 | 17231 | HD2 - HOSP DIST #2 | $8.63 | $8.62 | $0.00 | $0.00 | $17.25 | $0.00 |
| 2025 | 17231 | SD50 - SCHOOL DIST #50 | $274.80 | $274.78 | $0.00 | $0.00 | $549.58 | $0.00 |
| 2025 | 17231 | FD1 - FIRE DISTRICT #1 | $195.12 | $195.11 | $0.00 | $0.00 | $390.23 | $0.00 |
| 2025 | 17231 | EMS1 - FIRE DIST #1 EMS | $75.05 | $75.04 | $0.00 | $0.00 | $150.09 | $0.00 |
| 2025 | 17231 | JCCD - JC Conservation District | $2.55 | $2.55 | $0.00 | $0.00 | $5.10 | $0.00 |
| 2025 | 17231 | NWA - Noxious Weed Assessment | $2.15 | $2.15 | $0.00 | $0.00 | $4.30 | $0.00 |
| 2025 | 17231 | TOTAL: | $1369.86 | $1369.72 | $0.00 | $0.00 | $2739.58 | $0.00 |
|
| 2025 | 17231 | $1369.86 | $1369.72 | $0.00 | $0.00 | $2739.58 | $0.00 |
Statement Details |
| 2024 | 17265 | STATE - STATE LEVY (SCHOOL) | $340.60 | $340.59 | $0.00 | $0.00 | $681.19 | $0.00 |
| 2024 | 17265 | COUNTY - COUNTY LEVIES (CE, DD, VET, MH) | $145.77 | $145.73 | $0.00 | $0.00 | $291.50 | $0.00 |
| 2024 | 17265 | CONSERVE - CONSERVATION FUTURES | $4.37 | $4.37 | $0.00 | $0.00 | $8.74 | $0.00 |
| 2024 | 17265 | CITYPT - CITY OF PT | $208.25 | $208.25 | $0.00 | $0.00 | $416.50 | $0.00 |
| 2024 | 17265 | PORTPT - PORT DISTRICT | $60.21 | $60.19 | $0.00 | $0.00 | $120.40 | $0.00 |
| 2024 | 17265 | PUD1 - PUD #1 | $9.58 | $9.57 | $0.00 | $0.00 | $19.15 | $0.00 |
| 2024 | 17265 | HD2 - HOSP DIST #2 | $8.51 | $8.50 | $0.00 | $0.00 | $17.01 | $0.00 |
| 2024 | 17265 | SD50 - SCHOOL DIST #50 | $275.56 | $275.56 | $0.00 | $0.00 | $551.12 | $0.00 |
| 2024 | 17265 | FD1 - FIRE DISTRICT #1 | $192.71 | $192.71 | $0.00 | $0.00 | $385.42 | $0.00 |
| 2024 | 17265 | EMS1 - FIRE DIST #1 EMS | $73.61 | $73.61 | $0.00 | $0.00 | $147.22 | $0.00 |
| 2024 | 17265 | JCCD - JC Conservation District | $2.55 | $2.55 | $0.00 | $0.00 | $5.10 | $0.00 |
| 2024 | 17265 | NWA - Noxious Weed Assessment | $2.15 | $2.15 | $0.00 | $0.00 | $4.30 | $0.00 |
| 2024 | 17265 | TOTAL: | $1323.87 | $1323.78 | $0.00 | $0.00 | $2647.65 | $0.00 |
|
| 2024 | 17265 | $1323.87 | $1323.78 | $0.00 | $0.00 | $2647.65 | $0.00 |
Statement Details |
| 2023 | 17289 | STATE - STATE LEVY (SCHOOL) | $328.91 | $328.91 | $0.00 | $0.00 | $657.82 | $0.00 |
| 2023 | 17289 | COUNTY - COUNTY LEVIES (CE, DD, VET, MH) | $143.54 | $143.51 | $0.00 | $0.00 | $287.05 | $0.00 |
| 2023 | 17289 | CONSERVE - CONSERVATION FUTURES | $4.31 | $4.30 | $0.00 | $0.00 | $8.61 | $0.00 |
| 2023 | 17289 | CITYPT - CITY OF PT | $202.86 | $202.84 | $0.00 | $0.00 | $405.70 | $0.00 |
| 2023 | 17289 | PORTPT - PORT DISTRICT | $60.46 | $60.46 | $0.00 | $0.00 | $120.92 | $0.00 |
| 2023 | 17289 | PUD1 - PUD #1 | $9.52 | $9.51 | $0.00 | $0.00 | $19.03 | $0.00 |
| 2023 | 17289 | HD2 - HOSP DIST #2 | $8.38 | $8.37 | $0.00 | $0.00 | $16.75 | $0.00 |
| 2023 | 17289 | SD50 - SCHOOL DIST #50 | $261.01 | $260.98 | $0.00 | $0.00 | $521.99 | $0.00 |
| 2023 | 17289 | FD1 - FIRE DISTRICT #1 | $118.24 | $118.24 | $0.00 | $0.00 | $236.48 | $0.00 |
| 2023 | 17289 | EMS1 - FIRE DIST #1 EMS | $50.30 | $50.29 | $0.00 | $0.00 | $100.59 | $0.00 |
| 2023 | 17289 | JCCD - JC Conservation District | $2.55 | $2.55 | $0.00 | $0.00 | $5.10 | $0.00 |
| 2023 | 17289 | NWA - Noxious Weed Assessment | $2.15 | $2.15 | $0.00 | $0.00 | $4.30 | $0.00 |
| 2023 | 17289 | TOTAL: | $1192.23 | $1192.11 | $0.00 | $0.00 | $2384.34 | $0.00 |
|
| 2023 | 17289 | $1192.23 | $1192.11 | $0.00 | $0.00 | $2384.34 | $0.00 |
Values
| (+) Improvement Homesite Value: | + | $0 | |
| (+) Improvement Non-Homesite Value: | + | $207,865 | |
| (+) Land Homesite Value: | + | $0 | |
| (+) Land Non-Homesite Value: | + | $135,000 | |
| (+) Curr Use (HS): | + | $0 | $0 |
| (+) Curr Use (NHS): | + | $0 | $0 |
| | | -------------------------- | |
| (=) Market Value: | = | $342,865 | |
| (–) Productivity Loss: | – | $0 | |
| | | -------------------------- | |
| (=) Subtotal: | = | $342,865 | |
| (+) Senior Appraised Value: | + | $0 | |
| (+) Non-Senior Appraised Value: | + | $342,865 | |
| | | -------------------------- | |
| (=) Total Appraised Value: | = | $342,865 | |
| (–) Senior Exemption Loss: | – | $0 | |
| (–) Exemption Loss: | – | $0 | |
| | | -------------------------- | |
| (=) Taxable Value: | = | $342,865 | |
Taxing Jurisdiction
| Owner: | JOYCE E EVALT | | |
| % Ownership: | 100.0000000000% | | |
| Total Value: | $342,865 | | |
| Tax Area: | 0110 - C-50F1E1H2 |
| CE | COUNTY CURRENT EXPENSE | 0.9034619479 | $342,865 | $342,865 | $309.77 | | |
| CNTYDD | DEVELOPMENTAL DISABILITIES | 0.0052121823 | $342,865 | $342,865 | $1.79 | | |
| CNTYVET | VETERANS RELIEF | 0.0052777810 | $342,865 | $342,865 | $1.81 | | |
| MENTAL | MENTAL HEALTH | 0.0052121823 | $342,865 | $342,865 | $1.79 | | |
| PTGEN | CITY OF PT GENERAL | 0.8551967795 | $342,865 | $342,865 | $293.22 | | |
| PTLLL | CITY OF PT - LIBRARY LID LIFT | 0.4010114288 | $342,865 | $342,865 | $137.49 | | |
| PTMVBOND | CITY OF PT MV BOND | 0.0484717981 | $342,865 | $342,865 | $16.62 | | |
| HOSP2CASH | HOSP DIST #2 GENERAL | 0.0536075306 | $342,865 | $342,865 | $18.38 | | |
| SCH50BOND | SCHOOL DIST #50 BOND 2016 | 0.5377451389 | $342,865 | $342,865 | $184.37 | | |
| SCH50CP | SCHOOL DIST #50 CAP PROJ | 0.4573475088 | $342,865 | $342,865 | $156.81 | | |
| SCH50MO | SCHOOL DIST #50 EP & O | 0.8262822886 | $342,865 | $342,865 | $283.30 | | |
| CONSERVE | CONSERVATION FUTURES | 0.0275621078 | $342,865 | $342,865 | $9.45 | | |
| EMS1 | FIRE DIST #1 EMS | 0.4679948282 | $342,865 | $342,865 | $160.46 | | |
| FD1 | FIRE DIST #1 GENERAL | 1.2171942929 | $342,865 | $342,865 | $417.33 | | |
| PORTPT | PORT OF PT GENERAL | 0.1134941229 | $342,865 | $342,865 | $38.91 | | |
| PORTPTIDD | PORT OF PT IDD 2019 | 0.2577346692 | $342,865 | $342,865 | $88.37 | | |
| PUD1 | PUD #1 GENERAL | 0.0597888892 | $342,865 | $342,865 | $20.50 | | |
| STATE | STATE SCHOOL PART 1 | 1.4940692947 | $342,865 | $342,865 | $512.26 | | |
| STATE2 | STATE SCHOOL PART 2 | 0.8050170049 | $342,865 | $342,865 | $276.01 | | |
| | Total Tax Rate: | 8.5416817766 | | | | | |
| | | | | Taxes w/Current Exemptions: | $2,928.64 | | |
| | | | | Taxes w/o Exemptions: | $2,928.64 | | |
Improvement / Building
| Improvement #1: | Residential Bldg | State Code: | 11 | 1344.0 sqft | Value: | $207,865 |
| Bathrooms (#): | 1 (FULL) | Bathrooms (#): | 1 (HALF) | | Bedrooms (#): | 4 | Exterior Wall: | PL/T1 | | Floor Construction: | FRAME | Foundation: | CONPR | | Heating/Cooling: | ELBB | Inside Verify: | YES-FIX | | Roof Cover: | COMP |   |   |
|
| | Type | Description | Class CD | Sub Class CD | Year Built | Area |
| | MA | Main Area | 3+ | 2S | 2000 | 672.0 |
| | MA2 | Second Floor Main Area | 3+ | 2S | 2000 | 672.0 |
| | SHED | Shed (Table Not Dep) | 3 | 2S | 2000 | 80.0 |
| | PATIO | House Patio | 2 | 2S | 2000 | 72.0 |
Sketch
Property Image
Land
| 1 | 6210-1185L | | 0.0000 | 0.00 | 0.00 | 0.00 | 1.00 | $135,000 | $0 |
Roll Value History
| 2026 | N/A | N/A | N/A | N/A | N/A |
| 2025 | $207,865 | $135,000 | $0 | $342,865 | $342,865 |
| 2024 | $187,586 | $126,000 | $0 | $313,586 | $313,586 |
| 2023 | $179,430 | $115,000 | $0 | $294,430 | $294,430 |
| 2022 | $179,430 | $100,000 | $0 | $279,430 | $279,430 |
Deed and Sales History
| 1 | 05/30/2000 | SWD | Statutory Warranty Deed | HABITAT FOR HUMANITY | EVALT, JOYCE E | 0 | 0 | $47,500.00 | 89707 | 0 |
| 2 | 02/15/2000 | QCD | Quit Claim Deed | PEIRSON, RICK/MAXINE | HABITAT FOR HUMANITY | 0 | 0 | $9,000.00 | 88953 | 0 |
Payout Agreement
| No payout information available.. |