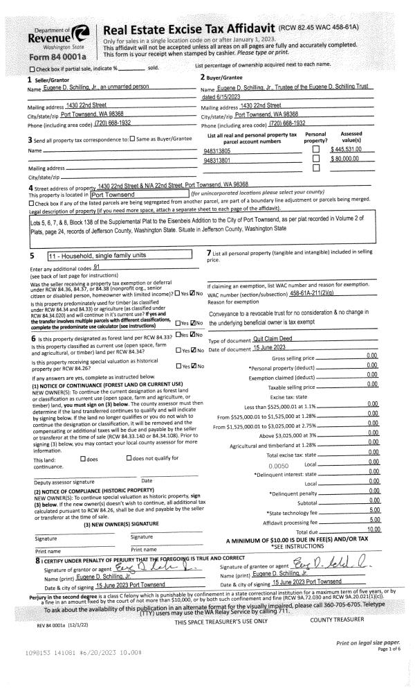
Property
Account |
| Property ID: | 27857 | Abbreviated Legal Description: | EISENBEIS ADDITION BLK 138 LOTS 5 & 6 |
| Parcel # / Geo ID: | 948313805 | Agent Code: | |
| Type: | Real | | |
| Tax Area: | 0110 - C-50F1E1H2 | Land Use Code | 11 |
| Open Space: | N | DFL | N |
| Historic Property: | N | Remodel Property: | N |
| Multi-Family Redevelopment: | N | | |
| Township: | 30N | Section: | 3 |
| Range: | 1W |
Location |
| Address: | 1430 22ND ST PORT TOWNSEND, WA 98368 | Mapsco: | 032/037 |
| Neighborhood: | EISENBEIS, OC HASTINGS & SUPP, PINKS LESS VICTORIAN VILLAGE | Map ID: | |
| Neighborhood CD: | 6210 |
Owner |
| Name: | EUGENE D SCHILLING TRUST | Owner ID: | 109104 |
| Mailing Address: | EUGENE D SCHILLING JR TRUSTEE 1430 22ND ST PORT TOWNSEND, WA 98368-7002 | % Ownership: | 100.0000000000% |
| | | Exemptions: | |
Pay Tax Due
There is currently No Amount Due on this property.
Taxes and Assessment Details
Property Tax Information as of
03/13/2026
Click on "Statement Details" to expand or collapse a tax statement.
* Please enter a valid date ** Please enter a valid date *
Statement Details |
| | TOTAL: | $0.00 | $0.00 | $0.00 | $0.00 | $0.00 | $0.00 |
|
| | $0.00 | $0.00 | $0.00 | $0.00 | $0.00 | $0.00 |
Values
| (+) Improvement Homesite Value: | + | $341,595 | |
| (+) Improvement Non-Homesite Value: | + | $0 | |
| (+) Land Homesite Value: | + | $187,500 | |
| (+) Land Non-Homesite Value: | + | $0 | |
| (+) Curr Use (HS): | + | $0 | $0 |
| (+) Curr Use (NHS): | + | $0 | $0 |
| | | -------------------------- | |
| (=) Market Value: | = | $529,095 | |
| (–) Productivity Loss: | – | $0 | |
| | | -------------------------- | |
| (=) Subtotal: | = | $529,095 | |
| (+) Senior Appraised Value: | + | $0 | |
| (+) Non-Senior Appraised Value: | + | $529,095 | |
| | | -------------------------- | |
| (=) Total Appraised Value: | = | $529,095 | |
| (–) Senior Exemption Loss: | – | $0 | |
| (–) Exemption Loss: | – | $0 | |
| | | -------------------------- | |
| (=) Taxable Value: | = | $529,095 | |
Taxing Jurisdiction
| Owner: | EUGENE D SCHILLING TRUST | | |
| % Ownership: | 100.0000000000% | | |
| Total Value: | $529,095 | | |
| Tax Area: | 0110 - C-50F1E1H2 |
| CE | COUNTY CURRENT EXPENSE | 0.9034619479 | $529,095 | $529,095 | $478.02 | | |
| CNTYDD | DEVELOPMENTAL DISABILITIES | 0.0052121823 | $529,095 | $529,095 | $2.76 | | |
| CNTYVET | VETERANS RELIEF | 0.0052777810 | $529,095 | $529,095 | $2.79 | | |
| MENTAL | MENTAL HEALTH | 0.0052121823 | $529,095 | $529,095 | $2.76 | | |
| PTGEN | CITY OF PT GENERAL | 0.8551967795 | $529,095 | $529,095 | $452.48 | | |
| PTLLL | CITY OF PT - LIBRARY LID LIFT | 0.4010114288 | $529,095 | $529,095 | $212.17 | | |
| PTMVBOND | CITY OF PT MV BOND | 0.0484717981 | $529,095 | $529,095 | $25.65 | | |
| HOSP2CASH | HOSP DIST #2 GENERAL | 0.0536075306 | $529,095 | $529,095 | $28.36 | | |
| SCH50BOND | SCHOOL DIST #50 BOND 2016 | 0.5377451389 | $529,095 | $529,095 | $284.52 | | |
| SCH50CP | SCHOOL DIST #50 CAP PROJ | 0.4573475088 | $529,095 | $529,095 | $241.98 | | |
| SCH50MO | SCHOOL DIST #50 EP & O | 0.8262822886 | $529,095 | $529,095 | $437.18 | | |
| CONSERVE | CONSERVATION FUTURES | 0.0275621078 | $529,095 | $529,095 | $14.58 | | |
| EMS1 | FIRE DIST #1 EMS | 0.4679948282 | $529,095 | $529,095 | $247.61 | | |
| FD1 | FIRE DIST #1 GENERAL | 1.2171942929 | $529,095 | $529,095 | $644.01 | | |
| PORTPT | PORT OF PT GENERAL | 0.1134941229 | $529,095 | $529,095 | $60.05 | | |
| PORTPTIDD | PORT OF PT IDD 2019 | 0.2577346692 | $529,095 | $529,095 | $136.37 | | |
| PUD1 | PUD #1 GENERAL | 0.0597888892 | $529,095 | $529,095 | $31.63 | | |
| STATE | STATE SCHOOL PART 1 | 1.4940692947 | $529,095 | $529,095 | $790.50 | | |
| STATE2 | STATE SCHOOL PART 2 | 0.8050170049 | $529,095 | $529,095 | $425.93 | | |
| | Total Tax Rate: | 8.5416817766 | | | | | |
| | | | | Taxes w/Current Exemptions: | $4,519.35 | | |
| | | | | Taxes w/o Exemptions: | $4,519.35 | | |
Improvement / Building
| Improvement #1: | Residential Bldg | State Code: | 11 | 1785.0 sqft | Value: | $341,595 |
| Bathrooms (#): | 2 (FULL) | Bedrooms (#): | 4 | | Exterior Wall: | SI/ST | Fireplace: | WD ST-AVG | | Floor Construction: | FRAME | Foundation: | CONPR | | Heating/Cooling: | F/A | Inside Verify: | YES-FIX | | Roof Cover: | COMP |   |   |
|
| | Type | Description | Class CD | Sub Class CD | Year Built | Area |
| | MA | Main Area | 3+ | 1S | 1984 | 1785.0 |
| | HWPOR | House Wood Porch | 3 | 1S | 1984 | 35.0 |
| | HDECK | House Deck | 3 | 1S | 1984 | 192.0 |
| | GATT | House Attached Garage | 3 | 1S | 1984 | 650.0 |
Sketch
Property Image
Land
| 1 | 6210-1185L | Standard Lot (No View) | 0.0000 | 0.00 | 0.00 | 0.00 | 1.00 | $52,500 | $0 |
| 2 | 6210-1185L | Standard Lot (No View) | 0.0000 | 0.00 | 0.00 | 0.00 | 1.00 | $135,000 | $0 |
Roll Value History
| 2026 | N/A | N/A | N/A | N/A | N/A |
| 2025 | $341,595 | $187,500 | $0 | $529,095 | $529,095 |
| 2024 | $319,418 | $173,250 | $0 | $492,668 | $492,668 |
| 2023 | $305,531 | $160,000 | $0 | $465,531 | $465,531 |
| 2022 | $305,531 | $140,000 | $0 | $445,531 | $445,531 |
Deed and Sales History
| 1 | 06/15/2023 | QCD | Quit Claim Deed | EUGENE D SCHILLING | EUGENE D SCHILLING TRUST | | | | 141081 | |
| 2 | 06/22/2015 | SWD | Statutory Warranty Deed | MC CORMICK FAMILY REV TRUST | EUGENE D SCHILLING | | | $260,000.00 | 123456 | |
|   | |
| 3 | 12/26/2014 | QCD | Quit Claim Deed | CHARLES E MC CORMICK | MC CORMICK FAMILY REV TRUST | | | | 122491 | |
Payout Agreement
| No payout information available.. |