Property
Account |
| Property ID: | 27857 | Abbreviated Legal Description: | EISENBEIS ADDITION BLK 138 LOTS 5 & 6 |
| Parcel # / Geo ID: | 948313805 | Agent Code: | |
| Type: | Real | | |
| Tax Area: | 0110 - C-50F1E1H2 | Land Use Code | 11 |
| Open Space: | N | DFL | N |
| Historic Property: | N | Remodel Property: | N |
| Multi-Family Redevelopment: | N | | |
| Township: | 30N | Section: | 3 |
| Range: | 1W |
Location |
| Address: | 1430 22ND ST PORT TOWNSEND, WA 98368 | Mapsco: | 032/037 |
| Neighborhood: | EISENBEIS, OC HASTINGS & SUPP, PINKS LESS VICTORIAN VILLAGE | Map ID: | |
| Neighborhood CD: | 6210 |
Owner |
| Name: | EUGENE D SCHILLING TRUST | Owner ID: | 109104 |
| Mailing Address: | EUGENE D SCHILLING JR TRUSTEE 1430 22ND ST PORT TOWNSEND, WA 98368-7002 | % Ownership: | 100.0000000000% |
| | | Exemptions: | |
Pay Tax Due
Select the appropriate checkbox next to the year to be paid. Multiple years may be selected.
*Convenience Fee not included
Taxes and Assessment Details
Property Tax Information as of
03/12/2026
Click on "Statement Details" to expand or collapse a tax statement.
* Please enter a valid date ** Please enter a valid date *
Statement Details |
| 2026 | 17210 | STATE - STATE LEVY (SCHOOL) | $608.22 | $608.21 | $0.00 | $0.00 | $0.00 | $1216.43 |
| 2026 | 17210 | COUNTY - COUNTY LEVIES (CE, DD, VET, MH) | $243.17 | $243.16 | $0.00 | $0.00 | $0.00 | $486.33 |
| 2026 | 17210 | CONSERVE - CONSERVATION FUTURES | $7.29 | $7.29 | $0.00 | $0.00 | $0.00 | $14.58 |
| 2026 | 17210 | CITYPT - CITY OF PT | $345.16 | $345.14 | $0.00 | $0.00 | $0.00 | $690.30 |
| 2026 | 17210 | PORTPT - PORT DISTRICT | $98.22 | $98.20 | $0.00 | $0.00 | $0.00 | $196.42 |
| 2026 | 17210 | PUD1 - PUD #1 | $15.82 | $15.81 | $0.00 | $0.00 | $0.00 | $31.63 |
| 2026 | 17210 | HD2 - HOSP DIST #2 | $14.18 | $14.18 | $0.00 | $0.00 | $0.00 | $28.36 |
| 2026 | 17210 | SD50 - SCHOOL DIST #50 | $481.84 | $481.84 | $0.00 | $0.00 | $0.00 | $963.68 |
| 2026 | 17210 | FD1 - FIRE DISTRICT #1 | $322.01 | $322.00 | $0.00 | $0.00 | $0.00 | $644.01 |
| 2026 | 17210 | EMS1 - FIRE DIST #1 EMS | $123.81 | $123.80 | $0.00 | $0.00 | $0.00 | $247.61 |
| 2026 | 17210 | JCCD - JC Conservation District | $2.55 | $2.55 | $0.00 | $0.00 | $0.00 | $5.10 |
| 2026 | 17210 | NWA - Noxious Weed Assessment | $2.98 | $2.97 | $0.00 | $0.00 | $0.00 | $5.95 |
| 2026 | 17210 | TOTAL: | $2265.25 | $2265.15 | $0.00 | $0.00 | $0.00 | $4530.40 |
|
| 2026 | 17210 | $2265.25 | $2265.15 | $0.00 | $0.00 | $0.00 | $4530.40 |
Statement Details |
| 2025 | 17265 | STATE - STATE LEVY (SCHOOL) | $590.72 | $590.71 | $0.00 | $0.00 | $1181.43 | $0.00 |
| 2025 | 17265 | COUNTY - COUNTY LEVIES (CE, DD, VET, MH) | $232.31 | $232.28 | $0.00 | $0.00 | $464.59 | $0.00 |
| 2025 | 17265 | CONSERVE - CONSERVATION FUTURES | $6.97 | $6.96 | $0.00 | $0.00 | $13.93 | $0.00 |
| 2025 | 17265 | CITYPT - CITY OF PT | $335.01 | $334.98 | $0.00 | $0.00 | $669.99 | $0.00 |
| 2025 | 17265 | PORTPT - PORT DISTRICT | $94.80 | $94.78 | $0.00 | $0.00 | $189.58 | $0.00 |
| 2025 | 17265 | PUD1 - PUD #1 | $15.20 | $15.20 | $0.00 | $0.00 | $30.40 | $0.00 |
| 2025 | 17265 | HD2 - HOSP DIST #2 | $13.56 | $13.55 | $0.00 | $0.00 | $27.11 | $0.00 |
| 2025 | 17265 | SD50 - SCHOOL DIST #50 | $431.72 | $431.71 | $0.00 | $0.00 | $863.43 | $0.00 |
| 2025 | 17265 | FD1 - FIRE DISTRICT #1 | $306.54 | $306.54 | $0.00 | $0.00 | $613.08 | $0.00 |
| 2025 | 17265 | EMS1 - FIRE DIST #1 EMS | $117.91 | $117.90 | $0.00 | $0.00 | $235.81 | $0.00 |
| 2025 | 17265 | JCCD - JC Conservation District | $2.55 | $2.55 | $0.00 | $0.00 | $5.10 | $0.00 |
| 2025 | 17265 | NWA - Noxious Weed Assessment | $2.15 | $2.15 | $0.00 | $0.00 | $4.30 | $0.00 |
| 2025 | 17265 | TOTAL: | $2149.44 | $2149.31 | $0.00 | $0.00 | $4298.75 | $0.00 |
|
| 2025 | 17265 | $2149.44 | $2149.31 | $0.00 | $0.00 | $4298.75 | $0.00 |
Statement Details |
| 2024 | 17299 | STATE - STATE LEVY (SCHOOL) | $538.53 | $538.52 | $0.00 | $0.00 | $1077.05 | $0.00 |
| 2024 | 17299 | COUNTY - COUNTY LEVIES (CE, DD, VET, MH) | $230.44 | $230.43 | $0.00 | $0.00 | $460.87 | $0.00 |
| 2024 | 17299 | CONSERVE - CONSERVATION FUTURES | $6.91 | $6.91 | $0.00 | $0.00 | $13.82 | $0.00 |
| 2024 | 17299 | CITYPT - CITY OF PT | $329.28 | $329.26 | $0.00 | $0.00 | $658.54 | $0.00 |
| 2024 | 17299 | PORTPT - PORT DISTRICT | $95.19 | $95.18 | $0.00 | $0.00 | $190.37 | $0.00 |
| 2024 | 17299 | PUD1 - PUD #1 | $15.14 | $15.13 | $0.00 | $0.00 | $30.27 | $0.00 |
| 2024 | 17299 | HD2 - HOSP DIST #2 | $13.45 | $13.44 | $0.00 | $0.00 | $26.89 | $0.00 |
| 2024 | 17299 | SD50 - SCHOOL DIST #50 | $435.70 | $435.69 | $0.00 | $0.00 | $871.39 | $0.00 |
| 2024 | 17299 | FD1 - FIRE DISTRICT #1 | $304.70 | $304.69 | $0.00 | $0.00 | $609.39 | $0.00 |
| 2024 | 17299 | EMS1 - FIRE DIST #1 EMS | $116.39 | $116.38 | $0.00 | $0.00 | $232.77 | $0.00 |
| 2024 | 17299 | JCCD - JC Conservation District | $2.55 | $2.55 | $0.00 | $0.00 | $5.10 | $0.00 |
| 2024 | 17299 | NWA - Noxious Weed Assessment | $2.15 | $2.15 | $0.00 | $0.00 | $4.30 | $0.00 |
| 2024 | 17299 | TOTAL: | $2090.43 | $2090.33 | $0.00 | $0.00 | $4180.76 | $0.00 |
|
| 2024 | 17299 | $2090.43 | $2090.33 | $0.00 | $0.00 | $4180.76 | $0.00 |
Statement Details |
| 2023 | 17323 | STATE - STATE LEVY (SCHOOL) | $524.43 | $524.42 | $0.00 | $0.00 | $1048.85 | $0.00 |
| 2023 | 17323 | COUNTY - COUNTY LEVIES (CE, DD, VET, MH) | $228.85 | $228.84 | $0.00 | $0.00 | $457.69 | $0.00 |
| 2023 | 17323 | CONSERVE - CONSERVATION FUTURES | $6.86 | $6.86 | $0.00 | $0.00 | $13.72 | $0.00 |
| 2023 | 17323 | CITYPT - CITY OF PT | $323.44 | $323.42 | $0.00 | $0.00 | $646.86 | $0.00 |
| 2023 | 17323 | PORTPT - PORT DISTRICT | $96.41 | $96.39 | $0.00 | $0.00 | $192.80 | $0.00 |
| 2023 | 17323 | PUD1 - PUD #1 | $15.17 | $15.17 | $0.00 | $0.00 | $30.34 | $0.00 |
| 2023 | 17323 | HD2 - HOSP DIST #2 | $13.36 | $13.35 | $0.00 | $0.00 | $26.71 | $0.00 |
| 2023 | 17323 | SD50 - SCHOOL DIST #50 | $416.15 | $416.13 | $0.00 | $0.00 | $832.28 | $0.00 |
| 2023 | 17323 | FD1 - FIRE DISTRICT #1 | $188.52 | $188.52 | $0.00 | $0.00 | $377.04 | $0.00 |
| 2023 | 17323 | EMS1 - FIRE DIST #1 EMS | $80.20 | $80.19 | $0.00 | $0.00 | $160.39 | $0.00 |
| 2023 | 17323 | JCCD - JC Conservation District | $2.55 | $2.55 | $0.00 | $0.00 | $5.10 | $0.00 |
| 2023 | 17323 | NWA - Noxious Weed Assessment | $2.15 | $2.15 | $0.00 | $0.00 | $4.30 | $0.00 |
| 2023 | 17323 | TOTAL: | $1898.09 | $1897.99 | $0.00 | $0.00 | $3796.08 | $0.00 |
|
| 2023 | 17323 | $1898.09 | $1897.99 | $0.00 | $0.00 | $3796.08 | $0.00 |
Values
| (+) Improvement Homesite Value: | + | $341,595 | |
| (+) Improvement Non-Homesite Value: | + | $0 | |
| (+) Land Homesite Value: | + | $187,500 | |
| (+) Land Non-Homesite Value: | + | $0 | |
| (+) Curr Use (HS): | + | $0 | $0 |
| (+) Curr Use (NHS): | + | $0 | $0 |
| | | -------------------------- | |
| (=) Market Value: | = | $529,095 | |
| (–) Productivity Loss: | – | $0 | |
| | | -------------------------- | |
| (=) Subtotal: | = | $529,095 | |
| (+) Senior Appraised Value: | + | $0 | |
| (+) Non-Senior Appraised Value: | + | $529,095 | |
| | | -------------------------- | |
| (=) Total Appraised Value: | = | $529,095 | |
| (–) Senior Exemption Loss: | – | $0 | |
| (–) Exemption Loss: | – | $0 | |
| | | -------------------------- | |
| (=) Taxable Value: | = | $529,095 | |
Taxing Jurisdiction
| Owner: | EUGENE D SCHILLING TRUST | | |
| % Ownership: | 100.0000000000% | | |
| Total Value: | N/A | | |
| Tax Area: | 0110 - C-50F1E1H2 |
| CE | COUNTY CURRENT EXPENSE | N/A | N/A | N/A | N/A | | |
| CNTYDD | DEVELOPMENTAL DISABILITIES | N/A | N/A | N/A | N/A | | |
| CNTYVET | VETERANS RELIEF | N/A | N/A | N/A | N/A | | |
| MENTAL | MENTAL HEALTH | N/A | N/A | N/A | N/A | | |
| PTGEN | CITY OF PT GENERAL | N/A | N/A | N/A | N/A | | |
| PTLLL | CITY OF PT - LIBRARY LID LIFT | N/A | N/A | N/A | N/A | | |
| PTMVBOND | CITY OF PT MV BOND | N/A | N/A | N/A | N/A | | |
| HOSP2CASH | HOSP DIST #2 GENERAL | N/A | N/A | N/A | N/A | | |
| SCH50BOND | SCHOOL DIST #50 BOND 2016 | N/A | N/A | N/A | N/A | | |
| SCH50CP | SCHOOL DIST #50 CAP PROJ | N/A | N/A | N/A | N/A | | |
| SCH50MO | SCHOOL DIST #50 EP & O | N/A | N/A | N/A | N/A | | |
| CONSERVE | CONSERVATION FUTURES | N/A | N/A | N/A | N/A | | |
| EMS1 | FIRE DIST #1 EMS | N/A | N/A | N/A | N/A | | |
| FD1 | FIRE DIST #1 GENERAL | N/A | N/A | N/A | N/A | | |
| PORTPT | PORT OF PT GENERAL | N/A | N/A | N/A | N/A | | |
| PORTPTIDD | PORT OF PT IDD 2019 | N/A | N/A | N/A | N/A | | |
| PUD1 | PUD #1 GENERAL | N/A | N/A | N/A | N/A | | |
| STATE | STATE SCHOOL PART 1 | N/A | N/A | N/A | N/A | | |
| STATE2 | STATE SCHOOL PART 2 | N/A | N/A | N/A | N/A | | |
| | Total Tax Rate: | N/A | | | | | |
| | | | | Taxes w/Current Exemptions: | N/A | | |
| | | | | Taxes w/o Exemptions: | N/A | | |
Improvement / Building
| Improvement #1: | Residential Bldg | State Code: | 11 | 1785.0 sqft | Value: | $341,595 |
| Bathrooms (#): | 2 (FULL) | Bedrooms (#): | 4 | | Exterior Wall: | SI/ST | Fireplace: | WD ST-AVG | | Floor Construction: | FRAME | Foundation: | CONPR | | Heating/Cooling: | F/A | Inside Verify: | YES-FIX | | Roof Cover: | COMP |   |   |
|
| | Type | Description | Class CD | Sub Class CD | Year Built | Area |
| | MA | Main Area | 3+ | 1S | 1984 | 1785.0 |
| | HWPOR | House Wood Porch | 3 | 1S | 1984 | 35.0 |
| | HDECK | House Deck | 3 | 1S | 1984 | 192.0 |
| | GATT | House Attached Garage | 3 | 1S | 1984 | 650.0 |
Sketch
Property Image
Land
| 1 | 6210-1185L | | 0.0000 | 0.00 | 0.00 | 0.00 | 1.00 | $52,500 | $0 |
| 2 | 6210-1185L | | 0.0000 | 0.00 | 0.00 | 0.00 | 1.00 | $135,000 | $0 |
Roll Value History
| 2026 | N/A | N/A | N/A | N/A | N/A |
| 2025 | $341,595 | $187,500 | $0 | $529,095 | $529,095 |
| 2024 | $319,418 | $173,250 | $0 | $492,668 | $492,668 |
| 2023 | $305,531 | $160,000 | $0 | $465,531 | $465,531 |
| 2022 | $305,531 | $140,000 | $0 | $445,531 | $445,531 |
Deed and Sales History
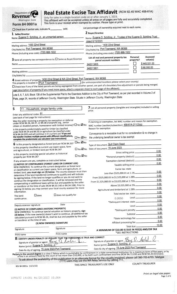
| 1 | 06/15/2023 | QCD | Quit Claim Deed | EUGENE D SCHILLING | EUGENE D SCHILLING TRUST | | | | 141081 | |
| 2 | 06/22/2015 | SWD | Statutory Warranty Deed | MC CORMICK FAMILY REV TRUST | EUGENE D SCHILLING | | | $260,000.00 | 123456 | |
|   | |
| 3 | 12/26/2014 | QCD | Quit Claim Deed | CHARLES E MC CORMICK | MC CORMICK FAMILY REV TRUST | | | | 122491 | |
Payout Agreement
| No payout information available.. |