Property
Account |
| Property ID: | 27887 | Abbreviated Legal Description: | EISENBEIS ADDITION BLK 150 LOTS 1(ALL), 2(E15') |
| Parcel # / Geo ID: | 948315002 | Agent Code: | |
| Type: | Real | | |
| Tax Area: | 0110 - C-50F1E1H2 | Land Use Code | 11 |
| Open Space: | N | DFL | N |
| Historic Property: | N | Remodel Property: | N |
| Multi-Family Redevelopment: | N | | |
| Township: | 30N | Section: | 10 |
| Range: | 1W |
Location |
| Address: | 1515 12TH ST PORT TOWNSEND, WA 98368 | Mapsco: | 032/084 |
| Neighborhood: | EISENBEIS, OC HASTINGS & SUPP, PINKS LESS VICTORIAN VILLAGE | Map ID: | |
| Neighborhood CD: | 6210 |
Owner |
| Name: | SAMUEL S FOREMAN | Owner ID: | 97373 |
| Mailing Address: | 1515 12TH STREET PORT TOWNSEND, WA 98368 | % Ownership: | 100.0000000000% |
| | | Exemptions: | |
Pay Tax Due
Select the appropriate checkbox next to the year to be paid. Multiple years may be selected.
*Convenience Fee not included
Taxes and Assessment Details
Property Tax Information as of
03/12/2026
Click on "Statement Details" to expand or collapse a tax statement.
* Please enter a valid date ** Please enter a valid date *
Statement Details |
| 2026 | 17239 | STATE - STATE LEVY (SCHOOL) | $477.12 | $477.11 | $0.00 | $0.00 | $0.00 | $954.23 |
| 2026 | 17239 | COUNTY - COUNTY LEVIES (CE, DD, VET, MH) | $190.75 | $190.74 | $0.00 | $0.00 | $0.00 | $381.49 |
| 2026 | 17239 | CONSERVE - CONSERVATION FUTURES | $5.72 | $5.72 | $0.00 | $0.00 | $0.00 | $11.44 |
| 2026 | 17239 | CITYPT - CITY OF PT | $270.76 | $270.75 | $0.00 | $0.00 | $0.00 | $541.51 |
| 2026 | 17239 | PORTPT - PORT DISTRICT | $77.05 | $77.03 | $0.00 | $0.00 | $0.00 | $154.08 |
| 2026 | 17239 | PUD1 - PUD #1 | $12.41 | $12.41 | $0.00 | $0.00 | $0.00 | $24.82 |
| 2026 | 17239 | HD2 - HOSP DIST #2 | $11.13 | $11.12 | $0.00 | $0.00 | $0.00 | $22.25 |
| 2026 | 17239 | SD50 - SCHOOL DIST #50 | $377.99 | $377.97 | $0.00 | $0.00 | $0.00 | $755.96 |
| 2026 | 17239 | FD1 - FIRE DISTRICT #1 | $252.60 | $252.60 | $0.00 | $0.00 | $0.00 | $505.20 |
| 2026 | 17239 | EMS1 - FIRE DIST #1 EMS | $97.12 | $97.12 | $0.00 | $0.00 | $0.00 | $194.24 |
| 2026 | 17239 | JCCD - JC Conservation District | $2.55 | $2.55 | $0.00 | $0.00 | $0.00 | $5.10 |
| 2026 | 17239 | NWA - Noxious Weed Assessment | $2.98 | $2.97 | $0.00 | $0.00 | $0.00 | $5.95 |
| 2026 | 17239 | TOTAL: | $1778.18 | $1778.09 | $0.00 | $0.00 | $0.00 | $3556.27 |
|
| 2026 | 17239 | $1778.18 | $1778.09 | $0.00 | $0.00 | $0.00 | $3556.27 |
Statement Details |
| 2025 | 17294 | STATE - STATE LEVY (SCHOOL) | $472.46 | $472.44 | $0.00 | $0.00 | $944.90 | $0.00 |
| 2025 | 17294 | COUNTY - COUNTY LEVIES (CE, DD, VET, MH) | $185.79 | $185.78 | $0.00 | $0.00 | $371.57 | $0.00 |
| 2025 | 17294 | CONSERVE - CONSERVATION FUTURES | $5.57 | $5.57 | $0.00 | $0.00 | $11.14 | $0.00 |
| 2025 | 17294 | CITYPT - CITY OF PT | $267.93 | $267.92 | $0.00 | $0.00 | $535.85 | $0.00 |
| 2025 | 17294 | PORTPT - PORT DISTRICT | $75.81 | $75.81 | $0.00 | $0.00 | $151.62 | $0.00 |
| 2025 | 17294 | PUD1 - PUD #1 | $12.16 | $12.15 | $0.00 | $0.00 | $24.31 | $0.00 |
| 2025 | 17294 | HD2 - HOSP DIST #2 | $10.84 | $10.84 | $0.00 | $0.00 | $21.68 | $0.00 |
| 2025 | 17294 | SD50 - SCHOOL DIST #50 | $345.29 | $345.27 | $0.00 | $0.00 | $690.56 | $0.00 |
| 2025 | 17294 | FD1 - FIRE DISTRICT #1 | $245.17 | $245.17 | $0.00 | $0.00 | $490.34 | $0.00 |
| 2025 | 17294 | EMS1 - FIRE DIST #1 EMS | $94.30 | $94.30 | $0.00 | $0.00 | $188.60 | $0.00 |
| 2025 | 17294 | JCCD - JC Conservation District | $2.55 | $2.55 | $0.00 | $0.00 | $5.10 | $0.00 |
| 2025 | 17294 | NWA - Noxious Weed Assessment | $2.15 | $2.15 | $0.00 | $0.00 | $4.30 | $0.00 |
| 2025 | 17294 | TOTAL: | $1720.02 | $1719.95 | $0.00 | $0.00 | $3439.97 | $0.00 |
|
| 2025 | 17294 | $1720.02 | $1719.95 | $0.00 | $0.00 | $3439.97 | $0.00 |
Statement Details |
| 2024 | 17328 | STATE - STATE LEVY (SCHOOL) | $429.56 | $429.55 | $0.00 | $0.00 | $859.11 | $0.00 |
| 2024 | 17328 | COUNTY - COUNTY LEVIES (CE, DD, VET, MH) | $183.82 | $183.81 | $0.00 | $0.00 | $367.63 | $0.00 |
| 2024 | 17328 | CONSERVE - CONSERVATION FUTURES | $5.51 | $5.51 | $0.00 | $0.00 | $11.02 | $0.00 |
| 2024 | 17328 | CITYPT - CITY OF PT | $262.64 | $262.63 | $0.00 | $0.00 | $525.27 | $0.00 |
| 2024 | 17328 | PORTPT - PORT DISTRICT | $75.93 | $75.91 | $0.00 | $0.00 | $151.84 | $0.00 |
| 2024 | 17328 | PUD1 - PUD #1 | $12.08 | $12.07 | $0.00 | $0.00 | $24.15 | $0.00 |
| 2024 | 17328 | HD2 - HOSP DIST #2 | $10.73 | $10.72 | $0.00 | $0.00 | $21.45 | $0.00 |
| 2024 | 17328 | SD50 - SCHOOL DIST #50 | $347.54 | $347.52 | $0.00 | $0.00 | $695.06 | $0.00 |
| 2024 | 17328 | FD1 - FIRE DISTRICT #1 | $243.04 | $243.04 | $0.00 | $0.00 | $486.08 | $0.00 |
| 2024 | 17328 | EMS1 - FIRE DIST #1 EMS | $92.84 | $92.83 | $0.00 | $0.00 | $185.67 | $0.00 |
| 2024 | 17328 | JCCD - JC Conservation District | $2.55 | $2.55 | $0.00 | $0.00 | $5.10 | $0.00 |
| 2024 | 17328 | NWA - Noxious Weed Assessment | $2.15 | $2.15 | $0.00 | $0.00 | $4.30 | $0.00 |
| 2024 | 17328 | TOTAL: | $1668.39 | $1668.29 | $0.00 | $0.00 | $3336.68 | $0.00 |
|
| 2024 | 17328 | $1668.39 | $1668.29 | $0.00 | $0.00 | $3336.68 | $0.00 |
Statement Details |
| 2023 | 17352 | STATE - STATE LEVY (SCHOOL) | $417.96 | $417.95 | $0.00 | $0.00 | $835.91 | $0.00 |
| 2023 | 17352 | COUNTY - COUNTY LEVIES (CE, DD, VET, MH) | $182.40 | $182.37 | $0.00 | $0.00 | $364.77 | $0.00 |
| 2023 | 17352 | CONSERVE - CONSERVATION FUTURES | $5.47 | $5.47 | $0.00 | $0.00 | $10.94 | $0.00 |
| 2023 | 17352 | CITYPT - CITY OF PT | $257.78 | $257.76 | $0.00 | $0.00 | $515.54 | $0.00 |
| 2023 | 17352 | PORTPT - PORT DISTRICT | $76.83 | $76.83 | $0.00 | $0.00 | $153.66 | $0.00 |
| 2023 | 17352 | PUD1 - PUD #1 | $12.09 | $12.09 | $0.00 | $0.00 | $24.18 | $0.00 |
| 2023 | 17352 | HD2 - HOSP DIST #2 | $10.65 | $10.64 | $0.00 | $0.00 | $21.29 | $0.00 |
| 2023 | 17352 | SD50 - SCHOOL DIST #50 | $331.66 | $331.65 | $0.00 | $0.00 | $663.31 | $0.00 |
| 2023 | 17352 | FD1 - FIRE DISTRICT #1 | $150.25 | $150.25 | $0.00 | $0.00 | $300.50 | $0.00 |
| 2023 | 17352 | EMS1 - FIRE DIST #1 EMS | $63.92 | $63.91 | $0.00 | $0.00 | $127.83 | $0.00 |
| 2023 | 17352 | JCCD - JC Conservation District | $2.55 | $2.55 | $0.00 | $0.00 | $5.10 | $0.00 |
| 2023 | 17352 | NWA - Noxious Weed Assessment | $2.15 | $2.15 | $0.00 | $0.00 | $4.30 | $0.00 |
| 2023 | 17352 | TOTAL: | $1513.71 | $1513.62 | $0.00 | $0.00 | $3027.33 | $0.00 |
|
| 2023 | 17352 | $1513.71 | $1513.62 | $0.00 | $0.00 | $3027.33 | $0.00 |
Values
| (+) Improvement Homesite Value: | + | $0 | |
| (+) Improvement Non-Homesite Value: | + | $266,924 | |
| (+) Land Homesite Value: | + | $0 | |
| (+) Land Non-Homesite Value: | + | $148,125 | |
| (+) Curr Use (HS): | + | $0 | $0 |
| (+) Curr Use (NHS): | + | $0 | $0 |
| | | -------------------------- | |
| (=) Market Value: | = | $415,049 | |
| (–) Productivity Loss: | – | $0 | |
| | | -------------------------- | |
| (=) Subtotal: | = | $415,049 | |
| (+) Senior Appraised Value: | + | $0 | |
| (+) Non-Senior Appraised Value: | + | $415,049 | |
| | | -------------------------- | |
| (=) Total Appraised Value: | = | $415,049 | |
| (–) Senior Exemption Loss: | – | $0 | |
| (–) Exemption Loss: | – | $0 | |
| | | -------------------------- | |
| (=) Taxable Value: | = | $415,049 | |
Taxing Jurisdiction
| Owner: | SAMUEL S FOREMAN | | |
| % Ownership: | 100.0000000000% | | |
| Total Value: | $415,049 | | |
| Tax Area: | 0110 - C-50F1E1H2 |
| CE | COUNTY CURRENT EXPENSE | 0.9034619479 | $415,049 | $415,049 | $374.98 | | |
| CNTYDD | DEVELOPMENTAL DISABILITIES | 0.0052121823 | $415,049 | $415,049 | $2.16 | | |
| CNTYVET | VETERANS RELIEF | 0.0052777810 | $415,049 | $415,049 | $2.19 | | |
| MENTAL | MENTAL HEALTH | 0.0052121823 | $415,049 | $415,049 | $2.16 | | |
| PTGEN | CITY OF PT GENERAL | 0.8551967795 | $415,049 | $415,049 | $354.95 | | |
| PTLLL | CITY OF PT - LIBRARY LID LIFT | 0.4010114288 | $415,049 | $415,049 | $166.44 | | |
| PTMVBOND | CITY OF PT MV BOND | 0.0484717981 | $415,049 | $415,049 | $20.12 | | |
| HOSP2CASH | HOSP DIST #2 GENERAL | 0.0536075306 | $415,049 | $415,049 | $22.25 | | |
| SCH50BOND | SCHOOL DIST #50 BOND 2016 | 0.5377451389 | $415,049 | $415,049 | $223.19 | | |
| SCH50CP | SCHOOL DIST #50 CAP PROJ | 0.4573475088 | $415,049 | $415,049 | $189.82 | | |
| SCH50MO | SCHOOL DIST #50 EP & O | 0.8262822886 | $415,049 | $415,049 | $342.95 | | |
| CONSERVE | CONSERVATION FUTURES | 0.0275621078 | $415,049 | $415,049 | $11.44 | | |
| EMS1 | FIRE DIST #1 EMS | 0.4679948282 | $415,049 | $415,049 | $194.24 | | |
| FD1 | FIRE DIST #1 GENERAL | 1.2171942929 | $415,049 | $415,049 | $505.20 | | |
| PORTPT | PORT OF PT GENERAL | 0.1134941229 | $415,049 | $415,049 | $47.11 | | |
| PORTPTIDD | PORT OF PT IDD 2019 | 0.2577346692 | $415,049 | $415,049 | $106.97 | | |
| PUD1 | PUD #1 GENERAL | 0.0597888892 | $415,049 | $415,049 | $24.82 | | |
| STATE | STATE SCHOOL PART 1 | 1.4940692947 | $415,049 | $415,049 | $620.11 | | |
| STATE2 | STATE SCHOOL PART 2 | 0.8050170049 | $415,049 | $415,049 | $334.12 | | |
| | Total Tax Rate: | 8.5416817766 | | | | | |
| | | | | Taxes w/Current Exemptions: | $3,545.22 | | |
| | | | | Taxes w/o Exemptions: | $3,545.22 | | |
Improvement / Building
| Improvement #1: | Residential Bldg | State Code: | 11 | 1104.0 sqft | Value: | $266,924 |
| Bathrooms (#): | 1 (FULL) | Bathrooms (#): | 1 (HALF) | | Bedrooms (#): | 2 | Exterior Wall: | SI/ST | | Floor Construction: | FRAME | Foundation: | CONPR | | Heating/Cooling: | ELBB | Inside Verify: | YES-FIX | | Roof Cover: | COMP |   |   |
|
| | Type | Description | Class CD | Sub Class CD | Year Built | Area |
| | MA | Main Area | 4+ | 1S | 1993 | 1104.0 |
| | HWPOR | House Wood Porch | 4 | 1S | 1993 | 36.0 |
| | HDECK | House Deck | 4 | 1S | 1993 | 288.0 |
Sketch
Property Image
Land
| 1 | 6210-1185L | | 0.0000 | 0.00 | 0.00 | 0.00 | 1.00 | $135,000 | $0 |
| 2 | 6210-1185L | | 0.0000 | 0.00 | 0.00 | 0.00 | 1.00 | $13,125 | $0 |
Roll Value History
| 2026 | N/A | N/A | N/A | N/A | N/A |
| 2025 | $266,924 | $148,125 | $0 | $415,049 | $415,049 |
| 2024 | $256,220 | $137,813 | $0 | $394,033 | $394,033 |
| 2023 | $245,080 | $126,250 | $0 | $371,330 | $371,330 |
| 2022 | $245,080 | $110,000 | $0 | $355,080 | $355,080 |
Deed and Sales History
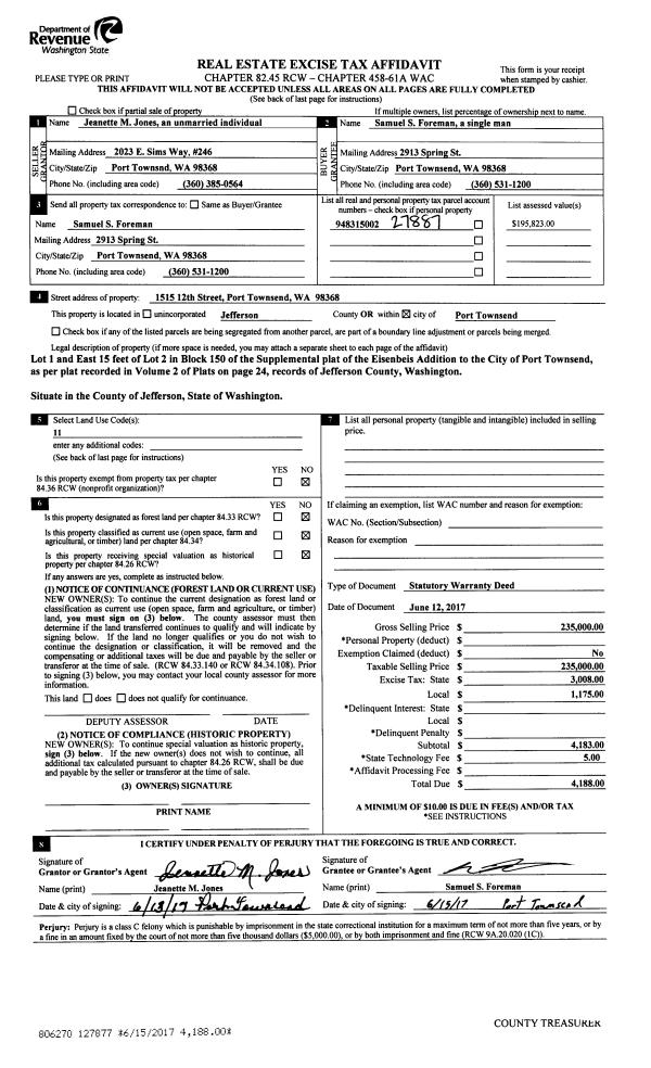
| 1 | 06/12/2017 | SWD | Statutory Warranty Deed | JEANETTE M JONES | SAMUEL S FOREMAN | | | $235,000.00 | 127877 | |
| 2 | 03/25/1993 | SWD | Statutory Warranty Deed | RAYMOND, MICHAEL C/MICHEL | JONES, JEANETTE M | 0 | 0 | $95,000.00 | 70719 | 0 |
Payout Agreement
| No payout information available.. |