Property
Account |
| Property ID: | 27917 | Abbreviated Legal Description: | EISENBEIS ADDITION BLK 171 LOTS 1 TO 8 |
| Parcel # / Geo ID: | 948317101 | Agent Code: | |
| Type: | Real | | |
| Tax Area: | 0110 - C-50F1E1H2 | Land Use Code | 91 |
| Open Space: | N | DFL | N |
| Historic Property: | N | Remodel Property: | N |
| Multi-Family Redevelopment: | N | | |
| Township: | 30N | Section: | 10 |
| Range: | 1W |
Location |
| Address: | | Mapsco: | 033/055 |
| Neighborhood: | EISENBEIS, OC HASTINGS & SUPP, PINKS LESS VICTORIAN VILLAGE | Map ID: | |
| Neighborhood CD: | 6210 |
Owner |
| Name: | HABITAT FOR HUMANITY OF EAST | Owner ID: | 17187 |
| Mailing Address: | JEFFERSON COUNTY PO BOX 658 PORT TOWNSEND, WA 98368-0658 | % Ownership: | 100.0000000000% |
| | | Exemptions: | |
Pay Tax Due
Select the appropriate checkbox next to the year to be paid. Multiple years may be selected.
*Convenience Fee not included
Taxes and Assessment Details
Property Tax Information as of
03/12/2026
Click on "Statement Details" to expand or collapse a tax statement.
* Please enter a valid date ** Please enter a valid date *
Statement Details |
| 2026 | 17268 | STATE - STATE LEVY (SCHOOL) | $370.56 | $370.55 | $0.00 | $0.00 | $0.00 | $741.11 |
| 2026 | 17268 | COUNTY - COUNTY LEVIES (CE, DD, VET, MH) | $148.15 | $148.14 | $0.00 | $0.00 | $0.00 | $296.29 |
| 2026 | 17268 | CONSERVE - CONSERVATION FUTURES | $4.44 | $4.44 | $0.00 | $0.00 | $0.00 | $8.88 |
| 2026 | 17268 | CITYPT - CITY OF PT | $210.29 | $210.27 | $0.00 | $0.00 | $0.00 | $420.56 |
| 2026 | 17268 | PORTPT - PORT DISTRICT | $59.83 | $59.83 | $0.00 | $0.00 | $0.00 | $119.66 |
| 2026 | 17268 | PUD1 - PUD #1 | $9.64 | $9.63 | $0.00 | $0.00 | $0.00 | $19.27 |
| 2026 | 17268 | HD2 - HOSP DIST #2 | $8.64 | $8.64 | $0.00 | $0.00 | $0.00 | $17.28 |
| 2026 | 17268 | SD50 - SCHOOL DIST #50 | $293.57 | $293.55 | $0.00 | $0.00 | $0.00 | $587.12 |
| 2026 | 17268 | FD1 - FIRE DISTRICT #1 | $196.18 | $196.18 | $0.00 | $0.00 | $0.00 | $392.36 |
| 2026 | 17268 | EMS1 - FIRE DIST #1 EMS | $75.43 | $75.43 | $0.00 | $0.00 | $0.00 | $150.86 |
| 2026 | 17268 | FPLCA - DNR Landowner Contingency Assmt | $3.00 | $3.00 | $0.00 | $0.00 | $0.00 | $6.00 |
| 2026 | 17268 | JCCD - JC Conservation District | $2.53 | $2.53 | $0.00 | $0.00 | $0.00 | $5.06 |
| 2026 | 17268 | NWA - Noxious Weed Assessment | $2.98 | $2.97 | $0.00 | $0.00 | $0.00 | $5.95 |
| 2026 | 17268 | WAT - Clean Water District | $13.00 | $13.00 | $0.00 | $0.00 | $0.00 | $26.00 |
| 2026 | 17268 | TOTAL: | $1398.24 | $1398.16 | $0.00 | $0.00 | $0.00 | $2796.40 |
|
| 2026 | 17268 | $1398.24 | $1398.16 | $0.00 | $0.00 | $0.00 | $2796.40 |
Statement Details |
| 2025 | 17323 | STATE - STATE LEVY (SCHOOL) | $347.86 | $347.84 | $0.00 | $0.00 | $695.70 | $0.00 |
| 2025 | 17323 | COUNTY - COUNTY LEVIES (CE, DD, VET, MH) | $136.81 | $136.78 | $0.00 | $0.00 | $273.59 | $0.00 |
| 2025 | 17323 | CONSERVE - CONSERVATION FUTURES | $4.10 | $4.10 | $0.00 | $0.00 | $8.20 | $0.00 |
| 2025 | 17323 | CITYPT - CITY OF PT | $197.28 | $197.26 | $0.00 | $0.00 | $394.54 | $0.00 |
| 2025 | 17323 | PORTPT - PORT DISTRICT | $55.82 | $55.82 | $0.00 | $0.00 | $111.64 | $0.00 |
| 2025 | 17323 | PUD1 - PUD #1 | $8.95 | $8.95 | $0.00 | $0.00 | $17.90 | $0.00 |
| 2025 | 17323 | HD2 - HOSP DIST #2 | $7.98 | $7.98 | $0.00 | $0.00 | $15.96 | $0.00 |
| 2025 | 17323 | SD50 - SCHOOL DIST #50 | $254.23 | $254.22 | $0.00 | $0.00 | $508.45 | $0.00 |
| 2025 | 17323 | FD1 - FIRE DISTRICT #1 | $180.51 | $180.51 | $0.00 | $0.00 | $361.02 | $0.00 |
| 2025 | 17323 | EMS1 - FIRE DIST #1 EMS | $69.43 | $69.43 | $0.00 | $0.00 | $138.86 | $0.00 |
| 2025 | 17323 | FPLCA - DNR Landowner Contingency Assmt | $3.00 | $3.00 | $0.00 | $0.00 | $6.00 | $0.00 |
| 2025 | 17323 | JCCD - JC Conservation District | $2.53 | $2.53 | $0.00 | $0.00 | $5.06 | $0.00 |
| 2025 | 17323 | NWA - Noxious Weed Assessment | $2.15 | $2.15 | $0.00 | $0.00 | $4.30 | $0.00 |
| 2025 | 17323 | WAT - Clean Water District | $13.00 | $13.00 | $0.00 | $0.00 | $26.00 | $0.00 |
| 2025 | 17323 | TOTAL: | $1283.65 | $1283.57 | $0.00 | $0.00 | $2567.22 | $0.00 |
|
| 2025 | 17323 | $1283.65 | $1283.57 | $0.00 | $0.00 | $2567.22 | $0.00 |
Statement Details |
| 2024 | 17357 | STATE - STATE LEVY (SCHOOL) | $319.63 | $319.62 | $0.00 | $0.00 | $639.25 | $0.00 |
| 2024 | 17357 | COUNTY - COUNTY LEVIES (CE, DD, VET, MH) | $136.77 | $136.76 | $0.00 | $0.00 | $273.53 | $0.00 |
| 2024 | 17357 | CONSERVE - CONSERVATION FUTURES | $4.10 | $4.10 | $0.00 | $0.00 | $8.20 | $0.00 |
| 2024 | 17357 | CITYPT - CITY OF PT | $195.44 | $195.42 | $0.00 | $0.00 | $390.86 | $0.00 |
| 2024 | 17357 | PORTPT - PORT DISTRICT | $56.50 | $56.49 | $0.00 | $0.00 | $112.99 | $0.00 |
| 2024 | 17357 | PUD1 - PUD #1 | $8.99 | $8.98 | $0.00 | $0.00 | $17.97 | $0.00 |
| 2024 | 17357 | HD2 - HOSP DIST #2 | $7.98 | $7.98 | $0.00 | $0.00 | $15.96 | $0.00 |
| 2024 | 17357 | SD50 - SCHOOL DIST #50 | $258.60 | $258.58 | $0.00 | $0.00 | $517.18 | $0.00 |
| 2024 | 17357 | FD1 - FIRE DISTRICT #1 | $180.84 | $180.84 | $0.00 | $0.00 | $361.68 | $0.00 |
| 2024 | 17357 | EMS1 - FIRE DIST #1 EMS | $69.08 | $69.07 | $0.00 | $0.00 | $138.15 | $0.00 |
| 2024 | 17357 | FPLCA - DNR Landowner Contingency Assmt | $3.00 | $3.00 | $0.00 | $0.00 | $6.00 | $0.00 |
| 2024 | 17357 | JCCD - JC Conservation District | $2.53 | $2.53 | $0.00 | $0.00 | $5.06 | $0.00 |
| 2024 | 17357 | NWA - Noxious Weed Assessment | $2.15 | $2.15 | $0.00 | $0.00 | $4.30 | $0.00 |
| 2024 | 17357 | WAT - Clean Water District | $12.50 | $12.50 | $0.00 | $0.00 | $25.00 | $0.00 |
| 2024 | 17357 | TOTAL: | $1258.11 | $1258.02 | $0.00 | $0.00 | $2516.13 | $0.00 |
|
| 2024 | 17357 | $1258.11 | $1258.02 | $0.00 | $0.00 | $2516.13 | $0.00 |
Statement Details |
| 2023 | 17381 | STATE - STATE LEVY (SCHOOL) | $289.10 | $289.08 | $0.00 | $0.00 | $578.18 | $0.00 |
| 2023 | 17381 | COUNTY - COUNTY LEVIES (CE, DD, VET, MH) | $126.17 | $126.13 | $0.00 | $0.00 | $252.30 | $0.00 |
| 2023 | 17381 | CONSERVE - CONSERVATION FUTURES | $3.79 | $3.78 | $0.00 | $0.00 | $7.57 | $0.00 |
| 2023 | 17381 | CITYPT - CITY OF PT | $178.30 | $178.29 | $0.00 | $0.00 | $356.59 | $0.00 |
| 2023 | 17381 | PORTPT - PORT DISTRICT | $53.15 | $53.13 | $0.00 | $0.00 | $106.28 | $0.00 |
| 2023 | 17381 | PUD1 - PUD #1 | $8.36 | $8.36 | $0.00 | $0.00 | $16.72 | $0.00 |
| 2023 | 17381 | HD2 - HOSP DIST #2 | $7.36 | $7.36 | $0.00 | $0.00 | $14.72 | $0.00 |
| 2023 | 17381 | SD50 - SCHOOL DIST #50 | $229.40 | $229.39 | $0.00 | $0.00 | $458.79 | $0.00 |
| 2023 | 17381 | FD1 - FIRE DISTRICT #1 | $103.93 | $103.92 | $0.00 | $0.00 | $207.85 | $0.00 |
| 2023 | 17381 | EMS1 - FIRE DIST #1 EMS | $44.21 | $44.20 | $0.00 | $0.00 | $88.41 | $0.00 |
| 2023 | 17381 | FPLCA - DNR Landowner Contingency Assmt | $3.00 | $3.00 | $0.00 | $0.00 | $6.00 | $0.00 |
| 2023 | 17381 | JCCD - JC Conservation District | $2.53 | $2.53 | $0.00 | $0.00 | $5.06 | $0.00 |
| 2023 | 17381 | NWA - Noxious Weed Assessment | $2.15 | $2.15 | $0.00 | $0.00 | $4.30 | $0.00 |
| 2023 | 17381 | WAT - Clean Water District | $12.00 | $12.00 | $0.00 | $0.00 | $24.00 | $0.00 |
| 2023 | 17381 | TOTAL: | $1063.45 | $1063.32 | $0.00 | $0.00 | $2126.77 | $0.00 |
|
| 2023 | 17381 | $1063.45 | $1063.32 | $0.00 | $0.00 | $2126.77 | $0.00 |
Values
| (+) Improvement Homesite Value: | + | $0 | |
| (+) Improvement Non-Homesite Value: | + | $0 | |
| (+) Land Homesite Value: | + | $0 | |
| (+) Land Non-Homesite Value: | + | $322,350 | |
| (+) Curr Use (HS): | + | $0 | $0 |
| (+) Curr Use (NHS): | + | $0 | $0 |
| | | -------------------------- | |
| (=) Market Value: | = | $322,350 | |
| (–) Productivity Loss: | – | $0 | |
| | | -------------------------- | |
| (=) Subtotal: | = | $322,350 | |
| (+) Senior Appraised Value: | + | $0 | |
| (+) Non-Senior Appraised Value: | + | $322,350 | |
| | | -------------------------- | |
| (=) Total Appraised Value: | = | $322,350 | |
| (–) Senior Exemption Loss: | – | $0 | |
| (–) Exemption Loss: | – | $0 | |
| | | -------------------------- | |
| (=) Taxable Value: | = | $322,350 | |
Taxing Jurisdiction
| Owner: | HABITAT FOR HUMANITY OF EAST | | |
| % Ownership: | 100.0000000000% | | |
| Total Value: | N/A | | |
| Tax Area: | 0110 - C-50F1E1H2 |
| CE | COUNTY CURRENT EXPENSE | N/A | N/A | N/A | N/A | | |
| CNTYDD | DEVELOPMENTAL DISABILITIES | N/A | N/A | N/A | N/A | | |
| CNTYVET | VETERANS RELIEF | N/A | N/A | N/A | N/A | | |
| MENTAL | MENTAL HEALTH | N/A | N/A | N/A | N/A | | |
| PTGEN | CITY OF PT GENERAL | N/A | N/A | N/A | N/A | | |
| PTLLL | CITY OF PT - LIBRARY LID LIFT | N/A | N/A | N/A | N/A | | |
| PTMVBOND | CITY OF PT MV BOND | N/A | N/A | N/A | N/A | | |
| HOSP2CASH | HOSP DIST #2 GENERAL | N/A | N/A | N/A | N/A | | |
| SCH50BOND | SCHOOL DIST #50 BOND 2016 | N/A | N/A | N/A | N/A | | |
| SCH50CP | SCHOOL DIST #50 CAP PROJ | N/A | N/A | N/A | N/A | | |
| SCH50MO | SCHOOL DIST #50 EP & O | N/A | N/A | N/A | N/A | | |
| CONSERVE | CONSERVATION FUTURES | N/A | N/A | N/A | N/A | | |
| EMS1 | FIRE DIST #1 EMS | N/A | N/A | N/A | N/A | | |
| FD1 | FIRE DIST #1 GENERAL | N/A | N/A | N/A | N/A | | |
| PORTPT | PORT OF PT GENERAL | N/A | N/A | N/A | N/A | | |
| PORTPTIDD | PORT OF PT IDD 2019 | N/A | N/A | N/A | N/A | | |
| PUD1 | PUD #1 GENERAL | N/A | N/A | N/A | N/A | | |
| STATE | STATE SCHOOL PART 1 | N/A | N/A | N/A | N/A | | |
| STATE2 | STATE SCHOOL PART 2 | N/A | N/A | N/A | N/A | | |
| | Total Tax Rate: | N/A | | | | | |
| | | | | Taxes w/Current Exemptions: | N/A | | |
| | | | | Taxes w/o Exemptions: | N/A | | |
Improvement / Building
Sketch
| No sketches available for this property. |
Property Image
Land
| 1 | 6210-1185L | | 0.9071 | 39512.00 | 0.00 | 0.00 | 1.00 | $105,000 | $0 |
| 2 | 6210-1185L | | 0.0000 | 0.00 | 0.00 | 0.00 | 1.00 | $217,350 | $0 |
Roll Value History
| 2026 | N/A | N/A | N/A | N/A | N/A |
| 2025 | $0 | $322,350 | $0 | $322,350 | $322,350 |
| 2024 | $0 | $290,115 | $0 | $290,115 | $290,115 |
| 2023 | $0 | $276,300 | $0 | $276,300 | $276,300 |
| 2022 | $0 | $245,600 | $0 | $245,600 | $245,600 |
Deed and Sales History
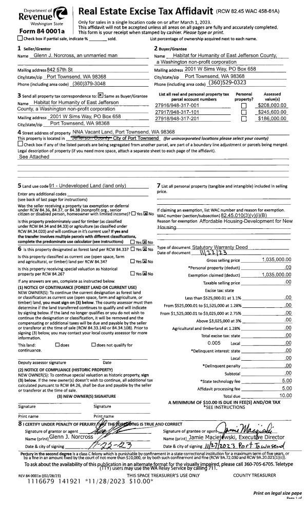
| 1 | 11/22/2023 | SWD | Statutory Warranty Deed | GLENN NORCROSS | HABITAT FOR HUMANITY OF EAST | | | $1,035,000.00 | 141921 | |
|   | |
| 2 | 03/21/2001 | SWD | Statutory Warranty Deed | ST PAUL'S EPISCOPAL CHURC | NORCROSS, GLENN J | 0 | 0 | $40,000.00 | 91861 | 0 |
| 3 | 12/13/1994 | QCD | Quit Claim Deed | DIOCESE OF OLYMPIA | ST PAUL'S | 0 | 0 | $0.00 | 77428 | 0 |
Payout Agreement
| No payout information available.. |