Property
Account |
| Property ID: | 27922 | Abbreviated Legal Description: | EISENBEIS ADDITION BLK 174 LOTS 3(S16'8"), 4(ALL) BND BY LLA #93140 |
| Parcel # / Geo ID: | 948317403 | Agent Code: | |
| Type: | Real | | |
| Tax Area: | 0110 - C-50F1E1H2 | Land Use Code | 11 |
| Open Space: | N | DFL | N |
| Historic Property: | N | Remodel Property: | N |
| Multi-Family Redevelopment: | N | | |
| Township: | 30N | Section: | 10 |
| Range: | 1W |
Location |
| Address: | 1501 LOGAN ST PORT TOWNSEND, WA 98368 | Mapsco: | 033/069 |
| Neighborhood: | EISENBEIS, OC HASTINGS & SUPP, PINKS LESS VICTORIAN VILLAGE | Map ID: | |
| Neighborhood CD: | 6210 |
Owner |
| Name: | CLAUDETTE B DIETLIN TRUST | Owner ID: | 100538 |
| Mailing Address: | CLAUDETTE B DIETLIN TRUSTEE 1501 LOGAN ST PORT TOWNSEND, WA 98368-8205 | % Ownership: | 100.0000000000% |
| | | Exemptions: | |
Pay Tax Due
Select the appropriate checkbox next to the year to be paid. Multiple years may be selected.
*Convenience Fee not included
Taxes and Assessment Details
Property Tax Information as of
03/12/2026
Click on "Statement Details" to expand or collapse a tax statement.
* Please enter a valid date ** Please enter a valid date *
Statement Details |
| 2026 | 17273 | STATE - STATE LEVY (SCHOOL) | $637.67 | $637.65 | $0.00 | $0.00 | $0.00 | $1275.32 |
| 2026 | 17273 | COUNTY - COUNTY LEVIES (CE, DD, VET, MH) | $254.95 | $254.92 | $0.00 | $0.00 | $0.00 | $509.87 |
| 2026 | 17273 | CONSERVE - CONSERVATION FUTURES | $7.65 | $7.64 | $0.00 | $0.00 | $0.00 | $15.29 |
| 2026 | 17273 | CITYPT - CITY OF PT | $361.87 | $361.85 | $0.00 | $0.00 | $0.00 | $723.72 |
| 2026 | 17273 | PORTPT - PORT DISTRICT | $102.97 | $102.96 | $0.00 | $0.00 | $0.00 | $205.93 |
| 2026 | 17273 | PUD1 - PUD #1 | $16.59 | $16.58 | $0.00 | $0.00 | $0.00 | $33.17 |
| 2026 | 17273 | HD2 - HOSP DIST #2 | $14.87 | $14.87 | $0.00 | $0.00 | $0.00 | $29.74 |
| 2026 | 17273 | SD50 - SCHOOL DIST #50 | $505.18 | $505.15 | $0.00 | $0.00 | $0.00 | $1010.33 |
| 2026 | 17273 | FD1 - FIRE DISTRICT #1 | $337.60 | $337.59 | $0.00 | $0.00 | $0.00 | $675.19 |
| 2026 | 17273 | EMS1 - FIRE DIST #1 EMS | $129.80 | $129.80 | $0.00 | $0.00 | $0.00 | $259.60 |
| 2026 | 17273 | JCCD - JC Conservation District | $2.55 | $2.55 | $0.00 | $0.00 | $0.00 | $5.10 |
| 2026 | 17273 | NWA - Noxious Weed Assessment | $2.98 | $2.97 | $0.00 | $0.00 | $0.00 | $5.95 |
| 2026 | 17273 | TOTAL: | $2374.68 | $2374.53 | $0.00 | $0.00 | $0.00 | $4749.21 |
|
| 2026 | 17273 | $2374.68 | $2374.53 | $0.00 | $0.00 | $0.00 | $4749.21 |
Statement Details |
| 2025 | 17328 | STATE - STATE LEVY (SCHOOL) | $651.92 | $651.91 | $0.00 | $0.00 | $1303.83 | $0.00 |
| 2025 | 17328 | COUNTY - COUNTY LEVIES (CE, DD, VET, MH) | $256.36 | $256.36 | $0.00 | $0.00 | $512.72 | $0.00 |
| 2025 | 17328 | CONSERVE - CONSERVATION FUTURES | $7.69 | $7.68 | $0.00 | $0.00 | $15.37 | $0.00 |
| 2025 | 17328 | CITYPT - CITY OF PT | $369.71 | $369.69 | $0.00 | $0.00 | $739.40 | $0.00 |
| 2025 | 17328 | PORTPT - PORT DISTRICT | $104.62 | $104.60 | $0.00 | $0.00 | $209.22 | $0.00 |
| 2025 | 17328 | PUD1 - PUD #1 | $16.78 | $16.77 | $0.00 | $0.00 | $33.55 | $0.00 |
| 2025 | 17328 | HD2 - HOSP DIST #2 | $14.96 | $14.95 | $0.00 | $0.00 | $29.91 | $0.00 |
| 2025 | 17328 | SD50 - SCHOOL DIST #50 | $476.45 | $476.43 | $0.00 | $0.00 | $952.88 | $0.00 |
| 2025 | 17328 | FD1 - FIRE DISTRICT #1 | $338.30 | $338.29 | $0.00 | $0.00 | $676.59 | $0.00 |
| 2025 | 17328 | EMS1 - FIRE DIST #1 EMS | $130.12 | $130.12 | $0.00 | $0.00 | $260.24 | $0.00 |
| 2025 | 17328 | JCCD - JC Conservation District | $2.55 | $2.55 | $0.00 | $0.00 | $5.10 | $0.00 |
| 2025 | 17328 | NWA - Noxious Weed Assessment | $2.15 | $2.15 | $0.00 | $0.00 | $4.30 | $0.00 |
| 2025 | 17328 | TOTAL: | $2371.61 | $2371.50 | $0.00 | $0.00 | $4743.11 | $0.00 |
|
| 2025 | 17328 | $2371.61 | $2371.50 | $0.00 | $0.00 | $4743.11 | $0.00 |
Statement Details |
| 2024 | 17362 | STATE - STATE LEVY (SCHOOL) | $595.15 | $595.15 | $0.00 | $0.00 | $1190.30 | $0.00 |
| 2024 | 17362 | COUNTY - COUNTY LEVIES (CE, DD, VET, MH) | $254.68 | $254.67 | $0.00 | $0.00 | $509.35 | $0.00 |
| 2024 | 17362 | CONSERVE - CONSERVATION FUTURES | $7.64 | $7.63 | $0.00 | $0.00 | $15.27 | $0.00 |
| 2024 | 17362 | CITYPT - CITY OF PT | $363.89 | $363.89 | $0.00 | $0.00 | $727.78 | $0.00 |
| 2024 | 17362 | PORTPT - PORT DISTRICT | $105.20 | $105.18 | $0.00 | $0.00 | $210.38 | $0.00 |
| 2024 | 17362 | PUD1 - PUD #1 | $16.73 | $16.73 | $0.00 | $0.00 | $33.46 | $0.00 |
| 2024 | 17362 | HD2 - HOSP DIST #2 | $14.86 | $14.86 | $0.00 | $0.00 | $29.72 | $0.00 |
| 2024 | 17362 | SD50 - SCHOOL DIST #50 | $481.52 | $481.49 | $0.00 | $0.00 | $963.01 | $0.00 |
| 2024 | 17362 | FD1 - FIRE DISTRICT #1 | $336.74 | $336.73 | $0.00 | $0.00 | $673.47 | $0.00 |
| 2024 | 17362 | EMS1 - FIRE DIST #1 EMS | $128.62 | $128.62 | $0.00 | $0.00 | $257.24 | $0.00 |
| 2024 | 17362 | JCCD - JC Conservation District | $2.55 | $2.55 | $0.00 | $0.00 | $5.10 | $0.00 |
| 2024 | 17362 | NWA - Noxious Weed Assessment | $2.15 | $2.15 | $0.00 | $0.00 | $4.30 | $0.00 |
| 2024 | 17362 | TOTAL: | $2309.73 | $2309.65 | $0.00 | $0.00 | $4619.38 | $0.00 |
|
| 2024 | 17362 | $2309.73 | $2309.65 | $0.00 | $0.00 | $4619.38 | $0.00 |
Statement Details |
| 2023 | 17386 | STATE - STATE LEVY (SCHOOL) | $585.99 | $585.98 | $0.00 | $0.00 | $1171.97 | $0.00 |
| 2023 | 17386 | COUNTY - COUNTY LEVIES (CE, DD, VET, MH) | $255.71 | $255.70 | $0.00 | $0.00 | $511.41 | $0.00 |
| 2023 | 17386 | CONSERVE - CONSERVATION FUTURES | $7.67 | $7.67 | $0.00 | $0.00 | $15.34 | $0.00 |
| 2023 | 17386 | CITYPT - CITY OF PT | $361.41 | $361.39 | $0.00 | $0.00 | $722.80 | $0.00 |
| 2023 | 17386 | PORTPT - PORT DISTRICT | $107.73 | $107.71 | $0.00 | $0.00 | $215.44 | $0.00 |
| 2023 | 17386 | PUD1 - PUD #1 | $16.95 | $16.95 | $0.00 | $0.00 | $33.90 | $0.00 |
| 2023 | 17386 | HD2 - HOSP DIST #2 | $14.93 | $14.91 | $0.00 | $0.00 | $29.84 | $0.00 |
| 2023 | 17386 | SD50 - SCHOOL DIST #50 | $465.00 | $464.98 | $0.00 | $0.00 | $929.98 | $0.00 |
| 2023 | 17386 | FD1 - FIRE DISTRICT #1 | $210.65 | $210.65 | $0.00 | $0.00 | $421.30 | $0.00 |
| 2023 | 17386 | EMS1 - FIRE DIST #1 EMS | $89.61 | $89.60 | $0.00 | $0.00 | $179.21 | $0.00 |
| 2023 | 17386 | JCCD - JC Conservation District | $2.55 | $2.55 | $0.00 | $0.00 | $5.10 | $0.00 |
| 2023 | 17386 | NWA - Noxious Weed Assessment | $2.15 | $2.15 | $0.00 | $0.00 | $4.30 | $0.00 |
| 2023 | 17386 | TOTAL: | $2120.35 | $2120.24 | $0.00 | $0.00 | $4240.59 | $0.00 |
|
| 2023 | 17386 | $2120.35 | $2120.24 | $0.00 | $0.00 | $4240.59 | $0.00 |
Values
| (+) Improvement Homesite Value: | + | $0 | |
| (+) Improvement Non-Homesite Value: | + | $402,384 | |
| (+) Land Homesite Value: | + | $0 | |
| (+) Land Non-Homesite Value: | + | $152,325 | |
| (+) Curr Use (HS): | + | $0 | $0 |
| (+) Curr Use (NHS): | + | $0 | $0 |
| | | -------------------------- | |
| (=) Market Value: | = | $554,709 | |
| (–) Productivity Loss: | – | $0 | |
| | | -------------------------- | |
| (=) Subtotal: | = | $554,709 | |
| (+) Senior Appraised Value: | + | $0 | |
| (+) Non-Senior Appraised Value: | + | $554,709 | |
| | | -------------------------- | |
| (=) Total Appraised Value: | = | $554,709 | |
| (–) Senior Exemption Loss: | – | $0 | |
| (–) Exemption Loss: | – | $0 | |
| | | -------------------------- | |
| (=) Taxable Value: | = | $554,709 | |
Taxing Jurisdiction
| Owner: | CLAUDETTE B DIETLIN TRUST | | |
| % Ownership: | 100.0000000000% | | |
| Total Value: | $554,709 | | |
| Tax Area: | 0110 - C-50F1E1H2 |
| CE | COUNTY CURRENT EXPENSE | 0.9034619479 | $554,709 | $554,709 | $501.16 | | |
| CNTYDD | DEVELOPMENTAL DISABILITIES | 0.0052121823 | $554,709 | $554,709 | $2.89 | | |
| CNTYVET | VETERANS RELIEF | 0.0052777810 | $554,709 | $554,709 | $2.93 | | |
| MENTAL | MENTAL HEALTH | 0.0052121823 | $554,709 | $554,709 | $2.89 | | |
| PTGEN | CITY OF PT GENERAL | 0.8551967795 | $554,709 | $554,709 | $474.39 | | |
| PTLLL | CITY OF PT - LIBRARY LID LIFT | 0.4010114288 | $554,709 | $554,709 | $222.44 | | |
| PTMVBOND | CITY OF PT MV BOND | 0.0484717981 | $554,709 | $554,709 | $26.89 | | |
| HOSP2CASH | HOSP DIST #2 GENERAL | 0.0536075306 | $554,709 | $554,709 | $29.74 | | |
| SCH50BOND | SCHOOL DIST #50 BOND 2016 | 0.5377451389 | $554,709 | $554,709 | $298.29 | | |
| SCH50CP | SCHOOL DIST #50 CAP PROJ | 0.4573475088 | $554,709 | $554,709 | $253.69 | | |
| SCH50MO | SCHOOL DIST #50 EP & O | 0.8262822886 | $554,709 | $554,709 | $458.35 | | |
| CONSERVE | CONSERVATION FUTURES | 0.0275621078 | $554,709 | $554,709 | $15.29 | | |
| EMS1 | FIRE DIST #1 EMS | 0.4679948282 | $554,709 | $554,709 | $259.60 | | |
| FD1 | FIRE DIST #1 GENERAL | 1.2171942929 | $554,709 | $554,709 | $675.19 | | |
| PORTPT | PORT OF PT GENERAL | 0.1134941229 | $554,709 | $554,709 | $62.96 | | |
| PORTPTIDD | PORT OF PT IDD 2019 | 0.2577346692 | $554,709 | $554,709 | $142.97 | | |
| PUD1 | PUD #1 GENERAL | 0.0597888892 | $554,709 | $554,709 | $33.17 | | |
| STATE | STATE SCHOOL PART 1 | 1.4940692947 | $554,709 | $554,709 | $828.77 | | |
| STATE2 | STATE SCHOOL PART 2 | 0.8050170049 | $554,709 | $554,709 | $446.55 | | |
| | Total Tax Rate: | 8.5416817766 | | | | | |
| | | | | Taxes w/Current Exemptions: | $4,738.16 | | |
| | | | | Taxes w/o Exemptions: | $4,738.16 | | |
Improvement / Building
| Improvement #1: | Residential Bldg | State Code: | 11 | 1480.0 sqft | Value: | $402,384 |
| Bathrooms (#): | 2 (FULL) | Bedrooms (#): | 3 | | Exterior Wall: | SI/ST | Floor Construction: | FRAME | | Foundation: | CONPR | Heating/Cooling: | HPUMP | | Inside Verify: | YES-FIX | Roof Cover: | COMP |
|
| | Type | Description | Class CD | Sub Class CD | Year Built | Area |
| | MA | Main Area | 4 | 1S | 2002 | 1480.0 |
| | HWPOR | House Wood Porch | 4 | 1S | 2002 | 60.0 |
| | HDECK | House Deck | 4 | 1S | 2002 | 264.0 |
| | GATT | House Attached Garage | 4 | 1S | 2002 | 552.0 |
| | PATIO | House Patio | 4 | 1S | 2002 | 72.0 |
Sketch
Property Image
Land
| 1 | 6210-1185L | | 0.0000 | 0.00 | 0.00 | 0.00 | 1.00 | $135,000 | $0 |
| 2 | 6210-1185L | | 0.0000 | 0.00 | 0.00 | 0.00 | 1.00 | $17,325 | $0 |
Roll Value History
| 2026 | N/A | N/A | N/A | N/A | N/A |
| 2025 | $402,384 | $152,325 | $0 | $554,709 | $554,709 |
| 2024 | $402,115 | $141,593 | $0 | $543,708 | $543,708 |
| 2023 | $384,632 | $129,850 | $0 | $514,482 | $514,482 |
| 2022 | $384,632 | $113,200 | $0 | $497,832 | $497,832 |
Deed and Sales History
| 1 | 02/08/2019 | QCD | Quit Claim Deed | CLAUDETTE B DIETLIN | CLAUDETTE B DIETLIN TRUST | | | | 131801 | |
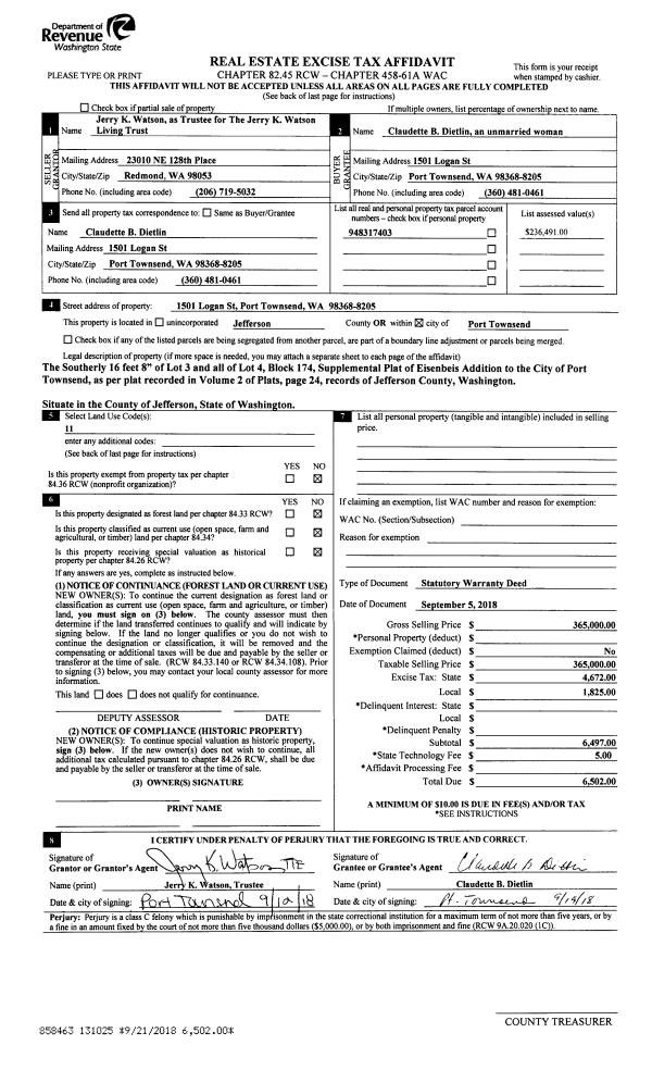
| 2 | 09/05/2018 | SWD | Statutory Warranty Deed | JERRY WATSON LIVING TRUST | CLAUDETTE B DIETLIN | | | $365,000.00 | 131025 | |
| 3 | 02/27/2018 | QCD | Quit Claim Deed | JERRY K WATSON | JERRY WATSON LIVING TRUST | | | | 129626 | |
| 4 | 08/29/2002 | SWD | Statutory Warranty Deed | JACK L HENSEL | JERRY K WATSON | 0 | 0 | $170,000.00 | 95459 | 0 |
| 5 | 09/17/2001 | BLA | Boundary Line Adjustment | HENSEL, JACK L/MARSHA A | HENSEL, JACK L/MARSHA A | 0 | 0 | $0.00 | 93140 | 0 |
Payout Agreement
| No payout information available.. |