Property
Account |
| Property ID: | 27967 | Abbreviated Legal Description: | EISENBEIS ADDITION BLK 184 LOT 4(LS N6.20') W/N33' VAC 11TH ST ADJ SUBJ TO EASE |
| Parcel # / Geo ID: | 948318404 | Agent Code: | |
| Type: | Real | | |
| Tax Area: | 0110 - C-50F1E1H2 | Land Use Code | 11 |
| Open Space: | N | DFL | N |
| Historic Property: | N | Remodel Property: | N |
| Multi-Family Redevelopment: | N | | |
| Township: | 30N | Section: | 10 |
| Range: | 1W |
Location |
| Address: | 1105 ROSECRANS ST PORT TOWNSEND, WA 98368 | Mapsco: | 034/043 |
| Neighborhood: | EISENBEIS, OC HASTINGS & SUPP, PINKS LESS VICTORIAN VILLAGE | Map ID: | |
| Neighborhood CD: | 6210 |
Owner |
| Name: | LAWRENCE S & NANCY G JACKSON | Owner ID: | 100543 |
| Mailing Address: | 1105 ROSECRANS ST PORT TOWNSEND, WA 98368-2315 | % Ownership: | 100.0000000000% |
| | | Exemptions: | |
Pay Tax Due
Select the appropriate checkbox next to the year to be paid. Multiple years may be selected.
*Convenience Fee not included
Taxes and Assessment Details
Property Tax Information as of
03/12/2026
Click on "Statement Details" to expand or collapse a tax statement.
* Please enter a valid date ** Please enter a valid date *
Statement Details |
| 2026 | 17318 | STATE - STATE LEVY (SCHOOL) | $640.65 | $640.65 | $0.00 | $0.00 | $0.00 | $1281.30 |
| 2026 | 17318 | COUNTY - COUNTY LEVIES (CE, DD, VET, MH) | $256.13 | $256.12 | $0.00 | $0.00 | $0.00 | $512.25 |
| 2026 | 17318 | CONSERVE - CONSERVATION FUTURES | $7.68 | $7.68 | $0.00 | $0.00 | $0.00 | $15.36 |
| 2026 | 17318 | CITYPT - CITY OF PT | $363.57 | $363.54 | $0.00 | $0.00 | $0.00 | $727.11 |
| 2026 | 17318 | PORTPT - PORT DISTRICT | $103.45 | $103.44 | $0.00 | $0.00 | $0.00 | $206.89 |
| 2026 | 17318 | PUD1 - PUD #1 | $16.66 | $16.66 | $0.00 | $0.00 | $0.00 | $33.32 |
| 2026 | 17318 | HD2 - HOSP DIST #2 | $14.94 | $14.94 | $0.00 | $0.00 | $0.00 | $29.88 |
| 2026 | 17318 | SD50 - SCHOOL DIST #50 | $507.54 | $507.53 | $0.00 | $0.00 | $0.00 | $1015.07 |
| 2026 | 17318 | FD1 - FIRE DISTRICT #1 | $339.18 | $339.18 | $0.00 | $0.00 | $0.00 | $678.36 |
| 2026 | 17318 | EMS1 - FIRE DIST #1 EMS | $130.41 | $130.41 | $0.00 | $0.00 | $0.00 | $260.82 |
| 2026 | 17318 | JCCD - JC Conservation District | $2.55 | $2.55 | $0.00 | $0.00 | $0.00 | $5.10 |
| 2026 | 17318 | NWA - Noxious Weed Assessment | $2.98 | $2.97 | $0.00 | $0.00 | $0.00 | $5.95 |
| 2026 | 17318 | WAT - Clean Water District | $13.00 | $13.00 | $0.00 | $0.00 | $0.00 | $26.00 |
| 2026 | 17318 | TOTAL: | $2398.74 | $2398.67 | $0.00 | $0.00 | $0.00 | $4797.41 |
|
| 2026 | 17318 | $2398.74 | $2398.67 | $0.00 | $0.00 | $0.00 | $4797.41 |
Statement Details |
| 2025 | 17373 | STATE - STATE LEVY (SCHOOL) | $629.40 | $629.39 | $0.00 | $0.00 | $1258.79 | $0.00 |
| 2025 | 17373 | COUNTY - COUNTY LEVIES (CE, DD, VET, MH) | $247.51 | $247.50 | $0.00 | $0.00 | $495.01 | $0.00 |
| 2025 | 17373 | CONSERVE - CONSERVATION FUTURES | $7.42 | $7.42 | $0.00 | $0.00 | $14.84 | $0.00 |
| 2025 | 17373 | CITYPT - CITY OF PT | $356.94 | $356.92 | $0.00 | $0.00 | $713.86 | $0.00 |
| 2025 | 17373 | PORTPT - PORT DISTRICT | $101.00 | $100.99 | $0.00 | $0.00 | $201.99 | $0.00 |
| 2025 | 17373 | PUD1 - PUD #1 | $16.20 | $16.19 | $0.00 | $0.00 | $32.39 | $0.00 |
| 2025 | 17373 | HD2 - HOSP DIST #2 | $14.44 | $14.44 | $0.00 | $0.00 | $28.88 | $0.00 |
| 2025 | 17373 | SD50 - SCHOOL DIST #50 | $459.98 | $459.98 | $0.00 | $0.00 | $919.96 | $0.00 |
| 2025 | 17373 | FD1 - FIRE DISTRICT #1 | $326.61 | $326.61 | $0.00 | $0.00 | $653.22 | $0.00 |
| 2025 | 17373 | EMS1 - FIRE DIST #1 EMS | $125.63 | $125.62 | $0.00 | $0.00 | $251.25 | $0.00 |
| 2025 | 17373 | JCCD - JC Conservation District | $2.55 | $2.55 | $0.00 | $0.00 | $5.10 | $0.00 |
| 2025 | 17373 | NWA - Noxious Weed Assessment | $2.15 | $2.15 | $0.00 | $0.00 | $4.30 | $0.00 |
| 2025 | 17373 | WAT - Clean Water District | $13.00 | $13.00 | $0.00 | $0.00 | $26.00 | $0.00 |
| 2025 | 17373 | TOTAL: | $2302.83 | $2302.76 | $0.00 | $0.00 | $4605.59 | $0.00 |
|
| 2025 | 17373 | $2302.83 | $2302.76 | $0.00 | $0.00 | $4605.59 | $0.00 |
Statement Details |
| 2024 | 17407 | STATE - STATE LEVY (SCHOOL) | $574.33 | $574.33 | $0.00 | $0.00 | $1148.66 | $0.00 |
| 2024 | 17407 | COUNTY - COUNTY LEVIES (CE, DD, VET, MH) | $245.77 | $245.76 | $0.00 | $0.00 | $491.53 | $0.00 |
| 2024 | 17407 | CONSERVE - CONSERVATION FUTURES | $7.37 | $7.37 | $0.00 | $0.00 | $14.74 | $0.00 |
| 2024 | 17407 | CITYPT - CITY OF PT | $351.17 | $351.15 | $0.00 | $0.00 | $702.32 | $0.00 |
| 2024 | 17407 | PORTPT - PORT DISTRICT | $101.52 | $101.50 | $0.00 | $0.00 | $203.02 | $0.00 |
| 2024 | 17407 | PUD1 - PUD #1 | $16.15 | $16.14 | $0.00 | $0.00 | $32.29 | $0.00 |
| 2024 | 17407 | HD2 - HOSP DIST #2 | $14.34 | $14.34 | $0.00 | $0.00 | $28.68 | $0.00 |
| 2024 | 17407 | SD50 - SCHOOL DIST #50 | $464.67 | $464.65 | $0.00 | $0.00 | $929.32 | $0.00 |
| 2024 | 17407 | FD1 - FIRE DISTRICT #1 | $324.96 | $324.95 | $0.00 | $0.00 | $649.91 | $0.00 |
| 2024 | 17407 | EMS1 - FIRE DIST #1 EMS | $124.12 | $124.12 | $0.00 | $0.00 | $248.24 | $0.00 |
| 2024 | 17407 | JCCD - JC Conservation District | $2.55 | $2.55 | $0.00 | $0.00 | $5.10 | $0.00 |
| 2024 | 17407 | NWA - Noxious Weed Assessment | $2.15 | $2.15 | $0.00 | $0.00 | $4.30 | $0.00 |
| 2024 | 17407 | WAT - Clean Water District | $12.50 | $12.50 | $0.00 | $0.00 | $25.00 | $0.00 |
| 2024 | 17407 | TOTAL: | $2241.60 | $2241.51 | $0.00 | $0.00 | $4483.11 | $0.00 |
|
| 2024 | 17407 | $2241.60 | $2241.51 | $0.00 | $0.00 | $4483.11 | $0.00 |
Statement Details |
| 2023 | 17431 | STATE - STATE LEVY (SCHOOL) | $563.81 | $563.79 | $0.00 | $0.00 | $1127.60 | $0.00 |
| 2023 | 17431 | COUNTY - COUNTY LEVIES (CE, DD, VET, MH) | $246.04 | $246.01 | $0.00 | $0.00 | $492.05 | $0.00 |
| 2023 | 17431 | CONSERVE - CONSERVATION FUTURES | $7.38 | $7.37 | $0.00 | $0.00 | $14.75 | $0.00 |
| 2023 | 17431 | CITYPT - CITY OF PT | $347.73 | $347.71 | $0.00 | $0.00 | $695.44 | $0.00 |
| 2023 | 17431 | PORTPT - PORT DISTRICT | $103.64 | $103.64 | $0.00 | $0.00 | $207.28 | $0.00 |
| 2023 | 17431 | PUD1 - PUD #1 | $16.31 | $16.31 | $0.00 | $0.00 | $32.62 | $0.00 |
| 2023 | 17431 | HD2 - HOSP DIST #2 | $14.37 | $14.35 | $0.00 | $0.00 | $28.72 | $0.00 |
| 2023 | 17431 | SD50 - SCHOOL DIST #50 | $447.39 | $447.38 | $0.00 | $0.00 | $894.77 | $0.00 |
| 2023 | 17431 | FD1 - FIRE DISTRICT #1 | $202.68 | $202.67 | $0.00 | $0.00 | $405.35 | $0.00 |
| 2023 | 17431 | EMS1 - FIRE DIST #1 EMS | $86.22 | $86.21 | $0.00 | $0.00 | $172.43 | $0.00 |
| 2023 | 17431 | JCCD - JC Conservation District | $2.55 | $2.55 | $0.00 | $0.00 | $5.10 | $0.00 |
| 2023 | 17431 | NWA - Noxious Weed Assessment | $2.15 | $2.15 | $0.00 | $0.00 | $4.30 | $0.00 |
| 2023 | 17431 | WAT - Clean Water District | $12.00 | $12.00 | $0.00 | $0.00 | $24.00 | $0.00 |
| 2023 | 17431 | TOTAL: | $2052.27 | $2052.14 | $0.00 | $0.00 | $4104.41 | $0.00 |
|
| 2023 | 17431 | $2052.27 | $2052.14 | $0.00 | $0.00 | $4104.41 | $0.00 |
Values
| (+) Improvement Homesite Value: | + | $0 | |
| (+) Improvement Non-Homesite Value: | + | $396,061 | |
| (+) Land Homesite Value: | + | $0 | |
| (+) Land Non-Homesite Value: | + | $161,250 | |
| (+) Curr Use (HS): | + | $0 | $0 |
| (+) Curr Use (NHS): | + | $0 | $0 |
| | | -------------------------- | |
| (=) Market Value: | = | $557,311 | |
| (–) Productivity Loss: | – | $0 | |
| | | -------------------------- | |
| (=) Subtotal: | = | $557,311 | |
| (+) Senior Appraised Value: | + | $0 | |
| (+) Non-Senior Appraised Value: | + | $557,311 | |
| | | -------------------------- | |
| (=) Total Appraised Value: | = | $557,311 | |
| (–) Senior Exemption Loss: | – | $0 | |
| (–) Exemption Loss: | – | $0 | |
| | | -------------------------- | |
| (=) Taxable Value: | = | $557,311 | |
Taxing Jurisdiction
| Owner: | LAWRENCE S & NANCY G JACKSON | | |
| % Ownership: | 100.0000000000% | | |
| Total Value: | $557,311 | | |
| Tax Area: | 0110 - C-50F1E1H2 |
| CE | COUNTY CURRENT EXPENSE | 0.9034619479 | $557,311 | $557,311 | $503.51 | | |
| CNTYDD | DEVELOPMENTAL DISABILITIES | 0.0052121823 | $557,311 | $557,311 | $2.90 | | |
| CNTYVET | VETERANS RELIEF | 0.0052777810 | $557,311 | $557,311 | $2.94 | | |
| MENTAL | MENTAL HEALTH | 0.0052121823 | $557,311 | $557,311 | $2.90 | | |
| PTGEN | CITY OF PT GENERAL | 0.8551967795 | $557,311 | $557,311 | $476.61 | | |
| PTLLL | CITY OF PT - LIBRARY LID LIFT | 0.4010114288 | $557,311 | $557,311 | $223.49 | | |
| PTMVBOND | CITY OF PT MV BOND | 0.0484717981 | $557,311 | $557,311 | $27.01 | | |
| HOSP2CASH | HOSP DIST #2 GENERAL | 0.0536075306 | $557,311 | $557,311 | $29.88 | | |
| SCH50BOND | SCHOOL DIST #50 BOND 2016 | 0.5377451389 | $557,311 | $557,311 | $299.69 | | |
| SCH50CP | SCHOOL DIST #50 CAP PROJ | 0.4573475088 | $557,311 | $557,311 | $254.88 | | |
| SCH50MO | SCHOOL DIST #50 EP & O | 0.8262822886 | $557,311 | $557,311 | $460.50 | | |
| CONSERVE | CONSERVATION FUTURES | 0.0275621078 | $557,311 | $557,311 | $15.36 | | |
| EMS1 | FIRE DIST #1 EMS | 0.4679948282 | $557,311 | $557,311 | $260.82 | | |
| FD1 | FIRE DIST #1 GENERAL | 1.2171942929 | $557,311 | $557,311 | $678.36 | | |
| PORTPT | PORT OF PT GENERAL | 0.1134941229 | $557,311 | $557,311 | $63.25 | | |
| PORTPTIDD | PORT OF PT IDD 2019 | 0.2577346692 | $557,311 | $557,311 | $143.64 | | |
| PUD1 | PUD #1 GENERAL | 0.0597888892 | $557,311 | $557,311 | $33.32 | | |
| STATE | STATE SCHOOL PART 1 | 1.4940692947 | $557,311 | $557,311 | $832.66 | | |
| STATE2 | STATE SCHOOL PART 2 | 0.8050170049 | $557,311 | $557,311 | $448.64 | | |
| | Total Tax Rate: | 8.5416817766 | | | | | |
| | | | | Taxes w/Current Exemptions: | $4,760.36 | | |
| | | | | Taxes w/o Exemptions: | $4,760.36 | | |
Improvement / Building
| Improvement #1: | Residential Bldg | State Code: | 11 | 1784.0 sqft | Value: | $396,061 |
| Bathrooms (#): | 2 (FULL) | Bathrooms (#): | 1 (HALF) | | Bedrooms (#): | 3 | Exterior Wall: | SI/ST | | Fireplace: | SIN 1-AVG | Floor Construction: | FRAME | | Foundation: | CONPR | Heating/Cooling: | HPUMP | | Roof Cover: | COMP |   |   |
|
| | Type | Description | Class CD | Sub Class CD | Year Built | Area |
| | MA | Main Area | 4- | 1S | 1976 | 1784.0 |
| | HCPOR | House Concrete Porch | 4 | 1S | 1976 | 56.0 |
| | PATIO | House Patio | 4 | 1S | 1976 | 136.0 |
| | GATT | House Attached Garage | 4 | 1S | 1976 | 528.0 |
| | HDECK | House Deck | 4 | 1S | 1976 | 185.9 |
| | SHED | Shed (Table Not Dep) | 4 | 1S | 1976 | 160.0 |
| | CONCD | Concrete Drive | 4 | 1S | 1976 | 1000.0 |
Sketch
Property Image
Land
| 1 | 6210-1185L | | 0.0000 | 0.00 | 0.00 | 0.00 | 1.00 | $135,000 | $0 |
| 2 | 6210-1185L | | 0.0000 | 0.00 | 0.00 | 0.00 | 1.00 | $26,250 | $0 |
Roll Value History
| 2026 | N/A | N/A | N/A | N/A | N/A |
| 2025 | $396,061 | $161,250 | $0 | $557,311 | $557,311 |
| 2024 | $375,300 | $149,625 | $0 | $524,925 | $524,925 |
| 2023 | $358,983 | $137,500 | $0 | $496,483 | $496,483 |
| 2022 | $358,983 | $120,000 | $0 | $478,983 | $478,983 |
Deed and Sales History
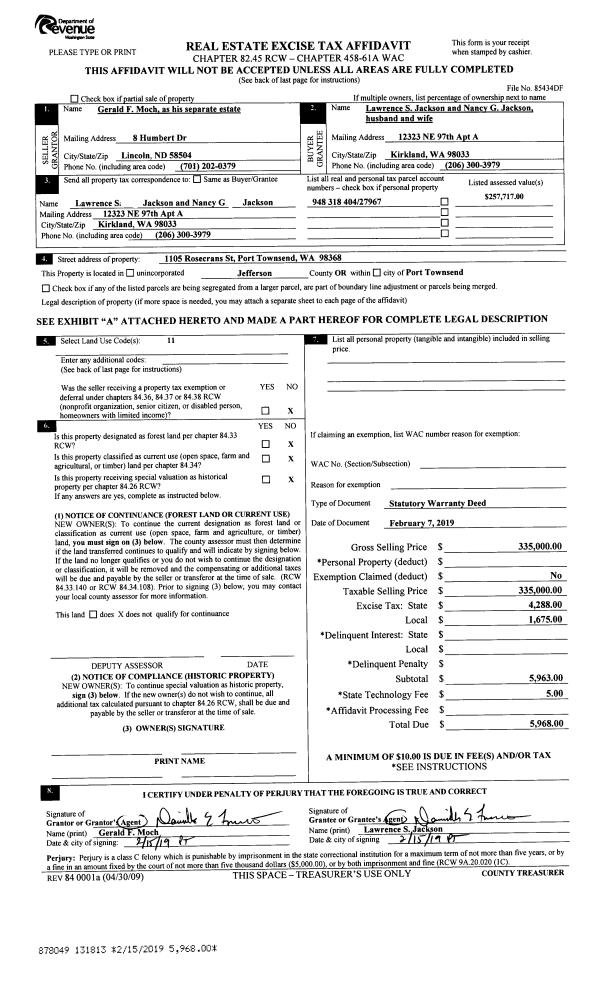
| 1 | 02/07/2019 | SWD | Statutory Warranty Deed | GERALD F MOCH | LAWRENCE S & NANCY G JACKSON | | | $335,000.00 | 131813 | |
| 2 | 08/24/2001 | SWD | Statutory Warranty Deed | HENSEL, JACK L | MOCH, GERALD F | 0 | 0 | $132,000.00 | 93001 | 0 |
| 3 | 04/28/1998 | QCD | Quit Claim Deed | HENSEL, MARSHA | HENSEL, JACK L | 0 | 0 | $0.00 | 84438 | 0 |
| 4 | 04/27/1998 | SWD | Statutory Warranty Deed | JAVOR, HENRY R/BETTY J | HENSEL, JACK L | 0 | 0 | $75,000.00 | 84326 | 0 |
| 5 | 06/28/1994 | SWD | Statutory Warranty Deed | CALDWELL, WAYNE C/JOAN M | JAVOR, HENRY R/BETTY J | 0 | 0 | $91,000.00 | 74596 | 0 |
Payout Agreement
| No payout information available.. |