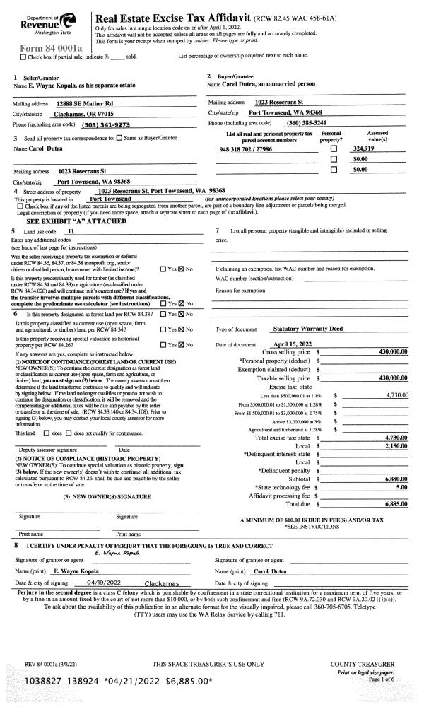
Property
Account |
| Property ID: | 27986 | Abbreviated Legal Description: | EISENBEIS ADDITION BLK 187 LOTS 1(S6.21'), 2(ALL), 3(LS S29.61') W/S EASE |
| Parcel # / Geo ID: | 948318702 | Agent Code: | |
| Type: | Real | | |
| Tax Area: | 0110 - C-50F1E1H2 | Land Use Code | 11 |
| Open Space: | N | DFL | N |
| Historic Property: | N | Remodel Property: | N |
| Multi-Family Redevelopment: | N | | |
| Township: | 30N | Section: | 10 |
| Range: | 1W |
Location |
| Address: | 1023 ROSECRANS ST PORT TOWNSEND, WA 98368 | Mapsco: | 035/010 |
| Neighborhood: | EISENBEIS, OC HASTINGS & SUPP, PINKS LESS VICTORIAN VILLAGE | Map ID: | |
| Neighborhood CD: | 6210 |
Owner |
| Name: | CAROL DUTRA | Owner ID: | 44810 |
| Mailing Address: | 1023 ROSECRANS ST PORT TOWNSEND, WA 98368-2314 | % Ownership: | 100.0000000000% |
| | | Exemptions: | |
Pay Tax Due
There is currently No Amount Due on this property.
Taxes and Assessment Details
Property Tax Information as of
03/10/2026
Click on "Statement Details" to expand or collapse a tax statement.
* Please enter a valid date ** Please enter a valid date *
Statement Details |
| | TOTAL: | $0.00 | $0.00 | $0.00 | $0.00 | $0.00 | $0.00 |
|
| | $0.00 | $0.00 | $0.00 | $0.00 | $0.00 | $0.00 |
Values
| (+) Improvement Homesite Value: | + | $0 | |
| (+) Improvement Non-Homesite Value: | + | $289,485 | |
| (+) Land Homesite Value: | + | $0 | |
| (+) Land Non-Homesite Value: | + | $161,250 | |
| (+) Curr Use (HS): | + | $0 | $0 |
| (+) Curr Use (NHS): | + | $0 | $0 |
| | | -------------------------- | |
| (=) Market Value: | = | $450,735 | |
| (–) Productivity Loss: | – | $0 | |
| | | -------------------------- | |
| (=) Subtotal: | = | $450,735 | |
| (+) Senior Appraised Value: | + | $0 | |
| (+) Non-Senior Appraised Value: | + | $450,735 | |
| | | -------------------------- | |
| (=) Total Appraised Value: | = | $450,735 | |
| (–) Senior Exemption Loss: | – | $0 | |
| (–) Exemption Loss: | – | $0 | |
| | | -------------------------- | |
| (=) Taxable Value: | = | $450,735 | |
Taxing Jurisdiction
| Owner: | CAROL DUTRA | | |
| % Ownership: | 100.0000000000% | | |
| Total Value: | $450,735 | | |
| Tax Area: | 0110 - C-50F1E1H2 |
| CE | COUNTY CURRENT EXPENSE | 0.9034619479 | $450,735 | $450,735 | $407.22 | | |
| CNTYDD | DEVELOPMENTAL DISABILITIES | 0.0052121823 | $450,735 | $450,735 | $2.35 | | |
| CNTYVET | VETERANS RELIEF | 0.0052777810 | $450,735 | $450,735 | $2.38 | | |
| MENTAL | MENTAL HEALTH | 0.0052121823 | $450,735 | $450,735 | $2.35 | | |
| PTGEN | CITY OF PT GENERAL | 0.8551967795 | $450,735 | $450,735 | $385.47 | | |
| PTLLL | CITY OF PT - LIBRARY LID LIFT | 0.4010114288 | $450,735 | $450,735 | $180.75 | | |
| PTMVBOND | CITY OF PT MV BOND | 0.0484717981 | $450,735 | $450,735 | $21.85 | | |
| HOSP2CASH | HOSP DIST #2 GENERAL | 0.0536075306 | $450,735 | $450,735 | $24.16 | | |
| SCH50BOND | SCHOOL DIST #50 BOND 2016 | 0.5377451389 | $450,735 | $450,735 | $242.38 | | |
| SCH50CP | SCHOOL DIST #50 CAP PROJ | 0.4573475088 | $450,735 | $450,735 | $206.14 | | |
| SCH50MO | SCHOOL DIST #50 EP & O | 0.8262822886 | $450,735 | $450,735 | $372.43 | | |
| CONSERVE | CONSERVATION FUTURES | 0.0275621078 | $450,735 | $450,735 | $12.42 | | |
| EMS1 | FIRE DIST #1 EMS | 0.4679948282 | $450,735 | $450,735 | $210.94 | | |
| FD1 | FIRE DIST #1 GENERAL | 1.2171942929 | $450,735 | $450,735 | $548.63 | | |
| PORTPT | PORT OF PT GENERAL | 0.1134941229 | $450,735 | $450,735 | $51.16 | | |
| PORTPTIDD | PORT OF PT IDD 2019 | 0.2577346692 | $450,735 | $450,735 | $116.17 | | |
| PUD1 | PUD #1 GENERAL | 0.0597888892 | $450,735 | $450,735 | $26.95 | | |
| STATE | STATE SCHOOL PART 1 | 1.4940692947 | $450,735 | $450,735 | $673.43 | | |
| STATE2 | STATE SCHOOL PART 2 | 0.8050170049 | $450,735 | $450,735 | $362.85 | | |
| | Total Tax Rate: | 8.5416817766 | | | | | |
| | | | | Taxes w/Current Exemptions: | $3,850.03 | | |
| | | | | Taxes w/o Exemptions: | $3,850.03 | | |
Improvement / Building
| Improvement #1: | Residential Bldg | State Code: | 11 | 1056.0 sqft | Value: | $289,485 |
| Bathrooms (#): | 2 (FULL) | Bedrooms (#): | 3 | | Exterior Wall: | SI/ST | Fireplace: | SIN 1-GOOD | | Floor Construction: | FRAME | Foundation: | CONPR | | Heating/Cooling: | ELBB | Inside Verify: | YES-FIX | | Roof Cover: | COMP |   |   |
|
| | Type | Description | Class CD | Sub Class CD | Year Built | Area |
| | MA | Main Area | 4+ | 1S | 1977 | 1056.0 |
| | HCPOR | House Concrete Porch | 4 | 1S | 1977 | 96.0 |
| | GATT | House Attached Garage | 4 | 1S | 1977 | 480.0 |
Sketch
| No sketches available for this property. |
Property Image
Land
| 1 | 6210-1185L | Standard Lot (No View) | 0.0000 | 0.00 | 0.00 | 0.00 | 1.00 | $135,000 | $0 |
| 2 | 6210-1185L | Standard Lot (No View) | 0.0000 | 0.00 | 0.00 | 0.00 | 1.00 | $26,250 | $0 |
Roll Value History
| 2026 | N/A | N/A | N/A | N/A | N/A |
| 2025 | $289,485 | $161,250 | $0 | $450,735 | $450,735 |
| 2024 | $287,840 | $149,625 | $0 | $437,465 | $437,465 |
| 2023 | $275,326 | $137,500 | $0 | $412,826 | $412,826 |
| 2022 | $275,326 | $120,000 | $0 | $395,326 | $395,326 |
Deed and Sales History
| 1 | 04/15/2022 | SWD | Statutory Warranty Deed | E WAYNE KOPALA | CAROL DUTRA | | | $430,000.00 | 138924 | |
| 2 | 02/01/2006 | QCD | Quit Claim Deed | KOPALA, JUDITH | KOPALA, E WAYNE | 0 | 0 | $0.00 | 105947 | 0 |
| 3 | 01/25/2006 | SWD | Statutory Warranty Deed | FLEURY, MICHAEL & SANDRA | KOPALA, E WAYNE | 0 | 0 | $232,000.00 | 105946 | 0 |
| 4 | 09/29/2005 | SWD | Statutory Warranty Deed | AULT, DONOVAL & CATHERINE | FLEURY, MICHAEL & SANDY | 0 | 0 | $215,000.00 | 104982 | 0 |
| 5 | 09/23/2003 | SWD | Statutory Warranty Deed | MCCULLOUGH, JAMES/KRISTIN | AULT JR, DONOVAN/CATHERINE L | 0 | 0 | $135,000.00 | 98374 | 0 |
| 6 | 10/07/2002 | SWD | Statutory Warranty Deed | DOVER, DAVID & JESSIE | MCCULLOUGH, JAMES TRACY & KRIS | 0 | 0 | $95,000.00 | 95695 | 0 |
| 7 | 06/03/2002 | QCD | Quit Claim Deed | ROBERT G HARMS | DAVID C/JESSIE DOVER | 0 | 0 | $0.00 | 95325 | 0 |
| 8 | 03/14/2000 | QCD | Quit Claim Deed | HARMS, ANNA | HARMS, ROBERT G | 0 | 0 | $0.00 | 89173 | 0 |
| 9 | 06/27/1997 | SWD | Statutory Warranty Deed | DOVER, DAVID C/JESSIE | HARMS, ROBERT G/ANNA | 0 | 0 | $71,500.00 | 82244 | 0 |
Payout Agreement
| No payout information available.. |