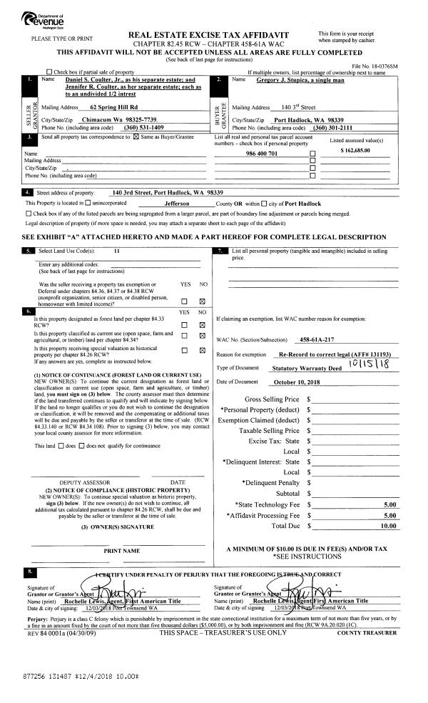
Property
Account |
| Property ID: | 28003 | Abbreviated Legal Description: | EISENBEIS ADDITION BLK 190 LOTS 1 & 2(LS E50') |
| Parcel # / Geo ID: | 948319001 | Agent Code: | |
| Type: | Real | | |
| Tax Area: | 0110 - C-50F1E1H2 | Land Use Code | 11 |
| Open Space: | N | DFL | N |
| Historic Property: | N | Remodel Property: | N |
| Multi-Family Redevelopment: | N | | |
| Township: | 30N | Section: | 10 |
| Range: | 1W |
Location |
| Address: | 938 GISE ST 940 PORT TOWNSEND, WA 98368 | Mapsco: | 035/027 |
| Neighborhood: | EISENBEIS, OC HASTINGS & SUPP, PINKS LESS VICTORIAN VILLAGE | Map ID: | |
| Neighborhood CD: | 6210 |
Owner |
| Name: | LINDA M YAKUSH | Owner ID: | 30917 |
| Mailing Address: | 938 GISE ST PORT TOWNSEND, WA 98368-2916 | % Ownership: | 100.0000000000% |
| | | Exemptions: | |
Pay Tax Due
Select the appropriate checkbox next to the year to be paid. Multiple years may be selected.
*Convenience Fee not included
Taxes and Assessment Details
Property Tax Information as of
03/10/2026
Click on "Statement Details" to expand or collapse a tax statement.
* Please enter a valid date ** Please enter a valid date *
Statement Details |
| 2026 | 17353 | STATE - STATE LEVY (SCHOOL) | $700.25 | $700.25 | $0.00 | $0.00 | $0.00 | $1400.50 |
| 2026 | 17353 | COUNTY - COUNTY LEVIES (CE, DD, VET, MH) | $279.97 | $279.95 | $0.00 | $0.00 | $0.00 | $559.92 |
| 2026 | 17353 | CONSERVE - CONSERVATION FUTURES | $8.40 | $8.39 | $0.00 | $0.00 | $0.00 | $16.79 |
| 2026 | 17353 | CITYPT - CITY OF PT | $397.39 | $397.37 | $0.00 | $0.00 | $0.00 | $794.76 |
| 2026 | 17353 | PORTPT - PORT DISTRICT | $113.07 | $113.07 | $0.00 | $0.00 | $0.00 | $226.14 |
| 2026 | 17353 | PUD1 - PUD #1 | $18.21 | $18.21 | $0.00 | $0.00 | $0.00 | $36.42 |
| 2026 | 17353 | HD2 - HOSP DIST #2 | $16.33 | $16.33 | $0.00 | $0.00 | $0.00 | $32.66 |
| 2026 | 17353 | SD50 - SCHOOL DIST #50 | $554.76 | $554.74 | $0.00 | $0.00 | $0.00 | $1109.50 |
| 2026 | 17353 | FD1 - FIRE DISTRICT #1 | $370.73 | $370.73 | $0.00 | $0.00 | $0.00 | $741.46 |
| 2026 | 17353 | EMS1 - FIRE DIST #1 EMS | $142.54 | $142.54 | $0.00 | $0.00 | $0.00 | $285.08 |
| 2026 | 17353 | JCCD - JC Conservation District | $2.55 | $2.55 | $0.00 | $0.00 | $0.00 | $5.10 |
| 2026 | 17353 | NWA - Noxious Weed Assessment | $2.98 | $2.97 | $0.00 | $0.00 | $0.00 | $5.95 |
| 2026 | 17353 | TOTAL: | $2607.18 | $2607.10 | $0.00 | $0.00 | $0.00 | $5214.28 |
|
| 2026 | 17353 | $2607.18 | $2607.10 | $0.00 | $0.00 | $0.00 | $5214.28 |
Statement Details |
| 2025 | 17408 | STATE - STATE LEVY (SCHOOL) | $585.39 | $585.38 | $0.00 | $0.00 | $1170.77 | $0.00 |
| 2025 | 17408 | COUNTY - COUNTY LEVIES (CE, DD, VET, MH) | $230.20 | $230.19 | $0.00 | $0.00 | $460.39 | $0.00 |
| 2025 | 17408 | CONSERVE - CONSERVATION FUTURES | $6.91 | $6.90 | $0.00 | $0.00 | $13.81 | $0.00 |
| 2025 | 17408 | CITYPT - CITY OF PT | $331.98 | $331.96 | $0.00 | $0.00 | $663.94 | $0.00 |
| 2025 | 17408 | PORTPT - PORT DISTRICT | $93.94 | $93.93 | $0.00 | $0.00 | $187.87 | $0.00 |
| 2025 | 17408 | PUD1 - PUD #1 | $15.07 | $15.06 | $0.00 | $0.00 | $30.13 | $0.00 |
| 2025 | 17408 | HD2 - HOSP DIST #2 | $13.43 | $13.43 | $0.00 | $0.00 | $26.86 | $0.00 |
| 2025 | 17408 | SD50 - SCHOOL DIST #50 | $427.82 | $427.81 | $0.00 | $0.00 | $855.63 | $0.00 |
| 2025 | 17408 | FD1 - FIRE DISTRICT #1 | $303.77 | $303.77 | $0.00 | $0.00 | $607.54 | $0.00 |
| 2025 | 17408 | EMS1 - FIRE DIST #1 EMS | $116.84 | $116.84 | $0.00 | $0.00 | $233.68 | $0.00 |
| 2025 | 17408 | JCCD - JC Conservation District | $2.55 | $2.55 | $0.00 | $0.00 | $5.10 | $0.00 |
| 2025 | 17408 | NWA - Noxious Weed Assessment | $2.15 | $2.15 | $0.00 | $0.00 | $4.30 | $0.00 |
| 2025 | 17408 | TOTAL: | $2130.05 | $2129.97 | $0.00 | $0.00 | $4260.02 | $0.00 |
|
| 2025 | 17408 | $2130.05 | $2129.97 | $0.00 | $0.00 | $4260.02 | $0.00 |
Statement Details |
| 2024 | 17442 | STATE - STATE LEVY (SCHOOL) | $533.59 | $533.57 | $0.00 | $0.00 | $1067.16 | $0.00 |
| 2024 | 17442 | COUNTY - COUNTY LEVIES (CE, DD, VET, MH) | $228.33 | $228.32 | $0.00 | $0.00 | $456.65 | $0.00 |
| 2024 | 17442 | CONSERVE - CONSERVATION FUTURES | $6.85 | $6.84 | $0.00 | $0.00 | $13.69 | $0.00 |
| 2024 | 17442 | CITYPT - CITY OF PT | $326.25 | $326.23 | $0.00 | $0.00 | $652.48 | $0.00 |
| 2024 | 17442 | PORTPT - PORT DISTRICT | $94.31 | $94.30 | $0.00 | $0.00 | $188.61 | $0.00 |
| 2024 | 17442 | PUD1 - PUD #1 | $15.00 | $14.99 | $0.00 | $0.00 | $29.99 | $0.00 |
| 2024 | 17442 | HD2 - HOSP DIST #2 | $13.32 | $13.32 | $0.00 | $0.00 | $26.64 | $0.00 |
| 2024 | 17442 | SD50 - SCHOOL DIST #50 | $431.69 | $431.68 | $0.00 | $0.00 | $863.37 | $0.00 |
| 2024 | 17442 | FD1 - FIRE DISTRICT #1 | $301.90 | $301.89 | $0.00 | $0.00 | $603.79 | $0.00 |
| 2024 | 17442 | EMS1 - FIRE DIST #1 EMS | $115.32 | $115.31 | $0.00 | $0.00 | $230.63 | $0.00 |
| 2024 | 17442 | JCCD - JC Conservation District | $2.55 | $2.55 | $0.00 | $0.00 | $5.10 | $0.00 |
| 2024 | 17442 | NWA - Noxious Weed Assessment | $2.15 | $2.15 | $0.00 | $0.00 | $4.30 | $0.00 |
| 2024 | 17442 | TOTAL: | $2071.26 | $2071.15 | $0.00 | $0.00 | $4142.41 | $0.00 |
|
| 2024 | 17442 | $2071.26 | $2071.15 | $0.00 | $0.00 | $4142.41 | $0.00 |
Statement Details |
| 2023 | 17466 | STATE - STATE LEVY (SCHOOL) | $537.05 | $537.04 | $0.00 | $0.00 | $1074.09 | $0.00 |
| 2023 | 17466 | COUNTY - COUNTY LEVIES (CE, DD, VET, MH) | $234.36 | $234.34 | $0.00 | $0.00 | $468.70 | $0.00 |
| 2023 | 17466 | CONSERVE - CONSERVATION FUTURES | $7.03 | $7.02 | $0.00 | $0.00 | $14.05 | $0.00 |
| 2023 | 17466 | CITYPT - CITY OF PT | $331.23 | $331.21 | $0.00 | $0.00 | $662.44 | $0.00 |
| 2023 | 17466 | PORTPT - PORT DISTRICT | $98.73 | $98.71 | $0.00 | $0.00 | $197.44 | $0.00 |
| 2023 | 17466 | PUD1 - PUD #1 | $15.54 | $15.53 | $0.00 | $0.00 | $31.07 | $0.00 |
| 2023 | 17466 | HD2 - HOSP DIST #2 | $13.68 | $13.67 | $0.00 | $0.00 | $27.35 | $0.00 |
| 2023 | 17466 | SD50 - SCHOOL DIST #50 | $426.16 | $426.15 | $0.00 | $0.00 | $852.31 | $0.00 |
| 2023 | 17466 | FD1 - FIRE DISTRICT #1 | $193.06 | $193.06 | $0.00 | $0.00 | $386.12 | $0.00 |
| 2023 | 17466 | EMS1 - FIRE DIST #1 EMS | $82.13 | $82.12 | $0.00 | $0.00 | $164.25 | $0.00 |
| 2023 | 17466 | JCCD - JC Conservation District | $2.55 | $2.55 | $0.00 | $0.00 | $5.10 | $0.00 |
| 2023 | 17466 | NWA - Noxious Weed Assessment | $2.15 | $2.15 | $0.00 | $0.00 | $4.30 | $0.00 |
| 2023 | 17466 | TOTAL: | $1943.67 | $1943.55 | $0.00 | $0.00 | $3887.22 | $0.00 |
|
| 2023 | 17466 | $1943.67 | $1943.55 | $0.00 | $0.00 | $3887.22 | $0.00 |
Values
| (+) Improvement Homesite Value: | + | $0 | |
| (+) Improvement Non-Homesite Value: | + | $347,156 | |
| (+) Land Homesite Value: | + | $0 | |
| (+) Land Non-Homesite Value: | + | $262,000 | |
| (+) Curr Use (HS): | + | $0 | $0 |
| (+) Curr Use (NHS): | + | $0 | $0 |
| | | -------------------------- | |
| (=) Market Value: | = | $609,156 | |
| (–) Productivity Loss: | – | $0 | |
| | | -------------------------- | |
| (=) Subtotal: | = | $609,156 | |
| (+) Senior Appraised Value: | + | $0 | |
| (+) Non-Senior Appraised Value: | + | $609,156 | |
| | | -------------------------- | |
| (=) Total Appraised Value: | = | $609,156 | |
| (–) Senior Exemption Loss: | – | $0 | |
| (–) Exemption Loss: | – | $0 | |
| | | -------------------------- | |
| (=) Taxable Value: | = | $609,156 | |
Taxing Jurisdiction
| Owner: | LINDA M YAKUSH | | |
| % Ownership: | 100.0000000000% | | |
| Total Value: | $609,156 | | |
| Tax Area: | 0110 - C-50F1E1H2 |
| CE | COUNTY CURRENT EXPENSE | 0.9034619479 | $609,156 | $609,156 | $550.35 | | |
| CNTYDD | DEVELOPMENTAL DISABILITIES | 0.0052121823 | $609,156 | $609,156 | $3.18 | | |
| CNTYVET | VETERANS RELIEF | 0.0052777810 | $609,156 | $609,156 | $3.21 | | |
| MENTAL | MENTAL HEALTH | 0.0052121823 | $609,156 | $609,156 | $3.18 | | |
| PTGEN | CITY OF PT GENERAL | 0.8551967795 | $609,156 | $609,156 | $520.95 | | |
| PTLLL | CITY OF PT - LIBRARY LID LIFT | 0.4010114288 | $609,156 | $609,156 | $244.28 | | |
| PTMVBOND | CITY OF PT MV BOND | 0.0484717981 | $609,156 | $609,156 | $29.53 | | |
| HOSP2CASH | HOSP DIST #2 GENERAL | 0.0536075306 | $609,156 | $609,156 | $32.66 | | |
| SCH50BOND | SCHOOL DIST #50 BOND 2016 | 0.5377451389 | $609,156 | $609,156 | $327.57 | | |
| SCH50CP | SCHOOL DIST #50 CAP PROJ | 0.4573475088 | $609,156 | $609,156 | $278.60 | | |
| SCH50MO | SCHOOL DIST #50 EP & O | 0.8262822886 | $609,156 | $609,156 | $503.33 | | |
| CONSERVE | CONSERVATION FUTURES | 0.0275621078 | $609,156 | $609,156 | $16.79 | | |
| EMS1 | FIRE DIST #1 EMS | 0.4679948282 | $609,156 | $609,156 | $285.08 | | |
| FD1 | FIRE DIST #1 GENERAL | 1.2171942929 | $609,156 | $609,156 | $741.46 | | |
| PORTPT | PORT OF PT GENERAL | 0.1134941229 | $609,156 | $609,156 | $69.14 | | |
| PORTPTIDD | PORT OF PT IDD 2019 | 0.2577346692 | $609,156 | $609,156 | $157.00 | | |
| PUD1 | PUD #1 GENERAL | 0.0597888892 | $609,156 | $609,156 | $36.42 | | |
| STATE | STATE SCHOOL PART 1 | 1.4940692947 | $609,156 | $609,156 | $910.12 | | |
| STATE2 | STATE SCHOOL PART 2 | 0.8050170049 | $609,156 | $609,156 | $490.38 | | |
| | Total Tax Rate: | 8.5416817766 | | | | | |
| | | | | Taxes w/Current Exemptions: | $5,203.23 | | |
| | | | | Taxes w/o Exemptions: | $5,203.23 | | |
Improvement / Building
| Improvement #1: | Residential Bldg | State Code: | 11 | 1098.0 sqft | Value: | $294,282 |
| Bathrooms (#): | 2 (FULL) | Bedrooms (#): | 2 | | Exterior Wall: | SI/ST | Floor Construction: | FRAME | | Foundation: | CONPR | Heating/Cooling: | ELBB | | Inside Verify: | YES-FIX | Roof Cover: | METAL |
|
| | Type | Description | Class CD | Sub Class CD | Year Built | Area |
| | MA | Main Area | 4 | 1S | 2018 | 1098.0 |
| | HDECK | House Deck | 4 | 1S | 2018 | 448.0 |
| | SHED | Shed (Table Not Dep) | 3 | 1S | 2018 | 0.0 |
| Improvement #2: | Residential Bldg | State Code: | 11 | 240.0 sqft | Value: | $52,874 |
| Bathrooms (#): | 1 (FULL) | Bedrooms (#): | 1 | | Exterior Wall: | SI/ST | Foundation: | CONPR | | Heating/Cooling: | OTHER | Inside Verify: | NO | | Inside Verify: | NO | Inside Verify: | NO | | Roof Cover: | METAL |   |   |
|
| | Type | Description | Class CD | Sub Class CD | Year Built | Area |
| | MA | Main Area | 3 | ADU | 2018 | 240.0 |
| | HCPOR | House Concrete Porch | 3 | ADU | 2018 | 15.0 |
Sketch
Property Image
Land
| 1 | 6210-1165L | | 0.0000 | 0.00 | 0.00 | 0.00 | 1.00 | $182,000 | $0 |
| 2 | 6210-1165L | | 0.0000 | 0.00 | 0.00 | 0.00 | 1.00 | $80,000 | $0 |
Roll Value History
| 2026 | N/A | N/A | N/A | N/A | N/A |
| 2025 | $347,156 | $262,000 | $0 | $609,156 | $609,156 |
| 2024 | $309,720 | $178,500 | $0 | $488,220 | $488,220 |
| 2023 | $296,254 | $165,000 | $0 | $461,254 | $461,254 |
| 2022 | $296,254 | $160,000 | $0 | $456,254 | $456,254 |
Deed and Sales History
| 1 | 06/27/2011 | SWD | Statutory Warranty Deed | MTILLOTSON, KATHRYN MATTA | YAKUSH, LINDA M | | | $225,000.00 | 116210 | 0 |
| 2 | 09/18/2001 | BLA | Boundary Line Adjustment | GREENWOOD, STEPHEN/ROBIN | GREENWOOD, DARRELL/BETTY | 0 | 0 | $0.00 | 93092 | 0 |
| 3 | 12/06/1994 | QCD | Quit Claim Deed | THOMAS, BETTY | THOMAS, ELIZABETH J/TRUST | 0 | 0 | $0.00 | 76184 | 0 |
| 4 | 03/15/1993 | QCD | Quit Claim Deed | MSKA, ARNE | THOMAS, BETTY | 0 | 0 | $0.00 | 70689 | 0 |
Payout Agreement
| No payout information available.. |