Property
Account |
| Property ID: | 28015 | Abbreviated Legal Description: | EISENBEIS ADDITION BLK 193 LOTS 1,2,7,8 |
| Parcel # / Geo ID: | 948319302 | Agent Code: | |
| Type: | Real | | |
| Tax Area: | 0110 - C-50F1E1H2 | Land Use Code | 65 |
| Open Space: | N | DFL | N |
| Historic Property: | N | Remodel Property: | N |
| Multi-Family Redevelopment: | N | | |
| Township: | 30N | Section: | 10 |
| Range: | 1W |
Location |
| Address: | 934 SHERIDAN ST PORT TOWNSEND, WA 98368 | Mapsco: | 035/037 |
| Neighborhood: | SIMS WAY / SHERIDAN ST COMMERCIAL AREA TOP OF S CURVES | Map ID: | |
| Neighborhood CD: | 6210C |
Owner |
| Name: | JEFFERSON CO PUBL HOSP DIST #2 | Owner ID: | 19000 |
| Mailing Address: | 834 SHERIDAN ST PORT TOWNSEND, WA 98368-2443 | % Ownership: | 100.0000000000% |
| | | Exemptions: | EX |
Pay Tax Due
Select the appropriate checkbox next to the year to be paid. Multiple years may be selected.
*Convenience Fee not included
Taxes and Assessment Details
Property Tax Information as of
03/11/2026
Click on "Statement Details" to expand or collapse a tax statement.
* Please enter a valid date ** Please enter a valid date *
Statement Details |
| 2026 | 17363 | STATE - STATE LEVY (SCHOOL) | $0.00 | $0.00 | $0.00 | $0.00 | $0.00 | $0.00 |
| 2026 | 17363 | COUNTY - COUNTY LEVIES (CE, DD, VET, MH) | $0.00 | $0.00 | $0.00 | $0.00 | $0.00 | $0.00 |
| 2026 | 17363 | CONSERVE - CONSERVATION FUTURES | $0.00 | $0.00 | $0.00 | $0.00 | $0.00 | $0.00 |
| 2026 | 17363 | CITYPT - CITY OF PT | $0.00 | $0.00 | $0.00 | $0.00 | $0.00 | $0.00 |
| 2026 | 17363 | PORTPT - PORT DISTRICT | $0.00 | $0.00 | $0.00 | $0.00 | $0.00 | $0.00 |
| 2026 | 17363 | PUD1 - PUD #1 | $0.00 | $0.00 | $0.00 | $0.00 | $0.00 | $0.00 |
| 2026 | 17363 | HD2 - HOSP DIST #2 | $0.00 | $0.00 | $0.00 | $0.00 | $0.00 | $0.00 |
| 2026 | 17363 | SD50 - SCHOOL DIST #50 | $0.00 | $0.00 | $0.00 | $0.00 | $0.00 | $0.00 |
| 2026 | 17363 | FD1 - FIRE DISTRICT #1 | $0.00 | $0.00 | $0.00 | $0.00 | $0.00 | $0.00 |
| 2026 | 17363 | EMS1 - FIRE DIST #1 EMS | $0.00 | $0.00 | $0.00 | $0.00 | $0.00 | $0.00 |
| 2026 | 17363 | JCCD - JC Conservation District | $5.06 | $0.00 | $0.00 | $0.00 | $0.00 | $5.06 |
| 2026 | 17363 | NWA - Noxious Weed Assessment | $5.95 | $0.00 | $0.00 | $0.00 | $0.00 | $5.95 |
| 2026 | 17363 | TOTAL: | $11.01 | $0.00 | $0.00 | $0.00 | $0.00 | $11.01 |
|
| 2026 | 17363 | $11.01 | $0.00 | $0.00 | $0.00 | $0.00 | $11.01 |
Statement Details |
| 2025 | 17418 | STATE - STATE LEVY (SCHOOL) | $759.71 | $759.70 | $0.00 | $0.00 | $1519.41 | $0.00 |
| 2025 | 17418 | COUNTY - COUNTY LEVIES (CE, DD, VET, MH) | $298.75 | $298.74 | $0.00 | $0.00 | $597.49 | $0.00 |
| 2025 | 17418 | CONSERVE - CONSERVATION FUTURES | $8.96 | $8.96 | $0.00 | $0.00 | $17.92 | $0.00 |
| 2025 | 17418 | CITYPT - CITY OF PT | $430.84 | $430.81 | $0.00 | $0.00 | $861.65 | $0.00 |
| 2025 | 17418 | PORTPT - PORT DISTRICT | $121.91 | $121.91 | $0.00 | $0.00 | $243.82 | $0.00 |
| 2025 | 17418 | PUD1 - PUD #1 | $19.55 | $19.55 | $0.00 | $0.00 | $39.10 | $0.00 |
| 2025 | 17418 | HD2 - HOSP DIST #2 | $17.43 | $17.43 | $0.00 | $0.00 | $34.86 | $0.00 |
| 2025 | 17418 | SD50 - SCHOOL DIST #50 | $555.22 | $555.21 | $0.00 | $0.00 | $1110.43 | $0.00 |
| 2025 | 17418 | FD1 - FIRE DISTRICT #1 | $394.24 | $394.23 | $0.00 | $0.00 | $788.47 | $0.00 |
| 2025 | 17418 | EMS1 - FIRE DIST #1 EMS | $151.63 | $151.63 | $0.00 | $0.00 | $303.26 | $0.00 |
| 2025 | 17418 | JCCD - JC Conservation District | $2.53 | $2.53 | $0.00 | $0.00 | $5.06 | $0.00 |
| 2025 | 17418 | NWA - Noxious Weed Assessment | $2.15 | $2.15 | $0.00 | $0.00 | $4.30 | $0.00 |
| 2025 | 17418 | TOTAL: | $2762.92 | $2762.85 | $0.00 | $0.00 | $5525.77 | $0.00 |
|
| 2025 | 17418 | $2762.92 | $2762.85 | $0.00 | $0.00 | $5525.77 | $0.00 |
Statement Details |
| 2024 | 17452 | STATE - STATE LEVY (SCHOOL) | $727.18 | $727.17 | $0.00 | $0.00 | $1454.35 | $0.00 |
| 2024 | 17452 | COUNTY - COUNTY LEVIES (CE, DD, VET, MH) | $311.17 | $311.15 | $0.00 | $0.00 | $622.32 | $0.00 |
| 2024 | 17452 | CONSERVE - CONSERVATION FUTURES | $9.33 | $9.33 | $0.00 | $0.00 | $18.66 | $0.00 |
| 2024 | 17452 | CITYPT - CITY OF PT | $444.62 | $444.61 | $0.00 | $0.00 | $889.23 | $0.00 |
| 2024 | 17452 | PORTPT - PORT DISTRICT | $128.53 | $128.52 | $0.00 | $0.00 | $257.05 | $0.00 |
| 2024 | 17452 | PUD1 - PUD #1 | $20.44 | $20.44 | $0.00 | $0.00 | $40.88 | $0.00 |
| 2024 | 17452 | HD2 - HOSP DIST #2 | $18.16 | $18.15 | $0.00 | $0.00 | $36.31 | $0.00 |
| 2024 | 17452 | SD50 - SCHOOL DIST #50 | $588.33 | $588.31 | $0.00 | $0.00 | $1176.64 | $0.00 |
| 2024 | 17452 | FD1 - FIRE DISTRICT #1 | $411.44 | $411.43 | $0.00 | $0.00 | $822.87 | $0.00 |
| 2024 | 17452 | EMS1 - FIRE DIST #1 EMS | $157.15 | $157.15 | $0.00 | $0.00 | $314.30 | $0.00 |
| 2024 | 17452 | JCCD - JC Conservation District | $2.53 | $2.53 | $0.00 | $0.00 | $5.06 | $0.00 |
| 2024 | 17452 | NWA - Noxious Weed Assessment | $2.15 | $2.15 | $0.00 | $0.00 | $4.30 | $0.00 |
| 2024 | 17452 | TOTAL: | $2821.03 | $2820.94 | $0.00 | $0.00 | $5641.97 | $0.00 |
|
| 2024 | 17452 | $2821.03 | $2820.94 | $0.00 | $0.00 | $5641.97 | $0.00 |
Statement Details |
| 2023 | 17478 | STATE - STATE LEVY (SCHOOL) | $716.53 | $716.51 | $0.00 | $0.00 | $1433.04 | $0.00 |
| 2023 | 17478 | COUNTY - COUNTY LEVIES (CE, DD, VET, MH) | $312.68 | $312.65 | $0.00 | $0.00 | $625.33 | $0.00 |
| 2023 | 17478 | CONSERVE - CONSERVATION FUTURES | $9.38 | $9.37 | $0.00 | $0.00 | $18.75 | $0.00 |
| 2023 | 17478 | CITYPT - CITY OF PT | $441.92 | $441.89 | $0.00 | $0.00 | $883.81 | $0.00 |
| 2023 | 17478 | PORTPT - PORT DISTRICT | $131.72 | $131.70 | $0.00 | $0.00 | $263.42 | $0.00 |
| 2023 | 17478 | PUD1 - PUD #1 | $20.73 | $20.72 | $0.00 | $0.00 | $41.45 | $0.00 |
| 2023 | 17478 | HD2 - HOSP DIST #2 | $18.26 | $18.24 | $0.00 | $0.00 | $36.50 | $0.00 |
| 2023 | 17478 | SD50 - SCHOOL DIST #50 | $568.58 | $568.56 | $0.00 | $0.00 | $1137.14 | $0.00 |
| 2023 | 17478 | FD1 - FIRE DISTRICT #1 | $257.58 | $257.57 | $0.00 | $0.00 | $515.15 | $0.00 |
| 2023 | 17478 | EMS1 - FIRE DIST #1 EMS | $109.57 | $109.57 | $0.00 | $0.00 | $219.14 | $0.00 |
| 2023 | 17478 | JCCD - JC Conservation District | $2.53 | $2.53 | $0.00 | $0.00 | $5.06 | $0.00 |
| 2023 | 17478 | NWA - Noxious Weed Assessment | $2.15 | $2.15 | $0.00 | $0.00 | $4.30 | $0.00 |
| 2023 | 17478 | TOTAL: | $2591.63 | $2591.46 | $0.00 | $0.00 | $5183.09 | $0.00 |
|
| 2023 | 17478 | $2591.63 | $2591.46 | $0.00 | $0.00 | $5183.09 | $0.00 |
Values
| (+) Improvement Homesite Value: | + | $0 | |
| (+) Improvement Non-Homesite Value: | + | $325,307 | |
| (+) Land Homesite Value: | + | $0 | |
| (+) Land Non-Homesite Value: | + | $335,132 | |
| (+) Curr Use (HS): | + | $0 | $0 |
| (+) Curr Use (NHS): | + | $0 | $0 |
| | | -------------------------- | |
| (=) Market Value: | = | $660,439 | |
| (–) Productivity Loss: | – | $0 | |
| | | -------------------------- | |
| (=) Subtotal: | = | $660,439 | |
| (+) Senior Appraised Value: | + | $0 | |
| (+) Non-Senior Appraised Value: | + | $660,439 | |
| | | -------------------------- | |
| (=) Total Appraised Value: | = | $660,439 | |
| (–) Senior Exemption Loss: | – | $0 | |
| (–) Exemption Loss: | – | $660,439 | |
| | | -------------------------- | |
| (=) Taxable Value: | = | $0 | |
Taxing Jurisdiction
| Owner: | JEFFERSON CO PUBL HOSP DIST #2 | | |
| % Ownership: | 100.0000000000% | | |
| Total Value: | $660,439 | | |
| Tax Area: | 0110 - C-50F1E1H2 |
| CE | COUNTY CURRENT EXPENSE | 0.9034619479 | $660,439 | $0 | $0.00 | | |
| CNTYDD | DEVELOPMENTAL DISABILITIES | 0.0052121823 | $660,439 | $0 | $0.00 | | |
| CNTYVET | VETERANS RELIEF | 0.0052777810 | $660,439 | $0 | $0.00 | | |
| MENTAL | MENTAL HEALTH | 0.0052121823 | $660,439 | $0 | $0.00 | | |
| PTGEN | CITY OF PT GENERAL | 0.8551967795 | $660,439 | $0 | $0.00 | | |
| PTLLL | CITY OF PT - LIBRARY LID LIFT | 0.4010114288 | $660,439 | $0 | $0.00 | | |
| PTMVBOND | CITY OF PT MV BOND | 0.0484717981 | $660,439 | $0 | $0.00 | | |
| HOSP2CASH | HOSP DIST #2 GENERAL | 0.0536075306 | $660,439 | $0 | $0.00 | | |
| SCH50BOND | SCHOOL DIST #50 BOND 2016 | 0.5377451389 | $660,439 | $0 | $0.00 | | |
| SCH50CP | SCHOOL DIST #50 CAP PROJ | 0.4573475088 | $660,439 | $0 | $0.00 | | |
| SCH50MO | SCHOOL DIST #50 EP & O | 0.8262822886 | $660,439 | $0 | $0.00 | | |
| CONSERVE | CONSERVATION FUTURES | 0.0275621078 | $660,439 | $0 | $0.00 | | |
| EMS1 | FIRE DIST #1 EMS | 0.4679948282 | $660,439 | $0 | $0.00 | | |
| FD1 | FIRE DIST #1 GENERAL | 1.2171942929 | $660,439 | $0 | $0.00 | | |
| PORTPT | PORT OF PT GENERAL | 0.1134941229 | $660,439 | $0 | $0.00 | | |
| PORTPTIDD | PORT OF PT IDD 2019 | 0.2577346692 | $660,439 | $0 | $0.00 | | |
| PUD1 | PUD #1 GENERAL | 0.0597888892 | $660,439 | $0 | $0.00 | | |
| STATE | STATE SCHOOL PART 1 | 1.4940692947 | $660,439 | $0 | $0.00 | | |
| STATE2 | STATE SCHOOL PART 2 | 0.8050170049 | $660,439 | $0 | $0.00 | | |
| | Total Tax Rate: | 8.5416817766 | | | | | |
| | | | | Taxes w/Current Exemptions: | $0.00 | | |
| | | | | Taxes w/o Exemptions: | $5,641.25 | | |
Improvement / Building
| Improvement #1: | Commercial/Industrial/Government Bldg | State Code: | 65 | 2768.0 sqft | Value: | $325,307 |
| Exterior Wall: | SI/ST | Floor Construction: | FRAME | | Foundation: | CONPR | Heating/Cooling: | HPUMP | | Interior Finish: | FIN | Roof Cover: | METAL |
|
Sketch
Property Image
Land
| 1 | 6210-6275Q | | 0.4609 | 20077.00 | 0.00 | 0.00 | 0.00 | $335,132 | $0 |
Roll Value History
| 2026 | N/A | N/A | N/A | N/A | N/A |
| 2025 | $325,307 | $335,132 | $0 | $660,439 | $0 |
| 2024 | $312,531 | $321,078 | $0 | $633,609 | $633,609 |
| 2023 | $312,531 | $316,078 | $0 | $628,609 | $628,609 |
| 2022 | $297,649 | $311,078 | $0 | $608,727 | $608,727 |
Deed and Sales History
| 1 | 12/24/2025 | SWD | Statutory Warranty Deed | DOUGLAS KURATA | JEFFERSON CO PUBL HOSP DIST #2 | | | $1,200,000.00 | 145462 | |
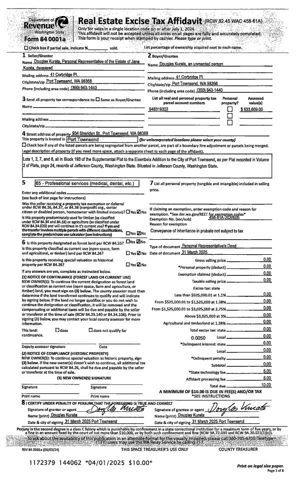
| 2 | 03/31/2025 | PRD | Personal Representatives Deed | DOUGLAS KURATA PERSONAL REPRESENTATIVE | DOUGLAS KURATA | | | | 144062 | |
| 3 | 05/27/1997 | SWD | Statutory Warranty Deed | JACOBS, J RANDALL | KURATA, DOUGLAS/JANE M | 0 | 0 | $0.00 | 82062 | 0 |
Payout Agreement
| No payout information available.. |