Property
Account |
| Property ID: | 28023 | Abbreviated Legal Description: | EISENBEIS ADDITION BLK 195 LOTS 7(LS S35'), 8(ALL) |
| Parcel # / Geo ID: | 948319505 | Agent Code: | |
| Type: | Real | | |
| Tax Area: | 0110 - C-50F1E1H2 | Land Use Code | 11 |
| Open Space: | N | DFL | N |
| Historic Property: | N | Remodel Property: | N |
| Multi-Family Redevelopment: | N | | |
| Township: | 30N | Section: | 10 |
| Range: | 1W |
Location |
| Address: | 938 HENDRICKS ST PORT TOWNSEND, WA 98368 | Mapsco: | 036/010 |
| Neighborhood: | EISENBEIS, OC HASTINGS & SUPP, PINKS LESS VICTORIAN VILLAGE | Map ID: | |
| Neighborhood CD: | 6210 |
Owner |
| Name: | MAUREEN M BENNETT | Owner ID: | 98603 |
| Mailing Address: | RHONDA CONNELL 938 HENDRICKS ST PORT TOWNSEND, WA 98368-2307 | % Ownership: | 100.0000000000% |
| | | Exemptions: | |
Pay Tax Due
Select the appropriate checkbox next to the year to be paid. Multiple years may be selected.
*Convenience Fee not included
Taxes and Assessment Details
Property Tax Information as of
03/10/2026
Click on "Statement Details" to expand or collapse a tax statement.
* Please enter a valid date ** Please enter a valid date *
Statement Details |
| 2026 | 17371 | STATE - STATE LEVY (SCHOOL) | $591.87 | $591.86 | $0.00 | $0.00 | $0.00 | $1183.73 |
| 2026 | 17371 | COUNTY - COUNTY LEVIES (CE, DD, VET, MH) | $236.62 | $236.62 | $0.00 | $0.00 | $0.00 | $473.24 |
| 2026 | 17371 | CONSERVE - CONSERVATION FUTURES | $7.10 | $7.09 | $0.00 | $0.00 | $0.00 | $14.19 |
| 2026 | 17371 | CITYPT - CITY OF PT | $335.88 | $335.86 | $0.00 | $0.00 | $0.00 | $671.74 |
| 2026 | 17371 | PORTPT - PORT DISTRICT | $95.57 | $95.56 | $0.00 | $0.00 | $0.00 | $191.13 |
| 2026 | 17371 | PUD1 - PUD #1 | $15.39 | $15.39 | $0.00 | $0.00 | $0.00 | $30.78 |
| 2026 | 17371 | HD2 - HOSP DIST #2 | $13.80 | $13.80 | $0.00 | $0.00 | $0.00 | $27.60 |
| 2026 | 17371 | SD50 - SCHOOL DIST #50 | $468.90 | $468.87 | $0.00 | $0.00 | $0.00 | $937.77 |
| 2026 | 17371 | FD1 - FIRE DISTRICT #1 | $313.35 | $313.34 | $0.00 | $0.00 | $0.00 | $626.69 |
| 2026 | 17371 | EMS1 - FIRE DIST #1 EMS | $120.48 | $120.48 | $0.00 | $0.00 | $0.00 | $240.96 |
| 2026 | 17371 | JCCD - JC Conservation District | $2.55 | $2.55 | $0.00 | $0.00 | $0.00 | $5.10 |
| 2026 | 17371 | NWA - Noxious Weed Assessment | $2.98 | $2.97 | $0.00 | $0.00 | $0.00 | $5.95 |
| 2026 | 17371 | TOTAL: | $2204.49 | $2204.39 | $0.00 | $0.00 | $0.00 | $4408.88 |
|
| 2026 | 17371 | $2204.49 | $2204.39 | $0.00 | $0.00 | $0.00 | $4408.88 |
Statement Details |
| 2025 | 17426 | STATE - STATE LEVY (SCHOOL) | $575.89 | $575.88 | $0.00 | $0.00 | $1151.77 | $0.00 |
| 2025 | 17426 | COUNTY - COUNTY LEVIES (CE, DD, VET, MH) | $226.47 | $226.45 | $0.00 | $0.00 | $452.92 | $0.00 |
| 2025 | 17426 | CONSERVE - CONSERVATION FUTURES | $6.79 | $6.79 | $0.00 | $0.00 | $13.58 | $0.00 |
| 2025 | 17426 | CITYPT - CITY OF PT | $326.59 | $326.58 | $0.00 | $0.00 | $653.17 | $0.00 |
| 2025 | 17426 | PORTPT - PORT DISTRICT | $92.42 | $92.41 | $0.00 | $0.00 | $184.83 | $0.00 |
| 2025 | 17426 | PUD1 - PUD #1 | $14.82 | $14.82 | $0.00 | $0.00 | $29.64 | $0.00 |
| 2025 | 17426 | HD2 - HOSP DIST #2 | $13.21 | $13.21 | $0.00 | $0.00 | $26.42 | $0.00 |
| 2025 | 17426 | SD50 - SCHOOL DIST #50 | $420.89 | $420.87 | $0.00 | $0.00 | $841.76 | $0.00 |
| 2025 | 17426 | FD1 - FIRE DISTRICT #1 | $298.85 | $298.84 | $0.00 | $0.00 | $597.69 | $0.00 |
| 2025 | 17426 | EMS1 - FIRE DIST #1 EMS | $114.95 | $114.94 | $0.00 | $0.00 | $229.89 | $0.00 |
| 2025 | 17426 | JCCD - JC Conservation District | $2.55 | $2.55 | $0.00 | $0.00 | $5.10 | $0.00 |
| 2025 | 17426 | NWA - Noxious Weed Assessment | $2.15 | $2.15 | $0.00 | $0.00 | $4.30 | $0.00 |
| 2025 | 17426 | TOTAL: | $2095.58 | $2095.49 | $0.00 | $0.00 | $4191.07 | $0.00 |
|
| 2025 | 17426 | $2095.58 | $2095.49 | $0.00 | $0.00 | $4191.07 | $0.00 |
Statement Details |
| 2024 | 17460 | STATE - STATE LEVY (SCHOOL) | $525.00 | $525.00 | $0.00 | $0.00 | $1050.00 | $0.00 |
| 2024 | 17460 | COUNTY - COUNTY LEVIES (CE, DD, VET, MH) | $224.66 | $224.65 | $0.00 | $0.00 | $449.31 | $0.00 |
| 2024 | 17460 | CONSERVE - CONSERVATION FUTURES | $6.74 | $6.73 | $0.00 | $0.00 | $13.47 | $0.00 |
| 2024 | 17460 | CITYPT - CITY OF PT | $321.00 | $320.99 | $0.00 | $0.00 | $641.99 | $0.00 |
| 2024 | 17460 | PORTPT - PORT DISTRICT | $92.79 | $92.79 | $0.00 | $0.00 | $185.58 | $0.00 |
| 2024 | 17460 | PUD1 - PUD #1 | $14.76 | $14.75 | $0.00 | $0.00 | $29.51 | $0.00 |
| 2024 | 17460 | HD2 - HOSP DIST #2 | $13.11 | $13.11 | $0.00 | $0.00 | $26.22 | $0.00 |
| 2024 | 17460 | SD50 - SCHOOL DIST #50 | $424.75 | $424.75 | $0.00 | $0.00 | $849.50 | $0.00 |
| 2024 | 17460 | FD1 - FIRE DISTRICT #1 | $297.05 | $297.04 | $0.00 | $0.00 | $594.09 | $0.00 |
| 2024 | 17460 | EMS1 - FIRE DIST #1 EMS | $113.46 | $113.46 | $0.00 | $0.00 | $226.92 | $0.00 |
| 2024 | 17460 | JCCD - JC Conservation District | $2.55 | $2.55 | $0.00 | $0.00 | $5.10 | $0.00 |
| 2024 | 17460 | NWA - Noxious Weed Assessment | $2.15 | $2.15 | $0.00 | $0.00 | $4.30 | $0.00 |
| 2024 | 17460 | TOTAL: | $2038.02 | $2037.97 | $0.00 | $0.00 | $4075.99 | $0.00 |
|
| 2024 | 17460 | $2038.02 | $2037.97 | $0.00 | $0.00 | $4075.99 | $0.00 |
Statement Details |
| 2023 | 17486 | STATE - STATE LEVY (SCHOOL) | $514.79 | $514.78 | $0.00 | $0.00 | $1029.57 | $0.00 |
| 2023 | 17486 | COUNTY - COUNTY LEVIES (CE, DD, VET, MH) | $224.65 | $224.62 | $0.00 | $0.00 | $449.27 | $0.00 |
| 2023 | 17486 | CONSERVE - CONSERVATION FUTURES | $6.74 | $6.73 | $0.00 | $0.00 | $13.47 | $0.00 |
| 2023 | 17486 | CITYPT - CITY OF PT | $317.49 | $317.47 | $0.00 | $0.00 | $634.96 | $0.00 |
| 2023 | 17486 | PORTPT - PORT DISTRICT | $94.63 | $94.62 | $0.00 | $0.00 | $189.25 | $0.00 |
| 2023 | 17486 | PUD1 - PUD #1 | $14.89 | $14.89 | $0.00 | $0.00 | $29.78 | $0.00 |
| 2023 | 17486 | HD2 - HOSP DIST #2 | $13.12 | $13.10 | $0.00 | $0.00 | $26.22 | $0.00 |
| 2023 | 17486 | SD50 - SCHOOL DIST #50 | $408.50 | $408.48 | $0.00 | $0.00 | $816.98 | $0.00 |
| 2023 | 17486 | FD1 - FIRE DISTRICT #1 | $185.06 | $185.05 | $0.00 | $0.00 | $370.11 | $0.00 |
| 2023 | 17486 | EMS1 - FIRE DIST #1 EMS | $78.72 | $78.72 | $0.00 | $0.00 | $157.44 | $0.00 |
| 2023 | 17486 | JCCD - JC Conservation District | $2.55 | $2.55 | $0.00 | $0.00 | $5.10 | $0.00 |
| 2023 | 17486 | NWA - Noxious Weed Assessment | $2.15 | $2.15 | $0.00 | $0.00 | $4.30 | $0.00 |
| 2023 | 17486 | TOTAL: | $1863.29 | $1863.16 | $0.00 | $0.00 | $3726.45 | $0.00 |
|
| 2023 | 17486 | $1863.29 | $1863.16 | $0.00 | $0.00 | $3726.45 | $0.00 |
Values
| (+) Improvement Homesite Value: | + | $0 | |
| (+) Improvement Non-Homesite Value: | + | $364,118 | |
| (+) Land Homesite Value: | + | $0 | |
| (+) Land Non-Homesite Value: | + | $150,750 | |
| (+) Curr Use (HS): | + | $0 | $0 |
| (+) Curr Use (NHS): | + | $0 | $0 |
| | | -------------------------- | |
| (=) Market Value: | = | $514,868 | |
| (–) Productivity Loss: | – | $0 | |
| | | -------------------------- | |
| (=) Subtotal: | = | $514,868 | |
| (+) Senior Appraised Value: | + | $0 | |
| (+) Non-Senior Appraised Value: | + | $514,868 | |
| | | -------------------------- | |
| (=) Total Appraised Value: | = | $514,868 | |
| (–) Senior Exemption Loss: | – | $0 | |
| (–) Exemption Loss: | – | $0 | |
| | | -------------------------- | |
| (=) Taxable Value: | = | $514,868 | |
Taxing Jurisdiction
| Owner: | MAUREEN M BENNETT | | |
| % Ownership: | 100.0000000000% | | |
| Total Value: | $514,868 | | |
| Tax Area: | 0110 - C-50F1E1H2 |
| CE | COUNTY CURRENT EXPENSE | 0.9034619479 | $514,868 | $514,868 | $465.16 | | |
| CNTYDD | DEVELOPMENTAL DISABILITIES | 0.0052121823 | $514,868 | $514,868 | $2.68 | | |
| CNTYVET | VETERANS RELIEF | 0.0052777810 | $514,868 | $514,868 | $2.72 | | |
| MENTAL | MENTAL HEALTH | 0.0052121823 | $514,868 | $514,868 | $2.68 | | |
| PTGEN | CITY OF PT GENERAL | 0.8551967795 | $514,868 | $514,868 | $440.31 | | |
| PTLLL | CITY OF PT - LIBRARY LID LIFT | 0.4010114288 | $514,868 | $514,868 | $206.47 | | |
| PTMVBOND | CITY OF PT MV BOND | 0.0484717981 | $514,868 | $514,868 | $24.96 | | |
| HOSP2CASH | HOSP DIST #2 GENERAL | 0.0536075306 | $514,868 | $514,868 | $27.60 | | |
| SCH50BOND | SCHOOL DIST #50 BOND 2016 | 0.5377451389 | $514,868 | $514,868 | $276.87 | | |
| SCH50CP | SCHOOL DIST #50 CAP PROJ | 0.4573475088 | $514,868 | $514,868 | $235.47 | | |
| SCH50MO | SCHOOL DIST #50 EP & O | 0.8262822886 | $514,868 | $514,868 | $425.43 | | |
| CONSERVE | CONSERVATION FUTURES | 0.0275621078 | $514,868 | $514,868 | $14.19 | | |
| EMS1 | FIRE DIST #1 EMS | 0.4679948282 | $514,868 | $514,868 | $240.96 | | |
| FD1 | FIRE DIST #1 GENERAL | 1.2171942929 | $514,868 | $514,868 | $626.69 | | |
| PORTPT | PORT OF PT GENERAL | 0.1134941229 | $514,868 | $514,868 | $58.43 | | |
| PORTPTIDD | PORT OF PT IDD 2019 | 0.2577346692 | $514,868 | $514,868 | $132.70 | | |
| PUD1 | PUD #1 GENERAL | 0.0597888892 | $514,868 | $514,868 | $30.78 | | |
| STATE | STATE SCHOOL PART 1 | 1.4940692947 | $514,868 | $514,868 | $769.25 | | |
| STATE2 | STATE SCHOOL PART 2 | 0.8050170049 | $514,868 | $514,868 | $414.48 | | |
| | Total Tax Rate: | 8.5416817766 | | | | | |
| | | | | Taxes w/Current Exemptions: | $4,397.83 | | |
| | | | | Taxes w/o Exemptions: | $4,397.83 | | |
Improvement / Building
| Improvement #1: | Residential Bldg | State Code: | 11 | 985.0 sqft | Value: | $364,118 |
| Bathrooms (#): | 2 (FULL) | Bedrooms (#): | 4 | | Exterior Wall: | PL/T1 | Fireplace: | WD ST-GOOD | | Floor Construction: | FRAME | Foundation: | CONPR | | Heating/Cooling: | ELBB | Inside Verify: | YES-FIX | | Roof Cover: | COMP |   |   |
|
| | Type | Description | Class CD | Sub Class CD | Year Built | Area |
| | MA | Main Area | 4+ | HSPL | 1974 | 985.0 |
| | HDECK | House Deck | 4 | HSPL | 1974 | 114.0 |
| | HENCL | House Enclosure | 4 | HSPL | 1974 | 143.0 |
| | CARPTF | Carport W/Floor | 4 | HSPL | 1974 | 264.0 |
| | BSMTF | House basement finished | 4 | HSPL | 1974 | 816.0 |
| | PATIO | House Patio | 4 | HSPL | 1974 | 169.0 |
Sketch
Property Image
Land
| 1 | 6210-1185L | | 0.0000 | 0.00 | 0.00 | 0.00 | 1.00 | $135,000 | $0 |
| 2 | 6210-1185L | | 0.0000 | 0.00 | 0.00 | 0.00 | 1.00 | $15,750 | $0 |
Roll Value History
| 2026 | N/A | N/A | N/A | N/A | N/A |
| 2025 | $364,118 | $150,750 | $0 | $514,868 | $514,868 |
| 2024 | $340,127 | $140,175 | $0 | $480,302 | $480,302 |
| 2023 | $325,339 | $128,500 | $0 | $453,839 | $453,839 |
| 2022 | $325,339 | $112,000 | $0 | $437,339 | $437,339 |
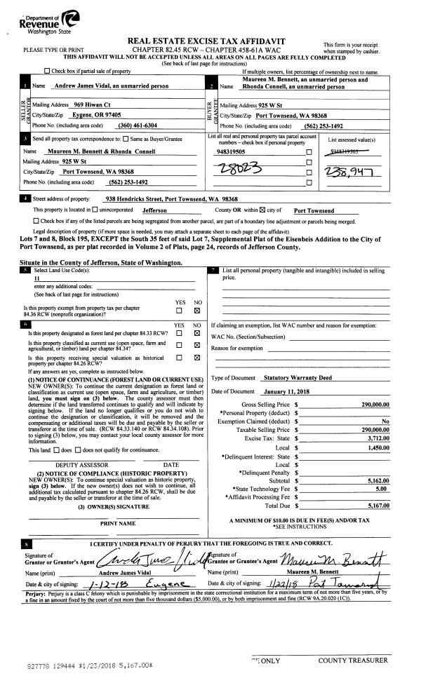
Deed and Sales History
| 1 | 01/11/2018 | SWD | Statutory Warranty Deed | ANDREW VIDAL | MAUREEN M BENNETT | | | $290,000.00 | 129444 | |
| 2 | 11/13/2015 | PRD | Personal Representatives Deed | ETTA C MC CULLOCH | ANDREW VIDAL | | | $172,000.00 | 124378 | |
Payout Agreement
| No payout information available.. |