Property
Account |
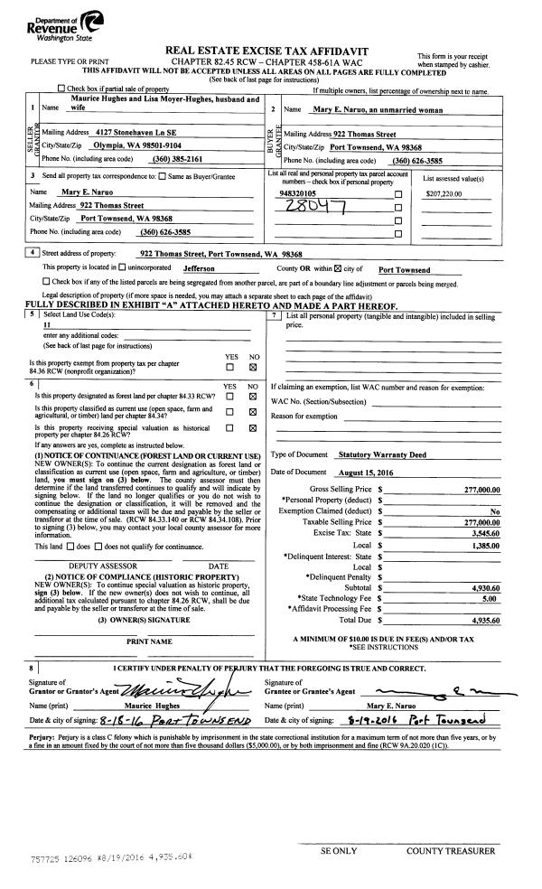
| Property ID: | 28047 | Abbreviated Legal Description: | EISENBEIS ADDITION BLK 201 LOTS 6(LS S25.02'), 7(S47.82') W-S/EASE |
| Parcel # / Geo ID: | 948320105 | Agent Code: | |
| Type: | Real | | |
| Tax Area: | 0110 - C-50F1E1H2 | Land Use Code | 11 |
| Open Space: | N | DFL | N |
| Historic Property: | N | Remodel Property: | N |
| Multi-Family Redevelopment: | N | | |
| Township: | 30N | Section: | 10 |
| Range: | 1W |
Location |
| Address: | 922 THOMAS ST PORT TOWNSEND, WA 98368 | Mapsco: | 036/041 |
| Neighborhood: | EISENBEIS, OC HASTINGS & SUPP, PINKS LESS VICTORIAN VILLAGE | Map ID: | |
| Neighborhood CD: | 6210 |
Owner |
| Name: | MARY E NARUO | Owner ID: | 95939 |
| Mailing Address: | 922 THOMAS ST PORT TOWNSEND, WA 98368-2317 | % Ownership: | 100.0000000000% |
| | | Exemptions: | SNR/DSBL |
Pay Tax Due
Select the appropriate checkbox next to the year to be paid. Multiple years may be selected.
*Convenience Fee not included
Taxes and Assessment Details
Property Tax Information as of
03/11/2026
Click on "Statement Details" to expand or collapse a tax statement.
* Please enter a valid date ** Please enter a valid date *
Statement Details |
| 2026 | 17395 | STATE - STATE LEVY (SCHOOL) | $131.28 | $131.27 | $0.00 | $0.00 | $0.00 | $262.55 |
| 2026 | 17395 | COUNTY - COUNTY LEVIES (CE, DD, VET, MH) | $80.77 | $80.76 | $0.00 | $0.00 | $0.00 | $161.53 |
| 2026 | 17395 | CONSERVE - CONSERVATION FUTURES | $2.42 | $2.42 | $0.00 | $0.00 | $0.00 | $4.84 |
| 2026 | 17395 | CITYPT - CITY OF PT | $110.38 | $110.37 | $0.00 | $0.00 | $0.00 | $220.75 |
| 2026 | 17395 | PORTPT - PORT DISTRICT | $32.62 | $32.61 | $0.00 | $0.00 | $0.00 | $65.23 |
| 2026 | 17395 | PUD1 - PUD #1 | $5.26 | $5.25 | $0.00 | $0.00 | $0.00 | $10.51 |
| 2026 | 17395 | HD2 - HOSP DIST #2 | $4.71 | $4.71 | $0.00 | $0.00 | $0.00 | $9.42 |
| 2026 | 17395 | SD50 - SCHOOL DIST #50 | $0.00 | $0.00 | $0.00 | $0.00 | $0.00 | $0.00 |
| 2026 | 17395 | FD1 - FIRE DISTRICT #1 | $106.95 | $106.95 | $0.00 | $0.00 | $0.00 | $213.90 |
| 2026 | 17395 | EMS1 - FIRE DIST #1 EMS | $41.12 | $41.12 | $0.00 | $0.00 | $0.00 | $82.24 |
| 2026 | 17395 | TOTAL: | $515.51 | $515.46 | $0.00 | $0.00 | $0.00 | $1030.97 |
|
| 2026 | 17395 | $515.51 | $515.46 | $0.00 | $0.00 | $0.00 | $1030.97 |
Statement Details |
| 2025 | 17450 | STATE - STATE LEVY (SCHOOL) | $136.98 | $136.97 | $0.00 | $0.00 | $273.95 | $0.00 |
| 2025 | 17450 | COUNTY - COUNTY LEVIES (CE, DD, VET, MH) | $82.87 | $82.85 | $0.00 | $0.00 | $165.72 | $0.00 |
| 2025 | 17450 | CONSERVE - CONSERVATION FUTURES | $2.49 | $2.48 | $0.00 | $0.00 | $4.97 | $0.00 |
| 2025 | 17450 | CITYPT - CITY OF PT | $115.00 | $115.00 | $0.00 | $0.00 | $230.00 | $0.00 |
| 2025 | 17450 | PORTPT - PORT DISTRICT | $33.81 | $33.81 | $0.00 | $0.00 | $67.62 | $0.00 |
| 2025 | 17450 | PUD1 - PUD #1 | $5.42 | $5.42 | $0.00 | $0.00 | $10.84 | $0.00 |
| 2025 | 17450 | HD2 - HOSP DIST #2 | $4.84 | $4.83 | $0.00 | $0.00 | $9.67 | $0.00 |
| 2025 | 17450 | SD50 - SCHOOL DIST #50 | $0.00 | $0.00 | $0.00 | $0.00 | $0.00 | $0.00 |
| 2025 | 17450 | FD1 - FIRE DISTRICT #1 | $109.34 | $109.34 | $0.00 | $0.00 | $218.68 | $0.00 |
| 2025 | 17450 | EMS1 - FIRE DIST #1 EMS | $42.06 | $42.05 | $0.00 | $0.00 | $84.11 | $0.00 |
| 2025 | 17450 | TOTAL: | $532.81 | $532.75 | $0.00 | $0.00 | $1065.56 | $0.00 |
|
| 2025 | 17450 | $532.81 | $532.75 | $0.00 | $0.00 | $1065.56 | $0.00 |
Statement Details |
| 2024 | 17484 | STATE - STATE LEVY (SCHOOL) | $132.31 | $132.31 | $0.00 | $0.00 | $264.62 | $0.00 |
| 2024 | 17484 | COUNTY - COUNTY LEVIES (CE, DD, VET, MH) | $86.99 | $86.97 | $0.00 | $0.00 | $173.96 | $0.00 |
| 2024 | 17484 | CONSERVE - CONSERVATION FUTURES | $2.61 | $2.61 | $0.00 | $0.00 | $5.22 | $0.00 |
| 2024 | 17484 | CITYPT - CITY OF PT | $119.52 | $119.52 | $0.00 | $0.00 | $239.04 | $0.00 |
| 2024 | 17484 | PORTPT - PORT DISTRICT | $35.93 | $35.93 | $0.00 | $0.00 | $71.86 | $0.00 |
| 2024 | 17484 | PUD1 - PUD #1 | $5.72 | $5.71 | $0.00 | $0.00 | $11.43 | $0.00 |
| 2024 | 17484 | HD2 - HOSP DIST #2 | $5.08 | $5.07 | $0.00 | $0.00 | $10.15 | $0.00 |
| 2024 | 17484 | SD50 - SCHOOL DIST #50 | $0.00 | $0.00 | $0.00 | $0.00 | $0.00 | $0.00 |
| 2024 | 17484 | FD1 - FIRE DISTRICT #1 | $115.02 | $115.01 | $0.00 | $0.00 | $230.03 | $0.00 |
| 2024 | 17484 | EMS1 - FIRE DIST #1 EMS | $43.93 | $43.93 | $0.00 | $0.00 | $87.86 | $0.00 |
| 2024 | 17484 | JCCD - JC Conservation District | $2.55 | $2.55 | $0.00 | $0.00 | $5.10 | $0.00 |
| 2024 | 17484 | NWA - Noxious Weed Assessment | $2.15 | $2.15 | $0.00 | $0.00 | $4.30 | $0.00 |
| 2024 | 17484 | TOTAL: | $551.81 | $551.76 | $0.00 | $0.00 | $1103.57 | $0.00 |
|
| 2024 | 17484 | $551.81 | $551.76 | $0.00 | $0.00 | $1103.57 | $0.00 |
Statement Details |
| 2023 | 17510 | STATE - STATE LEVY (SCHOOL) | $134.77 | $134.76 | $0.00 | $0.00 | $269.53 | $0.00 |
| 2023 | 17510 | COUNTY - COUNTY LEVIES (CE, DD, VET, MH) | $90.26 | $90.26 | $0.00 | $0.00 | $180.52 | $0.00 |
| 2023 | 17510 | CONSERVE - CONSERVATION FUTURES | $2.71 | $2.70 | $0.00 | $0.00 | $5.41 | $0.00 |
| 2023 | 17510 | CITYPT - CITY OF PT | $122.54 | $122.52 | $0.00 | $0.00 | $245.06 | $0.00 |
| 2023 | 17510 | PORTPT - PORT DISTRICT | $38.03 | $38.02 | $0.00 | $0.00 | $76.05 | $0.00 |
| 2023 | 17510 | PUD1 - PUD #1 | $5.99 | $5.98 | $0.00 | $0.00 | $11.97 | $0.00 |
| 2023 | 17510 | HD2 - HOSP DIST #2 | $5.27 | $5.26 | $0.00 | $0.00 | $10.53 | $0.00 |
| 2023 | 17510 | SD50 - SCHOOL DIST #50 | $0.00 | $0.00 | $0.00 | $0.00 | $0.00 | $0.00 |
| 2023 | 17510 | FD1 - FIRE DISTRICT #1 | $74.36 | $74.36 | $0.00 | $0.00 | $148.72 | $0.00 |
| 2023 | 17510 | EMS1 - FIRE DIST #1 EMS | $31.63 | $31.63 | $0.00 | $0.00 | $63.26 | $0.00 |
| 2023 | 17510 | JCCD - JC Conservation District | $2.55 | $2.55 | $0.00 | $0.00 | $5.10 | $0.00 |
| 2023 | 17510 | NWA - Noxious Weed Assessment | $2.15 | $2.15 | $0.00 | $0.00 | $4.30 | $0.00 |
| 2023 | 17510 | TOTAL: | $510.26 | $510.19 | $0.00 | $0.00 | $1020.45 | $0.00 |
|
| 2023 | 17510 | $510.26 | $510.19 | $0.00 | $0.00 | $1020.45 | $0.00 |
Values
| (+) Improvement Homesite Value: | + | $331,351 | |
| (+) Improvement Non-Homesite Value: | + | $0 | |
| (+) Land Homesite Value: | + | $158,625 | |
| (+) Land Non-Homesite Value: | + | $0 | |
| (+) Curr Use (HS): | + | $0 | $0 |
| (+) Curr Use (NHS): | + | $0 | $0 |
| | | -------------------------- | |
| (=) Market Value: | = | $489,976 | |
| (–) Productivity Loss: | – | $0 | |
| | | -------------------------- | |
| (=) Subtotal: | = | $489,976 | |
| (+) Senior Appraised Value: | + | $439,322 | |
| (+) Non-Senior Appraised Value: | + | $0 | |
| | | -------------------------- | |
| (=) Total Appraised Value: | = | $439,322 | |
| (–) Senior Exemption Loss: | – | $263,593 | |
| (–) Exemption Loss: | – | $0 | |
| | | -------------------------- | |
| (=) Taxable Value: | = | $175,729 | |
Taxing Jurisdiction
| Owner: | MARY E NARUO | | |
| % Ownership: | 100.0000000000% | | |
| Total Value: | $489,976 | | |
| Tax Area: | 0110 - C-50F1E1H2 |
| CE | COUNTY CURRENT EXPENSE | 0.9034619479 | $489,976 | $175,729 | $158.76 | | |
| CNTYDD | DEVELOPMENTAL DISABILITIES | 0.0052121823 | $489,976 | $175,729 | $0.92 | | |
| CNTYVET | VETERANS RELIEF | 0.0052777810 | $489,976 | $175,729 | $0.93 | | |
| MENTAL | MENTAL HEALTH | 0.0052121823 | $489,976 | $175,729 | $0.92 | | |
| PTGEN | CITY OF PT GENERAL | 0.8551967795 | $489,976 | $175,729 | $150.28 | | |
| PTLLL | CITY OF PT - LIBRARY LID LIFT | 0.4010114288 | $489,976 | $175,729 | $70.47 | | |
| PTMVBOND | CITY OF PT MV BOND | 0.0000000000 | $489,976 | $0 | $0.00 | | |
| HOSP2CASH | HOSP DIST #2 GENERAL | 0.0536075306 | $489,976 | $175,729 | $9.42 | | |
| SCH50BOND | SCHOOL DIST #50 BOND 2016 | 0.0000000000 | $489,976 | $0 | $0.00 | | |
| SCH50CP | SCHOOL DIST #50 CAP PROJ | 0.0000000000 | $489,976 | $0 | $0.00 | | |
| SCH50MO | SCHOOL DIST #50 EP & O | 0.0000000000 | $489,976 | $0 | $0.00 | | |
| CONSERVE | CONSERVATION FUTURES | 0.0275621078 | $489,976 | $175,729 | $4.84 | | |
| EMS1 | FIRE DIST #1 EMS | 0.4679948282 | $489,976 | $175,729 | $82.24 | | |
| FD1 | FIRE DIST #1 GENERAL | 1.2171942929 | $489,976 | $175,729 | $213.90 | | |
| PORTPT | PORT OF PT GENERAL | 0.1134941229 | $489,976 | $175,729 | $19.94 | | |
| PORTPTIDD | PORT OF PT IDD 2019 | 0.2577346692 | $489,976 | $175,729 | $45.29 | | |
| PUD1 | PUD #1 GENERAL | 0.0597888892 | $489,976 | $175,729 | $10.51 | | |
| STATE | STATE SCHOOL PART 1 | 1.4940692947 | $489,976 | $175,729 | $262.55 | | |
| STATE2 | STATE SCHOOL PART 2 | 0.0000000000 | $489,976 | $0 | $0.00 | | |
| | Total Tax Rate: | 5.8668180373 | | | | | |
| | | | | Taxes w/Current Exemptions: | $1,030.97 | | |
| | | | | Taxes w/o Exemptions: | $4,185.23 | | |
Improvement / Building
| Improvement #1: | Residential Bldg | State Code: | 11 | 1056.0 sqft | Value: | $331,351 |
| Bathrooms (#): | 1 (FULL) | Bathrooms (#): | 1 (HALF) | | Bedrooms (#): | 3 | Exterior Wall: | SI/ST | | Fireplace: | SIN 1-GOOD | Floor Construction: | FRAME | | Foundation: | CONPR | Heating/Cooling: | ELBB | | Inside Verify: | YES-FIX | Roof Cover: | COMP |
|
| | Type | Description | Class CD | Sub Class CD | Year Built | Area |
| | MA | Main Area | 4+ | 1S | 1976 | 1056.0 |
| | PATIO | House Patio | 4 | 1S | 1976 | 336.0 |
| | HCPOR | House Concrete Porch | 4 | 1S | 1976 | 96.0 |
| | GATT | House Attached Garage | 4 | 1S | 1976 | 504.0 |
| | SHED | Shed (Table Not Dep) | 4 | 1S | 1976 | 96.0 |
Sketch
Property Image
Land
| 1 | 6210-1185L | | 0.0000 | 0.00 | 0.00 | 0.00 | 1.00 | $135,000 | $0 |
| 2 | 6210-1185L | | 0.0000 | 0.00 | 0.00 | 0.00 | 1.00 | $23,625 | $0 |
Roll Value History
| 2026 | N/A | N/A | N/A | N/A | N/A |
| 2025 | $331,351 | $158,625 | $0 | $489,976 | $175,729 |
| 2024 | $335,928 | $147,263 | $0 | $483,191 | $175,729 |
| 2023 | $321,322 | $135,250 | $0 | $456,572 | $175,729 |
| 2022 | $321,322 | $118,000 | $0 | $439,322 | $175,729 |
Deed and Sales History
| 1 | 08/15/2016 | SWD | Statutory Warranty Deed | MARUICE V HUGHES | MARY E NARUO | | | $277,000.00 | 126096 | |
| 2 | 03/14/2000 | SWD | Statutory Warranty Deed | LANTZ, RICHARD G | HUGHES, MAURICE/LISA MOYER | 0 | 0 | $102,000.00 | 89203 | 0 |
| 3 | 01/10/2000 | QCD | Quit Claim Deed | LANTZ, RICHARD G/PHYLLIS | LANTZ, RICHARD G | 0 | 0 | $0.00 | 88744 | 0 |
Payout Agreement
| No payout information available.. |