Property
Account |
| Property ID: | 28053 | Abbreviated Legal Description: | EISENBEIS ADDITION BLK 206 LOTS 1 TO 8 |
| Parcel # / Geo ID: | 948320601 | Agent Code: | |
| Type: | Real | | |
| Tax Area: | 0110 - C-50F1E1H2 | Land Use Code | 13 |
| Open Space: | N | DFL | N |
| Historic Property: | N | Remodel Property: | N |
| Multi-Family Redevelopment: | N | | |
| Township: | 30N | Section: | 10 |
| Range: | 1W |
Location |
| Address: | 1509 9TH ST PORT TOWNSEND, WA 98368 | Mapsco: | 036/047 |
| Neighborhood: | SIMS WAY / SHERIDAN ST COMMERCIAL AREA TOP OF S CURVES | Map ID: | |
| Neighborhood CD: | 6210C |
Owner |
| Name: | MACK GOMEZ HOLDINGS LLC | Owner ID: | 113412 |
| Mailing Address: | 2020 WALNUT ST PORT TOWNSEND, WA 98368-3612 | % Ownership: | 100.0000000000% |
| | | Exemptions: | |
Pay Tax Due
Select the appropriate checkbox next to the year to be paid. Multiple years may be selected.
*Convenience Fee not included
Taxes and Assessment Details
Property Tax Information as of
03/11/2026
Click on "Statement Details" to expand or collapse a tax statement.
* Please enter a valid date ** Please enter a valid date *
Statement Details |
| 2026 | 17401 | STATE - STATE LEVY (SCHOOL) | $4999.00 | $4998.99 | $0.00 | $0.00 | $0.00 | $9997.99 |
| 2026 | 17401 | COUNTY - COUNTY LEVIES (CE, DD, VET, MH) | $1998.60 | $1998.56 | $0.00 | $0.00 | $0.00 | $3997.16 |
| 2026 | 17401 | CONSERVE - CONSERVATION FUTURES | $59.93 | $59.93 | $0.00 | $0.00 | $0.00 | $119.86 |
| 2026 | 17401 | CITYPT - CITY OF PT | $2836.83 | $2836.81 | $0.00 | $0.00 | $0.00 | $5673.64 |
| 2026 | 17401 | PORTPT - PORT DISTRICT | $807.19 | $807.17 | $0.00 | $0.00 | $0.00 | $1614.36 |
| 2026 | 17401 | PUD1 - PUD #1 | $130.00 | $130.00 | $0.00 | $0.00 | $0.00 | $260.00 |
| 2026 | 17401 | HD2 - HOSP DIST #2 | $116.56 | $116.56 | $0.00 | $0.00 | $0.00 | $233.12 |
| 2026 | 17401 | SD50 - SCHOOL DIST #50 | $3960.29 | $3960.29 | $0.00 | $0.00 | $0.00 | $7920.58 |
| 2026 | 17401 | FD1 - FIRE DISTRICT #1 | $2646.60 | $2646.59 | $0.00 | $0.00 | $0.00 | $5293.19 |
| 2026 | 17401 | EMS1 - FIRE DIST #1 EMS | $1017.58 | $1017.58 | $0.00 | $0.00 | $0.00 | $2035.16 |
| 2026 | 17401 | JCCD - JC Conservation District | $2.55 | $2.55 | $0.00 | $0.00 | $0.00 | $5.10 |
| 2026 | 17401 | NWA - Noxious Weed Assessment | $2.98 | $2.97 | $0.00 | $0.00 | $0.00 | $5.95 |
| 2026 | 17401 | TOTAL: | $18578.11 | $18578.00 | $0.00 | $0.00 | $0.00 | $37156.11 |
|
| 2026 | 17401 | $18578.11 | $18578.00 | $0.00 | $0.00 | $0.00 | $37156.11 |
Statement Details |
| 2025 | 17456 | STATE - STATE LEVY (SCHOOL) | $5040.84 | $5040.83 | $0.00 | $0.00 | $10081.67 | $0.00 |
| 2025 | 17456 | COUNTY - COUNTY LEVIES (CE, DD, VET, MH) | $1982.29 | $1982.26 | $0.00 | $0.00 | $3964.55 | $0.00 |
| 2025 | 17456 | CONSERVE - CONSERVATION FUTURES | $59.44 | $59.44 | $0.00 | $0.00 | $118.88 | $0.00 |
| 2025 | 17456 | CITYPT - CITY OF PT | $2858.67 | $2858.66 | $0.00 | $0.00 | $5717.33 | $0.00 |
| 2025 | 17456 | PORTPT - PORT DISTRICT | $808.88 | $808.88 | $0.00 | $0.00 | $1617.76 | $0.00 |
| 2025 | 17456 | PUD1 - PUD #1 | $129.71 | $129.71 | $0.00 | $0.00 | $259.42 | $0.00 |
| 2025 | 17456 | HD2 - HOSP DIST #2 | $115.65 | $115.65 | $0.00 | $0.00 | $231.30 | $0.00 |
| 2025 | 17456 | SD50 - SCHOOL DIST #50 | $3684.02 | $3684.01 | $0.00 | $0.00 | $7368.03 | $0.00 |
| 2025 | 17456 | FD1 - FIRE DISTRICT #1 | $2615.84 | $2615.83 | $0.00 | $0.00 | $5231.67 | $0.00 |
| 2025 | 17456 | EMS1 - FIRE DIST #1 EMS | $1006.12 | $1006.12 | $0.00 | $0.00 | $2012.24 | $0.00 |
| 2025 | 17456 | JCCD - JC Conservation District | $2.55 | $2.55 | $0.00 | $0.00 | $5.10 | $0.00 |
| 2025 | 17456 | NWA - Noxious Weed Assessment | $2.15 | $2.15 | $0.00 | $0.00 | $4.30 | $0.00 |
| 2025 | 17456 | TOTAL: | $18306.16 | $18306.09 | $0.00 | $0.00 | $36612.25 | $0.00 |
|
| 2025 | 17456 | $18306.16 | $18306.09 | $0.00 | $0.00 | $36612.25 | $0.00 |
Statement Details |
| 2024 | 17490 | STATE - STATE LEVY (SCHOOL) | $4846.01 | $4846.01 | $0.00 | $0.00 | $9692.02 | $0.00 |
| 2024 | 17490 | COUNTY - COUNTY LEVIES (CE, DD, VET, MH) | $2073.67 | $2073.65 | $0.00 | $0.00 | $4147.32 | $0.00 |
| 2024 | 17490 | CONSERVE - CONSERVATION FUTURES | $62.18 | $62.18 | $0.00 | $0.00 | $124.36 | $0.00 |
| 2024 | 17490 | CITYPT - CITY OF PT | $2962.96 | $2962.95 | $0.00 | $0.00 | $5925.91 | $0.00 |
| 2024 | 17490 | PORTPT - PORT DISTRICT | $856.51 | $856.50 | $0.00 | $0.00 | $1713.01 | $0.00 |
| 2024 | 17490 | PUD1 - PUD #1 | $136.21 | $136.20 | $0.00 | $0.00 | $272.41 | $0.00 |
| 2024 | 17490 | HD2 - HOSP DIST #2 | $121.00 | $120.99 | $0.00 | $0.00 | $241.99 | $0.00 |
| 2024 | 17490 | SD50 - SCHOOL DIST #50 | $3920.66 | $3920.63 | $0.00 | $0.00 | $7841.29 | $0.00 |
| 2024 | 17490 | FD1 - FIRE DISTRICT #1 | $2741.86 | $2741.86 | $0.00 | $0.00 | $5483.72 | $0.00 |
| 2024 | 17490 | EMS1 - FIRE DIST #1 EMS | $1047.29 | $1047.29 | $0.00 | $0.00 | $2094.58 | $0.00 |
| 2024 | 17490 | JCCD - JC Conservation District | $2.55 | $2.55 | $0.00 | $0.00 | $5.10 | $0.00 |
| 2024 | 17490 | NWA - Noxious Weed Assessment | $2.15 | $2.15 | $0.00 | $0.00 | $4.30 | $0.00 |
| 2024 | 17490 | TOTAL: | $18773.05 | $18772.96 | $0.00 | $0.00 | $37546.01 | $0.00 |
|
| 2024 | 17490 | $18773.05 | $18772.96 | $0.00 | $0.00 | $37546.01 | $0.00 |
Statement Details |
| 2023 | 17516 | STATE - STATE LEVY (SCHOOL) | $4713.02 | $4713.01 | $0.00 | $0.00 | $9426.03 | $0.00 |
| 2023 | 17516 | COUNTY - COUNTY LEVIES (CE, DD, VET, MH) | $2056.62 | $2056.60 | $0.00 | $0.00 | $4113.22 | $0.00 |
| 2023 | 17516 | CONSERVE - CONSERVATION FUTURES | $61.67 | $61.67 | $0.00 | $0.00 | $123.34 | $0.00 |
| 2023 | 17516 | CITYPT - CITY OF PT | $2906.70 | $2906.67 | $0.00 | $0.00 | $5813.37 | $0.00 |
| 2023 | 17516 | PORTPT - PORT DISTRICT | $866.36 | $866.35 | $0.00 | $0.00 | $1732.71 | $0.00 |
| 2023 | 17516 | PUD1 - PUD #1 | $136.33 | $136.32 | $0.00 | $0.00 | $272.65 | $0.00 |
| 2023 | 17516 | HD2 - HOSP DIST #2 | $120.01 | $120.01 | $0.00 | $0.00 | $240.02 | $0.00 |
| 2023 | 17516 | SD50 - SCHOOL DIST #50 | $3739.87 | $3739.86 | $0.00 | $0.00 | $7479.73 | $0.00 |
| 2023 | 17516 | FD1 - FIRE DISTRICT #1 | $1694.24 | $1694.24 | $0.00 | $0.00 | $3388.48 | $0.00 |
| 2023 | 17516 | EMS1 - FIRE DIST #1 EMS | $720.70 | $720.70 | $0.00 | $0.00 | $1441.40 | $0.00 |
| 2023 | 17516 | JCCD - JC Conservation District | $2.55 | $2.55 | $0.00 | $0.00 | $5.10 | $0.00 |
| 2023 | 17516 | NWA - Noxious Weed Assessment | $2.15 | $2.15 | $0.00 | $0.00 | $4.30 | $0.00 |
| 2023 | 17516 | TOTAL: | $17020.22 | $17020.13 | $0.00 | $0.00 | $34040.35 | $0.00 |
|
| 2023 | 17516 | $17020.22 | $17020.13 | $0.00 | $0.00 | $34040.35 | $0.00 |
Values
| (+) Improvement Homesite Value: | + | $0 | |
| (+) Improvement Non-Homesite Value: | + | $3,694,028 | |
| (+) Land Homesite Value: | + | $0 | |
| (+) Land Non-Homesite Value: | + | $654,655 | |
| (+) Curr Use (HS): | + | $0 | $0 |
| (+) Curr Use (NHS): | + | $0 | $0 |
| | | -------------------------- | |
| (=) Market Value: | = | $4,348,683 | |
| (–) Productivity Loss: | – | $0 | |
| | | -------------------------- | |
| (=) Subtotal: | = | $4,348,683 | |
| (+) Senior Appraised Value: | + | $0 | |
| (+) Non-Senior Appraised Value: | + | $4,348,683 | |
| | | -------------------------- | |
| (=) Total Appraised Value: | = | $4,348,683 | |
| (–) Senior Exemption Loss: | – | $0 | |
| (–) Exemption Loss: | – | $0 | |
| | | -------------------------- | |
| (=) Taxable Value: | = | $4,348,683 | |
Taxing Jurisdiction
| Owner: | MACK GOMEZ HOLDINGS LLC | | |
| % Ownership: | 100.0000000000% | | |
| Total Value: | $4,348,683 | | |
| Tax Area: | 0110 - C-50F1E1H2 |
| CE | COUNTY CURRENT EXPENSE | 0.9034619479 | $4,348,683 | $4,348,683 | $3,928.87 | | |
| CNTYDD | DEVELOPMENTAL DISABILITIES | 0.0052121823 | $4,348,683 | $4,348,683 | $22.67 | | |
| CNTYVET | VETERANS RELIEF | 0.0052777810 | $4,348,683 | $4,348,683 | $22.95 | | |
| MENTAL | MENTAL HEALTH | 0.0052121823 | $4,348,683 | $4,348,683 | $22.67 | | |
| PTGEN | CITY OF PT GENERAL | 0.8551967795 | $4,348,683 | $4,348,683 | $3,718.98 | | |
| PTLLL | CITY OF PT - LIBRARY LID LIFT | 0.4010114288 | $4,348,683 | $4,348,683 | $1,743.87 | | |
| PTMVBOND | CITY OF PT MV BOND | 0.0484717981 | $4,348,683 | $4,348,683 | $210.79 | | |
| HOSP2CASH | HOSP DIST #2 GENERAL | 0.0536075306 | $4,348,683 | $4,348,683 | $233.12 | | |
| SCH50BOND | SCHOOL DIST #50 BOND 2016 | 0.5377451389 | $4,348,683 | $4,348,683 | $2,338.48 | | |
| SCH50CP | SCHOOL DIST #50 CAP PROJ | 0.4573475088 | $4,348,683 | $4,348,683 | $1,988.86 | | |
| SCH50MO | SCHOOL DIST #50 EP & O | 0.8262822886 | $4,348,683 | $4,348,683 | $3,593.24 | | |
| CONSERVE | CONSERVATION FUTURES | 0.0275621078 | $4,348,683 | $4,348,683 | $119.86 | | |
| EMS1 | FIRE DIST #1 EMS | 0.4679948282 | $4,348,683 | $4,348,683 | $2,035.16 | | |
| FD1 | FIRE DIST #1 GENERAL | 1.2171942929 | $4,348,683 | $4,348,683 | $5,293.19 | | |
| PORTPT | PORT OF PT GENERAL | 0.1134941229 | $4,348,683 | $4,348,683 | $493.55 | | |
| PORTPTIDD | PORT OF PT IDD 2019 | 0.2577346692 | $4,348,683 | $4,348,683 | $1,120.81 | | |
| PUD1 | PUD #1 GENERAL | 0.0597888892 | $4,348,683 | $4,348,683 | $260.00 | | |
| STATE | STATE SCHOOL PART 1 | 1.4940692947 | $4,348,683 | $4,348,683 | $6,497.23 | | |
| STATE2 | STATE SCHOOL PART 2 | 0.8050170049 | $4,348,683 | $4,348,683 | $3,500.76 | | |
| | Total Tax Rate: | 8.5416817766 | | | | | |
| | | | | Taxes w/Current Exemptions: | $37,145.06 | | |
| | | | | Taxes w/o Exemptions: | $37,145.06 | | |
Improvement / Building
| Improvement #1: | Commercial/Industrial/Government Bldg | State Code: | 13 | 9438.0 sqft | Value: | $1,532,837 |
| Exterior Wall: | SI/ST | Floor Construction: | FRAME | | Foundation: | CONPR | Heating/Cooling: | ELBB | | Interior Finish: | FIN | Roof Cover: | COMP |
|
| Improvement #2: | Commercial/Industrial/Government Bldg | State Code: | 13 | 7393.0 sqft | Value: | $1,218,248 |
| Exterior Wall: | SI/ST | Floor Construction: | FRAME | | Foundation: | CONPR | Heating/Cooling: | ELBB | | Interior Finish: | FIN | Roof Cover: | COMP |
|
| Improvement #3: | Commercial/Industrial/Government Bldg | State Code: | 13 | 5566.0 sqft | Value: | $942,943 |
| Exterior Wall: | SI/ST | Floor Construction: | FRAME | | Foundation: | CONPR | Heating/Cooling: | ELBB | | Interior Finish: | FIN | Roof Cover: | COMP |
|
Sketch
Property Image
Land
| 1 | 6210-3273Q | | 0.9195 | 40052.00 | 0.00 | 0.00 | 0.00 | $654,655 | $0 |
Roll Value History
| 2026 | N/A | N/A | N/A | N/A | N/A |
| 2025 | $3,694,028 | $654,655 | $0 | $4,348,683 | $4,348,683 |
| 2024 | $3,573,532 | $630,624 | $0 | $4,204,156 | $4,204,156 |
| 2023 | $3,573,532 | $615,624 | $0 | $4,189,156 | $4,189,156 |
| 2022 | $3,403,363 | $600,624 | $0 | $4,003,987 | $4,003,987 |
Deed and Sales History
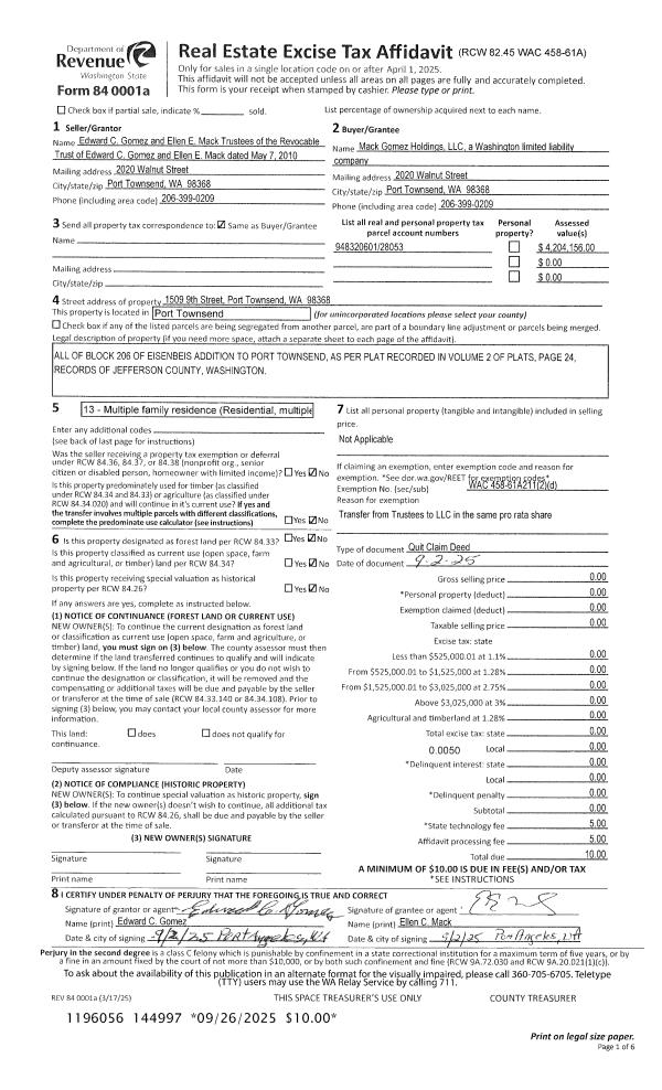
| 1 | 09/02/2025 | LEASE | Lease or Assignment of Lease | EDWARD GOMEZ & ELLEN MACK REVOCABLE TRUST | MACK GOMEZ HOLDINGS LLC | | | | 145024 | |
| 2 | 09/02/2025 | QCD | Quit Claim Deed | EDWARD GOMEZ & ELLEN MACK REVOCABLE TRUST | MACK GOMEZ HOLDINGS LLC | | | | 144997 | |
| 3 | 03/29/2021 | SWD | Statutory Warranty Deed | 1509 9TH ST LLC | EDWARD C GOMEZ & ELLEN E MACK REVOCABLE TRUST | | | $4,500,000.00 | 136404 | |
| 4 | 02/26/2020 | SWD | Statutory Warranty Deed | PUGET SOUND APARTMENTS LLC | 1509 9TH ST LLC | | | $2,900,000.00 | 134028 | |
| 5 | 12/22/2015 | SWD | Statutory Warranty Deed | M DOUGLAS RIGBY | PUGET SOUND APARTMENTS LLC | | | | 124680 | |
| 6 | 12/10/1999 | SWD | Statutory Warranty Deed | HIGDON, JOSEPH D/HARRIET | RIGBY, M DOUGLAS/KARREY L | 0 | 0 | $155,000.00 | 89030 | 0 |
Payout Agreement
| No payout information available.. |