Property
Account |
| Property ID: | 28184 | Abbreviated Legal Description: | EISENBEIS ADDITION BLK 274 LOTS 3 & 6 SUBJ/EASE |
| Parcel # / Geo ID: | 948327405 | Agent Code: | |
| Type: | Real | | |
| Tax Area: | 0110 - C-50F1E1H2 | Land Use Code | 11 |
| Open Space: | N | DFL | N |
| Historic Property: | N | Remodel Property: | N |
| Multi-Family Redevelopment: | N | | |
| Township: | 30N | Section: | 10 |
| Range: | 1W |
Location |
| Address: | 312 CLEVELAND ST PORT TOWNSEND, WA 98368 | Mapsco: | 040/021 |
| Neighborhood: | EISENBEIS, OC HASTINGS & SUPP, PINKS LESS VICTORIAN VILLAGE | Map ID: | |
| Neighborhood CD: | 6210 |
Owner |
| Name: | ANGELA GIANGRANDE-BRANTLEY | Owner ID: | 105553 |
| Mailing Address: | JEFFREY R BRANTLEY 700 BECKETT POINT RD PORT TOWNSEND, WA 98368-9027 | % Ownership: | 100.0000000000% |
| | | Exemptions: | |
Pay Tax Due
Select the appropriate checkbox next to the year to be paid. Multiple years may be selected.
*Convenience Fee not included
Taxes and Assessment Details
Property Tax Information as of
03/10/2026
Click on "Statement Details" to expand or collapse a tax statement.
* Please enter a valid date ** Please enter a valid date *
Statement Details |
| 2026 | 17524 | STATE - STATE LEVY (SCHOOL) | $995.52 | $995.50 | $0.00 | $0.00 | $0.00 | $1991.02 |
| 2026 | 17524 | COUNTY - COUNTY LEVIES (CE, DD, VET, MH) | $398.01 | $397.98 | $0.00 | $0.00 | $0.00 | $795.99 |
| 2026 | 17524 | CONSERVE - CONSERVATION FUTURES | $11.94 | $11.93 | $0.00 | $0.00 | $0.00 | $23.87 |
| 2026 | 17524 | CITYPT - CITY OF PT | $564.93 | $564.93 | $0.00 | $0.00 | $0.00 | $1129.86 |
| 2026 | 17524 | PORTPT - PORT DISTRICT | $160.75 | $160.74 | $0.00 | $0.00 | $0.00 | $321.49 |
| 2026 | 17524 | PUD1 - PUD #1 | $25.89 | $25.89 | $0.00 | $0.00 | $0.00 | $51.78 |
| 2026 | 17524 | HD2 - HOSP DIST #2 | $23.21 | $23.21 | $0.00 | $0.00 | $0.00 | $46.42 |
| 2026 | 17524 | SD50 - SCHOOL DIST #50 | $788.66 | $788.65 | $0.00 | $0.00 | $0.00 | $1577.31 |
| 2026 | 17524 | FD1 - FIRE DISTRICT #1 | $527.05 | $527.05 | $0.00 | $0.00 | $0.00 | $1054.10 |
| 2026 | 17524 | EMS1 - FIRE DIST #1 EMS | $202.65 | $202.64 | $0.00 | $0.00 | $0.00 | $405.29 |
| 2026 | 17524 | JCCD - JC Conservation District | $2.55 | $2.55 | $0.00 | $0.00 | $0.00 | $5.10 |
| 2026 | 17524 | NWA - Noxious Weed Assessment | $2.98 | $2.97 | $0.00 | $0.00 | $0.00 | $5.95 |
| 2026 | 17524 | TOTAL: | $3704.14 | $3704.04 | $0.00 | $0.00 | $0.00 | $7408.18 |
|
| 2026 | 17524 | $3704.14 | $3704.04 | $0.00 | $0.00 | $0.00 | $7408.18 |
Statement Details |
| 2025 | 17579 | STATE - STATE LEVY (SCHOOL) | $1269.57 | $1269.57 | $0.00 | $0.00 | $2539.14 | $0.00 |
| 2025 | 17579 | COUNTY - COUNTY LEVIES (CE, DD, VET, MH) | $499.26 | $499.24 | $0.00 | $0.00 | $998.50 | $0.00 |
| 2025 | 17579 | CONSERVE - CONSERVATION FUTURES | $14.97 | $14.97 | $0.00 | $0.00 | $29.94 | $0.00 |
| 2025 | 17579 | CITYPT - CITY OF PT | $719.98 | $719.97 | $0.00 | $0.00 | $1439.95 | $0.00 |
| 2025 | 17579 | PORTPT - PORT DISTRICT | $203.73 | $203.72 | $0.00 | $0.00 | $407.45 | $0.00 |
| 2025 | 17579 | PUD1 - PUD #1 | $32.67 | $32.67 | $0.00 | $0.00 | $65.34 | $0.00 |
| 2025 | 17579 | HD2 - HOSP DIST #2 | $29.13 | $29.12 | $0.00 | $0.00 | $58.25 | $0.00 |
| 2025 | 17579 | SD50 - SCHOOL DIST #50 | $927.86 | $927.83 | $0.00 | $0.00 | $1855.69 | $0.00 |
| 2025 | 17579 | FD1 - FIRE DISTRICT #1 | $658.82 | $658.81 | $0.00 | $0.00 | $1317.63 | $0.00 |
| 2025 | 17579 | EMS1 - FIRE DIST #1 EMS | $253.40 | $253.40 | $0.00 | $0.00 | $506.80 | $0.00 |
| 2025 | 17579 | JCCD - JC Conservation District | $2.55 | $2.55 | $0.00 | $0.00 | $5.10 | $0.00 |
| 2025 | 17579 | NWA - Noxious Weed Assessment | $2.15 | $2.15 | $0.00 | $0.00 | $4.30 | $0.00 |
| 2025 | 17579 | TOTAL: | $4614.09 | $4614.00 | $0.00 | $0.00 | $9228.09 | $0.00 |
|
| 2025 | 17579 | $4614.09 | $4614.00 | $0.00 | $0.00 | $9228.09 | $0.00 |
Statement Details |
| 2024 | 17613 | STATE - STATE LEVY (SCHOOL) | $1164.48 | $1164.47 | $0.00 | $0.00 | $2328.95 | $0.00 |
| 2024 | 17613 | COUNTY - COUNTY LEVIES (CE, DD, VET, MH) | $498.31 | $498.28 | $0.00 | $0.00 | $996.59 | $0.00 |
| 2024 | 17613 | CONSERVE - CONSERVATION FUTURES | $14.94 | $14.94 | $0.00 | $0.00 | $29.88 | $0.00 |
| 2024 | 17613 | CITYPT - CITY OF PT | $711.99 | $711.97 | $0.00 | $0.00 | $1423.96 | $0.00 |
| 2024 | 17613 | PORTPT - PORT DISTRICT | $205.82 | $205.81 | $0.00 | $0.00 | $411.63 | $0.00 |
| 2024 | 17613 | PUD1 - PUD #1 | $32.73 | $32.73 | $0.00 | $0.00 | $65.46 | $0.00 |
| 2024 | 17613 | HD2 - HOSP DIST #2 | $29.08 | $29.07 | $0.00 | $0.00 | $58.15 | $0.00 |
| 2024 | 17613 | SD50 - SCHOOL DIST #50 | $942.12 | $942.11 | $0.00 | $0.00 | $1884.23 | $0.00 |
| 2024 | 17613 | FD1 - FIRE DISTRICT #1 | $658.86 | $658.85 | $0.00 | $0.00 | $1317.71 | $0.00 |
| 2024 | 17613 | EMS1 - FIRE DIST #1 EMS | $251.66 | $251.66 | $0.00 | $0.00 | $503.32 | $0.00 |
| 2024 | 17613 | JCCD - JC Conservation District | $2.55 | $2.55 | $0.00 | $0.00 | $5.10 | $0.00 |
| 2024 | 17613 | NWA - Noxious Weed Assessment | $2.15 | $2.15 | $0.00 | $0.00 | $4.30 | $0.00 |
| 2024 | 17613 | TOTAL: | $4514.69 | $4514.59 | $0.00 | $0.00 | $9029.28 | $0.00 |
|
| 2024 | 17613 | $4514.69 | $4514.59 | $0.00 | $0.00 | $9029.28 | $0.00 |
Statement Details |
| 2023 | 17646 | STATE - STATE LEVY (SCHOOL) | $1179.01 | $1179.00 | $0.00 | $0.00 | $2358.01 | $0.00 |
| 2023 | 17646 | COUNTY - COUNTY LEVIES (CE, DD, VET, MH) | $514.48 | $514.47 | $0.00 | $0.00 | $1028.95 | $0.00 |
| 2023 | 17646 | CONSERVE - CONSERVATION FUTURES | $15.43 | $15.42 | $0.00 | $0.00 | $30.85 | $0.00 |
| 2023 | 17646 | CITYPT - CITY OF PT | $727.13 | $727.13 | $0.00 | $0.00 | $1454.26 | $0.00 |
| 2023 | 17646 | PORTPT - PORT DISTRICT | $216.73 | $216.72 | $0.00 | $0.00 | $433.45 | $0.00 |
| 2023 | 17646 | PUD1 - PUD #1 | $34.11 | $34.10 | $0.00 | $0.00 | $68.21 | $0.00 |
| 2023 | 17646 | HD2 - HOSP DIST #2 | $30.02 | $30.02 | $0.00 | $0.00 | $60.04 | $0.00 |
| 2023 | 17646 | SD50 - SCHOOL DIST #50 | $935.57 | $935.55 | $0.00 | $0.00 | $1871.12 | $0.00 |
| 2023 | 17646 | FD1 - FIRE DISTRICT #1 | $423.83 | $423.83 | $0.00 | $0.00 | $847.66 | $0.00 |
| 2023 | 17646 | EMS1 - FIRE DIST #1 EMS | $180.29 | $180.29 | $0.00 | $0.00 | $360.58 | $0.00 |
| 2023 | 17646 | JCCD - JC Conservation District | $2.55 | $2.55 | $0.00 | $0.00 | $5.10 | $0.00 |
| 2023 | 17646 | NWA - Noxious Weed Assessment | $2.15 | $2.15 | $0.00 | $0.00 | $4.30 | $0.00 |
| 2023 | 17646 | TOTAL: | $4261.30 | $4261.23 | $0.00 | $0.00 | $8522.53 | $0.00 |
|
| 2023 | 17646 | $4261.30 | $4261.23 | $0.00 | $0.00 | $8522.53 | $0.00 |
Values
| (+) Improvement Homesite Value: | + | $0 | |
| (+) Improvement Non-Homesite Value: | + | $566,004 | |
| (+) Land Homesite Value: | + | $0 | |
| (+) Land Non-Homesite Value: | + | $300,000 | |
| (+) Curr Use (HS): | + | $0 | $0 |
| (+) Curr Use (NHS): | + | $0 | $0 |
| | | -------------------------- | |
| (=) Market Value: | = | $866,004 | |
| (–) Productivity Loss: | – | $0 | |
| | | -------------------------- | |
| (=) Subtotal: | = | $866,004 | |
| (+) Senior Appraised Value: | + | $0 | |
| (+) Non-Senior Appraised Value: | + | $866,004 | |
| | | -------------------------- | |
| (=) Total Appraised Value: | = | $866,004 | |
| (–) Senior Exemption Loss: | – | $0 | |
| (–) Exemption Loss: | – | $0 | |
| | | -------------------------- | |
| (=) Taxable Value: | = | $866,004 | |
Taxing Jurisdiction
| Owner: | ANGELA GIANGRANDE-BRANTLEY | | |
| % Ownership: | 100.0000000000% | | |
| Total Value: | $866,004 | | |
| Tax Area: | 0110 - C-50F1E1H2 |
| CE | COUNTY CURRENT EXPENSE | 0.9034619479 | $866,004 | $866,004 | $782.40 | | |
| CNTYDD | DEVELOPMENTAL DISABILITIES | 0.0052121823 | $866,004 | $866,004 | $4.51 | | |
| CNTYVET | VETERANS RELIEF | 0.0052777810 | $866,004 | $866,004 | $4.57 | | |
| MENTAL | MENTAL HEALTH | 0.0052121823 | $866,004 | $866,004 | $4.51 | | |
| PTGEN | CITY OF PT GENERAL | 0.8551967795 | $866,004 | $866,004 | $740.60 | | |
| PTLLL | CITY OF PT - LIBRARY LID LIFT | 0.4010114288 | $866,004 | $866,004 | $347.28 | | |
| PTMVBOND | CITY OF PT MV BOND | 0.0484717981 | $866,004 | $866,004 | $41.98 | | |
| HOSP2CASH | HOSP DIST #2 GENERAL | 0.0536075306 | $866,004 | $866,004 | $46.42 | | |
| SCH50BOND | SCHOOL DIST #50 BOND 2016 | 0.5377451389 | $866,004 | $866,004 | $465.69 | | |
| SCH50CP | SCHOOL DIST #50 CAP PROJ | 0.4573475088 | $866,004 | $866,004 | $396.06 | | |
| SCH50MO | SCHOOL DIST #50 EP & O | 0.8262822886 | $866,004 | $866,004 | $715.56 | | |
| CONSERVE | CONSERVATION FUTURES | 0.0275621078 | $866,004 | $866,004 | $23.87 | | |
| EMS1 | FIRE DIST #1 EMS | 0.4679948282 | $866,004 | $866,004 | $405.29 | | |
| FD1 | FIRE DIST #1 GENERAL | 1.2171942929 | $866,004 | $866,004 | $1,054.10 | | |
| PORTPT | PORT OF PT GENERAL | 0.1134941229 | $866,004 | $866,004 | $98.29 | | |
| PORTPTIDD | PORT OF PT IDD 2019 | 0.2577346692 | $866,004 | $866,004 | $223.20 | | |
| PUD1 | PUD #1 GENERAL | 0.0597888892 | $866,004 | $866,004 | $51.78 | | |
| STATE | STATE SCHOOL PART 1 | 1.4940692947 | $866,004 | $866,004 | $1,293.87 | | |
| STATE2 | STATE SCHOOL PART 2 | 0.8050170049 | $866,004 | $866,004 | $697.15 | | |
| | Total Tax Rate: | 8.5416817766 | | | | | |
| | | | | Taxes w/Current Exemptions: | $7,397.13 | | |
| | | | | Taxes w/o Exemptions: | $7,397.13 | | |
Improvement / Building
| Improvement #1: | Residential Bldg | State Code: | 11 | 2244.0 sqft | Value: | $566,004 |
| Bathrooms (#): | 3 (FULL) | Bathrooms (#): | 1 (HALF) | | Bedrooms (#): | 4 | Exterior Wall: | SI/ST | | Fireplace: | WD ST-GOOD | Floor Construction: | FRAME | | Foundation: | CONPR | Heating/Cooling: | HPUMP | | Inside Verify: | YES-FIX | Roof Cover: | TILE |
|
| | Type | Description | Class CD | Sub Class CD | Year Built | Area |
| | MA | Main Area | 4- | 2S | 1994 | 1122.0 |
| | MA2 | Second Floor Main Area | 4- | 2S | 1994 | 1122.0 |
| | PATIO | House Patio | 4 | 2S | 1994 | 208.0 |
| | HWPOR | House Wood Porch | 4 | 2S | 1994 | 64.0 |
| | HDECK | House Deck | 4 | 2S | 1994 | 476.0 |
| | GATT | House Attached Garage | 4 | 2S | 1994 | 576.0 |
| | BSMTF | House basement finished | 4 | 2S | 1994 | 406.0 |
| | BSMTU | House basement unfinished | 4 | 2S | 1994 | 666.0 |
Sketch
Property Image
Land
| 1 | 6210-1155L | | 0.2296 | 10000.00 | 0.00 | 0.00 | 1.00 | $220,000 | $0 |
| 2 | 6210-1165L | | 0.0000 | 0.00 | 0.00 | 0.00 | 1.00 | $80,000 | $0 |
Roll Value History
| 2026 | N/A | N/A | N/A | N/A | N/A |
| 2025 | $566,004 | $300,000 | $0 | $866,004 | $866,004 |
| 2024 | $775,345 | $283,500 | $0 | $1,058,845 | $1,058,845 |
| 2023 | $741,634 | $265,000 | $0 | $1,006,634 | $1,006,634 |
| 2022 | $741,634 | $260,000 | $0 | $1,001,634 | $1,001,634 |
Deed and Sales History
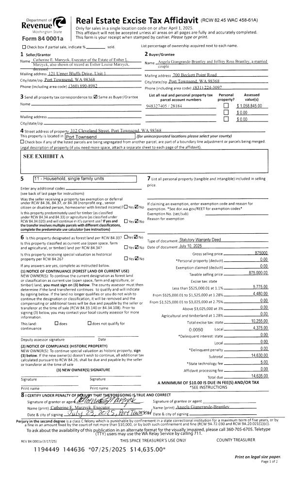
| 1 | 07/10/2025 | SWD | Statutory Warranty Deed | GERALD A MARZYCK | ANGELA GIANGRANDE-BRANTLEY | | | $875,000.00 | 144636 | |
| 2 | 07/23/1997 | DTH CERT | Death Certificate | GERALD A MARZYCK | | | | | 0 | GERALD'S 402311 |
| 3 | 07/23/1997 | CPA | Community Property Agreement | GERALD A MARZYCK | | | | | 0 | 402310 |
| 4 | 01/26/1993 | SWD | Statutory Warranty Deed | DEJUSTO, MICHAEL A | MARZYCK, GERALD A/ESTHER L | 0 | 0 | $67,500.00 | 70352 | 0 |
| 5 | 01/24/1992 | QCD | Quit Claim Deed | DIGUISTO ENTERPRISES LMTD | DEJUSTO, MICHAEL A | 0 | 0 | $0.00 | 67736 | 0 |
Payout Agreement
| No payout information available.. |