Property
Account |
| Property ID: | 28229 | Abbreviated Legal Description: | EISENBEIS ADDITION BLK 284 LOT 5 |
| Parcel # / Geo ID: | 948328402 | Agent Code: | |
| Type: | Real | | |
| Tax Area: | 0110 - C-50F1E1H2 | Land Use Code | 91 |
| Open Space: | N | DFL | N |
| Historic Property: | N | Remodel Property: | N |
| Multi-Family Redevelopment: | N | | |
| Township: | 30N | Section: | 9 |
| Range: | 1W |
Location |
| Address: | | Mapsco: | 041/009 |
| Neighborhood: | SIMS WAY / SHERIDAN ST COMMERCIAL AREA TOP OF S CURVES | Map ID: | |
| Neighborhood CD: | 6210C |
Owner |
| Name: | HABITAT FOR HUMANITY OF EAST | Owner ID: | 17187 |
| Mailing Address: | JEFFERSON COUNTY PO BOX 658 PORT TOWNSEND, WA 98368-0658 | % Ownership: | 100.0000000000% |
| | | Exemptions: | |
Pay Tax Due
Select the appropriate checkbox next to the year to be paid. Multiple years may be selected.
*Convenience Fee not included
Taxes and Assessment Details
Property Tax Information as of
03/11/2026
Click on "Statement Details" to expand or collapse a tax statement.
* Please enter a valid date ** Please enter a valid date *
Statement Details |
| 2026 | 17568 | STATE - STATE LEVY (SCHOOL) | $54.32 | $54.31 | $0.00 | $0.00 | $0.00 | $108.63 |
| 2026 | 17568 | COUNTY - COUNTY LEVIES (CE, DD, VET, MH) | $21.74 | $21.70 | $0.00 | $0.00 | $0.00 | $43.44 |
| 2026 | 17568 | CONSERVE - CONSERVATION FUTURES | $0.65 | $0.65 | $0.00 | $0.00 | $0.00 | $1.30 |
| 2026 | 17568 | CITYPT - CITY OF PT | $30.84 | $30.81 | $0.00 | $0.00 | $0.00 | $61.65 |
| 2026 | 17568 | PORTPT - PORT DISTRICT | $8.77 | $8.77 | $0.00 | $0.00 | $0.00 | $17.54 |
| 2026 | 17568 | PUD1 - PUD #1 | $1.42 | $1.41 | $0.00 | $0.00 | $0.00 | $2.83 |
| 2026 | 17568 | HD2 - HOSP DIST #2 | $1.27 | $1.26 | $0.00 | $0.00 | $0.00 | $2.53 |
| 2026 | 17568 | SD50 - SCHOOL DIST #50 | $43.04 | $43.02 | $0.00 | $0.00 | $0.00 | $86.06 |
| 2026 | 17568 | FD1 - FIRE DISTRICT #1 | $28.76 | $28.75 | $0.00 | $0.00 | $0.00 | $57.51 |
| 2026 | 17568 | EMS1 - FIRE DIST #1 EMS | $11.06 | $11.05 | $0.00 | $0.00 | $0.00 | $22.11 |
| 2026 | 17568 | JCCD - JC Conservation District | $2.53 | $2.53 | $0.00 | $0.00 | $0.00 | $5.06 |
| 2026 | 17568 | NWA - Noxious Weed Assessment | $2.98 | $2.97 | $0.00 | $0.00 | $0.00 | $5.95 |
| 2026 | 17568 | WAT - Clean Water District | $13.00 | $13.00 | $0.00 | $0.00 | $0.00 | $26.00 |
| 2026 | 17568 | TOTAL: | $220.38 | $220.23 | $0.00 | $0.00 | $0.00 | $440.61 |
|
| 2026 | 17568 | $220.38 | $220.23 | $0.00 | $0.00 | $0.00 | $440.61 |
Statement Details |
| 2025 | 17623 | STATE - STATE LEVY (SCHOOL) | $56.66 | $56.65 | $0.00 | $0.00 | $113.31 | $0.00 |
| 2025 | 17623 | COUNTY - COUNTY LEVIES (CE, DD, VET, MH) | $22.29 | $22.27 | $0.00 | $0.00 | $44.56 | $0.00 |
| 2025 | 17623 | CONSERVE - CONSERVATION FUTURES | $0.67 | $0.67 | $0.00 | $0.00 | $1.34 | $0.00 |
| 2025 | 17623 | CITYPT - CITY OF PT | $32.13 | $32.12 | $0.00 | $0.00 | $64.25 | $0.00 |
| 2025 | 17623 | PORTPT - PORT DISTRICT | $9.09 | $9.09 | $0.00 | $0.00 | $18.18 | $0.00 |
| 2025 | 17623 | PUD1 - PUD #1 | $1.46 | $1.46 | $0.00 | $0.00 | $2.92 | $0.00 |
| 2025 | 17623 | HD2 - HOSP DIST #2 | $1.30 | $1.30 | $0.00 | $0.00 | $2.60 | $0.00 |
| 2025 | 17623 | SD50 - SCHOOL DIST #50 | $41.42 | $41.39 | $0.00 | $0.00 | $82.81 | $0.00 |
| 2025 | 17623 | FD1 - FIRE DISTRICT #1 | $29.40 | $29.40 | $0.00 | $0.00 | $58.80 | $0.00 |
| 2025 | 17623 | EMS1 - FIRE DIST #1 EMS | $11.31 | $11.31 | $0.00 | $0.00 | $22.62 | $0.00 |
| 2025 | 17623 | JCCD - JC Conservation District | $2.53 | $2.53 | $0.00 | $0.00 | $5.06 | $0.00 |
| 2025 | 17623 | NWA - Noxious Weed Assessment | $2.15 | $2.15 | $0.00 | $0.00 | $4.30 | $0.00 |
| 2025 | 17623 | WAT - Clean Water District | $13.00 | $13.00 | $0.00 | $0.00 | $26.00 | $0.00 |
| 2025 | 17623 | TOTAL: | $223.41 | $223.34 | $0.00 | $0.00 | $446.75 | $0.00 |
|
| 2025 | 17623 | $223.41 | $223.34 | $0.00 | $0.00 | $446.75 | $0.00 |
Statement Details |
| 2024 | 17657 | STATE - STATE LEVY (SCHOOL) | $52.06 | $52.05 | $0.00 | $0.00 | $104.11 | $0.00 |
| 2024 | 17657 | COUNTY - COUNTY LEVIES (CE, DD, VET, MH) | $22.29 | $22.25 | $0.00 | $0.00 | $44.54 | $0.00 |
| 2024 | 17657 | CONSERVE - CONSERVATION FUTURES | $0.67 | $0.67 | $0.00 | $0.00 | $1.34 | $0.00 |
| 2024 | 17657 | CITYPT - CITY OF PT | $31.83 | $31.82 | $0.00 | $0.00 | $63.65 | $0.00 |
| 2024 | 17657 | PORTPT - PORT DISTRICT | $9.20 | $9.20 | $0.00 | $0.00 | $18.40 | $0.00 |
| 2024 | 17657 | PUD1 - PUD #1 | $1.47 | $1.46 | $0.00 | $0.00 | $2.93 | $0.00 |
| 2024 | 17657 | HD2 - HOSP DIST #2 | $1.30 | $1.30 | $0.00 | $0.00 | $2.60 | $0.00 |
| 2024 | 17657 | SD50 - SCHOOL DIST #50 | $42.12 | $42.11 | $0.00 | $0.00 | $84.23 | $0.00 |
| 2024 | 17657 | FD1 - FIRE DISTRICT #1 | $29.46 | $29.45 | $0.00 | $0.00 | $58.91 | $0.00 |
| 2024 | 17657 | EMS1 - FIRE DIST #1 EMS | $11.25 | $11.25 | $0.00 | $0.00 | $22.50 | $0.00 |
| 2024 | 17657 | JCCD - JC Conservation District | $2.53 | $2.53 | $0.00 | $0.00 | $5.06 | $0.00 |
| 2024 | 17657 | NWA - Noxious Weed Assessment | $2.15 | $2.15 | $0.00 | $0.00 | $4.30 | $0.00 |
| 2024 | 17657 | WAT - Clean Water District | $12.50 | $12.50 | $0.00 | $0.00 | $25.00 | $0.00 |
| 2024 | 17657 | TOTAL: | $218.83 | $218.74 | $0.00 | $0.00 | $437.57 | $0.00 |
|
| 2024 | 17657 | $218.83 | $218.74 | $0.00 | $0.00 | $437.57 | $0.00 |
Statement Details |
| 2023 | 17690 | STATE - STATE LEVY (SCHOOL) | $47.09 | $47.08 | $0.00 | $0.00 | $94.17 | $0.00 |
| 2023 | 17690 | COUNTY - COUNTY LEVIES (CE, DD, VET, MH) | $20.56 | $20.53 | $0.00 | $0.00 | $41.09 | $0.00 |
| 2023 | 17690 | CONSERVE - CONSERVATION FUTURES | $0.62 | $0.61 | $0.00 | $0.00 | $1.23 | $0.00 |
| 2023 | 17690 | CITYPT - CITY OF PT | $29.05 | $29.02 | $0.00 | $0.00 | $58.07 | $0.00 |
| 2023 | 17690 | PORTPT - PORT DISTRICT | $8.66 | $8.65 | $0.00 | $0.00 | $17.31 | $0.00 |
| 2023 | 17690 | PUD1 - PUD #1 | $1.36 | $1.36 | $0.00 | $0.00 | $2.72 | $0.00 |
| 2023 | 17690 | HD2 - HOSP DIST #2 | $1.20 | $1.20 | $0.00 | $0.00 | $2.40 | $0.00 |
| 2023 | 17690 | SD50 - SCHOOL DIST #50 | $37.37 | $37.35 | $0.00 | $0.00 | $74.72 | $0.00 |
| 2023 | 17690 | FD1 - FIRE DISTRICT #1 | $16.93 | $16.92 | $0.00 | $0.00 | $33.85 | $0.00 |
| 2023 | 17690 | EMS1 - FIRE DIST #1 EMS | $7.20 | $7.20 | $0.00 | $0.00 | $14.40 | $0.00 |
| 2023 | 17690 | JCCD - JC Conservation District | $2.53 | $2.53 | $0.00 | $0.00 | $5.06 | $0.00 |
| 2023 | 17690 | NWA - Noxious Weed Assessment | $2.15 | $2.15 | $0.00 | $0.00 | $4.30 | $0.00 |
| 2023 | 17690 | WAT - Clean Water District | $12.00 | $12.00 | $0.00 | $0.00 | $24.00 | $0.00 |
| 2023 | 17690 | TOTAL: | $186.72 | $186.60 | $0.00 | $0.00 | $373.32 | $0.00 |
|
| 2023 | 17690 | $186.72 | $186.60 | $0.00 | $0.00 | $373.32 | $0.00 |
Values
| (+) Improvement Homesite Value: | + | $0 | |
| (+) Improvement Non-Homesite Value: | + | $0 | |
| (+) Land Homesite Value: | + | $0 | |
| (+) Land Non-Homesite Value: | + | $47,250 | |
| (+) Curr Use (HS): | + | $0 | $0 |
| (+) Curr Use (NHS): | + | $0 | $0 |
| | | -------------------------- | |
| (=) Market Value: | = | $47,250 | |
| (–) Productivity Loss: | – | $0 | |
| | | -------------------------- | |
| (=) Subtotal: | = | $47,250 | |
| (+) Senior Appraised Value: | + | $0 | |
| (+) Non-Senior Appraised Value: | + | $47,250 | |
| | | -------------------------- | |
| (=) Total Appraised Value: | = | $47,250 | |
| (–) Senior Exemption Loss: | – | $0 | |
| (–) Exemption Loss: | – | $0 | |
| | | -------------------------- | |
| (=) Taxable Value: | = | $47,250 | |
Taxing Jurisdiction
| Owner: | HABITAT FOR HUMANITY OF EAST | | |
| % Ownership: | 100.0000000000% | | |
| Total Value: | $47,250 | | |
| Tax Area: | 0110 - C-50F1E1H2 |
| CE | COUNTY CURRENT EXPENSE | 0.9034619479 | $47,250 | $47,250 | $42.69 | | |
| CNTYDD | DEVELOPMENTAL DISABILITIES | 0.0052121823 | $47,250 | $47,250 | $0.25 | | |
| CNTYVET | VETERANS RELIEF | 0.0052777810 | $47,250 | $47,250 | $0.25 | | |
| MENTAL | MENTAL HEALTH | 0.0052121823 | $47,250 | $47,250 | $0.25 | | |
| PTGEN | CITY OF PT GENERAL | 0.8551967795 | $47,250 | $47,250 | $40.41 | | |
| PTLLL | CITY OF PT - LIBRARY LID LIFT | 0.4010114288 | $47,250 | $47,250 | $18.95 | | |
| PTMVBOND | CITY OF PT MV BOND | 0.0484717981 | $47,250 | $47,250 | $2.29 | | |
| HOSP2CASH | HOSP DIST #2 GENERAL | 0.0536075306 | $47,250 | $47,250 | $2.53 | | |
| SCH50BOND | SCHOOL DIST #50 BOND 2016 | 0.5377451389 | $47,250 | $47,250 | $25.41 | | |
| SCH50CP | SCHOOL DIST #50 CAP PROJ | 0.4573475088 | $47,250 | $47,250 | $21.61 | | |
| SCH50MO | SCHOOL DIST #50 EP & O | 0.8262822886 | $47,250 | $47,250 | $39.04 | | |
| CONSERVE | CONSERVATION FUTURES | 0.0275621078 | $47,250 | $47,250 | $1.30 | | |
| EMS1 | FIRE DIST #1 EMS | 0.4679948282 | $47,250 | $47,250 | $22.11 | | |
| FD1 | FIRE DIST #1 GENERAL | 1.2171942929 | $47,250 | $47,250 | $57.51 | | |
| PORTPT | PORT OF PT GENERAL | 0.1134941229 | $47,250 | $47,250 | $5.36 | | |
| PORTPTIDD | PORT OF PT IDD 2019 | 0.2577346692 | $47,250 | $47,250 | $12.18 | | |
| PUD1 | PUD #1 GENERAL | 0.0597888892 | $47,250 | $47,250 | $2.83 | | |
| STATE | STATE SCHOOL PART 1 | 1.4940692947 | $47,250 | $47,250 | $70.59 | | |
| STATE2 | STATE SCHOOL PART 2 | 0.8050170049 | $47,250 | $47,250 | $38.04 | | |
| | Total Tax Rate: | 8.5416817766 | | | | | |
| | | | | Taxes w/Current Exemptions: | $403.60 | | |
| | | | | Taxes w/o Exemptions: | $403.60 | | |
Improvement / Building
Sketch
| No sketches available for this property. |
Property Image
Land
| 1 | 6210-1185L | | 0.1148 | 5001.00 | 0.00 | 0.00 | 1.00 | $47,250 | $0 |
Roll Value History
| 2026 | N/A | N/A | N/A | N/A | N/A |
| 2025 | $0 | $47,250 | $0 | $47,250 | $47,250 |
| 2024 | $0 | $47,250 | $0 | $47,250 | $47,250 |
| 2023 | $0 | $45,000 | $0 | $45,000 | $45,000 |
| 2022 | $0 | $40,000 | $0 | $40,000 | $40,000 |
Deed and Sales History
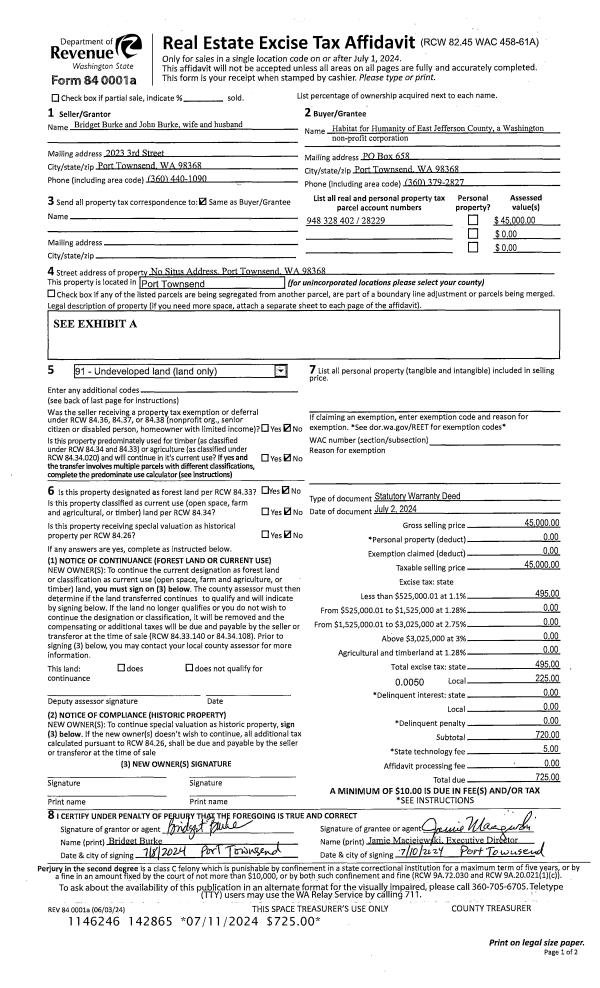
| 1 | 07/02/2024 | SWD | Statutory Warranty Deed | JOHN & BRIDGET BURKE | HABITAT FOR HUMANITY OF EAST | | | $45,000.00 | 142865 | |
| 2 | 09/05/2018 | SWD | Statutory Warranty Deed | MILDRED F SMITH LIVING TRUST | JOHN & BRIDGET BURKE | | | $25,000.00 | 130995 | |
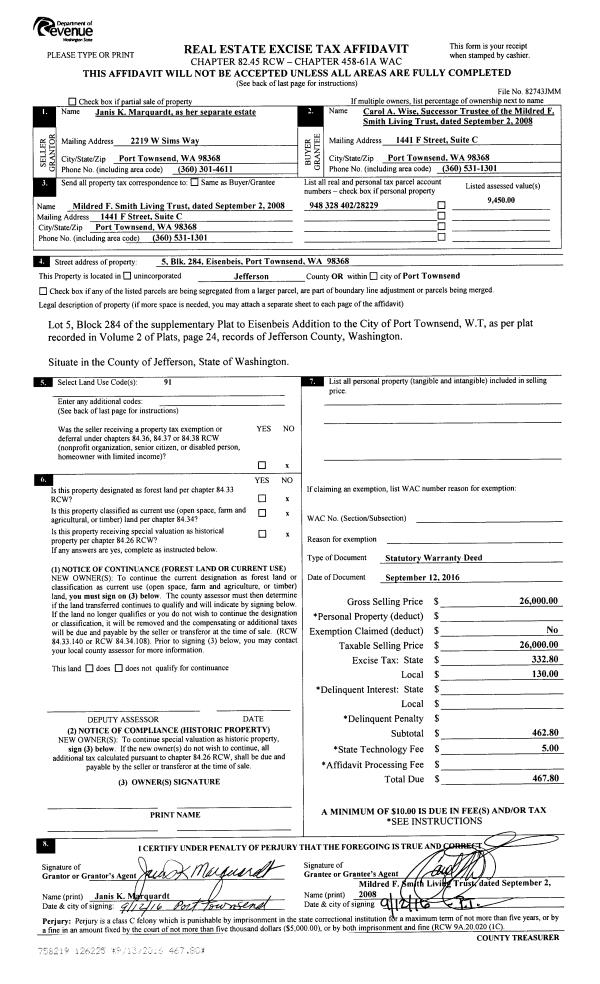
| 3 | 09/12/2016 | SWD | Statutory Warranty Deed | JANIS K MARQUARDT | MILDRED F SMITH LIVING TRUST | | | $26,000.00 | 126225 | |
| 4 | 08/21/2011 | QCD | Quit Claim Deed | SHAFFER, TOMOKO R | MARQUARDT, JANIS K | 0 | 0 | $0.00 | 116510 | 0 |
| 5 | 04/25/2005 | SWD | Statutory Warranty Deed | LINDBERG, BRENT | MARQUARDT, JANIS/SHAFFER, | | | $17,500.00 | 103328 | 0 |
| 6 | 12/06/1996 | TXD | Tax Deed | JEFFERSON COUNTY | LINDBERG, BRENT | 0 | 0 | $0.00 | 80956 | 0 |
Payout Agreement
| No payout information available.. |