Property
Account |
| Property ID: | 28231 | Abbreviated Legal Description: | EISENBEIS ADDITION BLK 284 LOTS 1 & 2-CITY APPROVAL LETTER |
| Parcel # / Geo ID: | 948328404 | Agent Code: | |
| Type: | Real | | |
| Tax Area: | 0110 - C-50F1E1H2 | Land Use Code | 65 |
| Open Space: | N | DFL | N |
| Historic Property: | N | Remodel Property: | N |
| Multi-Family Redevelopment: | N | | |
| Township: | 30N | Section: | 10 |
| Range: | 1W |
Location |
| Address: | 2009A 4TH ST PORT TOWNSEND, WA 98368 | Mapsco: | 041/006 |
| Neighborhood: | SIMS WAY / SHERIDAN ST COMMERCIAL AREA TOP OF S CURVES | Map ID: | |
| Neighborhood CD: | 6210C |
Owner |
| Name: | HABITAT FOR HUMANITY OF EAST | Owner ID: | 17187 |
| Mailing Address: | JEFFERSON COUNTY PO BOX 658 PORT TOWNSEND, WA 98368-0658 | % Ownership: | 100.0000000000% |
| | | Exemptions: | DOR |
Pay Tax Due
Select the appropriate checkbox next to the year to be paid. Multiple years may be selected.
*Convenience Fee not included
Taxes and Assessment Details
Property Tax Information as of
03/09/2026
Click on "Statement Details" to expand or collapse a tax statement.
* Please enter a valid date ** Please enter a valid date *
Statement Details |
| 2026 | 17570 | STATE - STATE LEVY (SCHOOL) | $0.00 | $0.00 | $0.00 | $0.00 | $0.00 | $0.00 |
| 2026 | 17570 | COUNTY - COUNTY LEVIES (CE, DD, VET, MH) | $0.00 | $0.00 | $0.00 | $0.00 | $0.00 | $0.00 |
| 2026 | 17570 | CONSERVE - CONSERVATION FUTURES | $0.00 | $0.00 | $0.00 | $0.00 | $0.00 | $0.00 |
| 2026 | 17570 | CITYPT - CITY OF PT | $0.00 | $0.00 | $0.00 | $0.00 | $0.00 | $0.00 |
| 2026 | 17570 | PORTPT - PORT DISTRICT | $0.00 | $0.00 | $0.00 | $0.00 | $0.00 | $0.00 |
| 2026 | 17570 | PUD1 - PUD #1 | $0.00 | $0.00 | $0.00 | $0.00 | $0.00 | $0.00 |
| 2026 | 17570 | HD2 - HOSP DIST #2 | $0.00 | $0.00 | $0.00 | $0.00 | $0.00 | $0.00 |
| 2026 | 17570 | SD50 - SCHOOL DIST #50 | $0.00 | $0.00 | $0.00 | $0.00 | $0.00 | $0.00 |
| 2026 | 17570 | FD1 - FIRE DISTRICT #1 | $0.00 | $0.00 | $0.00 | $0.00 | $0.00 | $0.00 |
| 2026 | 17570 | EMS1 - FIRE DIST #1 EMS | $0.00 | $0.00 | $0.00 | $0.00 | $0.00 | $0.00 |
| 2026 | 17570 | JCCD - JC Conservation District | $5.06 | $0.00 | $0.00 | $0.00 | $0.00 | $5.06 |
| 2026 | 17570 | NWA - Noxious Weed Assessment | $5.95 | $0.00 | $0.00 | $0.00 | $0.00 | $5.95 |
| 2026 | 17570 | TOTAL: | $11.01 | $0.00 | $0.00 | $0.00 | $0.00 | $11.01 |
|
| 2026 | 17570 | $11.01 | $0.00 | $0.00 | $0.00 | $0.00 | $11.01 |
Statement Details |
| 2025 | 17625 | STATE - STATE LEVY (SCHOOL) | $0.00 | $0.00 | $0.00 | $0.00 | $0.00 | $0.00 |
| 2025 | 17625 | COUNTY - COUNTY LEVIES (CE, DD, VET, MH) | $0.00 | $0.00 | $0.00 | $0.00 | $0.00 | $0.00 |
| 2025 | 17625 | CONSERVE - CONSERVATION FUTURES | $0.00 | $0.00 | $0.00 | $0.00 | $0.00 | $0.00 |
| 2025 | 17625 | CITYPT - CITY OF PT | $0.00 | $0.00 | $0.00 | $0.00 | $0.00 | $0.00 |
| 2025 | 17625 | PORTPT - PORT DISTRICT | $0.00 | $0.00 | $0.00 | $0.00 | $0.00 | $0.00 |
| 2025 | 17625 | PUD1 - PUD #1 | $0.00 | $0.00 | $0.00 | $0.00 | $0.00 | $0.00 |
| 2025 | 17625 | HD2 - HOSP DIST #2 | $0.00 | $0.00 | $0.00 | $0.00 | $0.00 | $0.00 |
| 2025 | 17625 | SD50 - SCHOOL DIST #50 | $0.00 | $0.00 | $0.00 | $0.00 | $0.00 | $0.00 |
| 2025 | 17625 | FD1 - FIRE DISTRICT #1 | $0.00 | $0.00 | $0.00 | $0.00 | $0.00 | $0.00 |
| 2025 | 17625 | EMS1 - FIRE DIST #1 EMS | $0.00 | $0.00 | $0.00 | $0.00 | $0.00 | $0.00 |
| 2025 | 17625 | JCCD - JC Conservation District | $5.06 | $0.00 | $0.00 | $0.00 | $5.06 | $0.00 |
| 2025 | 17625 | NWA - Noxious Weed Assessment | $4.30 | $0.00 | $0.00 | $0.00 | $4.30 | $0.00 |
| 2025 | 17625 | TOTAL: | $9.36 | $0.00 | $0.00 | $0.00 | $9.36 | $0.00 |
|
| 2025 | 17625 | $9.36 | $0.00 | $0.00 | $0.00 | $9.36 | $0.00 |
Statement Details |
| 2024 | 17659 | STATE - STATE LEVY (SCHOOL) | $0.00 | $0.00 | $0.00 | $0.00 | $0.00 | $0.00 |
| 2024 | 17659 | COUNTY - COUNTY LEVIES (CE, DD, VET, MH) | $0.00 | $0.00 | $0.00 | $0.00 | $0.00 | $0.00 |
| 2024 | 17659 | CONSERVE - CONSERVATION FUTURES | $0.00 | $0.00 | $0.00 | $0.00 | $0.00 | $0.00 |
| 2024 | 17659 | CITYPT - CITY OF PT | $0.00 | $0.00 | $0.00 | $0.00 | $0.00 | $0.00 |
| 2024 | 17659 | PORTPT - PORT DISTRICT | $0.00 | $0.00 | $0.00 | $0.00 | $0.00 | $0.00 |
| 2024 | 17659 | PUD1 - PUD #1 | $0.00 | $0.00 | $0.00 | $0.00 | $0.00 | $0.00 |
| 2024 | 17659 | HD2 - HOSP DIST #2 | $0.00 | $0.00 | $0.00 | $0.00 | $0.00 | $0.00 |
| 2024 | 17659 | SD50 - SCHOOL DIST #50 | $0.00 | $0.00 | $0.00 | $0.00 | $0.00 | $0.00 |
| 2024 | 17659 | FD1 - FIRE DISTRICT #1 | $0.00 | $0.00 | $0.00 | $0.00 | $0.00 | $0.00 |
| 2024 | 17659 | EMS1 - FIRE DIST #1 EMS | $0.00 | $0.00 | $0.00 | $0.00 | $0.00 | $0.00 |
| 2024 | 17659 | JCCD - JC Conservation District | $5.06 | $0.00 | $0.00 | $0.00 | $5.06 | $0.00 |
| 2024 | 17659 | NWA - Noxious Weed Assessment | $4.30 | $0.00 | $0.00 | $0.00 | $4.30 | $0.00 |
| 2024 | 17659 | TOTAL: | $9.36 | $0.00 | $0.00 | $0.00 | $9.36 | $0.00 |
|
| 2024 | 17659 | $9.36 | $0.00 | $0.00 | $0.00 | $9.36 | $0.00 |
Statement Details |
| 2023 | 17692 | STATE - STATE LEVY (SCHOOL) | $0.00 | $0.00 | $0.00 | $0.00 | $0.00 | $0.00 |
| 2023 | 17692 | COUNTY - COUNTY LEVIES (CE, DD, VET, MH) | $0.00 | $0.00 | $0.00 | $0.00 | $0.00 | $0.00 |
| 2023 | 17692 | CONSERVE - CONSERVATION FUTURES | $0.00 | $0.00 | $0.00 | $0.00 | $0.00 | $0.00 |
| 2023 | 17692 | CITYPT - CITY OF PT | $0.00 | $0.00 | $0.00 | $0.00 | $0.00 | $0.00 |
| 2023 | 17692 | PORTPT - PORT DISTRICT | $0.00 | $0.00 | $0.00 | $0.00 | $0.00 | $0.00 |
| 2023 | 17692 | PUD1 - PUD #1 | $0.00 | $0.00 | $0.00 | $0.00 | $0.00 | $0.00 |
| 2023 | 17692 | HD2 - HOSP DIST #2 | $0.00 | $0.00 | $0.00 | $0.00 | $0.00 | $0.00 |
| 2023 | 17692 | SD50 - SCHOOL DIST #50 | $0.00 | $0.00 | $0.00 | $0.00 | $0.00 | $0.00 |
| 2023 | 17692 | FD1 - FIRE DISTRICT #1 | $0.00 | $0.00 | $0.00 | $0.00 | $0.00 | $0.00 |
| 2023 | 17692 | EMS1 - FIRE DIST #1 EMS | $0.00 | $0.00 | $0.00 | $0.00 | $0.00 | $0.00 |
| 2023 | 17692 | JCCD - JC Conservation District | $5.06 | $0.00 | $0.00 | $0.00 | $5.06 | $0.00 |
| 2023 | 17692 | NWA - Noxious Weed Assessment | $4.30 | $0.00 | $0.00 | $0.00 | $4.30 | $0.00 |
| 2023 | 17692 | TOTAL: | $9.36 | $0.00 | $0.00 | $0.00 | $9.36 | $0.00 |
|
| 2023 | 17692 | $9.36 | $0.00 | $0.00 | $0.00 | $9.36 | $0.00 |
Values
| (+) Improvement Homesite Value: | + | $0 | |
| (+) Improvement Non-Homesite Value: | + | $381,145 | |
| (+) Land Homesite Value: | + | $0 | |
| (+) Land Non-Homesite Value: | + | $187,000 | |
| (+) Curr Use (HS): | + | $0 | $0 |
| (+) Curr Use (NHS): | + | $0 | $0 |
| | | -------------------------- | |
| (=) Market Value: | = | $568,145 | |
| (–) Productivity Loss: | – | $0 | |
| | | -------------------------- | |
| (=) Subtotal: | = | $568,145 | |
| (+) Senior Appraised Value: | + | $0 | |
| (+) Non-Senior Appraised Value: | + | $568,145 | |
| | | -------------------------- | |
| (=) Total Appraised Value: | = | $568,145 | |
| (–) Senior Exemption Loss: | – | $0 | |
| (–) Exemption Loss: | – | $568,145 | |
| | | -------------------------- | |
| (=) Taxable Value: | = | $0 | |
Taxing Jurisdiction
| Owner: | HABITAT FOR HUMANITY OF EAST | | |
| % Ownership: | 100.0000000000% | | |
| Total Value: | $568,145 | | |
| Tax Area: | 0110 - C-50F1E1H2 |
| CE | COUNTY CURRENT EXPENSE | 0.9034619479 | $568,145 | $0 | $0.00 | | |
| CNTYDD | DEVELOPMENTAL DISABILITIES | 0.0052121823 | $568,145 | $0 | $0.00 | | |
| CNTYVET | VETERANS RELIEF | 0.0052777810 | $568,145 | $0 | $0.00 | | |
| MENTAL | MENTAL HEALTH | 0.0052121823 | $568,145 | $0 | $0.00 | | |
| PTGEN | CITY OF PT GENERAL | 0.8551967795 | $568,145 | $0 | $0.00 | | |
| PTLLL | CITY OF PT - LIBRARY LID LIFT | 0.4010114288 | $568,145 | $0 | $0.00 | | |
| PTMVBOND | CITY OF PT MV BOND | 0.0484717981 | $568,145 | $0 | $0.00 | | |
| HOSP2CASH | HOSP DIST #2 GENERAL | 0.0536075306 | $568,145 | $0 | $0.00 | | |
| SCH50BOND | SCHOOL DIST #50 BOND 2016 | 0.5377451389 | $568,145 | $0 | $0.00 | | |
| SCH50CP | SCHOOL DIST #50 CAP PROJ | 0.4573475088 | $568,145 | $0 | $0.00 | | |
| SCH50MO | SCHOOL DIST #50 EP & O | 0.8262822886 | $568,145 | $0 | $0.00 | | |
| CONSERVE | CONSERVATION FUTURES | 0.0275621078 | $568,145 | $0 | $0.00 | | |
| EMS1 | FIRE DIST #1 EMS | 0.4679948282 | $568,145 | $0 | $0.00 | | |
| FD1 | FIRE DIST #1 GENERAL | 1.2171942929 | $568,145 | $0 | $0.00 | | |
| PORTPT | PORT OF PT GENERAL | 0.1134941229 | $568,145 | $0 | $0.00 | | |
| PORTPTIDD | PORT OF PT IDD 2019 | 0.2577346692 | $568,145 | $0 | $0.00 | | |
| PUD1 | PUD #1 GENERAL | 0.0597888892 | $568,145 | $0 | $0.00 | | |
| STATE | STATE SCHOOL PART 1 | 1.4940692947 | $568,145 | $0 | $0.00 | | |
| STATE2 | STATE SCHOOL PART 2 | 0.8050170049 | $568,145 | $0 | $0.00 | | |
| | Total Tax Rate: | 8.5416817766 | | | | | |
| | | | | Taxes w/Current Exemptions: | $0.00 | | |
| | | | | Taxes w/o Exemptions: | $4,852.93 | | |
Improvement / Building
| Improvement #1: | Commercial/Industrial/Government Bldg | State Code: | 66 | 3320.0 sqft | Value: | $381,145 |
| Exterior Wall: | PL/T1 | Floor Construction: | FRAME | | Foundation: | CONPR | Heating/Cooling: | ELBB | | Inside Verify: | NO | Roof Cover: | COMP |
|
Sketch
Property Image
Land
| 1 | 6210-6275Q | | 0.2296 | 10000.00 | 0.00 | 0.00 | 1.00 | $187,000 | $0 |
Roll Value History
| 2026 | N/A | N/A | N/A | N/A | N/A |
| 2025 | $381,145 | $187,000 | $0 | $568,145 | $0 |
| 2024 | $376,496 | $180,000 | $0 | $556,496 | $0 |
| 2023 | $376,496 | $175,000 | $0 | $551,496 | $0 |
| 2022 | $358,568 | $170,000 | $0 | $528,568 | $0 |
Deed and Sales History
| 1 | 07/16/2021 | SWD | Statutory Warranty Deed | DARBY HUFFMAN | HABITAT FOR HUMANITY OF EAST | | | $450,000.00 | 137180 | |
| 2 | 04/20/2020 | QCD | Quit Claim Deed | | | | | | 134259 | |
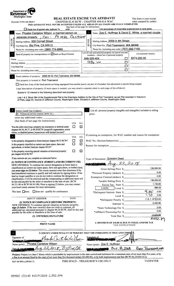
| 3 | 08/22/2018 | QCD | Quit Claim Deed | | | | | | 131140 | |
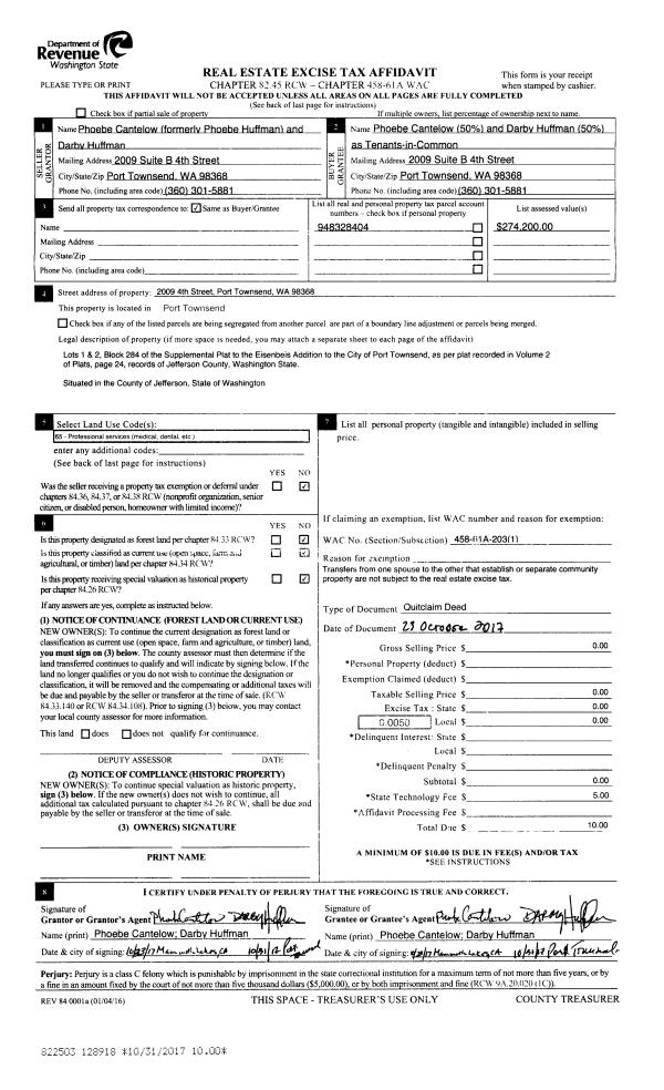
| 4 | 10/23/2017 | QCD | Quit Claim Deed | | | | | | 128918 | |
| 5 | 11/03/2014 | QCD | Quit Claim Deed | HABITAT FOR HUMANITY EAST JEFFERSON COUNTY | DARBY HUFFMAN AND PHOEBE HUFFMAN | | | | 122200 | |
| 6 | 11/03/2014 | SPWD | Special Warranty Deed | UNION BANK NA SUCCESSOR IN | HABITAT FOR HUMANITY EAST JEFFERSON COUNTY | | | $240,000.00 | 122198 | |
| 7 | 09/17/2013 | TRED | Trustee Deed | RAINIER FORECLOSURE SERVICES INC | UNION BANK NA SUCCESSOR IN | | | | 119995 | |
| 8 | 02/02/1999 | SWD | Statutory Warranty Deed | CALVARY CHAPEL OF PT | LITTLE, ROBERT/CHRISTINE A | 0 | 0 | $0.00 | 86276 | 0 |
Payout Agreement
| No payout information available.. |