Property
Account |
| Property ID: | 28259 | Abbreviated Legal Description: | EISENBEIS ADDITION BLK 292 LOTS 1(ALL), 2(N29') BND TGTH THRU LLA #89915 |
| Parcel # / Geo ID: | 948329201 | Agent Code: | |
| Type: | Real | | |
| Tax Area: | 0110 - C-50F1E1H2 | Land Use Code | 11 |
| Open Space: | N | DFL | N |
| Historic Property: | N | Remodel Property: | N |
| Multi-Family Redevelopment: | N | | |
| Township: | 30N | Section: | 10 |
| Range: | 1W |
Location |
| Address: | 275 GRANT ST PORT TOWNSEND, WA 98368 | Mapsco: | 042/001 |
| Neighborhood: | EISENBEIS, OC HASTINGS & SUPP, PINKS LESS VICTORIAN VILLAGE | Map ID: | |
| Neighborhood CD: | 6210 |
Owner |
| Name: | ALYCIA & AUSTIN KHILE | Owner ID: | 112869 |
| Mailing Address: | 275 GRANT ST PORT TOWNSEND, WA 98368-3035 | % Ownership: | 100.0000000000% |
| | | Exemptions: | |
Pay Tax Due
Select the appropriate checkbox next to the year to be paid. Multiple years may be selected.
*Convenience Fee not included
Taxes and Assessment Details
Property Tax Information as of
03/10/2026
Click on "Statement Details" to expand or collapse a tax statement.
* Please enter a valid date ** Please enter a valid date *
Statement Details |
| 2026 | 17598 | STATE - STATE LEVY (SCHOOL) | $733.89 | $733.88 | $0.00 | $0.00 | $0.00 | $1467.77 |
| 2026 | 17598 | COUNTY - COUNTY LEVIES (CE, DD, VET, MH) | $293.42 | $293.39 | $0.00 | $0.00 | $0.00 | $586.81 |
| 2026 | 17598 | CONSERVE - CONSERVATION FUTURES | $8.80 | $8.80 | $0.00 | $0.00 | $0.00 | $17.60 |
| 2026 | 17598 | CITYPT - CITY OF PT | $416.48 | $416.45 | $0.00 | $0.00 | $0.00 | $832.93 |
| 2026 | 17598 | PORTPT - PORT DISTRICT | $118.50 | $118.50 | $0.00 | $0.00 | $0.00 | $237.00 |
| 2026 | 17598 | PUD1 - PUD #1 | $19.09 | $19.08 | $0.00 | $0.00 | $0.00 | $38.17 |
| 2026 | 17598 | HD2 - HOSP DIST #2 | $17.11 | $17.11 | $0.00 | $0.00 | $0.00 | $34.22 |
| 2026 | 17598 | SD50 - SCHOOL DIST #50 | $581.40 | $581.39 | $0.00 | $0.00 | $0.00 | $1162.79 |
| 2026 | 17598 | FD1 - FIRE DISTRICT #1 | $388.54 | $388.54 | $0.00 | $0.00 | $0.00 | $777.08 |
| 2026 | 17598 | EMS1 - FIRE DIST #1 EMS | $149.39 | $149.38 | $0.00 | $0.00 | $0.00 | $298.77 |
| 2026 | 17598 | JCCD - JC Conservation District | $2.55 | $2.55 | $0.00 | $0.00 | $0.00 | $5.10 |
| 2026 | 17598 | NWA - Noxious Weed Assessment | $2.98 | $2.97 | $0.00 | $0.00 | $0.00 | $5.95 |
| 2026 | 17598 | TOTAL: | $2732.15 | $2732.04 | $0.00 | $0.00 | $0.00 | $5464.19 |
|
| 2026 | 17598 | $2732.15 | $2732.04 | $0.00 | $0.00 | $0.00 | $5464.19 |
Statement Details |
| 2025 | 17653 | STATE - STATE LEVY (SCHOOL) | $757.79 | $757.78 | $0.00 | $0.00 | $1515.57 | $0.00 |
| 2025 | 17653 | COUNTY - COUNTY LEVIES (CE, DD, VET, MH) | $298.01 | $297.97 | $0.00 | $0.00 | $595.98 | $0.00 |
| 2025 | 17653 | CONSERVE - CONSERVATION FUTURES | $8.94 | $8.93 | $0.00 | $0.00 | $17.87 | $0.00 |
| 2025 | 17653 | CITYPT - CITY OF PT | $429.74 | $429.73 | $0.00 | $0.00 | $859.47 | $0.00 |
| 2025 | 17653 | PORTPT - PORT DISTRICT | $121.61 | $121.59 | $0.00 | $0.00 | $243.20 | $0.00 |
| 2025 | 17653 | PUD1 - PUD #1 | $19.50 | $19.50 | $0.00 | $0.00 | $39.00 | $0.00 |
| 2025 | 17653 | HD2 - HOSP DIST #2 | $17.39 | $17.38 | $0.00 | $0.00 | $34.77 | $0.00 |
| 2025 | 17653 | SD50 - SCHOOL DIST #50 | $553.82 | $553.80 | $0.00 | $0.00 | $1107.62 | $0.00 |
| 2025 | 17653 | FD1 - FIRE DISTRICT #1 | $393.24 | $393.23 | $0.00 | $0.00 | $786.47 | $0.00 |
| 2025 | 17653 | EMS1 - FIRE DIST #1 EMS | $151.25 | $151.25 | $0.00 | $0.00 | $302.50 | $0.00 |
| 2025 | 17653 | JCCD - JC Conservation District | $2.55 | $2.55 | $0.00 | $0.00 | $5.10 | $0.00 |
| 2025 | 17653 | NWA - Noxious Weed Assessment | $2.15 | $2.15 | $0.00 | $0.00 | $4.30 | $0.00 |
| 2025 | 17653 | TOTAL: | $2755.99 | $2755.86 | $0.00 | $0.00 | $5511.85 | $0.00 |
|
| 2025 | 17653 | $2755.99 | $2755.86 | $0.00 | $0.00 | $5511.85 | $0.00 |
Statement Details |
| 2024 | 17687 | STATE - STATE LEVY (SCHOOL) | $692.81 | $692.79 | $0.00 | $0.00 | $1385.60 | $0.00 |
| 2024 | 17687 | COUNTY - COUNTY LEVIES (CE, DD, VET, MH) | $296.47 | $296.44 | $0.00 | $0.00 | $592.91 | $0.00 |
| 2024 | 17687 | CONSERVE - CONSERVATION FUTURES | $8.89 | $8.89 | $0.00 | $0.00 | $17.78 | $0.00 |
| 2024 | 17687 | CITYPT - CITY OF PT | $423.59 | $423.59 | $0.00 | $0.00 | $847.18 | $0.00 |
| 2024 | 17687 | PORTPT - PORT DISTRICT | $122.46 | $122.44 | $0.00 | $0.00 | $244.90 | $0.00 |
| 2024 | 17687 | PUD1 - PUD #1 | $19.47 | $19.47 | $0.00 | $0.00 | $38.94 | $0.00 |
| 2024 | 17687 | HD2 - HOSP DIST #2 | $17.30 | $17.29 | $0.00 | $0.00 | $34.59 | $0.00 |
| 2024 | 17687 | SD50 - SCHOOL DIST #50 | $560.51 | $560.50 | $0.00 | $0.00 | $1121.01 | $0.00 |
| 2024 | 17687 | FD1 - FIRE DISTRICT #1 | $391.99 | $391.98 | $0.00 | $0.00 | $783.97 | $0.00 |
| 2024 | 17687 | EMS1 - FIRE DIST #1 EMS | $149.73 | $149.72 | $0.00 | $0.00 | $299.45 | $0.00 |
| 2024 | 17687 | JCCD - JC Conservation District | $2.55 | $2.55 | $0.00 | $0.00 | $5.10 | $0.00 |
| 2024 | 17687 | NWA - Noxious Weed Assessment | $2.15 | $2.15 | $0.00 | $0.00 | $4.30 | $0.00 |
| 2024 | 17687 | TOTAL: | $2687.92 | $2687.81 | $0.00 | $0.00 | $5375.73 | $0.00 |
|
| 2024 | 17687 | $2687.92 | $2687.81 | $0.00 | $0.00 | $5375.73 | $0.00 |
Statement Details |
| 2023 | 17720 | STATE - STATE LEVY (SCHOOL) | $683.88 | $683.87 | $0.00 | $0.00 | $1367.75 | $0.00 |
| 2023 | 17720 | COUNTY - COUNTY LEVIES (CE, DD, VET, MH) | $298.44 | $298.40 | $0.00 | $0.00 | $596.84 | $0.00 |
| 2023 | 17720 | CONSERVE - CONSERVATION FUTURES | $8.95 | $8.95 | $0.00 | $0.00 | $17.90 | $0.00 |
| 2023 | 17720 | CITYPT - CITY OF PT | $421.77 | $421.77 | $0.00 | $0.00 | $843.54 | $0.00 |
| 2023 | 17720 | PORTPT - PORT DISTRICT | $125.72 | $125.71 | $0.00 | $0.00 | $251.43 | $0.00 |
| 2023 | 17720 | PUD1 - PUD #1 | $19.78 | $19.78 | $0.00 | $0.00 | $39.56 | $0.00 |
| 2023 | 17720 | HD2 - HOSP DIST #2 | $17.42 | $17.41 | $0.00 | $0.00 | $34.83 | $0.00 |
| 2023 | 17720 | SD50 - SCHOOL DIST #50 | $542.67 | $542.66 | $0.00 | $0.00 | $1085.33 | $0.00 |
| 2023 | 17720 | FD1 - FIRE DISTRICT #1 | $245.84 | $245.84 | $0.00 | $0.00 | $491.68 | $0.00 |
| 2023 | 17720 | EMS1 - FIRE DIST #1 EMS | $104.58 | $104.57 | $0.00 | $0.00 | $209.15 | $0.00 |
| 2023 | 17720 | JCCD - JC Conservation District | $2.55 | $2.55 | $0.00 | $0.00 | $5.10 | $0.00 |
| 2023 | 17720 | NWA - Noxious Weed Assessment | $2.15 | $2.15 | $0.00 | $0.00 | $4.30 | $0.00 |
| 2023 | 17720 | TOTAL: | $2473.75 | $2473.66 | $0.00 | $0.00 | $4947.41 | $0.00 |
|
| 2023 | 17720 | $2473.75 | $2473.66 | $0.00 | $0.00 | $4947.41 | $0.00 |
Values
| (+) Improvement Homesite Value: | + | $472,965 | |
| (+) Improvement Non-Homesite Value: | + | $0 | |
| (+) Land Homesite Value: | + | $165,450 | |
| (+) Land Non-Homesite Value: | + | $0 | |
| (+) Curr Use (HS): | + | $0 | $0 |
| (+) Curr Use (NHS): | + | $0 | $0 |
| | | -------------------------- | |
| (=) Market Value: | = | $638,415 | |
| (–) Productivity Loss: | – | $0 | |
| | | -------------------------- | |
| (=) Subtotal: | = | $638,415 | |
| (+) Senior Appraised Value: | + | $0 | |
| (+) Non-Senior Appraised Value: | + | $638,415 | |
| | | -------------------------- | |
| (=) Total Appraised Value: | = | $638,415 | |
| (–) Senior Exemption Loss: | – | $0 | |
| (–) Exemption Loss: | – | $0 | |
| | | -------------------------- | |
| (=) Taxable Value: | = | $638,415 | |
Taxing Jurisdiction
| Owner: | ALYCIA & AUSTIN KHILE | | |
| % Ownership: | 100.0000000000% | | |
| Total Value: | $638,415 | | |
| Tax Area: | 0110 - C-50F1E1H2 |
| CE | COUNTY CURRENT EXPENSE | 0.9034619479 | $638,415 | $638,415 | $576.78 | | |
| CNTYDD | DEVELOPMENTAL DISABILITIES | 0.0052121823 | $638,415 | $638,415 | $3.33 | | |
| CNTYVET | VETERANS RELIEF | 0.0052777810 | $638,415 | $638,415 | $3.37 | | |
| MENTAL | MENTAL HEALTH | 0.0052121823 | $638,415 | $638,415 | $3.33 | | |
| PTGEN | CITY OF PT GENERAL | 0.8551967795 | $638,415 | $638,415 | $545.97 | | |
| PTLLL | CITY OF PT - LIBRARY LID LIFT | 0.4010114288 | $638,415 | $638,415 | $256.01 | | |
| PTMVBOND | CITY OF PT MV BOND | 0.0484717981 | $638,415 | $638,415 | $30.95 | | |
| HOSP2CASH | HOSP DIST #2 GENERAL | 0.0536075306 | $638,415 | $638,415 | $34.22 | | |
| SCH50BOND | SCHOOL DIST #50 BOND 2016 | 0.5377451389 | $638,415 | $638,415 | $343.30 | | |
| SCH50CP | SCHOOL DIST #50 CAP PROJ | 0.4573475088 | $638,415 | $638,415 | $291.98 | | |
| SCH50MO | SCHOOL DIST #50 EP & O | 0.8262822886 | $638,415 | $638,415 | $527.51 | | |
| CONSERVE | CONSERVATION FUTURES | 0.0275621078 | $638,415 | $638,415 | $17.60 | | |
| EMS1 | FIRE DIST #1 EMS | 0.4679948282 | $638,415 | $638,415 | $298.77 | | |
| FD1 | FIRE DIST #1 GENERAL | 1.2171942929 | $638,415 | $638,415 | $777.08 | | |
| PORTPT | PORT OF PT GENERAL | 0.1134941229 | $638,415 | $638,415 | $72.46 | | |
| PORTPTIDD | PORT OF PT IDD 2019 | 0.2577346692 | $638,415 | $638,415 | $164.54 | | |
| PUD1 | PUD #1 GENERAL | 0.0597888892 | $638,415 | $638,415 | $38.17 | | |
| STATE | STATE SCHOOL PART 1 | 1.4940692947 | $638,415 | $638,415 | $953.84 | | |
| STATE2 | STATE SCHOOL PART 2 | 0.8050170049 | $638,415 | $638,415 | $513.93 | | |
| | Total Tax Rate: | 8.5416817766 | | | | | |
| | | | | Taxes w/Current Exemptions: | $5,453.14 | | |
| | | | | Taxes w/o Exemptions: | $5,453.14 | | |
Improvement / Building
| Improvement #1: | Residential Bldg | State Code: | 11 | 2445.0 sqft | Value: | $472,965 |
| Bathrooms (#): | 2 (FULL) | Bedrooms (#): | 3 | | Exterior Wall: | SI/ST | Floor Construction: | FRAME | | Foundation: | CONPR | Heating/Cooling: | F/A | | Inside Verify: | YES-FIX | Roof Cover: | COMP |
|
| | Type | Description | Class CD | Sub Class CD | Year Built | Area |
| | MA | Main Area | 4- | 15SF | 2000 | 2144.0 |
| | MA2 | Second Floor Main Area | 4- | 15SF | 2000 | 301.0 |
| | HWPOR | House Wood Porch | 4 | 15SF | 2000 | 67.5 |
| | HDECK | House Deck | 4 | 15SF | 2000 | 329.0 |
| | GBLTIN | Builtin Garage | 3 | 15SF | 2000 | 473.0 |
Sketch
Property Image
Land
| 1 | 6210-1185L | | 0.0000 | 0.00 | 0.00 | 0.00 | 1.00 | $135,000 | $0 |
| 2 | 6210-1185L | | 0.0000 | 0.00 | 0.00 | 0.00 | 1.00 | $30,450 | $0 |
Roll Value History
| 2026 | N/A | N/A | N/A | N/A | N/A |
| 2025 | $472,965 | $165,450 | $0 | $638,415 | $638,415 |
| 2024 | $478,600 | $153,405 | $0 | $632,005 | $632,005 |
| 2023 | $457,791 | $141,100 | $0 | $598,891 | $598,891 |
| 2022 | $457,791 | $123,200 | $0 | $580,991 | $580,991 |
Deed and Sales History
| 1 | 06/26/2025 | SWD | Statutory Warranty Deed | RICHARD LEE THOMPSON | ALYCIA & AUSTIN KHILE | | | $640,000.00 | 144516 | |
| 2 | 06/17/2019 | QCD | Quit Claim Deed | MADELEINE G THOMPSON | RICHARD LEE THOMPSON | | | | 132541 | |
| 3 | 06/17/2019 | QCD | Quit Claim Deed | MADELEINE G THOMPSON | RICHARD LEE THOMPSON | | | | 132546 | |
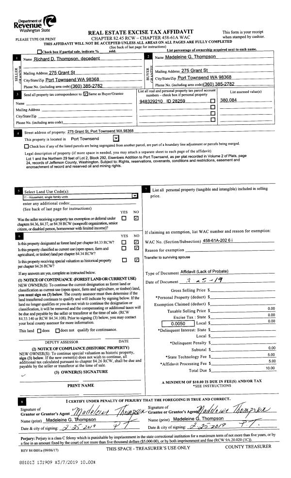
| 4 | 02/25/2019 | LOP | Lack of Probate | RICHARD D THOMPSON | MADELEINE G THOMPSON | | | | 131909 | |
| 5 | 06/29/2000 | SWD | Statutory Warranty Deed | SCHMITT, WILLIAM J | THOMPSON, RICHARD D/MADELEINE | 0 | 0 | $30,000.00 | 89976 | 0 |
| 6 | 06/23/2000 | BLA | Boundary Line Adjustment | SCHMITT, WILLIAM J | SCHMITT, WILLIAM J | 0 | 0 | $0.00 | 89915 | 0 |
| 7 | 04/18/1995 | BLA | Boundary Line Adjustment | SCHMITT, WILLIAM J | SCHMITT, WILLIAM J | 0 | 0 | $0.00 | 76700 | 0 |
| 8 | 10/17/1994 | SWD | Statutory Warranty Deed | WILEY, MAE E/EST | SCHMITT, WILLIAM J/JEAN A | 0 | 0 | $90,000.00 | 75381 | 0 |
| 9 | 08/22/1994 | QCD | Quit Claim Deed | WILEY, MAE E/EST | WILEY, WILLIAM BENNETT | 0 | 0 | $0.00 | 74940 | 0 |
Payout Agreement
| No payout information available.. |