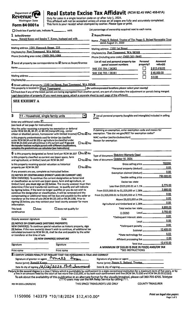
Property
Account |
| Property ID: | 28282 | Abbreviated Legal Description: | EISENBEIS ADDITION BLK 307 LOTS 5 & 6 |
| Parcel # / Geo ID: | 948330704 | Agent Code: | |
| Type: | Real | | |
| Tax Area: | 0110 - C-50F1E1H2 | Land Use Code | 11 |
| Open Space: | N | DFL | N |
| Historic Property: | N | Remodel Property: | N |
| Multi-Family Redevelopment: | N | | |
| Township: | 30N | Section: | 10 |
| Range: | 1W |
Location |
| Address: | 1350 1ST ST PORT TOWNSEND, WA 98368 | Mapsco: | 042/024 |
| Neighborhood: | EISENBEIS, OC HASTINGS & SUPP, PINKS LESS VICTORIAN VILLAGE | Map ID: | |
| Neighborhood CD: | 6210 |
Owner |
| Name: | PEGGY S BOLAND REVOCABLE TRUST | Owner ID: | 111652 |
| Mailing Address: | PEGGY S BOLAND TRUSTEE 1350 1ST ST PORT TOWNSEND, WA 98368-3080 | % Ownership: | 100.0000000000% |
| | | Exemptions: | |
Pay Tax Due
Select the appropriate checkbox next to the year to be paid. Multiple years may be selected.
*Convenience Fee not included
Taxes and Assessment Details
Property Tax Information as of
03/10/2026
Click on "Statement Details" to expand or collapse a tax statement.
* Please enter a valid date ** Please enter a valid date *
Statement Details |
| 2026 | 17621 | STATE - STATE LEVY (SCHOOL) | $816.57 | $816.57 | $0.00 | $0.00 | $0.00 | $1633.14 |
| 2026 | 17621 | COUNTY - COUNTY LEVIES (CE, DD, VET, MH) | $326.47 | $326.45 | $0.00 | $0.00 | $0.00 | $652.92 |
| 2026 | 17621 | CONSERVE - CONSERVATION FUTURES | $9.79 | $9.79 | $0.00 | $0.00 | $0.00 | $19.58 |
| 2026 | 17621 | CITYPT - CITY OF PT | $463.39 | $463.37 | $0.00 | $0.00 | $0.00 | $926.76 |
| 2026 | 17621 | PORTPT - PORT DISTRICT | $131.85 | $131.85 | $0.00 | $0.00 | $0.00 | $263.70 |
| 2026 | 17621 | PUD1 - PUD #1 | $21.24 | $21.23 | $0.00 | $0.00 | $0.00 | $42.47 |
| 2026 | 17621 | HD2 - HOSP DIST #2 | $19.04 | $19.04 | $0.00 | $0.00 | $0.00 | $38.08 |
| 2026 | 17621 | SD50 - SCHOOL DIST #50 | $646.90 | $646.89 | $0.00 | $0.00 | $0.00 | $1293.79 |
| 2026 | 17621 | FD1 - FIRE DISTRICT #1 | $432.31 | $432.31 | $0.00 | $0.00 | $0.00 | $864.62 |
| 2026 | 17621 | EMS1 - FIRE DIST #1 EMS | $166.22 | $166.22 | $0.00 | $0.00 | $0.00 | $332.44 |
| 2026 | 17621 | JCCD - JC Conservation District | $2.55 | $2.55 | $0.00 | $0.00 | $0.00 | $5.10 |
| 2026 | 17621 | NWA - Noxious Weed Assessment | $2.98 | $2.97 | $0.00 | $0.00 | $0.00 | $5.95 |
| 2026 | 17621 | TOTAL: | $3039.31 | $3039.24 | $0.00 | $0.00 | $0.00 | $6078.55 |
|
| 2026 | 17621 | $3039.31 | $3039.24 | $0.00 | $0.00 | $0.00 | $6078.55 |
Statement Details |
| 2025 | 17676 | STATE - STATE LEVY (SCHOOL) | $775.01 | $775.00 | $0.00 | $0.00 | $1550.01 | $0.00 |
| 2025 | 17676 | COUNTY - COUNTY LEVIES (CE, DD, VET, MH) | $304.78 | $304.75 | $0.00 | $0.00 | $609.53 | $0.00 |
| 2025 | 17676 | CONSERVE - CONSERVATION FUTURES | $9.14 | $9.14 | $0.00 | $0.00 | $18.28 | $0.00 |
| 2025 | 17676 | CITYPT - CITY OF PT | $439.50 | $439.50 | $0.00 | $0.00 | $879.00 | $0.00 |
| 2025 | 17676 | PORTPT - PORT DISTRICT | $124.36 | $124.36 | $0.00 | $0.00 | $248.72 | $0.00 |
| 2025 | 17676 | PUD1 - PUD #1 | $19.94 | $19.94 | $0.00 | $0.00 | $39.88 | $0.00 |
| 2025 | 17676 | HD2 - HOSP DIST #2 | $17.78 | $17.78 | $0.00 | $0.00 | $35.56 | $0.00 |
| 2025 | 17676 | SD50 - SCHOOL DIST #50 | $566.41 | $566.38 | $0.00 | $0.00 | $1132.79 | $0.00 |
| 2025 | 17676 | FD1 - FIRE DISTRICT #1 | $402.17 | $402.17 | $0.00 | $0.00 | $804.34 | $0.00 |
| 2025 | 17676 | EMS1 - FIRE DIST #1 EMS | $154.69 | $154.68 | $0.00 | $0.00 | $309.37 | $0.00 |
| 2025 | 17676 | JCCD - JC Conservation District | $2.55 | $2.55 | $0.00 | $0.00 | $5.10 | $0.00 |
| 2025 | 17676 | NWA - Noxious Weed Assessment | $2.15 | $2.15 | $0.00 | $0.00 | $4.30 | $0.00 |
| 2025 | 17676 | TOTAL: | $2818.48 | $2818.40 | $0.00 | $0.00 | $5636.88 | $0.00 |
|
| 2025 | 17676 | $2818.48 | $2818.40 | $0.00 | $0.00 | $5636.88 | $0.00 |
Statement Details |
| 2024 | 17710 | STATE - STATE LEVY (SCHOOL) | $708.45 | $708.44 | $0.00 | $0.00 | $1416.89 | $0.00 |
| 2024 | 17710 | COUNTY - COUNTY LEVIES (CE, DD, VET, MH) | $303.16 | $303.14 | $0.00 | $0.00 | $606.30 | $0.00 |
| 2024 | 17710 | CONSERVE - CONSERVATION FUTURES | $9.09 | $9.09 | $0.00 | $0.00 | $18.18 | $0.00 |
| 2024 | 17710 | CITYPT - CITY OF PT | $433.17 | $433.15 | $0.00 | $0.00 | $866.32 | $0.00 |
| 2024 | 17710 | PORTPT - PORT DISTRICT | $125.21 | $125.21 | $0.00 | $0.00 | $250.42 | $0.00 |
| 2024 | 17710 | PUD1 - PUD #1 | $19.91 | $19.91 | $0.00 | $0.00 | $39.82 | $0.00 |
| 2024 | 17710 | HD2 - HOSP DIST #2 | $17.69 | $17.69 | $0.00 | $0.00 | $35.38 | $0.00 |
| 2024 | 17710 | SD50 - SCHOOL DIST #50 | $573.17 | $573.16 | $0.00 | $0.00 | $1146.33 | $0.00 |
| 2024 | 17710 | FD1 - FIRE DISTRICT #1 | $400.84 | $400.83 | $0.00 | $0.00 | $801.67 | $0.00 |
| 2024 | 17710 | EMS1 - FIRE DIST #1 EMS | $153.11 | $153.10 | $0.00 | $0.00 | $306.21 | $0.00 |
| 2024 | 17710 | JCCD - JC Conservation District | $2.55 | $2.55 | $0.00 | $0.00 | $5.10 | $0.00 |
| 2024 | 17710 | NWA - Noxious Weed Assessment | $2.15 | $2.15 | $0.00 | $0.00 | $4.30 | $0.00 |
| 2024 | 17710 | TOTAL: | $2748.50 | $2748.42 | $0.00 | $0.00 | $5496.92 | $0.00 |
|
| 2024 | 17710 | $2748.50 | $2748.42 | $0.00 | $0.00 | $5496.92 | $0.00 |
Statement Details |
| 2023 | 17743 | STATE - STATE LEVY (SCHOOL) | $714.98 | $714.98 | $0.00 | $0.00 | $1429.96 | $0.00 |
| 2023 | 17743 | COUNTY - COUNTY LEVIES (CE, DD, VET, MH) | $312.00 | $311.99 | $0.00 | $0.00 | $623.99 | $0.00 |
| 2023 | 17743 | CONSERVE - CONSERVATION FUTURES | $9.36 | $9.35 | $0.00 | $0.00 | $18.71 | $0.00 |
| 2023 | 17743 | CITYPT - CITY OF PT | $440.96 | $440.94 | $0.00 | $0.00 | $881.90 | $0.00 |
| 2023 | 17743 | PORTPT - PORT DISTRICT | $131.44 | $131.42 | $0.00 | $0.00 | $262.86 | $0.00 |
| 2023 | 17743 | PUD1 - PUD #1 | $20.68 | $20.68 | $0.00 | $0.00 | $41.36 | $0.00 |
| 2023 | 17743 | HD2 - HOSP DIST #2 | $18.21 | $18.20 | $0.00 | $0.00 | $36.41 | $0.00 |
| 2023 | 17743 | SD50 - SCHOOL DIST #50 | $567.36 | $567.34 | $0.00 | $0.00 | $1134.70 | $0.00 |
| 2023 | 17743 | FD1 - FIRE DISTRICT #1 | $257.02 | $257.02 | $0.00 | $0.00 | $514.04 | $0.00 |
| 2023 | 17743 | EMS1 - FIRE DIST #1 EMS | $109.33 | $109.33 | $0.00 | $0.00 | $218.66 | $0.00 |
| 2023 | 17743 | JCCD - JC Conservation District | $2.55 | $2.55 | $0.00 | $0.00 | $5.10 | $0.00 |
| 2023 | 17743 | NWA - Noxious Weed Assessment | $2.15 | $2.15 | $0.00 | $0.00 | $4.30 | $0.00 |
| 2023 | 17743 | TOTAL: | $2586.04 | $2585.95 | $0.00 | $0.00 | $5171.99 | $0.00 |
|
| 2023 | 17743 | $2586.04 | $2585.95 | $0.00 | $0.00 | $5171.99 | $0.00 |
Values
| (+) Improvement Homesite Value: | + | $0 | |
| (+) Improvement Non-Homesite Value: | + | $485,340 | |
| (+) Land Homesite Value: | + | $0 | |
| (+) Land Non-Homesite Value: | + | $225,000 | |
| (+) Curr Use (HS): | + | $0 | $0 |
| (+) Curr Use (NHS): | + | $0 | $0 |
| | | -------------------------- | |
| (=) Market Value: | = | $710,340 | |
| (–) Productivity Loss: | – | $0 | |
| | | -------------------------- | |
| (=) Subtotal: | = | $710,340 | |
| (+) Senior Appraised Value: | + | $0 | |
| (+) Non-Senior Appraised Value: | + | $710,340 | |
| | | -------------------------- | |
| (=) Total Appraised Value: | = | $710,340 | |
| (–) Senior Exemption Loss: | – | $0 | |
| (–) Exemption Loss: | – | $0 | |
| | | -------------------------- | |
| (=) Taxable Value: | = | $710,340 | |
Taxing Jurisdiction
| Owner: | PEGGY S BOLAND REVOCABLE TRUST | | |
| % Ownership: | 100.0000000000% | | |
| Total Value: | $710,340 | | |
| Tax Area: | 0110 - C-50F1E1H2 |
| CE | COUNTY CURRENT EXPENSE | 0.9034619479 | $710,340 | $710,340 | $641.77 | | |
| CNTYDD | DEVELOPMENTAL DISABILITIES | 0.0052121823 | $710,340 | $710,340 | $3.70 | | |
| CNTYVET | VETERANS RELIEF | 0.0052777810 | $710,340 | $710,340 | $3.75 | | |
| MENTAL | MENTAL HEALTH | 0.0052121823 | $710,340 | $710,340 | $3.70 | | |
| PTGEN | CITY OF PT GENERAL | 0.8551967795 | $710,340 | $710,340 | $607.48 | | |
| PTLLL | CITY OF PT - LIBRARY LID LIFT | 0.4010114288 | $710,340 | $710,340 | $284.85 | | |
| PTMVBOND | CITY OF PT MV BOND | 0.0484717981 | $710,340 | $710,340 | $34.43 | | |
| HOSP2CASH | HOSP DIST #2 GENERAL | 0.0536075306 | $710,340 | $710,340 | $38.08 | | |
| SCH50BOND | SCHOOL DIST #50 BOND 2016 | 0.5377451389 | $710,340 | $710,340 | $381.98 | | |
| SCH50CP | SCHOOL DIST #50 CAP PROJ | 0.4573475088 | $710,340 | $710,340 | $324.87 | | |
| SCH50MO | SCHOOL DIST #50 EP & O | 0.8262822886 | $710,340 | $710,340 | $586.94 | | |
| CONSERVE | CONSERVATION FUTURES | 0.0275621078 | $710,340 | $710,340 | $19.58 | | |
| EMS1 | FIRE DIST #1 EMS | 0.4679948282 | $710,340 | $710,340 | $332.44 | | |
| FD1 | FIRE DIST #1 GENERAL | 1.2171942929 | $710,340 | $710,340 | $864.62 | | |
| PORTPT | PORT OF PT GENERAL | 0.1134941229 | $710,340 | $710,340 | $80.62 | | |
| PORTPTIDD | PORT OF PT IDD 2019 | 0.2577346692 | $710,340 | $710,340 | $183.08 | | |
| PUD1 | PUD #1 GENERAL | 0.0597888892 | $710,340 | $710,340 | $42.47 | | |
| STATE | STATE SCHOOL PART 1 | 1.4940692947 | $710,340 | $710,340 | $1,061.30 | | |
| STATE2 | STATE SCHOOL PART 2 | 0.8050170049 | $710,340 | $710,340 | $571.84 | | |
| | Total Tax Rate: | 8.5416817766 | | | | | |
| | | | | Taxes w/Current Exemptions: | $6,067.50 | | |
| | | | | Taxes w/o Exemptions: | $6,067.50 | | |
Improvement / Building
| Improvement #1: | Residential Bldg | State Code: | 11 | 1823.0 sqft | Value: | $360,880 |
| Bathrooms (#): | 2 (FULL) | Bedrooms (#): | 3 | | Exterior Wall: | SI/ST | Fireplace: | WD ST-GOOD | | Floor Construction: | CONCR | Foundation: | CONPR | | Heating/Cooling: | HPUMP | Inside Verify: | YES-FIX | | Roof Cover: | COMP |   |   |
|
| | Type | Description | Class CD | Sub Class CD | Year Built | Area |
| | MA | Main Area | 4+ | 15SF | 1989 | 1055.0 |
| | MA2 | Second Floor Main Area | 4+ | 15SF | 1989 | 768.0 |
| | PATIO | House Patio | 4 | 15SF | 1989 | 255.8 |
| | HCPOR | House Concrete Porch | 4 | 15SF | 1989 | 240.0 |
| | CONCD | Concrete Drive | 4 | 15SF | 1989 | 1316.0 |
| Improvement #2: | Residential Bldg | State Code: | 11 | 336.0 sqft | Value: | $124,460 |
| Bathrooms (#): | 1 (FULL) | Exterior Wall: | SI/ST | | Foundation: | CONPR | Heating/Cooling: | OTHER | | Roof Cover: | COMP |   |   |
|
| | Type | Description | Class CD | Sub Class CD | Year Built | Area |
| | MA | Main Area | 3+ | ADU | 1989 | 336.0 |
| | GDET | Detached Garage | 4 | ADU | 1989 | 672.0 |
| | SHED | Shed (Table Not Dep) | 6 | ADU | 1989 | 280.0 |
Sketch
Property Image
Land
| 1 | 6210-1175L | | 0.0000 | 0.00 | 0.00 | 0.00 | 1.00 | $160,000 | $0 |
| 2 | 6210-1175L | | 0.0000 | 0.00 | 0.00 | 0.00 | 1.00 | $65,000 | $0 |
Roll Value History
| 2026 | N/A | N/A | N/A | N/A | N/A |
| 2025 | $485,340 | $225,000 | $0 | $710,340 | $710,340 |
| 2024 | $441,618 | $204,750 | $0 | $646,368 | $646,368 |
| 2023 | $422,418 | $190,000 | $0 | $612,418 | $612,418 |
| 2022 | $422,418 | $185,000 | $0 | $607,418 | $607,418 |
Deed and Sales History
| 1 | 10/15/2024 | SWD | Statutory Warranty Deed | RONALD V & SANDRA T KOSEC | PEGGY S BOLAND REVOCABLE TRUST | | | $750,000.00 | 143379 | |
|   | |
| 2 | 02/02/2012 | QCD | Quit Claim Deed | KOSEC REVOCABLE TRUST | KOSEC, RONALD & SANDRA | 0 | 0 | $0.00 | 117114 | 0 |
| 3 | 08/07/2000 | QCD | Quit Claim Deed | KOSEC, RONALD V/SANDRA T | KOSEC, RONALD V & SANDRA T/TR | 0 | 0 | $0.00 | 90755 | 0 |
| 4 | 11/04/1999 | SWD | Statutory Warranty Deed | ELOFSON, HERBERY TOBY & T | KOSEC, RONALD V & SANDRA T | 0 | 0 | $220,000.00 | 88344 | 0 |
Payout Agreement
| No payout information available.. |