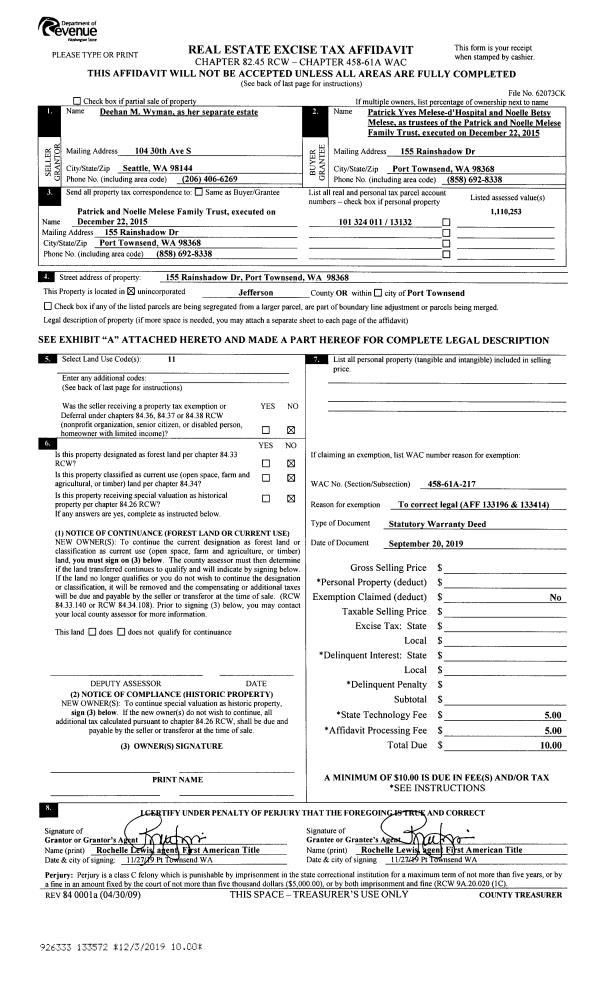
Property
Account |
| Property ID: | 28338 | Abbreviated Legal Description: | EISENBEIS ADDITION BLK F LOTS 3(ALL),4(N16.5'), 5(N16.5' OF E20'),6(E20') BND TGHT THRU REST COV V285/P529 |
| Parcel # / Geo ID: | 948333701 | Agent Code: | |
| Type: | Real | | |
| Tax Area: | 0110 - C-50F1E1H2 | Land Use Code | 11 |
| Open Space: | N | DFL | N |
| Historic Property: | N | Remodel Property: | N |
| Multi-Family Redevelopment: | N | | |
| Township: | 30N | Section: | 10 |
| Range: | 1W |
Location |
| Address: | 1037 THOMAS ST PORT TOWNSEND, WA 98368 | Mapsco: | 043/016 |
| Neighborhood: | EISENBEIS, OC HASTINGS & SUPP, PINKS LESS VICTORIAN VILLAGE | Map ID: | |
| Neighborhood CD: | 6210 |
Owner |
| Name: | ANTHONY G KETTERLING & LINDA A PACKER | Owner ID: | 101978 |
| Mailing Address: | 1037 THOMAS ST PORT TOWNSEND, WA 98368-2349 | % Ownership: | 100.0000000000% |
| | | Exemptions: | |
Pay Tax Due
Select the appropriate checkbox next to the year to be paid. Multiple years may be selected.
*Convenience Fee not included
Taxes and Assessment Details
Property Tax Information as of
03/10/2026
Click on "Statement Details" to expand or collapse a tax statement.
* Please enter a valid date ** Please enter a valid date *
Statement Details |
| 2026 | 17677 | STATE - STATE LEVY (SCHOOL) | $615.86 | $615.85 | $0.00 | $0.00 | $0.00 | $1231.71 |
| 2026 | 17677 | COUNTY - COUNTY LEVIES (CE, DD, VET, MH) | $246.23 | $246.20 | $0.00 | $0.00 | $0.00 | $492.43 |
| 2026 | 17677 | CONSERVE - CONSERVATION FUTURES | $7.39 | $7.38 | $0.00 | $0.00 | $0.00 | $14.77 |
| 2026 | 17677 | CITYPT - CITY OF PT | $349.49 | $349.48 | $0.00 | $0.00 | $0.00 | $698.97 |
| 2026 | 17677 | PORTPT - PORT DISTRICT | $99.44 | $99.44 | $0.00 | $0.00 | $0.00 | $198.88 |
| 2026 | 17677 | PUD1 - PUD #1 | $16.02 | $16.01 | $0.00 | $0.00 | $0.00 | $32.03 |
| 2026 | 17677 | HD2 - HOSP DIST #2 | $14.36 | $14.36 | $0.00 | $0.00 | $0.00 | $28.72 |
| 2026 | 17677 | SD50 - SCHOOL DIST #50 | $487.90 | $487.88 | $0.00 | $0.00 | $0.00 | $975.78 |
| 2026 | 17677 | FD1 - FIRE DISTRICT #1 | $326.05 | $326.05 | $0.00 | $0.00 | $0.00 | $652.10 |
| 2026 | 17677 | EMS1 - FIRE DIST #1 EMS | $125.36 | $125.36 | $0.00 | $0.00 | $0.00 | $250.72 |
| 2026 | 17677 | JCCD - JC Conservation District | $2.55 | $2.55 | $0.00 | $0.00 | $0.00 | $5.10 |
| 2026 | 17677 | NWA - Noxious Weed Assessment | $2.98 | $2.97 | $0.00 | $0.00 | $0.00 | $5.95 |
| 2026 | 17677 | TOTAL: | $2293.63 | $2293.53 | $0.00 | $0.00 | $0.00 | $4587.16 |
|
| 2026 | 17677 | $2293.63 | $2293.53 | $0.00 | $0.00 | $0.00 | $4587.16 |
Statement Details |
| 2025 | 17732 | STATE - STATE LEVY (SCHOOL) | $614.45 | $614.45 | $0.00 | $0.00 | $1228.90 | $0.00 |
| 2025 | 17732 | COUNTY - COUNTY LEVIES (CE, DD, VET, MH) | $241.64 | $241.61 | $0.00 | $0.00 | $483.25 | $0.00 |
| 2025 | 17732 | CONSERVE - CONSERVATION FUTURES | $7.25 | $7.24 | $0.00 | $0.00 | $14.49 | $0.00 |
| 2025 | 17732 | CITYPT - CITY OF PT | $348.46 | $348.45 | $0.00 | $0.00 | $696.91 | $0.00 |
| 2025 | 17732 | PORTPT - PORT DISTRICT | $98.61 | $98.59 | $0.00 | $0.00 | $197.20 | $0.00 |
| 2025 | 17732 | PUD1 - PUD #1 | $15.81 | $15.81 | $0.00 | $0.00 | $31.62 | $0.00 |
| 2025 | 17732 | HD2 - HOSP DIST #2 | $14.10 | $14.09 | $0.00 | $0.00 | $28.19 | $0.00 |
| 2025 | 17732 | SD50 - SCHOOL DIST #50 | $449.07 | $449.06 | $0.00 | $0.00 | $898.13 | $0.00 |
| 2025 | 17732 | FD1 - FIRE DISTRICT #1 | $318.86 | $318.85 | $0.00 | $0.00 | $637.71 | $0.00 |
| 2025 | 17732 | EMS1 - FIRE DIST #1 EMS | $122.64 | $122.64 | $0.00 | $0.00 | $245.28 | $0.00 |
| 2025 | 17732 | JCCD - JC Conservation District | $2.55 | $2.55 | $0.00 | $0.00 | $5.10 | $0.00 |
| 2025 | 17732 | NWA - Noxious Weed Assessment | $2.15 | $2.15 | $0.00 | $0.00 | $4.30 | $0.00 |
| 2025 | 17732 | TOTAL: | $2235.59 | $2235.49 | $0.00 | $0.00 | $4471.08 | $0.00 |
|
| 2025 | 17732 | $2235.59 | $2235.49 | $0.00 | $0.00 | $4471.08 | $0.00 |
Statement Details |
| 2024 | 17766 | STATE - STATE LEVY (SCHOOL) | $560.55 | $560.54 | $0.00 | $0.00 | $1121.09 | $0.00 |
| 2024 | 17766 | COUNTY - COUNTY LEVIES (CE, DD, VET, MH) | $239.87 | $239.85 | $0.00 | $0.00 | $479.72 | $0.00 |
| 2024 | 17766 | CONSERVE - CONSERVATION FUTURES | $7.20 | $7.19 | $0.00 | $0.00 | $14.39 | $0.00 |
| 2024 | 17766 | CITYPT - CITY OF PT | $342.73 | $342.73 | $0.00 | $0.00 | $685.46 | $0.00 |
| 2024 | 17766 | PORTPT - PORT DISTRICT | $99.08 | $99.06 | $0.00 | $0.00 | $198.14 | $0.00 |
| 2024 | 17766 | PUD1 - PUD #1 | $15.76 | $15.75 | $0.00 | $0.00 | $31.51 | $0.00 |
| 2024 | 17766 | HD2 - HOSP DIST #2 | $14.00 | $13.99 | $0.00 | $0.00 | $27.99 | $0.00 |
| 2024 | 17766 | SD50 - SCHOOL DIST #50 | $453.51 | $453.51 | $0.00 | $0.00 | $907.02 | $0.00 |
| 2024 | 17766 | FD1 - FIRE DISTRICT #1 | $317.16 | $317.15 | $0.00 | $0.00 | $634.31 | $0.00 |
| 2024 | 17766 | EMS1 - FIRE DIST #1 EMS | $121.14 | $121.14 | $0.00 | $0.00 | $242.28 | $0.00 |
| 2024 | 17766 | JCCD - JC Conservation District | $2.55 | $2.55 | $0.00 | $0.00 | $5.10 | $0.00 |
| 2024 | 17766 | NWA - Noxious Weed Assessment | $2.15 | $2.15 | $0.00 | $0.00 | $4.30 | $0.00 |
| 2024 | 17766 | TOTAL: | $2175.70 | $2175.61 | $0.00 | $0.00 | $4351.31 | $0.00 |
|
| 2024 | 17766 | $2175.70 | $2175.61 | $0.00 | $0.00 | $4351.31 | $0.00 |
Statement Details |
| 2023 | 17799 | STATE - STATE LEVY (SCHOOL) | $549.78 | $549.76 | $0.00 | $0.00 | $1099.54 | $0.00 |
| 2023 | 17799 | COUNTY - COUNTY LEVIES (CE, DD, VET, MH) | $239.90 | $239.90 | $0.00 | $0.00 | $479.80 | $0.00 |
| 2023 | 17799 | CONSERVE - CONSERVATION FUTURES | $7.20 | $7.19 | $0.00 | $0.00 | $14.39 | $0.00 |
| 2023 | 17799 | CITYPT - CITY OF PT | $339.08 | $339.05 | $0.00 | $0.00 | $678.13 | $0.00 |
| 2023 | 17799 | PORTPT - PORT DISTRICT | $101.06 | $101.06 | $0.00 | $0.00 | $202.12 | $0.00 |
| 2023 | 17799 | PUD1 - PUD #1 | $15.90 | $15.90 | $0.00 | $0.00 | $31.80 | $0.00 |
| 2023 | 17799 | HD2 - HOSP DIST #2 | $14.00 | $14.00 | $0.00 | $0.00 | $28.00 | $0.00 |
| 2023 | 17799 | SD50 - SCHOOL DIST #50 | $436.27 | $436.25 | $0.00 | $0.00 | $872.52 | $0.00 |
| 2023 | 17799 | FD1 - FIRE DISTRICT #1 | $197.64 | $197.63 | $0.00 | $0.00 | $395.27 | $0.00 |
| 2023 | 17799 | EMS1 - FIRE DIST #1 EMS | $84.07 | $84.07 | $0.00 | $0.00 | $168.14 | $0.00 |
| 2023 | 17799 | JCCD - JC Conservation District | $2.55 | $2.55 | $0.00 | $0.00 | $5.10 | $0.00 |
| 2023 | 17799 | NWA - Noxious Weed Assessment | $2.15 | $2.15 | $0.00 | $0.00 | $4.30 | $0.00 |
| 2023 | 17799 | TOTAL: | $1989.60 | $1989.51 | $0.00 | $0.00 | $3979.11 | $0.00 |
|
| 2023 | 17799 | $1989.60 | $1989.51 | $0.00 | $0.00 | $3979.11 | $0.00 |
Values
| (+) Improvement Homesite Value: | + | $0 | |
| (+) Improvement Non-Homesite Value: | + | $374,488 | |
| (+) Land Homesite Value: | + | $0 | |
| (+) Land Non-Homesite Value: | + | $161,250 | |
| (+) Curr Use (HS): | + | $0 | $0 |
| (+) Curr Use (NHS): | + | $0 | $0 |
| | | -------------------------- | |
| (=) Market Value: | = | $535,738 | |
| (–) Productivity Loss: | – | $0 | |
| | | -------------------------- | |
| (=) Subtotal: | = | $535,738 | |
| (+) Senior Appraised Value: | + | $0 | |
| (+) Non-Senior Appraised Value: | + | $535,738 | |
| | | -------------------------- | |
| (=) Total Appraised Value: | = | $535,738 | |
| (–) Senior Exemption Loss: | – | $0 | |
| (–) Exemption Loss: | – | $0 | |
| | | -------------------------- | |
| (=) Taxable Value: | = | $535,738 | |
Taxing Jurisdiction
| Owner: | ANTHONY G KETTERLING & LINDA A PACKER | | |
| % Ownership: | 100.0000000000% | | |
| Total Value: | $535,738 | | |
| Tax Area: | 0110 - C-50F1E1H2 |
| CE | COUNTY CURRENT EXPENSE | 0.9034619479 | $535,738 | $535,738 | $484.02 | | |
| CNTYDD | DEVELOPMENTAL DISABILITIES | 0.0052121823 | $535,738 | $535,738 | $2.79 | | |
| CNTYVET | VETERANS RELIEF | 0.0052777810 | $535,738 | $535,738 | $2.83 | | |
| MENTAL | MENTAL HEALTH | 0.0052121823 | $535,738 | $535,738 | $2.79 | | |
| PTGEN | CITY OF PT GENERAL | 0.8551967795 | $535,738 | $535,738 | $458.16 | | |
| PTLLL | CITY OF PT - LIBRARY LID LIFT | 0.4010114288 | $535,738 | $535,738 | $214.84 | | |
| PTMVBOND | CITY OF PT MV BOND | 0.0484717981 | $535,738 | $535,738 | $25.97 | | |
| HOSP2CASH | HOSP DIST #2 GENERAL | 0.0536075306 | $535,738 | $535,738 | $28.72 | | |
| SCH50BOND | SCHOOL DIST #50 BOND 2016 | 0.5377451389 | $535,738 | $535,738 | $288.09 | | |
| SCH50CP | SCHOOL DIST #50 CAP PROJ | 0.4573475088 | $535,738 | $535,738 | $245.02 | | |
| SCH50MO | SCHOOL DIST #50 EP & O | 0.8262822886 | $535,738 | $535,738 | $442.67 | | |
| CONSERVE | CONSERVATION FUTURES | 0.0275621078 | $535,738 | $535,738 | $14.77 | | |
| EMS1 | FIRE DIST #1 EMS | 0.4679948282 | $535,738 | $535,738 | $250.72 | | |
| FD1 | FIRE DIST #1 GENERAL | 1.2171942929 | $535,738 | $535,738 | $652.10 | | |
| PORTPT | PORT OF PT GENERAL | 0.1134941229 | $535,738 | $535,738 | $60.80 | | |
| PORTPTIDD | PORT OF PT IDD 2019 | 0.2577346692 | $535,738 | $535,738 | $138.08 | | |
| PUD1 | PUD #1 GENERAL | 0.0597888892 | $535,738 | $535,738 | $32.03 | | |
| STATE | STATE SCHOOL PART 1 | 1.4940692947 | $535,738 | $535,738 | $800.43 | | |
| STATE2 | STATE SCHOOL PART 2 | 0.8050170049 | $535,738 | $535,738 | $431.28 | | |
| | Total Tax Rate: | 8.5416817766 | | | | | |
| | | | | Taxes w/Current Exemptions: | $4,576.11 | | |
| | | | | Taxes w/o Exemptions: | $4,576.11 | | |
Improvement / Building
| Improvement #1: | Residential Bldg | State Code: | 11 | 1432.5 sqft | Value: | $374,488 |
| Bathrooms (#): | 2 (FULL) | Bedrooms (#): | 3 | | Exterior Wall: | SI/ST | Floor Construction: | FRAME | | Foundation: | CONPR | Heating/Cooling: | ELBB | | Inside Verify: | NO | Roof Cover: | COMP |
|
| | Type | Description | Class CD | Sub Class CD | Year Built | Area |
| | MA | Main Area | 4+ | 2S | 1995 | 792.5 |
| | MA2 | Second Floor Main Area | 4+ | 2S | 1995 | 640.0 |
| | HWPOR | House Wood Porch | 4 | 2S | 1995 | 200.0 |
| | HDECK | House Deck | 4 | 2S | 1995 | 176.0 |
| | GDET | Detached Garage | 4 | 2S | 1995 | 504.0 |
Sketch
Property Image
Land
| 1 | 6210-1185L | | 0.0000 | 0.00 | 0.00 | 0.00 | 1.00 | $161,250 | $0 |
Roll Value History
| 2026 | N/A | N/A | N/A | N/A | N/A |
| 2025 | $374,488 | $161,250 | $0 | $535,738 | $535,738 |
| 2024 | $362,841 | $149,625 | $0 | $512,466 | $512,466 |
| 2023 | $347,065 | $137,500 | $0 | $484,565 | $484,565 |
| 2022 | $347,065 | $120,000 | $0 | $467,065 | $467,065 |
Deed and Sales History
| 1 | 11/14/2019 | QCD | Quit Claim Deed | LINDA A PACKER | ANTHONY G KETTERLING & LINDA A PACKER | | | | 133490 | |
| 2 | 09/16/2019 | QCD | Quit Claim Deed | | | | | | 133182 | |
| 3 | 09/12/2019 | QCD | Quit Claim Deed | | | | | | 133181 | |
| 4 | 09/17/2019 | QCD | Quit Claim Deed | | | | | | 133180 | |
| 5 | 09/10/2019 | TRED | Trustee Deed | | | | | | 133108 | |
| 6 | 09/10/2019 | PRD | Personal Representatives Deed | | | | | | 133107 | |
| 7 | 01/18/2018 | PRD | Personal Representatives Deed | | | | | | 129433 | |
| 8 | 11/06/2013 | SWD | Statutory Warranty Deed | KERRY L DONOVAN TRUSTEE | WAYNE R & CAROL H PACKER | | | $223,250.00 | 120251 | |
| 9 | 09/17/2004 | SWD | Statutory Warranty Deed | GREWELL JR, LAWRENCE/KIMB | DONOVAN, KERRY & MARY/TRUST | 0 | 0 | $219,400.00 | 101504 | 0 |
| 10 | 09/20/1995 | SWD | Statutory Warranty Deed | WOLCOTT, STEPHEN H | GREWELL, L T/JR & K A | 0 | 0 | $116,000.00 | 77862 | 0 |
| 11 | 06/04/1993 | QCD | Quit Claim Deed | WILLIAMS, G/PARKER, G | WOLCOTT, STEPHEN H | 0 | 0 | $12,000.00 | 71320 | 0 |
| 12 | 03/17/1992 | QCD | Quit Claim Deed | PARKER, JEANETTE M | PARKER, GREGORY M | 0 | 0 | $0.00 | 67954 | 0 |
| 13 | 03/17/1992 | SWD | Statutory Warranty Deed | ROMANO, RICHARD D | WOLCOTT/WILLIAMS/PARKER ET AL | 0 | 0 | $40,000.00 | 67955 | 0 |
Payout Agreement
| No payout information available.. |