Property
Account |
| Property ID: | 28360 | Abbreviated Legal Description: | EISENBEIS ADDITION BLK J LOT F SURVEY V12/P59 |
| Parcel # / Geo ID: | 948334207 | Agent Code: | |
| Type: | Real | | |
| Tax Area: | 0110 - C-50F1E1H2 | Land Use Code | 11 |
| Open Space: | N | DFL | N |
| Historic Property: | N | Remodel Property: | N |
| Multi-Family Redevelopment: | N | | |
| Township: | 30N | Section: | 10 |
| Range: | 1W |
Location |
| Address: | 1403 THOMAS ST PORT TOWNSEND, WA 98368 | Mapsco: | 043/042 |
| Neighborhood: | EISENBEIS, OC HASTINGS & SUPP, PINKS LESS VICTORIAN VILLAGE | Map ID: | |
| Neighborhood CD: | 6210 |
Owner |
| Name: | ANDREW C JOHNSON & PAMELA MCDONALD JOHNSON | Owner ID: | 98913 |
| Mailing Address: | 104 E 26TH ST HOUSTON, TX 77008-2124 | % Ownership: | 100.0000000000% |
| | | Exemptions: | |
Pay Tax Due
Select the appropriate checkbox next to the year to be paid. Multiple years may be selected.
*Convenience Fee not included
Taxes and Assessment Details
Property Tax Information as of
03/12/2026
Click on "Statement Details" to expand or collapse a tax statement.
* Please enter a valid date ** Please enter a valid date *
Statement Details |
| 2026 | 17699 | STATE - STATE LEVY (SCHOOL) | $559.34 | $559.33 | $0.00 | $0.00 | $0.00 | $1118.67 |
| 2026 | 17699 | COUNTY - COUNTY LEVIES (CE, DD, VET, MH) | $223.63 | $223.62 | $0.00 | $0.00 | $0.00 | $447.25 |
| 2026 | 17699 | CONSERVE - CONSERVATION FUTURES | $6.71 | $6.70 | $0.00 | $0.00 | $0.00 | $13.41 |
| 2026 | 17699 | CITYPT - CITY OF PT | $317.41 | $317.40 | $0.00 | $0.00 | $0.00 | $634.81 |
| 2026 | 17699 | PORTPT - PORT DISTRICT | $90.32 | $90.31 | $0.00 | $0.00 | $0.00 | $180.63 |
| 2026 | 17699 | PUD1 - PUD #1 | $14.55 | $14.54 | $0.00 | $0.00 | $0.00 | $29.09 |
| 2026 | 17699 | HD2 - HOSP DIST #2 | $13.04 | $13.04 | $0.00 | $0.00 | $0.00 | $26.08 |
| 2026 | 17699 | SD50 - SCHOOL DIST #50 | $443.12 | $443.10 | $0.00 | $0.00 | $0.00 | $886.22 |
| 2026 | 17699 | FD1 - FIRE DISTRICT #1 | $296.13 | $296.12 | $0.00 | $0.00 | $0.00 | $592.25 |
| 2026 | 17699 | EMS1 - FIRE DIST #1 EMS | $113.86 | $113.85 | $0.00 | $0.00 | $0.00 | $227.71 |
| 2026 | 17699 | JCCD - JC Conservation District | $2.55 | $2.55 | $0.00 | $0.00 | $0.00 | $5.10 |
| 2026 | 17699 | NWA - Noxious Weed Assessment | $2.98 | $2.97 | $0.00 | $0.00 | $0.00 | $5.95 |
| 2026 | 17699 | TOTAL: | $2083.64 | $2083.53 | $0.00 | $0.00 | $0.00 | $4167.17 |
|
| 2026 | 17699 | $2083.64 | $2083.53 | $0.00 | $0.00 | $0.00 | $4167.17 |
Statement Details |
| 2025 | 17754 | STATE - STATE LEVY (SCHOOL) | $523.37 | $523.36 | $0.00 | $0.00 | $1046.73 | $0.00 |
| 2025 | 17754 | COUNTY - COUNTY LEVIES (CE, DD, VET, MH) | $205.82 | $205.80 | $0.00 | $0.00 | $411.62 | $0.00 |
| 2025 | 17754 | CONSERVE - CONSERVATION FUTURES | $6.17 | $6.17 | $0.00 | $0.00 | $12.34 | $0.00 |
| 2025 | 17754 | CITYPT - CITY OF PT | $296.80 | $296.80 | $0.00 | $0.00 | $593.60 | $0.00 |
| 2025 | 17754 | PORTPT - PORT DISTRICT | $83.98 | $83.98 | $0.00 | $0.00 | $167.96 | $0.00 |
| 2025 | 17754 | PUD1 - PUD #1 | $13.47 | $13.46 | $0.00 | $0.00 | $26.93 | $0.00 |
| 2025 | 17754 | HD2 - HOSP DIST #2 | $12.01 | $12.00 | $0.00 | $0.00 | $24.01 | $0.00 |
| 2025 | 17754 | SD50 - SCHOOL DIST #50 | $382.50 | $382.48 | $0.00 | $0.00 | $764.98 | $0.00 |
| 2025 | 17754 | FD1 - FIRE DISTRICT #1 | $271.59 | $271.59 | $0.00 | $0.00 | $543.18 | $0.00 |
| 2025 | 17754 | EMS1 - FIRE DIST #1 EMS | $104.46 | $104.46 | $0.00 | $0.00 | $208.92 | $0.00 |
| 2025 | 17754 | JCCD - JC Conservation District | $2.55 | $2.55 | $0.00 | $0.00 | $5.10 | $0.00 |
| 2025 | 17754 | NWA - Noxious Weed Assessment | $2.15 | $2.15 | $0.00 | $0.00 | $4.30 | $0.00 |
| 2025 | 17754 | TOTAL: | $1904.87 | $1904.80 | $0.00 | $0.00 | $3809.67 | $0.00 |
|
| 2025 | 17754 | $1904.87 | $1904.80 | $0.00 | $0.00 | $3809.67 | $0.00 |
Statement Details |
| 2024 | 17788 | STATE - STATE LEVY (SCHOOL) | $476.54 | $476.52 | $0.00 | $0.00 | $953.06 | $0.00 |
| 2024 | 17788 | COUNTY - COUNTY LEVIES (CE, DD, VET, MH) | $203.92 | $203.90 | $0.00 | $0.00 | $407.82 | $0.00 |
| 2024 | 17788 | CONSERVE - CONSERVATION FUTURES | $6.12 | $6.11 | $0.00 | $0.00 | $12.23 | $0.00 |
| 2024 | 17788 | CITYPT - CITY OF PT | $291.37 | $291.36 | $0.00 | $0.00 | $582.73 | $0.00 |
| 2024 | 17788 | PORTPT - PORT DISTRICT | $84.23 | $84.22 | $0.00 | $0.00 | $168.45 | $0.00 |
| 2024 | 17788 | PUD1 - PUD #1 | $13.40 | $13.39 | $0.00 | $0.00 | $26.79 | $0.00 |
| 2024 | 17788 | HD2 - HOSP DIST #2 | $11.90 | $11.90 | $0.00 | $0.00 | $23.80 | $0.00 |
| 2024 | 17788 | SD50 - SCHOOL DIST #50 | $385.54 | $385.53 | $0.00 | $0.00 | $771.07 | $0.00 |
| 2024 | 17788 | FD1 - FIRE DISTRICT #1 | $269.62 | $269.62 | $0.00 | $0.00 | $539.24 | $0.00 |
| 2024 | 17788 | EMS1 - FIRE DIST #1 EMS | $102.99 | $102.98 | $0.00 | $0.00 | $205.97 | $0.00 |
| 2024 | 17788 | JCCD - JC Conservation District | $2.55 | $2.55 | $0.00 | $0.00 | $5.10 | $0.00 |
| 2024 | 17788 | NWA - Noxious Weed Assessment | $2.15 | $2.15 | $0.00 | $0.00 | $4.30 | $0.00 |
| 2024 | 17788 | TOTAL: | $1850.33 | $1850.23 | $0.00 | $0.00 | $3700.56 | $0.00 |
|
| 2024 | 17788 | $1850.33 | $1850.23 | $0.00 | $0.00 | $3700.56 | $0.00 |
Statement Details |
| 2023 | 17821 | STATE - STATE LEVY (SCHOOL) | $465.47 | $465.45 | $0.00 | $0.00 | $930.92 | $0.00 |
| 2023 | 17821 | COUNTY - COUNTY LEVIES (CE, DD, VET, MH) | $203.13 | $203.11 | $0.00 | $0.00 | $406.24 | $0.00 |
| 2023 | 17821 | CONSERVE - CONSERVATION FUTURES | $6.09 | $6.09 | $0.00 | $0.00 | $12.18 | $0.00 |
| 2023 | 17821 | CITYPT - CITY OF PT | $287.07 | $287.06 | $0.00 | $0.00 | $574.13 | $0.00 |
| 2023 | 17821 | PORTPT - PORT DISTRICT | $85.57 | $85.56 | $0.00 | $0.00 | $171.13 | $0.00 |
| 2023 | 17821 | PUD1 - PUD #1 | $13.47 | $13.46 | $0.00 | $0.00 | $26.93 | $0.00 |
| 2023 | 17821 | HD2 - HOSP DIST #2 | $11.85 | $11.85 | $0.00 | $0.00 | $23.70 | $0.00 |
| 2023 | 17821 | SD50 - SCHOOL DIST #50 | $369.36 | $369.35 | $0.00 | $0.00 | $738.71 | $0.00 |
| 2023 | 17821 | FD1 - FIRE DISTRICT #1 | $167.33 | $167.32 | $0.00 | $0.00 | $334.65 | $0.00 |
| 2023 | 17821 | EMS1 - FIRE DIST #1 EMS | $71.18 | $71.17 | $0.00 | $0.00 | $142.35 | $0.00 |
| 2023 | 17821 | JCCD - JC Conservation District | $2.55 | $2.55 | $0.00 | $0.00 | $5.10 | $0.00 |
| 2023 | 17821 | NWA - Noxious Weed Assessment | $2.15 | $2.15 | $0.00 | $0.00 | $4.30 | $0.00 |
| 2023 | 17821 | TOTAL: | $1685.22 | $1685.12 | $0.00 | $0.00 | $3370.34 | $0.00 |
|
| 2023 | 17821 | $1685.22 | $1685.12 | $0.00 | $0.00 | $3370.34 | $0.00 |
Values
| (+) Improvement Homesite Value: | + | $0 | |
| (+) Improvement Non-Homesite Value: | + | $335,818 | |
| (+) Land Homesite Value: | + | $0 | |
| (+) Land Non-Homesite Value: | + | $150,750 | |
| (+) Curr Use (HS): | + | $0 | $0 |
| (+) Curr Use (NHS): | + | $0 | $0 |
| | | -------------------------- | |
| (=) Market Value: | = | $486,568 | |
| (–) Productivity Loss: | – | $0 | |
| | | -------------------------- | |
| (=) Subtotal: | = | $486,568 | |
| (+) Senior Appraised Value: | + | $0 | |
| (+) Non-Senior Appraised Value: | + | $486,568 | |
| | | -------------------------- | |
| (=) Total Appraised Value: | = | $486,568 | |
| (–) Senior Exemption Loss: | – | $0 | |
| (–) Exemption Loss: | – | $0 | |
| | | -------------------------- | |
| (=) Taxable Value: | = | $486,568 | |
Taxing Jurisdiction
| Owner: | ANDREW C JOHNSON & PAMELA MCDONALD JOHNSON | | |
| % Ownership: | 100.0000000000% | | |
| Total Value: | $486,568 | | |
| Tax Area: | 0110 - C-50F1E1H2 |
| CE | COUNTY CURRENT EXPENSE | 0.9034619479 | $486,568 | $486,568 | $439.60 | | |
| CNTYDD | DEVELOPMENTAL DISABILITIES | 0.0052121823 | $486,568 | $486,568 | $2.54 | | |
| CNTYVET | VETERANS RELIEF | 0.0052777810 | $486,568 | $486,568 | $2.57 | | |
| MENTAL | MENTAL HEALTH | 0.0052121823 | $486,568 | $486,568 | $2.54 | | |
| PTGEN | CITY OF PT GENERAL | 0.8551967795 | $486,568 | $486,568 | $416.11 | | |
| PTLLL | CITY OF PT - LIBRARY LID LIFT | 0.4010114288 | $486,568 | $486,568 | $195.12 | | |
| PTMVBOND | CITY OF PT MV BOND | 0.0484717981 | $486,568 | $486,568 | $23.58 | | |
| HOSP2CASH | HOSP DIST #2 GENERAL | 0.0536075306 | $486,568 | $486,568 | $26.08 | | |
| SCH50BOND | SCHOOL DIST #50 BOND 2016 | 0.5377451389 | $486,568 | $486,568 | $261.65 | | |
| SCH50CP | SCHOOL DIST #50 CAP PROJ | 0.4573475088 | $486,568 | $486,568 | $222.53 | | |
| SCH50MO | SCHOOL DIST #50 EP & O | 0.8262822886 | $486,568 | $486,568 | $402.04 | | |
| CONSERVE | CONSERVATION FUTURES | 0.0275621078 | $486,568 | $486,568 | $13.41 | | |
| EMS1 | FIRE DIST #1 EMS | 0.4679948282 | $486,568 | $486,568 | $227.71 | | |
| FD1 | FIRE DIST #1 GENERAL | 1.2171942929 | $486,568 | $486,568 | $592.25 | | |
| PORTPT | PORT OF PT GENERAL | 0.1134941229 | $486,568 | $486,568 | $55.22 | | |
| PORTPTIDD | PORT OF PT IDD 2019 | 0.2577346692 | $486,568 | $486,568 | $125.41 | | |
| PUD1 | PUD #1 GENERAL | 0.0597888892 | $486,568 | $486,568 | $29.09 | | |
| STATE | STATE SCHOOL PART 1 | 1.4940692947 | $486,568 | $486,568 | $726.97 | | |
| STATE2 | STATE SCHOOL PART 2 | 0.8050170049 | $486,568 | $486,568 | $391.70 | | |
| | Total Tax Rate: | 8.5416817766 | | | | | |
| | | | | Taxes w/Current Exemptions: | $4,156.12 | | |
| | | | | Taxes w/o Exemptions: | $4,156.12 | | |
Improvement / Building
| Improvement #1: | Residential Bldg | State Code: | 11 | 1196.0 sqft | Value: | $335,818 |
| Bathrooms (#): | 2 (FULL) | Bedrooms (#): | 3 | | Exterior Wall: | PL/T1 | Floor Construction: | FRAME | | Foundation: | CONPR | Heating/Cooling: | ELBB | | Inside Verify: | NO | Roof Cover: | COMP |
|
| | Type | Description | Class CD | Sub Class CD | Year Built | Area |
| | MA | Main Area | 4+ | 1S | 1993 | 1196.0 |
| | HWPOR | House Wood Porch | 4 | 1S | 1993 | 130.0 |
| | HDECK | House Deck | 4 | 1S | 1993 | 120.0 |
| | GATT | House Attached Garage | 4 | 1S | 1993 | 506.0 |
Sketch
Property Image
Land
| 1 | 6210-1185L | | 0.0000 | 0.00 | 0.00 | 0.00 | 1.00 | $150,750 | $0 |
Roll Value History
| 2026 | N/A | N/A | N/A | N/A | N/A |
| 2025 | $335,818 | $150,750 | $0 | $486,568 | $486,568 |
| 2024 | $296,322 | $140,175 | $0 | $436,497 | $436,497 |
| 2023 | $283,438 | $128,500 | $0 | $411,938 | $411,938 |
| 2022 | $283,438 | $112,000 | $0 | $395,438 | $395,438 |
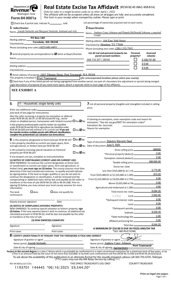
Deed and Sales History
| 1 | 06/09/2025 | SWD | Statutory Warranty Deed | JOSEPH & MARGARET STEFANILE | ANDREW C JOHNSON & PAMELA MCDONALD JOHNSON | | | $589,000.00 | 144445 | |
| 2 | 05/23/2018 | SWD | Statutory Warranty Deed | GERALD M STEHURA | JOSEPH & MARGARET STEFANILE | | | $274,500.00 | 130210 | |
| 3 | 01/29/2014 | SWD | Statutory Warranty Deed | MARGARET E HOOD | GERALD M STEHURA | | | $164,000.00 | 120682 | |
| 4 | 11/16/1993 | SWD | Statutory Warranty Deed | O'MEARA, THOMAS E/MARILYN | HOOD/BURCHARD | 0 | 0 | $109,500.00 | 72623 | 0 |
| 5 | 04/17/1992 | SWD | Statutory Warranty Deed | O'MEARA, A.M. DOROTHY | O'MEARA, THOMAS E/MARILYN J | 0 | 0 | $0.00 | 68177 | 0 |
Payout Agreement
| No payout information available.. |