Property
Account |
| Property ID: | 28389 | Abbreviated Legal Description: | EAGLE CREST DEVELOPMENT LOT 2 SUBJ/EASE |
| Parcel # / Geo ID: | 948400002 | Agent Code: | |
| Type: | Real | | |
| Tax Area: | 0781 - 1-323F8E8H2C3L1 | Land Use Code | 91 |
| Open Space: | N | DFL | N |
| Historic Property: | N | Remodel Property: | N |
| Multi-Family Redevelopment: | N | | |
| Township: | 30N | Section: | 34 |
| Range: | 2W |
Location |
| Address: | | Mapsco: | 027/031 |
| Neighborhood: | S34 T30 R2W | Map ID: | |
| Neighborhood CD: | 2680 |
Owner |
| Name: | VIKTOR P FENDICH | Owner ID: | 103921 |
| Mailing Address: | PO BOX 875043 WASILLA, AK 99687-5043 | % Ownership: | 100.0000000000% |
| | | Exemptions: | |
Pay Tax Due
Select the appropriate checkbox next to the year to be paid. Multiple years may be selected.
*Convenience Fee not included
Taxes and Assessment Details
Property Tax Information as of
03/10/2026
Click on "Statement Details" to expand or collapse a tax statement.
* Please enter a valid date ** Please enter a valid date *
Statement Details |
| 2026 | 17728 | STATE - STATE LEVY (SCHOOL) | $68.08 | $68.07 | $0.00 | $0.00 | $0.00 | $136.15 |
| 2026 | 17728 | COUNTY - COUNTY LEVIES (CE, DD, VET, MH) | $27.23 | $27.20 | $0.00 | $0.00 | $0.00 | $54.43 |
| 2026 | 17728 | CONSERVE - CONSERVATION FUTURES | $0.82 | $0.81 | $0.00 | $0.00 | $0.00 | $1.63 |
| 2026 | 17728 | COROADS - COUNTY ROADS (ROADS, DIV TO CE) | $21.96 | $21.95 | $0.00 | $0.00 | $0.00 | $43.91 |
| 2026 | 17728 | PORTPT - PORT DISTRICT | $10.99 | $10.99 | $0.00 | $0.00 | $0.00 | $21.98 |
| 2026 | 17728 | PUD1 - PUD #1 | $1.77 | $1.77 | $0.00 | $0.00 | $0.00 | $3.54 |
| 2026 | 17728 | LIB1 - LIBRARY DIST #1 | $8.50 | $8.49 | $0.00 | $0.00 | $0.00 | $16.99 |
| 2026 | 17728 | HD2 - HOSP DIST #2 | $1.59 | $1.58 | $0.00 | $0.00 | $0.00 | $3.17 |
| 2026 | 17728 | SD323 - SCHOOL DIST #323 | $54.64 | $54.64 | $0.00 | $0.00 | $0.00 | $109.28 |
| 2026 | 17728 | FD8 - FIRE DISTRICT #8 | $44.42 | $44.41 | $0.00 | $0.00 | $0.00 | $88.83 |
| 2026 | 17728 | EMS8 - FIRE DIST #8 EMS | $10.17 | $10.17 | $0.00 | $0.00 | $0.00 | $20.34 |
| 2026 | 17728 | CEM3 - CEMETERY DIST #3 | $0.74 | $0.74 | $0.00 | $0.00 | $0.00 | $1.48 |
| 2026 | 17728 | FPLCA - DNR Landowner Contingency Assmt | $3.00 | $3.00 | $0.00 | $0.00 | $0.00 | $6.00 |
| 2026 | 17728 | JCCD - JC Conservation District | $2.61 | $2.61 | $0.00 | $0.00 | $0.00 | $5.22 |
| 2026 | 17728 | NWA - Noxious Weed Assessment | $3.43 | $3.42 | $0.00 | $0.00 | $0.00 | $6.85 |
| 2026 | 17728 | WAT - Clean Water District | $13.00 | $13.00 | $0.00 | $0.00 | $0.00 | $26.00 |
| 2026 | 17728 | TOTAL: | $272.95 | $272.85 | $0.00 | $0.00 | $0.00 | $545.80 |
|
| 2026 | 17728 | $272.95 | $272.85 | $0.00 | $0.00 | $0.00 | $545.80 |
Statement Details |
| 2025 | 17783 | STATE - STATE LEVY (SCHOOL) | $67.93 | $67.91 | $0.00 | $0.00 | $135.84 | $0.00 |
| 2025 | 17783 | COUNTY - COUNTY LEVIES (CE, DD, VET, MH) | $26.72 | $26.70 | $0.00 | $0.00 | $53.42 | $0.00 |
| 2025 | 17783 | CONSERVE - CONSERVATION FUTURES | $0.80 | $0.80 | $0.00 | $0.00 | $1.60 | $0.00 |
| 2025 | 17783 | COROADS - COUNTY ROADS (ROADS, DIV TO CE) | $21.40 | $21.40 | $0.00 | $0.00 | $42.80 | $0.00 |
| 2025 | 17783 | PORTPT - PORT DISTRICT | $10.90 | $10.90 | $0.00 | $0.00 | $21.80 | $0.00 |
| 2025 | 17783 | PUD1 - PUD #1 | $1.75 | $1.75 | $0.00 | $0.00 | $3.50 | $0.00 |
| 2025 | 17783 | LIB1 - LIBRARY DIST #1 | $8.28 | $8.28 | $0.00 | $0.00 | $16.56 | $0.00 |
| 2025 | 17783 | HD2 - HOSP DIST #2 | $1.56 | $1.56 | $0.00 | $0.00 | $3.12 | $0.00 |
| 2025 | 17783 | SD323 - SCHOOL DIST #323 | $36.78 | $36.78 | $0.00 | $0.00 | $73.56 | $0.00 |
| 2025 | 17783 | FD8 - FIRE DISTRICT #8 | $31.52 | $31.51 | $0.00 | $0.00 | $63.03 | $0.00 |
| 2025 | 17783 | EMS8 - FIRE DIST #8 EMS | $9.97 | $9.96 | $0.00 | $0.00 | $19.93 | $0.00 |
| 2025 | 17783 | CEM3 - CEMETERY DIST #3 | $0.75 | $0.75 | $0.00 | $0.00 | $1.50 | $0.00 |
| 2025 | 17783 | FPLCA - DNR Landowner Contingency Assmt | $3.00 | $3.00 | $0.00 | $0.00 | $6.00 | $0.00 |
| 2025 | 17783 | JCCD - JC Conservation District | $2.61 | $2.61 | $0.00 | $0.00 | $5.22 | $0.00 |
| 2025 | 17783 | NWA - Noxious Weed Assessment | $2.45 | $2.45 | $0.00 | $0.00 | $4.90 | $0.00 |
| 2025 | 17783 | WAT - Clean Water District | $13.00 | $13.00 | $0.00 | $0.00 | $26.00 | $0.00 |
| 2025 | 17783 | TOTAL: | $239.42 | $239.36 | $0.00 | $0.00 | $478.78 | $0.00 |
|
| 2025 | 17783 | $239.42 | $239.36 | $0.00 | $0.00 | $478.78 | $0.00 |
Statement Details |
| 2024 | 17817 | STATE - STATE LEVY (SCHOOL) | $62.55 | $62.55 | $0.00 | $0.00 | $125.10 | $0.00 |
| 2024 | 17817 | COUNTY - COUNTY LEVIES (CE, DD, VET, MH) | $26.77 | $26.76 | $0.00 | $0.00 | $53.53 | $0.00 |
| 2024 | 17817 | CONSERVE - CONSERVATION FUTURES | $0.81 | $0.80 | $0.00 | $0.00 | $1.61 | $0.00 |
| 2024 | 17817 | COROADS - COUNTY ROADS (ROADS, DIV TO CE) | $21.54 | $21.53 | $0.00 | $0.00 | $43.07 | $0.00 |
| 2024 | 17817 | PORTPT - PORT DISTRICT | $11.06 | $11.05 | $0.00 | $0.00 | $22.11 | $0.00 |
| 2024 | 17817 | PUD1 - PUD #1 | $1.76 | $1.76 | $0.00 | $0.00 | $3.52 | $0.00 |
| 2024 | 17817 | LIB1 - LIBRARY DIST #1 | $8.33 | $8.33 | $0.00 | $0.00 | $16.66 | $0.00 |
| 2024 | 17817 | HD2 - HOSP DIST #2 | $1.56 | $1.56 | $0.00 | $0.00 | $3.12 | $0.00 |
| 2024 | 17817 | SD323 - SCHOOL DIST #323 | $35.19 | $35.18 | $0.00 | $0.00 | $70.37 | $0.00 |
| 2024 | 17817 | FD8 - FIRE DISTRICT #8 | $30.28 | $30.28 | $0.00 | $0.00 | $60.56 | $0.00 |
| 2024 | 17817 | EMS8 - FIRE DIST #8 EMS | $9.58 | $9.57 | $0.00 | $0.00 | $19.15 | $0.00 |
| 2024 | 17817 | CEM3 - CEMETERY DIST #3 | $0.77 | $0.77 | $0.00 | $0.00 | $1.54 | $0.00 |
| 2024 | 17817 | FPLCA - DNR Landowner Contingency Assmt | $3.00 | $3.00 | $0.00 | $0.00 | $6.00 | $0.00 |
| 2024 | 17817 | JCCD - JC Conservation District | $2.61 | $2.61 | $0.00 | $0.00 | $5.22 | $0.00 |
| 2024 | 17817 | NWA - Noxious Weed Assessment | $2.45 | $2.45 | $0.00 | $0.00 | $4.90 | $0.00 |
| 2024 | 17817 | WAT - Clean Water District | $12.50 | $12.50 | $0.00 | $0.00 | $25.00 | $0.00 |
| 2024 | 17817 | TOTAL: | $230.76 | $230.70 | $0.00 | $0.00 | $461.46 | $0.00 |
|
| 2024 | 17817 | $230.76 | $230.70 | $0.00 | $0.00 | $461.46 | $0.00 |
Statement Details |
| 2023 | 17850 | STATE - STATE LEVY (SCHOOL) | $58.24 | $58.23 | $0.00 | $0.00 | $116.47 | $0.00 |
| 2023 | 17850 | COUNTY - COUNTY LEVIES (CE, DD, VET, MH) | $25.43 | $25.40 | $0.00 | $0.00 | $50.83 | $0.00 |
| 2023 | 17850 | CONSERVE - CONSERVATION FUTURES | $0.76 | $0.76 | $0.00 | $0.00 | $1.52 | $0.00 |
| 2023 | 17850 | COROADS - COUNTY ROADS (ROADS, DIV TO CE) | $20.57 | $20.55 | $0.00 | $0.00 | $41.12 | $0.00 |
| 2023 | 17850 | PORTPT - PORT DISTRICT | $10.71 | $10.70 | $0.00 | $0.00 | $21.41 | $0.00 |
| 2023 | 17850 | PUD1 - PUD #1 | $1.69 | $1.68 | $0.00 | $0.00 | $3.37 | $0.00 |
| 2023 | 17850 | LIB1 - LIBRARY DIST #1 | $7.96 | $7.95 | $0.00 | $0.00 | $15.91 | $0.00 |
| 2023 | 17850 | HD2 - HOSP DIST #2 | $1.48 | $1.48 | $0.00 | $0.00 | $2.96 | $0.00 |
| 2023 | 17850 | SD323 - SCHOOL DIST #323 | $33.60 | $33.59 | $0.00 | $0.00 | $67.19 | $0.00 |
| 2023 | 17850 | FD8 - FIRE DISTRICT #8 | $28.00 | $28.00 | $0.00 | $0.00 | $56.00 | $0.00 |
| 2023 | 17850 | EMS8 - FIRE DIST #8 EMS | $9.16 | $9.15 | $0.00 | $0.00 | $18.31 | $0.00 |
| 2023 | 17850 | CEM3 - CEMETERY DIST #3 | $0.80 | $0.79 | $0.00 | $0.00 | $1.59 | $0.00 |
| 2023 | 17850 | FPLCA - DNR Landowner Contingency Assmt | $3.00 | $3.00 | $0.00 | $0.00 | $6.00 | $0.00 |
| 2023 | 17850 | JCCD - JC Conservation District | $2.61 | $2.61 | $0.00 | $0.00 | $5.22 | $0.00 |
| 2023 | 17850 | NWA - Noxious Weed Assessment | $2.45 | $2.45 | $0.00 | $0.00 | $4.90 | $0.00 |
| 2023 | 17850 | WAT - Clean Water District | $12.00 | $12.00 | $0.00 | $0.00 | $24.00 | $0.00 |
| 2023 | 17850 | TOTAL: | $218.46 | $218.34 | $0.00 | $0.00 | $436.80 | $0.00 |
|
| 2023 | 17850 | $218.46 | $218.34 | $0.00 | $0.00 | $436.80 | $0.00 |
Values
| (+) Improvement Homesite Value: | + | $0 | |
| (+) Improvement Non-Homesite Value: | + | $0 | |
| (+) Land Homesite Value: | + | $0 | |
| (+) Land Non-Homesite Value: | + | $59,219 | |
| (+) Curr Use (HS): | + | $0 | $0 |
| (+) Curr Use (NHS): | + | $0 | $0 |
| | | -------------------------- | |
| (=) Market Value: | = | $59,219 | |
| (–) Productivity Loss: | – | $0 | |
| | | -------------------------- | |
| (=) Subtotal: | = | $59,219 | |
| (+) Senior Appraised Value: | + | $0 | |
| (+) Non-Senior Appraised Value: | + | $59,219 | |
| | | -------------------------- | |
| (=) Total Appraised Value: | = | $59,219 | |
| (–) Senior Exemption Loss: | – | $0 | |
| (–) Exemption Loss: | – | $0 | |
| | | -------------------------- | |
| (=) Taxable Value: | = | $59,219 | |
Taxing Jurisdiction
| Owner: | VIKTOR P FENDICH | | |
| % Ownership: | 100.0000000000% | | |
| Total Value: | $59,219 | | |
| Tax Area: | 0781 - 1-323F8E8H2C3L1 |
| CE | COUNTY CURRENT EXPENSE | 0.9034619479 | $59,219 | $59,219 | $53.50 | | |
| CNTYDD | DEVELOPMENTAL DISABILITIES | 0.0052121823 | $59,219 | $59,219 | $0.31 | | |
| CNTYVET | VETERANS RELIEF | 0.0052777810 | $59,219 | $59,219 | $0.31 | | |
| MENTAL | MENTAL HEALTH | 0.0052121823 | $59,219 | $59,219 | $0.31 | | |
| ROADS | COUNTY ROADS | 0.7415066410 | $59,219 | $59,219 | $43.91 | | |
| ROADSCU | COUNTY ROADS TO CUR EXP | 0.0000000000 | $59,219 | $59,219 | $0.00 | | |
| HOSP2CASH | HOSP DIST #2 GENERAL | 0.0536075306 | $59,219 | $59,219 | $3.17 | | |
| SCH323BOND | SCHOOL DIST #323 BOND | 0.9080943643 | $59,219 | $59,219 | $53.78 | | |
| SCH323CP | SCHOOL DIST #323 CAP PROJ | 0.0000000000 | $59,219 | $59,219 | $0.00 | | |
| SCH323MO | SCHOOL DIST #323 EP & O | 0.9372055494 | $59,219 | $59,219 | $55.50 | | |
| CEM3 | CEMETERY DIST #3 GENERAL | 0.0249992283 | $59,219 | $59,219 | $1.48 | | |
| CONSERVE | CONSERVATION FUTURES | 0.0275621078 | $59,219 | $59,219 | $1.63 | | |
| EMS8 | FIRE DIST #8 EMS | 0.3434101125 | $59,219 | $59,219 | $20.34 | | |
| FD8 | FIRE DIST #8 GENERAL | 1.5000000000 | $59,219 | $59,219 | $88.83 | | |
| LIB1 | LIBRARY DIST #1 GENERAL | 0.2868827388 | $59,219 | $59,219 | $16.99 | | |
| PORTPT | PORT OF PT GENERAL | 0.1134941229 | $59,219 | $59,219 | $6.72 | | |
| PORTPTIDD | PORT OF PT IDD 2019 | 0.2577346692 | $59,219 | $59,219 | $15.26 | | |
| PUD1 | PUD #1 GENERAL | 0.0597888892 | $59,219 | $59,219 | $3.54 | | |
| STATE | STATE SCHOOL PART 1 | 1.4940692947 | $59,219 | $59,219 | $88.48 | | |
| STATE2 | STATE SCHOOL PART 2 | 0.8050170049 | $59,219 | $59,219 | $47.67 | | |
| | Total Tax Rate: | 8.4725363471 | | | | | |
| | | | | Taxes w/Current Exemptions: | $501.73 | | |
| | | | | Taxes w/o Exemptions: | $501.73 | | |
Improvement / Building
Sketch
| No sketches available for this property. |
Property Image
Land
| 1 | 2680-1355S | | 1.0000 | 43560.00 | 0.00 | 0.00 | 1.00 | $45,281 | $0 |
| 2 | 2680-1565A | | 1.0100 | 43995.60 | 0.00 | 0.00 | 0.00 | $13,938 | $0 |
Roll Value History
| 2026 | N/A | N/A | N/A | N/A | N/A |
| 2025 | $0 | $59,219 | $0 | $59,219 | $59,219 |
| 2024 | $0 | $56,645 | $0 | $56,645 | $56,645 |
| 2023 | $0 | $54,070 | $0 | $54,070 | $54,070 |
| 2022 | $0 | $49,475 | $0 | $49,475 | $49,475 |
Deed and Sales History
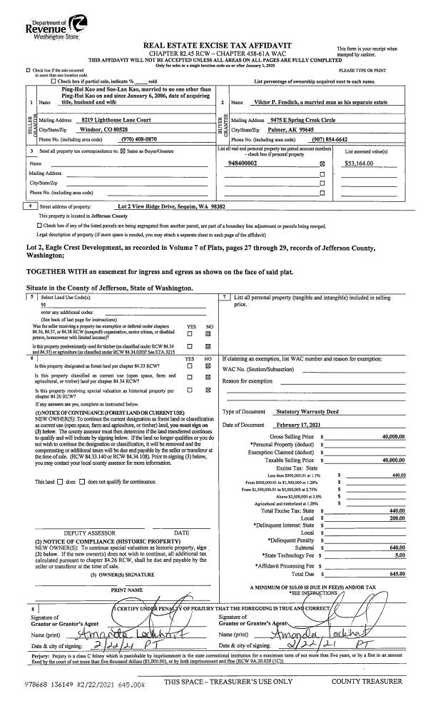
| 1 | 02/17/2021 | SWD | Statutory Warranty Deed | SUE-LAN KAO | VIKTOR P FENDICH | | | $40,000.00 | 136149 | |
| 2 | 12/17/2005 | QCD | Quit Claim Deed | KO, TING-HSUAN | KAO, SUE-LAN | 0 | 0 | $0.00 | 105706 | 0 |
| 3 | 07/09/2001 | SWD | Statutory Warranty Deed | KILLINGER, LARRY/MARY LEE | KO, TING-HSUAN | 0 | 0 | $22,500.00 | 92609 | 0 |
| 4 | 01/13/2001 | QCD | Quit Claim Deed | MCREVEY REVOCABLE TRUST | KILLINGER, LARRY/MARY | 0 | 0 | $0.00 | 91449 | 0 |
| 5 | 04/05/2000 | TRED | Trustee Deed | SHORT, NORMAN | MCREVEY REVOCABLE TRUST | 0 | 0 | $0.00 | 89338 | 0 |
Payout Agreement
| No payout information available.. |