Property
Account |
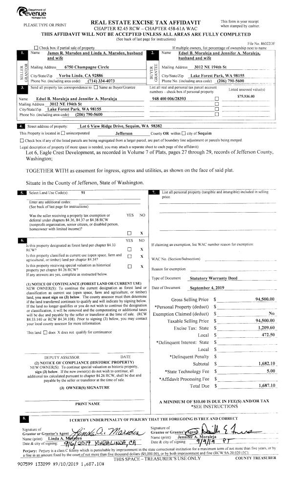
| Property ID: | 28393 | Abbreviated Legal Description: | EAGLE CREST DEVELOPMENT LOT 6 SUBJ/EASE |
| Parcel # / Geo ID: | 948400006 | Agent Code: | |
| Type: | Real | | |
| Tax Area: | 0781 - 1-323F8E8H2C3L1 | Land Use Code | 91 |
| Open Space: | N | DFL | N |
| Historic Property: | N | Remodel Property: | N |
| Multi-Family Redevelopment: | N | | |
| Township: | 30N | Section: | 34 |
| Range: | 2W |
Location |
| Address: | | Mapsco: | 027/035 |
| Neighborhood: | S34 T30 R2W | Map ID: | |
| Neighborhood CD: | 2680 |
Owner |
| Name: | EDSEL B & JENNIFER A MORALEJA | Owner ID: | 101638 |
| Mailing Address: | 3012 NE 194TH ST LAKE FOREST PARK, WA 98155-2546 | % Ownership: | 100.0000000000% |
| | | Exemptions: | |
Pay Tax Due
Select the appropriate checkbox next to the year to be paid. Multiple years may be selected.
*Convenience Fee not included
Taxes and Assessment Details
Property Tax Information as of
03/11/2026
Click on "Statement Details" to expand or collapse a tax statement.
* Please enter a valid date ** Please enter a valid date *
Statement Details |
| 2026 | 17732 | STATE - STATE LEVY (SCHOOL) | $148.76 | $148.74 | $0.00 | $0.00 | $0.00 | $297.50 |
| 2026 | 17732 | COUNTY - COUNTY LEVIES (CE, DD, VET, MH) | $59.48 | $59.45 | $0.00 | $0.00 | $0.00 | $118.93 |
| 2026 | 17732 | CONSERVE - CONSERVATION FUTURES | $1.79 | $1.78 | $0.00 | $0.00 | $0.00 | $3.57 |
| 2026 | 17732 | COROADS - COUNTY ROADS (ROADS, DIV TO CE) | $47.98 | $47.97 | $0.00 | $0.00 | $0.00 | $95.95 |
| 2026 | 17732 | PORTPT - PORT DISTRICT | $24.03 | $24.01 | $0.00 | $0.00 | $0.00 | $48.04 |
| 2026 | 17732 | PUD1 - PUD #1 | $3.87 | $3.87 | $0.00 | $0.00 | $0.00 | $7.74 |
| 2026 | 17732 | LIB1 - LIBRARY DIST #1 | $18.56 | $18.56 | $0.00 | $0.00 | $0.00 | $37.12 |
| 2026 | 17732 | HD2 - HOSP DIST #2 | $3.47 | $3.47 | $0.00 | $0.00 | $0.00 | $6.94 |
| 2026 | 17732 | SD323 - SCHOOL DIST #323 | $119.40 | $119.38 | $0.00 | $0.00 | $0.00 | $238.78 |
| 2026 | 17732 | FD8 - FIRE DISTRICT #8 | $97.05 | $97.05 | $0.00 | $0.00 | $0.00 | $194.10 |
| 2026 | 17732 | EMS8 - FIRE DIST #8 EMS | $22.22 | $22.22 | $0.00 | $0.00 | $0.00 | $44.44 |
| 2026 | 17732 | CEM3 - CEMETERY DIST #3 | $1.62 | $1.61 | $0.00 | $0.00 | $0.00 | $3.23 |
| 2026 | 17732 | FP - DNR Forest Fire Protection Assmt | $8.50 | $8.50 | $0.00 | $0.00 | $0.00 | $17.00 |
| 2026 | 17732 | FPLCA - DNR Landowner Contingency Assmt | $3.00 | $3.00 | $0.00 | $0.00 | $0.00 | $6.00 |
| 2026 | 17732 | JCCD - JC Conservation District | $2.61 | $2.61 | $0.00 | $0.00 | $0.00 | $5.22 |
| 2026 | 17732 | NWA - Noxious Weed Assessment | $3.43 | $3.42 | $0.00 | $0.00 | $0.00 | $6.85 |
| 2026 | 17732 | WAT - Clean Water District | $13.00 | $13.00 | $0.00 | $0.00 | $0.00 | $26.00 |
| 2026 | 17732 | FP ADMIN - FP ADMIN | $0.50 | $0.00 | $0.00 | $0.00 | $0.00 | $0.50 |
| 2026 | 17732 | TOTAL: | $579.27 | $578.64 | $0.00 | $0.00 | $0.00 | $1157.91 |
|
| 2026 | 17732 | $579.27 | $578.64 | $0.00 | $0.00 | $0.00 | $1157.91 |
Statement Details |
| 2025 | 17787 | STATE - STATE LEVY (SCHOOL) | $148.41 | $148.40 | $0.00 | $0.00 | $296.81 | $0.00 |
| 2025 | 17787 | COUNTY - COUNTY LEVIES (CE, DD, VET, MH) | $58.37 | $58.35 | $0.00 | $0.00 | $116.72 | $0.00 |
| 2025 | 17787 | CONSERVE - CONSERVATION FUTURES | $1.75 | $1.75 | $0.00 | $0.00 | $3.50 | $0.00 |
| 2025 | 17787 | COROADS - COUNTY ROADS (ROADS, DIV TO CE) | $46.76 | $46.75 | $0.00 | $0.00 | $93.51 | $0.00 |
| 2025 | 17787 | PORTPT - PORT DISTRICT | $23.82 | $23.81 | $0.00 | $0.00 | $47.63 | $0.00 |
| 2025 | 17787 | PUD1 - PUD #1 | $3.82 | $3.82 | $0.00 | $0.00 | $7.64 | $0.00 |
| 2025 | 17787 | LIB1 - LIBRARY DIST #1 | $18.09 | $18.09 | $0.00 | $0.00 | $36.18 | $0.00 |
| 2025 | 17787 | HD2 - HOSP DIST #2 | $3.41 | $3.40 | $0.00 | $0.00 | $6.81 | $0.00 |
| 2025 | 17787 | SD323 - SCHOOL DIST #323 | $80.37 | $80.37 | $0.00 | $0.00 | $160.74 | $0.00 |
| 2025 | 17787 | FD8 - FIRE DISTRICT #8 | $68.87 | $68.86 | $0.00 | $0.00 | $137.73 | $0.00 |
| 2025 | 17787 | EMS8 - FIRE DIST #8 EMS | $21.77 | $21.77 | $0.00 | $0.00 | $43.54 | $0.00 |
| 2025 | 17787 | CEM3 - CEMETERY DIST #3 | $1.64 | $1.64 | $0.00 | $0.00 | $3.28 | $0.00 |
| 2025 | 17787 | FP - DNR Forest Fire Protection Assmt | $8.50 | $8.50 | $0.00 | $0.00 | $17.00 | $0.00 |
| 2025 | 17787 | FPLCA - DNR Landowner Contingency Assmt | $3.00 | $3.00 | $0.00 | $0.00 | $6.00 | $0.00 |
| 2025 | 17787 | JCCD - JC Conservation District | $2.61 | $2.61 | $0.00 | $0.00 | $5.22 | $0.00 |
| 2025 | 17787 | NWA - Noxious Weed Assessment | $2.45 | $2.45 | $0.00 | $0.00 | $4.90 | $0.00 |
| 2025 | 17787 | WAT - Clean Water District | $13.00 | $13.00 | $0.00 | $0.00 | $26.00 | $0.00 |
| 2025 | 17787 | FP ADMIN - FP ADMIN | $0.50 | $0.00 | $0.00 | $0.00 | $0.50 | $0.00 |
| 2025 | 17787 | TOTAL: | $507.14 | $506.57 | $0.00 | $0.00 | $1013.71 | $0.00 |
|
| 2025 | 17787 | $507.14 | $506.57 | $0.00 | $0.00 | $1013.71 | $0.00 |
Statement Details |
| 2024 | 17821 | STATE - STATE LEVY (SCHOOL) | $136.68 | $136.66 | $0.00 | $0.00 | $273.34 | $0.00 |
| 2024 | 17821 | COUNTY - COUNTY LEVIES (CE, DD, VET, MH) | $58.49 | $58.48 | $0.00 | $0.00 | $116.97 | $0.00 |
| 2024 | 17821 | CONSERVE - CONSERVATION FUTURES | $1.76 | $1.75 | $0.00 | $0.00 | $3.51 | $0.00 |
| 2024 | 17821 | COROADS - COUNTY ROADS (ROADS, DIV TO CE) | $47.06 | $47.06 | $0.00 | $0.00 | $94.12 | $0.00 |
| 2024 | 17821 | PORTPT - PORT DISTRICT | $24.16 | $24.15 | $0.00 | $0.00 | $48.31 | $0.00 |
| 2024 | 17821 | PUD1 - PUD #1 | $3.84 | $3.84 | $0.00 | $0.00 | $7.68 | $0.00 |
| 2024 | 17821 | LIB1 - LIBRARY DIST #1 | $18.21 | $18.20 | $0.00 | $0.00 | $36.41 | $0.00 |
| 2024 | 17821 | HD2 - HOSP DIST #2 | $3.41 | $3.41 | $0.00 | $0.00 | $6.82 | $0.00 |
| 2024 | 17821 | SD323 - SCHOOL DIST #323 | $76.89 | $76.87 | $0.00 | $0.00 | $153.76 | $0.00 |
| 2024 | 17821 | FD8 - FIRE DISTRICT #8 | $66.17 | $66.16 | $0.00 | $0.00 | $132.33 | $0.00 |
| 2024 | 17821 | EMS8 - FIRE DIST #8 EMS | $20.93 | $20.92 | $0.00 | $0.00 | $41.85 | $0.00 |
| 2024 | 17821 | CEM3 - CEMETERY DIST #3 | $1.68 | $1.68 | $0.00 | $0.00 | $3.36 | $0.00 |
| 2024 | 17821 | JCCD - JC Conservation District | $2.61 | $2.61 | $0.00 | $0.00 | $5.22 | $0.00 |
| 2024 | 17821 | NWA - Noxious Weed Assessment | $2.45 | $2.45 | $0.00 | $0.00 | $4.90 | $0.00 |
| 2024 | 17821 | WAT - Clean Water District | $12.50 | $12.50 | $0.00 | $0.00 | $25.00 | $0.00 |
| 2024 | 17821 | TOTAL: | $476.84 | $476.74 | $0.00 | $0.00 | $953.58 | $0.00 |
|
| 2024 | 17821 | $476.84 | $476.74 | $0.00 | $0.00 | $953.58 | $0.00 |
Statement Details |
| 2023 | 17854 | STATE - STATE LEVY (SCHOOL) | $130.00 | $129.99 | $0.00 | $0.00 | $259.99 | $0.00 |
| 2023 | 17854 | COUNTY - COUNTY LEVIES (CE, DD, VET, MH) | $56.73 | $56.71 | $0.00 | $0.00 | $113.44 | $0.00 |
| 2023 | 17854 | CONSERVE - CONSERVATION FUTURES | $1.70 | $1.70 | $0.00 | $0.00 | $3.40 | $0.00 |
| 2023 | 17854 | COROADS - COUNTY ROADS (ROADS, DIV TO CE) | $45.90 | $45.89 | $0.00 | $0.00 | $91.79 | $0.00 |
| 2023 | 17854 | PORTPT - PORT DISTRICT | $23.90 | $23.89 | $0.00 | $0.00 | $47.79 | $0.00 |
| 2023 | 17854 | PUD1 - PUD #1 | $3.76 | $3.76 | $0.00 | $0.00 | $7.52 | $0.00 |
| 2023 | 17854 | LIB1 - LIBRARY DIST #1 | $17.76 | $17.75 | $0.00 | $0.00 | $35.51 | $0.00 |
| 2023 | 17854 | HD2 - HOSP DIST #2 | $3.31 | $3.31 | $0.00 | $0.00 | $6.62 | $0.00 |
| 2023 | 17854 | SD323 - SCHOOL DIST #323 | $75.00 | $74.98 | $0.00 | $0.00 | $149.98 | $0.00 |
| 2023 | 17854 | FD8 - FIRE DISTRICT #8 | $62.51 | $62.50 | $0.00 | $0.00 | $125.01 | $0.00 |
| 2023 | 17854 | EMS8 - FIRE DIST #8 EMS | $20.44 | $20.44 | $0.00 | $0.00 | $40.88 | $0.00 |
| 2023 | 17854 | CEM3 - CEMETERY DIST #3 | $1.78 | $1.78 | $0.00 | $0.00 | $3.56 | $0.00 |
| 2023 | 17854 | JCCD - JC Conservation District | $2.61 | $2.61 | $0.00 | $0.00 | $5.22 | $0.00 |
| 2023 | 17854 | NWA - Noxious Weed Assessment | $2.45 | $2.45 | $0.00 | $0.00 | $4.90 | $0.00 |
| 2023 | 17854 | WAT - Clean Water District | $12.00 | $12.00 | $0.00 | $0.00 | $24.00 | $0.00 |
| 2023 | 17854 | TOTAL: | $459.85 | $459.76 | $0.00 | $0.00 | $919.61 | $0.00 |
|
| 2023 | 17854 | $459.85 | $459.76 | $0.00 | $0.00 | $919.61 | $0.00 |
Values
| (+) Improvement Homesite Value: | + | $0 | |
| (+) Improvement Non-Homesite Value: | + | $0 | |
| (+) Land Homesite Value: | + | $0 | |
| (+) Land Non-Homesite Value: | + | $129,398 | |
| (+) Curr Use (HS): | + | $0 | $0 |
| (+) Curr Use (NHS): | + | $0 | $0 |
| | | -------------------------- | |
| (=) Market Value: | = | $129,398 | |
| (–) Productivity Loss: | – | $0 | |
| | | -------------------------- | |
| (=) Subtotal: | = | $129,398 | |
| (+) Senior Appraised Value: | + | $0 | |
| (+) Non-Senior Appraised Value: | + | $129,398 | |
| | | -------------------------- | |
| (=) Total Appraised Value: | = | $129,398 | |
| (–) Senior Exemption Loss: | – | $0 | |
| (–) Exemption Loss: | – | $0 | |
| | | -------------------------- | |
| (=) Taxable Value: | = | $129,398 | |
Taxing Jurisdiction
| Owner: | EDSEL B & JENNIFER A MORALEJA | | |
| % Ownership: | 100.0000000000% | | |
| Total Value: | $129,398 | | |
| Tax Area: | 0781 - 1-323F8E8H2C3L1 |
| CE | COUNTY CURRENT EXPENSE | 0.9034619479 | $129,398 | $129,398 | $116.91 | | |
| CNTYDD | DEVELOPMENTAL DISABILITIES | 0.0052121823 | $129,398 | $129,398 | $0.67 | | |
| CNTYVET | VETERANS RELIEF | 0.0052777810 | $129,398 | $129,398 | $0.68 | | |
| MENTAL | MENTAL HEALTH | 0.0052121823 | $129,398 | $129,398 | $0.67 | | |
| ROADS | COUNTY ROADS | 0.7415066410 | $129,398 | $129,398 | $95.95 | | |
| ROADSCU | COUNTY ROADS TO CUR EXP | 0.0000000000 | $129,398 | $129,398 | $0.00 | | |
| HOSP2CASH | HOSP DIST #2 GENERAL | 0.0536075306 | $129,398 | $129,398 | $6.94 | | |
| SCH323BOND | SCHOOL DIST #323 BOND | 0.9080943643 | $129,398 | $129,398 | $117.51 | | |
| SCH323CP | SCHOOL DIST #323 CAP PROJ | 0.0000000000 | $129,398 | $129,398 | $0.00 | | |
| SCH323MO | SCHOOL DIST #323 EP & O | 0.9372055494 | $129,398 | $129,398 | $121.27 | | |
| CEM3 | CEMETERY DIST #3 GENERAL | 0.0249992283 | $129,398 | $129,398 | $3.23 | | |
| CONSERVE | CONSERVATION FUTURES | 0.0275621078 | $129,398 | $129,398 | $3.57 | | |
| EMS8 | FIRE DIST #8 EMS | 0.3434101125 | $129,398 | $129,398 | $44.44 | | |
| FD8 | FIRE DIST #8 GENERAL | 1.5000000000 | $129,398 | $129,398 | $194.10 | | |
| LIB1 | LIBRARY DIST #1 GENERAL | 0.2868827388 | $129,398 | $129,398 | $37.12 | | |
| PORTPT | PORT OF PT GENERAL | 0.1134941229 | $129,398 | $129,398 | $14.69 | | |
| PORTPTIDD | PORT OF PT IDD 2019 | 0.2577346692 | $129,398 | $129,398 | $33.35 | | |
| PUD1 | PUD #1 GENERAL | 0.0597888892 | $129,398 | $129,398 | $7.74 | | |
| STATE | STATE SCHOOL PART 1 | 1.4940692947 | $129,398 | $129,398 | $193.33 | | |
| STATE2 | STATE SCHOOL PART 2 | 0.8050170049 | $129,398 | $129,398 | $104.17 | | |
| | Total Tax Rate: | 8.4725363471 | | | | | |
| | | | | Taxes w/Current Exemptions: | $1,096.34 | | |
| | | | | Taxes w/o Exemptions: | $1,096.34 | | |
Improvement / Building
Sketch
| No sketches available for this property. |
Property Image
Land
| 1 | 2680-1555A | | 1.0400 | 45302.40 | 0.00 | 0.00 | 0.00 | $15,548 | $0 |
| 2 | 2680-1343S | | 1.0000 | 43560.00 | 0.00 | 0.00 | 1.00 | $113,850 | $0 |
Roll Value History
| 2026 | N/A | N/A | N/A | N/A | N/A |
| 2025 | $0 | $129,398 | $0 | $129,398 | $129,398 |
| 2024 | $0 | $123,772 | $0 | $123,772 | $123,772 |
| 2023 | $0 | $118,146 | $0 | $118,146 | $118,146 |
| 2022 | $0 | $110,440 | $0 | $110,440 | $110,440 |
Deed and Sales History
| 1 | 09/04/2019 | SWD | Statutory Warranty Deed | JAMES R MARSDEN | EDSEL B & JENNIFER A MORALEJA | | | $94,500.00 | 133099 | |
| 2 | 06/20/2008 | SWD | Statutory Warranty Deed | GROTHE, PATRICK A/JANE K | MARSDEN, JAMES R/LINDA A | | | $121,000.00 | 111488 | 0 |
| 3 | 09/05/2001 | SWD | Statutory Warranty Deed | KILLINGER, LARRY/MARY LEE | GROTHE, PATRICK A/JANE K | 0 | 0 | $55,000.00 | 93050 | 0 |
| 4 | 01/13/2001 | QCD | Quit Claim Deed | MCREVEY REVOCABLE TRUST | KILLINGER, LARRY/MARY | 0 | 0 | $0.00 | 91450 | 0 |
| 5 | 04/05/2000 | TRED | Trustee Deed | SHORT, NORMAN | MCREVEY REVOCABLE TRUST | 0 | 0 | $0.00 | 89339 | 0 |
Payout Agreement
| No payout information available.. |