Property
Account |
| Property ID: | 28399 | Abbreviated Legal Description: | EAGLE CREST DEVELOPMENT LOT 12 SUBJ/EASE |
| Parcel # / Geo ID: | 948400012 | Agent Code: | |
| Type: | Real | | |
| Tax Area: | 0781 - 1-323F8E8H2C3L1 | Land Use Code | 91 |
| Open Space: | N | DFL | N |
| Historic Property: | N | Remodel Property: | N |
| Multi-Family Redevelopment: | N | | |
| Township: | 30N | Section: | 34 |
| Range: | 2W |
Location |
| Address: | 313 VIEW RIDGE DR SEQUIM, WA 98382 | Mapsco: | 027/041 |
| Neighborhood: | S34 T30 R2W | Map ID: | |
| Neighborhood CD: | 2680 |
Owner |
| Name: | ALLETT FAMILY TRUST | Owner ID: | 112625 |
| Mailing Address: | BRIAN & MELISSA ALLETT TRUSTEES 8 AMALFI DR PALM DESERT, CA 92211-8911 | % Ownership: | 100.0000000000% |
| | | Exemptions: | |
Pay Tax Due
Select the appropriate checkbox next to the year to be paid. Multiple years may be selected.
*Convenience Fee not included
Taxes and Assessment Details
Property Tax Information as of
03/12/2026
Click on "Statement Details" to expand or collapse a tax statement.
* Please enter a valid date ** Please enter a valid date *
Statement Details |
| 2026 | 17738 | STATE - STATE LEVY (SCHOOL) | $252.18 | $252.16 | $0.00 | $0.00 | $0.00 | $504.34 |
| 2026 | 17738 | COUNTY - COUNTY LEVIES (CE, DD, VET, MH) | $100.82 | $100.81 | $0.00 | $0.00 | $0.00 | $201.63 |
| 2026 | 17738 | CONSERVE - CONSERVATION FUTURES | $3.03 | $3.02 | $0.00 | $0.00 | $0.00 | $6.05 |
| 2026 | 17738 | COROADS - COUNTY ROADS (ROADS, DIV TO CE) | $81.33 | $81.33 | $0.00 | $0.00 | $0.00 | $162.66 |
| 2026 | 17738 | PORTPT - PORT DISTRICT | $40.72 | $40.72 | $0.00 | $0.00 | $0.00 | $81.44 |
| 2026 | 17738 | PUD1 - PUD #1 | $6.56 | $6.56 | $0.00 | $0.00 | $0.00 | $13.12 |
| 2026 | 17738 | LIB1 - LIBRARY DIST #1 | $31.47 | $31.46 | $0.00 | $0.00 | $0.00 | $62.93 |
| 2026 | 17738 | HD2 - HOSP DIST #2 | $5.88 | $5.88 | $0.00 | $0.00 | $0.00 | $11.76 |
| 2026 | 17738 | SD323 - SCHOOL DIST #323 | $202.41 | $202.39 | $0.00 | $0.00 | $0.00 | $404.80 |
| 2026 | 17738 | FD8 - FIRE DISTRICT #8 | $164.53 | $164.52 | $0.00 | $0.00 | $0.00 | $329.05 |
| 2026 | 17738 | EMS8 - FIRE DIST #8 EMS | $37.67 | $37.66 | $0.00 | $0.00 | $0.00 | $75.33 |
| 2026 | 17738 | CEM3 - CEMETERY DIST #3 | $2.74 | $2.74 | $0.00 | $0.00 | $0.00 | $5.48 |
| 2026 | 17738 | FP - DNR Forest Fire Protection Assmt | $8.50 | $8.50 | $0.00 | $0.00 | $0.00 | $17.00 |
| 2026 | 17738 | FPLCA - DNR Landowner Contingency Assmt | $3.00 | $3.00 | $0.00 | $0.00 | $0.00 | $6.00 |
| 2026 | 17738 | JCCD - JC Conservation District | $2.61 | $2.61 | $0.00 | $0.00 | $0.00 | $5.22 |
| 2026 | 17738 | NWA - Noxious Weed Assessment | $3.43 | $3.42 | $0.00 | $0.00 | $0.00 | $6.85 |
| 2026 | 17738 | WAT - Clean Water District | $13.00 | $13.00 | $0.00 | $0.00 | $0.00 | $26.00 |
| 2026 | 17738 | FP ADMIN - FP ADMIN | $0.50 | $0.00 | $0.00 | $0.00 | $0.00 | $0.50 |
| 2026 | 17738 | TOTAL: | $960.38 | $959.78 | $0.00 | $0.00 | $0.00 | $1920.16 |
|
| 2026 | 17738 | $960.38 | $959.78 | $0.00 | $0.00 | $0.00 | $1920.16 |
Statement Details |
| 2025 | 17793 | STATE - STATE LEVY (SCHOOL) | $251.60 | $251.58 | $0.00 | $0.00 | $503.18 | $0.00 |
| 2025 | 17793 | COUNTY - COUNTY LEVIES (CE, DD, VET, MH) | $98.94 | $98.93 | $0.00 | $0.00 | $197.87 | $0.00 |
| 2025 | 17793 | CONSERVE - CONSERVATION FUTURES | $2.97 | $2.96 | $0.00 | $0.00 | $5.93 | $0.00 |
| 2025 | 17793 | COROADS - COUNTY ROADS (ROADS, DIV TO CE) | $79.27 | $79.26 | $0.00 | $0.00 | $158.53 | $0.00 |
| 2025 | 17793 | PORTPT - PORT DISTRICT | $40.38 | $40.36 | $0.00 | $0.00 | $80.74 | $0.00 |
| 2025 | 17793 | PUD1 - PUD #1 | $6.48 | $6.47 | $0.00 | $0.00 | $12.95 | $0.00 |
| 2025 | 17793 | LIB1 - LIBRARY DIST #1 | $30.67 | $30.66 | $0.00 | $0.00 | $61.33 | $0.00 |
| 2025 | 17793 | HD2 - HOSP DIST #2 | $5.77 | $5.77 | $0.00 | $0.00 | $11.54 | $0.00 |
| 2025 | 17793 | SD323 - SCHOOL DIST #323 | $136.26 | $136.24 | $0.00 | $0.00 | $272.50 | $0.00 |
| 2025 | 17793 | FD8 - FIRE DISTRICT #8 | $116.75 | $116.74 | $0.00 | $0.00 | $233.49 | $0.00 |
| 2025 | 17793 | EMS8 - FIRE DIST #8 EMS | $36.91 | $36.91 | $0.00 | $0.00 | $73.82 | $0.00 |
| 2025 | 17793 | CEM3 - CEMETERY DIST #3 | $2.78 | $2.78 | $0.00 | $0.00 | $5.56 | $0.00 |
| 2025 | 17793 | FP - DNR Forest Fire Protection Assmt | $8.50 | $8.50 | $0.00 | $0.00 | $17.00 | $0.00 |
| 2025 | 17793 | FPLCA - DNR Landowner Contingency Assmt | $3.00 | $3.00 | $0.00 | $0.00 | $6.00 | $0.00 |
| 2025 | 17793 | JCCD - JC Conservation District | $2.61 | $2.61 | $0.00 | $0.00 | $5.22 | $0.00 |
| 2025 | 17793 | NWA - Noxious Weed Assessment | $2.45 | $2.45 | $0.00 | $0.00 | $4.90 | $0.00 |
| 2025 | 17793 | WAT - Clean Water District | $13.00 | $13.00 | $0.00 | $0.00 | $26.00 | $0.00 |
| 2025 | 17793 | FP ADMIN - FP ADMIN | $0.50 | $0.00 | $0.00 | $0.00 | $0.50 | $0.00 |
| 2025 | 17793 | TOTAL: | $838.84 | $838.22 | $0.00 | $0.00 | $1677.06 | $0.00 |
|
| 2025 | 17793 | $838.84 | $838.22 | $0.00 | $0.00 | $1677.06 | $0.00 |
Statement Details |
| 2024 | 17827 | STATE - STATE LEVY (SCHOOL) | $231.71 | $231.69 | $0.00 | $0.00 | $463.40 | $0.00 |
| 2024 | 17827 | COUNTY - COUNTY LEVIES (CE, DD, VET, MH) | $99.15 | $99.14 | $0.00 | $0.00 | $198.29 | $0.00 |
| 2024 | 17827 | CONSERVE - CONSERVATION FUTURES | $2.98 | $2.97 | $0.00 | $0.00 | $5.95 | $0.00 |
| 2024 | 17827 | COROADS - COUNTY ROADS (ROADS, DIV TO CE) | $79.78 | $79.78 | $0.00 | $0.00 | $159.56 | $0.00 |
| 2024 | 17827 | PORTPT - PORT DISTRICT | $40.95 | $40.95 | $0.00 | $0.00 | $81.90 | $0.00 |
| 2024 | 17827 | PUD1 - PUD #1 | $6.51 | $6.51 | $0.00 | $0.00 | $13.02 | $0.00 |
| 2024 | 17827 | LIB1 - LIBRARY DIST #1 | $30.87 | $30.86 | $0.00 | $0.00 | $61.73 | $0.00 |
| 2024 | 17827 | HD2 - HOSP DIST #2 | $5.79 | $5.78 | $0.00 | $0.00 | $11.57 | $0.00 |
| 2024 | 17827 | SD323 - SCHOOL DIST #323 | $130.34 | $130.33 | $0.00 | $0.00 | $260.67 | $0.00 |
| 2024 | 17827 | FD8 - FIRE DISTRICT #8 | $112.17 | $112.16 | $0.00 | $0.00 | $224.33 | $0.00 |
| 2024 | 17827 | EMS8 - FIRE DIST #8 EMS | $35.47 | $35.47 | $0.00 | $0.00 | $70.94 | $0.00 |
| 2024 | 17827 | CEM3 - CEMETERY DIST #3 | $2.85 | $2.85 | $0.00 | $0.00 | $5.70 | $0.00 |
| 2024 | 17827 | FP - DNR Forest Fire Protection Assmt | $8.50 | $8.50 | $0.00 | $0.00 | $17.00 | $0.00 |
| 2024 | 17827 | FPLCA - DNR Landowner Contingency Assmt | $3.00 | $3.00 | $0.00 | $0.00 | $6.00 | $0.00 |
| 2024 | 17827 | JCCD - JC Conservation District | $2.61 | $2.61 | $0.00 | $0.00 | $5.22 | $0.00 |
| 2024 | 17827 | NWA - Noxious Weed Assessment | $2.45 | $2.45 | $0.00 | $0.00 | $4.90 | $0.00 |
| 2024 | 17827 | WAT - Clean Water District | $12.50 | $12.50 | $0.00 | $0.00 | $25.00 | $0.00 |
| 2024 | 17827 | FP ADMIN - FP ADMIN | $0.50 | $0.00 | $0.00 | $0.00 | $0.50 | $0.00 |
| 2024 | 17827 | TOTAL: | $808.13 | $807.55 | $0.00 | $0.00 | $1615.68 | $0.00 |
|
| 2024 | 17827 | $808.13 | $807.55 | $0.00 | $0.00 | $1615.68 | $0.00 |
Statement Details |
| 2023 | 17860 | STATE - STATE LEVY (SCHOOL) | $220.98 | $220.96 | $0.00 | $0.00 | $441.94 | $0.00 |
| 2023 | 17860 | COUNTY - COUNTY LEVIES (CE, DD, VET, MH) | $96.44 | $96.40 | $0.00 | $0.00 | $192.84 | $0.00 |
| 2023 | 17860 | CONSERVE - CONSERVATION FUTURES | $2.89 | $2.89 | $0.00 | $0.00 | $5.78 | $0.00 |
| 2023 | 17860 | COROADS - COUNTY ROADS (ROADS, DIV TO CE) | $78.01 | $78.01 | $0.00 | $0.00 | $156.02 | $0.00 |
| 2023 | 17860 | PORTPT - PORT DISTRICT | $40.63 | $40.61 | $0.00 | $0.00 | $81.24 | $0.00 |
| 2023 | 17860 | PUD1 - PUD #1 | $6.39 | $6.39 | $0.00 | $0.00 | $12.78 | $0.00 |
| 2023 | 17860 | LIB1 - LIBRARY DIST #1 | $30.19 | $30.18 | $0.00 | $0.00 | $60.37 | $0.00 |
| 2023 | 17860 | HD2 - HOSP DIST #2 | $5.63 | $5.62 | $0.00 | $0.00 | $11.25 | $0.00 |
| 2023 | 17860 | SD323 - SCHOOL DIST #323 | $127.47 | $127.45 | $0.00 | $0.00 | $254.92 | $0.00 |
| 2023 | 17860 | FD8 - FIRE DISTRICT #8 | $106.24 | $106.24 | $0.00 | $0.00 | $212.48 | $0.00 |
| 2023 | 17860 | EMS8 - FIRE DIST #8 EMS | $34.74 | $34.74 | $0.00 | $0.00 | $69.48 | $0.00 |
| 2023 | 17860 | CEM3 - CEMETERY DIST #3 | $3.03 | $3.02 | $0.00 | $0.00 | $6.05 | $0.00 |
| 2023 | 17860 | FP - DNR Forest Fire Protection Assmt | $8.50 | $8.50 | $0.00 | $0.00 | $17.00 | $0.00 |
| 2023 | 17860 | FPLCA - DNR Landowner Contingency Assmt | $3.00 | $3.00 | $0.00 | $0.00 | $6.00 | $0.00 |
| 2023 | 17860 | JCCD - JC Conservation District | $2.61 | $2.61 | $0.00 | $0.00 | $5.22 | $0.00 |
| 2023 | 17860 | NWA - Noxious Weed Assessment | $2.45 | $2.45 | $0.00 | $0.00 | $4.90 | $0.00 |
| 2023 | 17860 | WAT - Clean Water District | $12.00 | $12.00 | $0.00 | $0.00 | $24.00 | $0.00 |
| 2023 | 17860 | FP ADMIN - FP ADMIN | $0.50 | $0.00 | $0.00 | $0.00 | $0.50 | $0.00 |
| 2023 | 17860 | TOTAL: | $781.70 | $781.07 | $0.00 | $0.00 | $1562.77 | $0.00 |
|
| 2023 | 17860 | $781.70 | $781.07 | $0.00 | $0.00 | $1562.77 | $0.00 |
Values
| (+) Improvement Homesite Value: | + | $0 | |
| (+) Improvement Non-Homesite Value: | + | $0 | |
| (+) Land Homesite Value: | + | $0 | |
| (+) Land Non-Homesite Value: | + | $219,368 | |
| (+) Curr Use (HS): | + | $0 | $0 |
| (+) Curr Use (NHS): | + | $0 | $0 |
| | | -------------------------- | |
| (=) Market Value: | = | $219,368 | |
| (–) Productivity Loss: | – | $0 | |
| | | -------------------------- | |
| (=) Subtotal: | = | $219,368 | |
| (+) Senior Appraised Value: | + | $0 | |
| (+) Non-Senior Appraised Value: | + | $219,368 | |
| | | -------------------------- | |
| (=) Total Appraised Value: | = | $219,368 | |
| (–) Senior Exemption Loss: | – | $0 | |
| (–) Exemption Loss: | – | $0 | |
| | | -------------------------- | |
| (=) Taxable Value: | = | $219,368 | |
Taxing Jurisdiction
| Owner: | ALLETT FAMILY TRUST | | |
| % Ownership: | 100.0000000000% | | |
| Total Value: | $219,368 | | |
| Tax Area: | 0781 - 1-323F8E8H2C3L1 |
| CE | COUNTY CURRENT EXPENSE | 0.9034619479 | $219,368 | $219,368 | $198.19 | | |
| CNTYDD | DEVELOPMENTAL DISABILITIES | 0.0052121823 | $219,368 | $219,368 | $1.14 | | |
| CNTYVET | VETERANS RELIEF | 0.0052777810 | $219,368 | $219,368 | $1.16 | | |
| MENTAL | MENTAL HEALTH | 0.0052121823 | $219,368 | $219,368 | $1.14 | | |
| ROADS | COUNTY ROADS | 0.7415066410 | $219,368 | $219,368 | $162.66 | | |
| ROADSCU | COUNTY ROADS TO CUR EXP | 0.0000000000 | $219,368 | $219,368 | $0.00 | | |
| HOSP2CASH | HOSP DIST #2 GENERAL | 0.0536075306 | $219,368 | $219,368 | $11.76 | | |
| SCH323BOND | SCHOOL DIST #323 BOND | 0.9080943643 | $219,368 | $219,368 | $199.21 | | |
| SCH323CP | SCHOOL DIST #323 CAP PROJ | 0.0000000000 | $219,368 | $219,368 | $0.00 | | |
| SCH323MO | SCHOOL DIST #323 EP & O | 0.9372055494 | $219,368 | $219,368 | $205.59 | | |
| CEM3 | CEMETERY DIST #3 GENERAL | 0.0249992283 | $219,368 | $219,368 | $5.48 | | |
| CONSERVE | CONSERVATION FUTURES | 0.0275621078 | $219,368 | $219,368 | $6.05 | | |
| EMS8 | FIRE DIST #8 EMS | 0.3434101125 | $219,368 | $219,368 | $75.33 | | |
| FD8 | FIRE DIST #8 GENERAL | 1.5000000000 | $219,368 | $219,368 | $329.05 | | |
| LIB1 | LIBRARY DIST #1 GENERAL | 0.2868827388 | $219,368 | $219,368 | $62.93 | | |
| PORTPT | PORT OF PT GENERAL | 0.1134941229 | $219,368 | $219,368 | $24.90 | | |
| PORTPTIDD | PORT OF PT IDD 2019 | 0.2577346692 | $219,368 | $219,368 | $56.54 | | |
| PUD1 | PUD #1 GENERAL | 0.0597888892 | $219,368 | $219,368 | $13.12 | | |
| STATE | STATE SCHOOL PART 1 | 1.4940692947 | $219,368 | $219,368 | $327.75 | | |
| STATE2 | STATE SCHOOL PART 2 | 0.8050170049 | $219,368 | $219,368 | $176.59 | | |
| | Total Tax Rate: | 8.4725363471 | | | | | |
| | | | | Taxes w/Current Exemptions: | $1,858.59 | | |
| | | | | Taxes w/o Exemptions: | $1,858.59 | | |
Improvement / Building
Sketch
| No sketches available for this property. |
Property Image
Land
| 1 | 2680-1343S | | 1.0000 | 43560.00 | 0.00 | 0.00 | 1.00 | $189,750 | $0 |
| 2 | 2680-1545A | | 1.0100 | 43995.60 | 0.00 | 0.00 | 0.00 | $29,618 | $0 |
Roll Value History
| 2026 | N/A | N/A | N/A | N/A | N/A |
| 2025 | $0 | $219,368 | $0 | $219,368 | $219,368 |
| 2024 | $0 | $209,831 | $0 | $209,831 | $209,831 |
| 2023 | $0 | $200,293 | $0 | $200,293 | $200,293 |
| 2022 | $0 | $187,725 | $0 | $187,725 | $187,725 |
Deed and Sales History
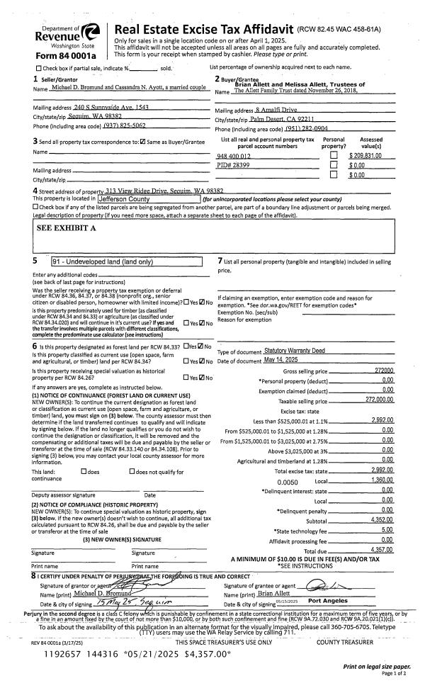
| 1 | 05/14/2025 | SWD | Statutory Warranty Deed | MICHAEL D BROMUND & CASSANDRA N AYOTT | ALLETT FAMILY TRUST | | | $272,000.00 | 144316 | |
| 2 | 07/25/2022 | SWD | Statutory Warranty Deed | NORMAN & CAROLE TOLCHIN | MICHAEL D BROMUND & CASSANDRA N AYOTT | | | $235,000.00 | 139559 | |
| 3 | 06/05/2020 | SWD | Statutory Warranty Deed | LAWRENCE K WAN TRUSTEE | NORMAN & CAROLE TOLCHIN | | | $174,500.00 | 134553 | |
| 4 | 02/21/2006 | SWD | Statutory Warranty Deed | COLVIN, THOMAS L & IRMA | WAN, LAWRENCE & KATHLEEN | 0 | 0 | $305,500.00 | 106083 | 0 |
| 5 | 11/20/2003 | SWD | Statutory Warranty Deed | DIERKING, GEORGE/CLAUDIA | COLVIN, THOMAS & IRMA/TRUST | 0 | 0 | $121,000.00 | 98994 | 0 |
| 6 | 06/01/1998 | SWD | Statutory Warranty Deed | LEE, WILLIAM S/EMILY C | DIERKING, GEORGE/CLAUDIA | 0 | 0 | $80,000.00 | 84573 | 0 |
| 7 | 01/30/1996 | SWD | Statutory Warranty Deed | CASCADE INVESTMENT PROPER | LEE, WILLIAM S/EMILY C | 0 | 0 | $59,900.00 | 78836 | 0 |
Payout Agreement
| No payout information available.. |